Maison à construire à Bourg-Blanc (29860)
Images
Description
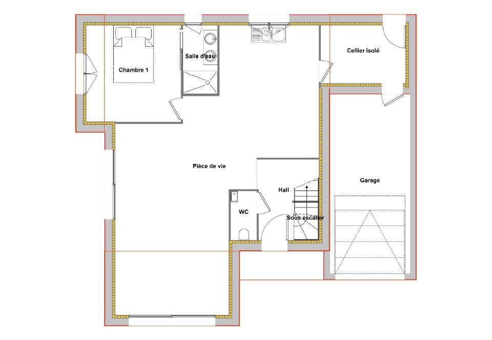
VENTE : maison de 4 pièces (130 m²) à Bourg-Blanc
MAISON 4 PIÈCES NEUVE - PROCHE DE BREST
En vente : sur le littoral et à deux pas de Brest, à Bourg-Blanc (29860), nous sommes ravis de vous proposer cette maison de 4 pièces de 130 m².
C'est une maison de 2 niveaux. Elle inclut quatre chambres, une cuisine et deux salles de bains.
Son prix de vente est de 399 350 €.
Contactez notre agence (ROPERS Jean : (Numéro supprimé)) pour plus d'informations sur cette maison.
Logement susceptibles de vous intéresser
Nous vous proposons de découvrir aussi cette sélection de logements situés à moins de 10km de Bourg-Blanc et qui seraient susceptibles de vous intéresser.
Bourg-Blanc
TERRAINBourg-Blanc : terrain de 589 m² en venteA saisir ! A 10 minutes de Brest, terrain plat et bien exposéGrand terrain à 9 km de Brest. De 589 m², ce terrain se situe dans Bourg-Blanc (29860). Son prix de vente est de 88 350 €. N’hésitez pas à prendre contact avec Jean ROPERS ((Numéro supprimé)) pour obtenir de plus amples renseignements sur ce terrain, sur les démarches à suivre ou sur les modalités de vente. Maisons de l’Avenir Guipavas est là pour vous accompagner à toutes les étapes de votre projet.
Bourg-Blanc
TERRAIN ET MAISONVENTE : maison F4 (90 m²) à Bourg-BlancMAISON 4 PIÈCES NEUVE – PROCHE DE BRESTSur le littoral et à deux pas de Brest, Maisons de l’Avenir Guipavas vous propose cette maison de 4 pièces de plain-pied de 90 m² et de 589 m² de terrain à vendre à Bourg-Blanc (29860).Son intérieur offre trois chambres, une cuisine et une salle de bains. Elle est à vendre pour la somme de 296 350 €.Prenez contact avec Jean ROPERS ((Numéro supprimé)) pour tout renseignement sur la propriété ou sur les modalités de vente. Maisons de l’Avenir Guipavas vous accompagne dans toutes vos démarches et à toutes les étapes de votre projet.
Bourg-Blanc
TERRAIN ET MAISONVENTE : maison de 4 pièces (130 m²) à Bourg-BlancMAISON 4 PIÈCES NEUVE – PROCHE DE BRESTEn vente : sur le littoral et à deux pas de Brest, à Bourg-Blanc (29860), nous sommes ravis de vous proposer cette maison de 4 pièces de 130 m².C’est une maison de 2 niveaux. Elle inclut quatre chambres, une cuisine et deux salles de bains. Son prix de vente est de 399 350 €.Contactez notre agence (ROPERS Jean : (Numéro supprimé)) pour plus d’informations sur cette maison.
Bourg-Blanc
TERRAIN ET MAISONVENTE : maison de 3 pièces (100 m²) à Bourg-BlancPROCHE DE BREST – MAISON 3 PIÈCES NEUVEÀ vendre : située sur le littoral et à 9 km de Brest, nous sommes heureux de vous proposer cette maison de 3 pièces de plain-pied de 100 m² à Bourg-Blanc (29860). Conçue de plain-pied, elle propose trois chambres, une cuisine et une salle de bains.Le terrain de la maison s’étend sur 589 m².Elle est à vendre pour la somme de 333 350 €.Prenez contact avec Jean ROPERS ((Numéro supprimé)) pour tout renseignement sur cette maison, sur les démarches à suivre et sur les modalités de vente. Maisons de l’Avenir Guipavas vous accompagne dans tous vos projets immobiliers et à toutes les étapes de l’achat.
Bourg-Blanc
TERRAIN ET MAISONBourg-Blanc : maison F5 (110 m²) en venteMAISON 5 PIÈCES NEUVE – PROCHE DE BRESTSur le littoral et à 9 km de Brest, nous vous présentons à vendre à Bourg-Blanc (29860), cette maison de 5 pièces de 110 m².Il s’agit d’une maison de 2 niveaux. Elle est composée de trois chambres, d’une cuisine et de deux salles de bains. Son prix de vente est de 355 350 €.N’hésitez pas à prendre contact avec notre agence (Jean ROPERS : (Numéro supprimé)) pour toute information sur cette maison ou sur les démarches à suivre. Maisons de l’Avenir Guipavas vous accompagne dans tous vos projets immobiliers et à toutes les étapes de l’achat.
Bourg-Blanc
TERRAIN ET MAISONBourg-Blanc : maison de 5 pièces (130 m²) en ventePROCHE DE BREST – MAISON 5 PIÈCES OSSATURE BOIS En vente à quelques kilomètres de la mer et à 9 km de Brest, ayez le coup de coeur pour cette maison de 5 pièces de 130 m² à Bourg-Blanc (29860).Il s’agit d’une maison de 2 niveaux. Son intérieur comporte quatre chambres, une cuisine et une salle de bains.Son prix de vente est de 403 500 €.N’hésitez pas à prendre contact avec notre agence (Jean ROPERS : (Numéro supprimé)) pour plus d’informations sur la maison ou sur les démarches à suivre.
Lannilis
TERRAIN ET MAISONLannilis : maison de 4 pièces (94 m²) à vendrePROCHE CENTRE-VILLE – MAISON 4 PIÈCES NEUVEEn vente : sur le littoral et à deux pas de Brest, votre agence Maisons de l’Avenir Guipavas est ravie de vous présenter cette maison de 4 pièces de 94 m² proche du centre-ville de Lannilis (29870).Il s’agit d’une maison de 2 niveaux. Elle comporte trois chambres, une cuisine et deux salles de bains. La maison est neuve.Le terrain du bien est de 539 m².Il y a quatre établissements scolaires à moins de 10 minutes à pied et une crèche. Les nationales N12 et N265 sont accessibles à moins de 19 km. On trouve une bibliothèque, un tennis, des commerces, quatre boulangeries, deux supermarchés, deux boucheries-charcuteries et un bureau de poste à quelques minutes. Le marché Place Leclerc a lieu tous les mercredis.Il est proposé à l’achat pour 316 913 €.Contactez Sami ALKIS pour tout renseignement sur la maison ou sur les modalités de vente. Maisons de l’Avenir Guipavas est là pour vous accompagner dans toutes vos démarches.
Lannilis
TERRAINVENTE : terrain de 539 m² à LannilisPROCHE CENTRE-VILLE – PROCHE DE BRESTÀ Lannilis (29870) à vendre sur le littoral et à quelques kilomètres de Brest, donnez vie à votre projet immobilier sur ce terrain de 539 m². Il bénéficie d’une exposition sud-ouest. Il est situé non loin du centre-ville. Quatre établissements scolaires se trouvent à moins de 10 minutes à pied, tout comme une crèche. Les nationales N12 et N265 sont accessibles à moins de 19 km. Il y a une bibliothèque, un tennis, des commerces, quatre boulangeries, deux supermarchés, une épicerie et un bureau de poste à quelques minutes. Ne manquez pas le marché Place Leclerc tous les mercredis.Ce terrain est proposé à l’achat pour 84 500 €. Contactez Sami ALKIS pour tout renseignement sur ce terrain, sur les modalités de vente ou sur les démarches à suivre. Maisons de l’Avenir Guipavas vous accompagne dans tous vos projets immobiliers et à toutes les étapes de votre projet.
Lannilis
TERRAIN ET MAISONVENTE : maison T4 (89 m²) à LannilisPROCHE CENTRE-VILLE – MAISON 4 PIÈCES NEUVEÀ vendre : localisée à quelques kilomètres de la mer et à deux pas de Brest, venez découvrir cette maison de 4 pièces de 89 m² proche du centre-ville de Lannilis (29870). Son intérieur se divise en trois chambres, une cuisine et deux salles de bains.Le terrain de la propriété s’étend sur 539 m².Cette maison possède 2 niveaux. Elle est neuve.Il y a quatre établissements scolaires à moins de 10 minutes à pied et une crèche. Les nationales N12 et N265 sont accessibles à moins de 19 km. On trouve une bibliothèque, un tennis, des commerces, quatre boulangeries, deux supermarchés, une épicerie et deux boucheries-charcuteries à proximité. Enfin, le marché Place Leclerc a lieu tous les mercredis.Elle est à vendre pour la somme de 315 817 €.N’hésitez pas à prendre contact avec Sami ALKIS pour obtenir de plus amples renseignements sur la maison, sur les démarches à suivre ou sur les modalités de vente. Maisons de l’Avenir Guipavas est là pour vous accompagner dans tous vos projets immobiliers.
L’actualité immobilière à Bourg-Blanc
27/11/2023
02/11/2023
30/10/2023
20/10/2023
16/10/2023
16/10/2023