Maison à construire à Lannilis (29870)
Images
Description
Lannilis : maison de 4 pièces (94 m²) à vendre
PROCHE CENTRE-VILLE - MAISON 4 PIÈCES NEUVE
En vente : sur le littoral et à deux pas de Brest, votre agence Maisons de l'Avenir Guipavas est ravie de vous présenter cette maison de 4 pièces de 94 m² proche du centre-ville de Lannilis (29870).
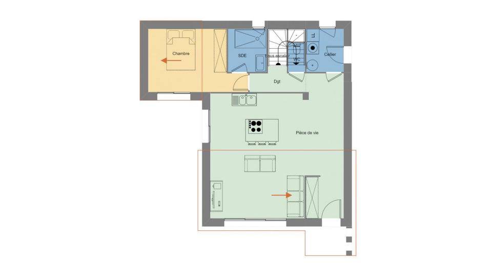
Il s'agit d'une maison de 2 niveaux. Elle comporte trois chambres, une cuisine et deux salles de bains. La maison est neuve.
Le terrain du bien est de 539 m².
Il y a quatre établissements scolaires à moins de 10 minutes à pied et une crèche. Les nationales N12 et N265 sont accessibles à moins de 19 km. On trouve une bibliothèque, un tennis, des commerces, quatre boulangeries, deux supermarchés, deux boucheries-charcuteries et un bureau de poste à quelques minutes. Le marché Place Leclerc a lieu tous les mercredis.
Il est proposé à l'achat pour 316 913 €.
Contactez Sami ALKIS pour tout renseignement sur la maison ou sur les modalités de vente. Maisons de l'Avenir Guipavas est là pour vous accompagner dans toutes vos démarches.
Logement susceptibles de vous intéresser
Nous vous proposons de découvrir aussi cette sélection de logements situés à moins de 10km de Lannilis et qui seraient susceptibles de vous intéresser.
Guissény
TERRAIN ET MAISONDEVENEZ PROPRIÉTAIRE À GUISSÉNY – MAISON NEUVE RE2020 SUR-MESURE !Vivez dans un cadre de vie privilégié à Guissény, charmante commune dynamique du Nord-Finistère, à proximité des commerces, écoles et des plages du littoral.Profitez du calme de la campagne, tout en restant proche des services essentiels – un environnement idéal pour votre famille ! Votre future maison comprend 😮 3 chambres spacieuses et lumineuseso Un grand salon-séjour traversant, ouvert sur le jardino Une cuisine moderne et fonctionnelleo Salle de bain et WC séparéso Le tout sur un terrain de 453 m², bien orienté Les atouts du projet 😮 Maison neuve RE2020, à faible consommation d’énergieo Plan personnalisable selon vos besoinso Cadre de vie paisible, proche du littoralo Prestations de qualité, finitions soignées Prix indiqué hors frais Photos non contractuelles à titre d’illustration Accession à la propriété possible avec ou sans apportNe manquez pas cette belle opportunité de devenir propriétaire d’une maison neuve moderne et économique à Guissény ! Contactez-nous dès maintenant pour découvrir les plans et étudier votre projet personnalisé.
Guissény
TERRAINGuissény : terrain de 867 m² en venteTerrain borné et viabiliséHors lotissementExposition sud-ouestEnvironnement calme et agréable, proximité immédiate des commerces, écoles et services.Accès rapide aux plages et aux sentiers côtiers, cadre de vie privilégié entre mer et campagne.Ce terrain est une opportunité rare pour concrétiser votre projet de construction dans un secteur recherché du Finistère Nord.Il est à vendre pour la somme de 110 000€. N’hésitez pas à prendre contact avec notre agence (Aurélie CAGNARD : (Numéro supprimé)) pour toute question sur le terrain, sur les modalités de vente ou sur les démarches à suivre. Maisons de l’Avenir Guipavas est là pour vous accompagner dans tous vos projets immobiliers.
Guissény
TERRAIN ET MAISONGuissény : maison de 3 pièces (72 m²) en venteCette belle maison traditionnelle aux lignes contemporaines offre 72m² habitable . Au rez-de-chaussée, elle dispose d’une belle pièce de vie de 34m² offrant un maximum de lumière, d’un wc et d’un cellier. A l’étage on retrouve 2 chambres, une salle de bains, et un WC. L’orientation de cette maison vous permettra de bénéficier d’un maximum de lumière et de chaleur naturelle pour davantage d’économies et de douceur de vivre.Elle est à vendre pour la somme de 268 400 €.Prenez contact avec Aurélie CAGNARD ((Numéro supprimé)) pour obtenir de plus amples informations sur cette maison ou sur les modalités de vente.
Guissény
TERRAIN ET MAISONMaison de 6 pièces (167 m²) à vendre à GuissényCette belle maison traditionnelle aux lignes contemporaines offre 167m² habitable . Au rez-de-chaussée, elle dispose d’une belle pièce de vie offrant un maximum de lumière, d’une grande suite parentale avec sa salle d’eau, d’un wc, d’un très grand cellier et d’un garage.A l’étage on retrouve 3 chambres, une salle de bains, un WC et une mezzanine. L’orientation de cette maison vous permettra de bénéficier d’un maximum de lumière et de chaleur naturelle pour davantage d’économies et de douceur de vivre.Elle est proposée à l’achat pour 542 500 €.N’hésitez pas à prendre contact avec Aurélie CAGNARD ((Numéro supprimé)) pour toute question sur cette maison, sur les modalités de vente ou sur les démarches à suivre.
Guissény
TERRAIN ET MAISONVENTE d’une maison F4 (124 m²) à GuissényCette belle maison traditionnelle aux lignes contemporaines offre 124m² habitable .Elle dispose d’une belle pièce de vie de offrant un maximum de lumière, d’une grande suite parentale avec sa salle d’eau, 2 autres chambres avec une salle de bain, deux wc, d’un très grand cellier, un garage.L’orientation de cette maison vous permettra de bénéficier d’un maximum de lumière et de chaleur naturelle pour davantage d’économies et de douceur de vivre.Elle est à vendre pour la somme de 410 200 €.Prenez contact avec notre agence (Aurélie CAGNARD : (Numéro supprimé)) pour plus d’informations sur cette maison. Maisons de l’Avenir Guipavas vous accompagne à toutes les étapes de l’achat et dans toutes vos démarches.
Guissény
TERRAIN ET MAISONVENTE : maison de 4 pièces (120 m²) à GuissényNouveau Murs Ossature BoisTrès beau plain-pied aux lignes traditionnelles, agencé astucieusement pour un maximum de luminosité, pièce de vie ouverte et volumineuse, 3 chambres dont une suite parentale, un cellier et son garage.Aux normes RE2020, peu énergivore, elle vous ravira par son confort de vie Elle est proposée à l’achat pour 401 000 €.Contactez notre agence (Aurélie CAGNARD : (Numéro supprimé)) pour obtenir de plus amples informations sur la maison. Faites de vos projets immobiliers une réalité avec Maisons de l’Avenir Guipavas.
Guissény
TERRAINVENTE d’un terrain de 337 m² à PlouguerneauCENTRE-VILLE – EXPOSE SUD. A 5 Minutes de la mer et des plagesTerrain de 337 m² en vente à quelques kilomètres de la mer et à 22 km de Brest. Ce terrain se situe dans le centre-ville de GUISSENYCe terrain est à vendre pour la somme de 40 000 €. Contactez notre agence (ROPERS Jean : (Numéro supprimé)) pour plus d’informations sur ce terrain. Maisons de l’Avenir Guipavas vous accompagne à toutes les étapes de votre projet et dans toutes vos démarches.
Guissény
TERRAIN ET MAISONVENTE : maison T3 (60 m²) à GuissényCENTRE-VILLE – MAISON 3 PIÈCES NEUVEEn vente à quelques kilomètres de la mer et à 24 km de Brest, notre agence Maisons de l’Avenir Guipavas est ravie de vous proposer cette maison de 3 pièces de plain-pied de 60 m² en plein coeur de Guissény (29880).Elle inclut deux chambres, une cuisine et une salle de bains. Elle est proposée à l’achat pour 191 000 €.Prenez contact avec Jean ROPERS ((Numéro supprimé)) pour toute question sur la maison, sur les démarches à suivre ou sur les modalités de vente.
Guissény
TERRAIN ET MAISONGuissény : maison de 4 pièces (75 m²) à vendreCENTRE-VILLE – MAISON 4 PIÈCES NEUVESur le littoral et à 24 km de Brest, ayez le coup de coeur pour cette maison de 4 pièces de plain-pied de 75 m² et de 337 m² de terrain en vente, dans le centre-ville de Guissény (29880).Son intérieur propose trois chambres, une cuisine et une salle de bainsElle est à vendre pour la somme de 215 000 €.Contactez notre agence (Jean ROPERS : (Numéro supprimé)) pour toute question sur la maison, sur les démarches à suivre ou sur les modalités de vente. Maisons de l’Avenir Guipavas est là pour vous accompagner à toutes les étapes de l’achat.
L’actualité immobilière à Lannilis
27/11/2023
02/11/2023
30/10/2023
20/10/2023
16/10/2023
16/10/2023