Maison à construire à Cléder (29233)
Images
Description
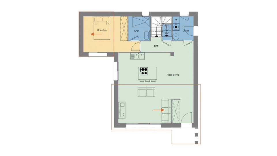
Cléder : maison de 4 pièces (94 m²) en vente
PROCHE CENTRE-VILLE - MAISON 4 PIÈCES NEUVE
Sur le littoral, nous vous présentons cette maison de 4 pièces de 94 m² en vente proche du centre-ville de Cléder (29233). Son intérieur dispose de trois chambres, d'une cuisine et de deux salles de bains.
Le terrain de la propriété s'étend sur 600 m².
Il s'agit d'une maison de 2 niveaux. Elle est neuve.
L'École Primaire Publique Per Jakez Helias, l'École Primaire Privée Saint Joseph et le Collège Privé Notre-Dame d'Espérance se trouvent à moins de 10 minutes à pied, tout comme une structure d'accueil pour les tout-petits. Côté transports en commun, il y a la gare Saint-Pol-de-Léon à moins de 10 minutes en voiture. La nationale N12 est accessible à 17 km. On trouve deux boulangeries, trois commerces, un supermarché, une épicerie et un bureau de poste à proximité du bien.
Son prix de vente est de 341 987 €.
N'hésitez pas à prendre contact avec notre agence (Sami ALKIS) pour tout renseignement sur la maison. Maisons de l'Avenir Guipavas est là pour vous accompagner dans tous vos projets immobiliers.
Logement susceptibles de vous intéresser
Nous vous proposons de découvrir aussi cette sélection de logements situés à moins de 10km de Cléder et qui seraient susceptibles de vous intéresser.
Cléder
TERRAINCléder : terrain de 600 m² à vendrePROCHE CENTRE-VILLEÀ Cléder (29233) en vente à quelques kilomètres de la mer, découvrez ce terrain de 600 m². Il bénéficie d’une exposition sud-ouest. Il se trouve non loin du centre-ville. Il y a l’École Primaire Publique Per Jakez Helias, l’École Primaire Privée Saint Joseph et le Collège Privé Notre-Dame d’Espérance à moins de 10 minutes à pied et une crèche. Niveau transports en commun, on trouve la gare Saint-Pol-de-Léon à moins de 10 minutes en voiture. La nationale N12 est accessible à 17 km. Il y a deux boulangeries, trois commerces, un supermarché, un bureau de poste et une épicerie dans les environs.Ce terrain est à vendre pour la somme de 88 000 €. Contactez Sami ALKIS pour plus d’informations sur le terrain, sur les modalités de vente ou sur les démarches à suivre.
Cléder
TERRAIN ET MAISONCléder : maison de 4 pièces (94 m²) en ventePROCHE CENTRE-VILLE – MAISON 4 PIÈCES NEUVESur le littoral, nous vous présentons cette maison de 4 pièces de 94 m² en vente proche du centre-ville de Cléder (29233). Son intérieur dispose de trois chambres, d’une cuisine et de deux salles de bains.Le terrain de la propriété s’étend sur 600 m².Il s’agit d’une maison de 2 niveaux. Elle est neuve.L’École Primaire Publique Per Jakez Helias, l’École Primaire Privée Saint Joseph et le Collège Privé Notre-Dame d’Espérance se trouvent à moins de 10 minutes à pied, tout comme une structure d’accueil pour les tout-petits. Côté transports en commun, il y a la gare Saint-Pol-de-Léon à moins de 10 minutes en voiture. La nationale N12 est accessible à 17 km. On trouve deux boulangeries, trois commerces, un supermarché, une épicerie et un bureau de poste à proximité du bien.Son prix de vente est de 341 987 €.N’hésitez pas à prendre contact avec notre agence (Sami ALKIS) pour tout renseignement sur la maison. Maisons de l’Avenir Guipavas est là pour vous accompagner dans tous vos projets immobiliers.
Cléder
TERRAIN ET MAISONVENTE d’une maison de 3 pièces (85 m²) à CléderPROCHE CENTRE-VILLE – MAISON 3 PIÈCES NEUVEÀ quelques kilomètres de la mer, notre agence Maisons de l’Avenir Guipavas est heureuse de vous proposer cette maison de 3 pièces de plain-pied de 85 m² et de 600 m² de terrain proche du centre-ville de Cléder (29233). Elle propose deux chambres, une cuisine et une salle de bains.La maison est neuve.L’École Primaire Publique Per Jakez Helias, l’École Primaire Privée Saint Joseph et le Collège Privé Notre-Dame d’Espérance sont implantés à moins de 10 minutes à pied, tout comme une structure d’accueil pour les tout-petits. Niveau transports, on trouve la gare Saint-Pol-de-Léon à moins de 10 minutes en voiture. Il y a un accès à la nationale N12 à 17 km. Il y a deux boulangeries, trois commerces, un supermarché, deux boucheries-charcuteries et un bureau de poste à quelques minutes du bien.Elle est proposée à l’achat pour 324 951 €.Prenez contact avec notre constructeur (ALKIS Sami) pour obtenir de plus amples renseignements sur la maison. Concrétisez vos projets immobiliers avec Maisons de l’Avenir Guipavas.
Cléder
TERRAIN ET MAISONMaison T5 (135 m²) en vente à CléderPROCHE CENTRE-VILLE – MAISON 5 PIÈCES NEUVEEn vente : située sur le littoral, proche du centre-ville de Cléder (29233), votre agence Maisons de l’Avenir Guipavas est heureuse de vous présenter cette maison de 5 pièces de 135 m² et de 600 m² de terrain. Son intérieur est composé de quatre chambres, d’une cuisine et de deux salles de bains.Cette maison compte 2 niveaux. Elle est neuve.On trouve l’École Primaire Publique Per Jakez Helias, l’École Primaire Privée Saint Joseph et le Collège Privé Notre-Dame d’Espérance à moins de 10 minutes à pied et une crèche. Niveau transports, il y a la gare Saint-Pol-de-Léon à moins de 10 minutes en voiture. On trouve un accès à la nationale N12 à 17 km. On trouve deux boulangeries, trois commerces, un supermarché, deux boucheries-charcuteries et une épicerie à proximité.Elle est proposée à l’achat pour 412 911 €.N’hésitez pas à prendre contact avec Sami ALKIS pour toute question sur la maison. Maisons de l’Avenir Guipavas est là pour vous accompagner dans tous vos projets immobiliers.
Cléder
TERRAIN ET MAISONVENTE d’une maison F4 (75 m²) à CléderPROCHE CENTRE-VILLE – MAISON 4 PIÈCES NEUVEÀ vendre sur le littoral, nous vous proposons cette maison de 4 pièces de plain-pied de 75 m², proche du centre-ville de Cléder (29233). Son intérieur compte trois chambres, une cuisine et une salle de bains.Le terrain de la maison s’étend sur 600 m².Cette maison est neuve.On trouve l’École Primaire Publique Per Jakez Helias, l’École Primaire Privée Saint Joseph et le Collège Privé Notre-Dame d’Espérance à moins de 10 minutes à pied et une crèche. Niveau transports en commun, il y a la gare Saint-Pol-de-Léon à moins de 10 minutes en voiture. On trouve un accès à la nationale N12 à 17 km. On trouve deux boulangeries, trois commerces, un supermarché, un bureau de poste et deux boucheries-charcuteries à quelques minutes.Elle est proposée à l’achat pour 261 523 €.Contactez Sami ALKIS pour toute information sur le bien. Maisons de l’Avenir Guipavas vous accompagne à toutes les étapes de votre projet et dans tous vos projets immobiliers.
Plouzévédé
TERRAINTerrain de 817 m² en vente à PlouzévédéÀ vendre, magnifique terrain de 817m² idéalement situé à Plouzévédé, une charmante ville qui allie parfaitement le calme de la campagne et la proximité des commodités urbaines.Ce terrain, offrant une surface généreuse, présente une opportunité unique de construire la maison de vos rêves. L’emplacement est un véritable atout. En effet, le terrain se trouve dans la paisible et dynamique commune de Plouzévédé offrant un cadre de vie agréable. Vous serez à proximité de toutes les commodités nécessaires au quotidien : écoles, commerces, services de santé.Vous pourrez profiter de nombreuses activités de plein air et de belles balades dans la nature environnante.Enfin, la parcelle bénéficie d’une belle exposition, garantissant une luminosité optimale tout au long de la journée.Ce terrain est une véritable opportunité à saisir pour ceux qui souhaitent concrétiser un projet de construction dans un cadre de vie privilégié. Il est à vendre pour la somme de 39 500 €. N’hésitez pas à prendre contact avec notre agence (CAGNARD Aurélie : (Numéro supprimé)) pour plus de renseignements sur le terrain, sur les démarches à suivre ou sur les modalités de vente. Maisons de l’Avenir Guipavas est là pour vous accompagner dans tous vos projets immobiliers.
Plouzévédé
TERRAIN ET MAISONVENTE d’une maison de 5 pièces (85 m²) à PlouzévédéCette belle maison traditionnelle aux lignes contemporaines offre 85m² habitable .elle dispose d’une belle pièce de vie offrant un maximum de lumière, de 4 chambres, une salle d’eau, d’un wc, un cellier et d’un garage.L’orientation de cette maison vous permettra de bénéficier d’un maximum de lumière et de chaleur naturelle pour davantage d’économies et de douceur de vivre.Son prix de vente est de 241 500 €.N’hésitez pas à prendre contact avec notre agence (CAGNARD Aurélie : (Numéro supprimé)) pour tout renseignement sur cette maison et sur les démarches à suivre. Maisons de l’Avenir Guipavas est là pour vous accompagner dans tous vos projets immobiliers.
Plouzévédé
TERRAIN ET MAISONVENTE : maison de 5 pièces (140 m²) à PlouzévédéLe terrain de la propriété est de 817 m².Cette belle maison traditionnelle aux lignes contemporaines offre 140 m² habitable . Au rez-de-chaussée, elle dispose d’une belle pièce de vie offrant un maximum de lumière, d’une grande suite parentale avec sa salle d’eau, d’un wc et d’un très grand cellier. A l’étage on retrouve 3 chambres, une salle de bains, et un WC. L’orientation de cette maison vous permettra de bénéficier d’un maximum de lumière et de chaleur naturelle pour davantage d’économies et de douceur de vivre.Elle est à vendre pour la somme de 385 500 €.Prenez contact avec Aurélie CAGNARD ((Numéro supprimé)) pour obtenir de plus amples renseignements sur cette maison. Faites de vos projets immobiliers une réalité avec Maisons de l’Avenir Guipavas.
Plouzévédé
TERRAIN ET MAISONMaison F5 (99 m²) en vente à PlouzévédéCette belle maison traditionnelle aux lignes contemporaines offre 99m² habitable .Au rez-de-chaussée, elle dispose d’une belle pièce de vie offrant un maximum de lumière, d’une grande suite parentale avec sa salle d’eau, d’un wc et d’un garage.A l’étage on retrouve 2 chambres, une salle de bains, et un WC. L’orientation de cette maison vous permettra de bénéficier d’un maximum de lumière et de chaleur naturelle pour davantage d’économies et de douceur de vivre.Elle est à vendre pour la somme de 272 300 €.Prenez contact avec Aurélie CAGNARD ((Numéro supprimé)) pour tout renseignement sur cette maison ou sur les modalités de vente. Maisons de l’Avenir Guipavas est là pour vous accompagner à toutes les étapes de l’achat.
L’actualité immobilière à Cléder
27/11/2023
02/11/2023
30/10/2023
20/10/2023
16/10/2023
16/10/2023