Maison à construire à Concarneau (29900)
Images
Description
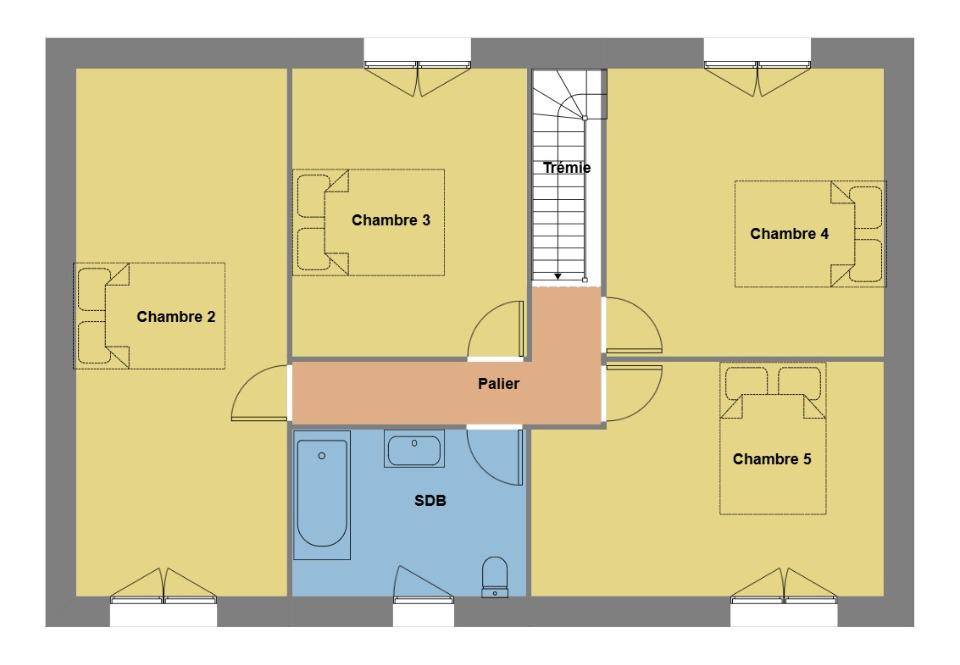
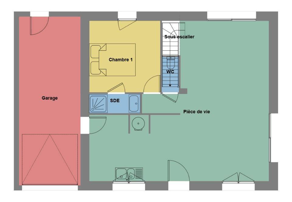
VENTE : maison F6 (135 m²) à Concarneau
MAISON 6 PIÈCES NEUVE
Sur le littoral atlantique, Maisons de l'Avenir Quimper vous présente en vente à Concarneau (29900), cette maison de 6 pièces de 135 m².
C'est une maison de 2 niveaux. Son intérieur propose cinq chambres, une cuisine et deux salles de bains.
Le terrain du bien s'étend sur 1 000 m².
Son prix de vente est de 522 000 €.
N'hésitez pas à prendre contact avec notre agence (Mathieu DEROUET : (Numéro supprimé)) pour toute question sur la maison. Maisons de l'Avenir Quimper est là pour vous accompagner à toutes les étapes de votre projet.
Logement susceptibles de vous intéresser
Nous vous proposons de découvrir aussi cette sélection de logements situés à moins de 10km de Concarneau et qui seraient susceptibles de vous intéresser.
Saint-Yvi
TERRAINSaint-Yvi : terrain de 505 m² à vendrePROCHE CENTREÀ 10 km de la côte atlantique et à deux pas de Quimper à Saint-Yvi (29140), grand terrain. Gare de Rosporden à moins de 10 minutes en voiture. On trouve un accès à la nationale N165 à 6 km. Il est à vendre pour la somme de 59 000 €. Prenez contact avec Mathieu DEROUET (tél : (Numéro supprimé)) pour toute information sur le terrain, sur les démarches à suivre ou sur les modalités de vente.
Saint-Yvi
TERRAIN ET MAISONMaison T4 (70 m²) en vente à Saint-YviMAISON 4 PIÈCES NEUVE – PROCHE DE QUIMPERÀ vendre : à 10 km de la côte atlantique et à quelques kilomètres de Quimper, Maisons de l’Avenir Quimper vous propose à Saint-Yvi (29140), cette maison de 4 pièces de 70 m² et de 505 m² de terrain.C’est une maison de 2 niveaux. Son intérieur est composé de trois chambres, d’une cuisine et d’une salle de bains. Son prix de vente est de 226 000 €.Prenez contact avec Mathieu DEROUET (tél : (Numéro supprimé)) pour plus de renseignements sur cette maison, sur les démarches à suivre ou sur les modalités de vente. Faites de vos projets immobiliers une réalité avec Maisons de l’Avenir Quimper.
Saint-Yvi
TERRAIN ET MAISONMaison de 4 pièces (140 m²) à vendre à Saint-YviMAISON 4 PIÈCES NEUVE – PROCHE DE QUIMPEREn vente : à 10 km de la côte atlantique et à 13 km de Quimper, nous sommes heureux de vous proposer cette maison de 4 pièces de 140 m² à Saint-Yvi (29140). Son intérieur propose quatre chambres, une cuisine et deux salles de bains.Le terrain de la propriété est de 505 m².Il s’agit d’une maison de 2 niveaux. Elle est à vendre pour la somme de 402 000 €.Contactez notre agence (Mathieu DEROUET : (Numéro supprimé)) pour tout renseignement sur cette maison. Maisons de l’Avenir Quimper vous accompagne dans tous vos projets immobiliers et à toutes les étapes de votre projet.
Saint-Yvi
TERRAIN ET MAISONMaison F6 (120 m²) à vendre à Saint-YviPROCHE DE QUIMPER – MAISON 6 PIÈCES NEUVEEn vente : située à 10 km de la côte atlantique et à 13 km de Quimper, nous sommes ravis de vous présenter à Saint-Yvi (29140), cette maison de 6 pièces de 120 m². Elle se divise en cinq chambres, une cuisine et deux salles de bains.Le terrain du bien est de 505 m².Il s’agit d’une maison de 2 niveaux. Elle est à vendre pour la somme de 358 000 €.Contactez notre agence (DEROUET Mathieu : (Numéro supprimé)) pour toute information sur cette maison, sur les modalités de vente ou sur les démarches à suivre. Maisons de l’Avenir Quimper est là pour vous accompagner à toutes les étapes de votre projet.
Saint-Yvi
TERRAIN ET MAISONSaint-Yvi : maison F3 (95 m²) à vendrePROCHE DE QUIMPER – MAISON 3 PIÈCES NEUVEEn vente : sur le littoral atlantique et à 13 km de Quimper, nous sommes heureux de vous proposer cette maison de 3 pièces de plain-pied de 95 m² à Saint-Yvi (29140). Son intérieur offre trois chambres, une cuisine et une salle de bains.Le terrain de la propriété s’étend sur 505 m².Elle est à vendre pour la somme de 303 000 €.Prenez contact avec notre agence (DEROUET Mathieu : (Numéro supprimé)) pour plus d’informations sur la maison, sur les modalités de vente et sur les démarches à suivre.
Saint-Yvi
TERRAIN ET MAISONMaison de 4 pièces (85 m²) en vente à Saint-YviMAISON 4 PIÈCES OSSATURE BOIS – PROCHE DE QUIMPERÀ vendre à 10 km de la côte atlantique et à 13 km de Quimper, venez découvrir à Saint-Yvi (29140), cette maison de 4 pièces de plain-pied de 85 m² et de 505 m² de terrain.Son intérieur se divise en trois chambres, une cuisine et une salle de bains.Son prix de vente est de 279 300 €.Prenez contact avec Mathieu DEROUET (tél : (Numéro supprimé)) pour toute information sur ce bien ou sur les modalités de vente.
Trégunc
TERRAINVENTE : terrain de 830 m² à TréguncDANS UN CADRE CHAMPETRE, parfait pour les actifs cherchant le calme de la campagne avec un accès rapide à la voie expressÀ vendre sur le littoral atlantique et à quelques kilomètres de Quimper à Trégunc (29910), grand terrain. Réalisez-y la maison de vos rêves. Il est à vendre pour la somme de 118 000 €. Contactez notre agence (Mathieu DEROUET : (Numéro supprimé)) pour toute information sur ce terrain, sur les démarches à suivre et sur les modalités de vente.
Trégunc
TERRAIN ET MAISONMaison F5 (160 m²) en vente à TréguncPROCHE DE QUIMPER – MAISON 5 PIÈCES NEUVEÀ 5 km de l’océan Atlantique et à deux pas de Quimper, en vente à Trégunc (29910), notre agence Maisons de l’Avenir Quimper est ravie de vous proposer cette maison de 5 pièces de 160 m². Elle compte quatre chambres, une cuisine et deux salles de bains.Le terrain du bien s’étend sur 830 m².C’est une maison de 2 niveaux. Son prix de vente est de 526 000 €.Contactez Mathieu DEROUET (tél : (Numéro supprimé)) pour toute question sur la maison ou sur les modalités de vente. Maisons de l’Avenir Quimper vous accompagne dans tous vos projets immobiliers et à toutes les étapes de l’achat.
Trégunc
TERRAIN ET MAISONTrégunc : maison F4 (85 m²) en venteMAISON 4 PIÈCES NEUVE – PROCHE DE QUIMPERSur le littoral atlantique et à quelques kilomètres de Quimper, notre agence Maisons de l’Avenir Quimper est heureuse de vous présenter cette maison de 4 pièces de 85 m² en vente à Trégunc (29910).Cette maison compte 2 niveaux. Elle propose trois chambres, une cuisine et une salle de bains.Son prix de vente est de 316 500 €.N’hésitez pas à prendre contact avec notre constructeur (Mathieu DEROUET : (Numéro supprimé)) pour toute information sur la maison. Faites de vos projets immobiliers une réalité avec Maisons de l’Avenir Quimper.
L’actualité immobilière à Concarneau
27/11/2023
02/11/2023
30/10/2023
20/10/2023
16/10/2023
16/10/2023