Maison à construire à Landéda (29870)
Images
Description
🏡 À Vendre : Terrain de 589m² a Landéda - 66 000€ 🌊
Découvrez ce magnifique terrain de 589m², idéalement situé dans un petit lotissement paisible sur la commune de Landéda à deux pas de la mer. 🌅 Ce terrain offre un cadre exceptionnel pour construire la maison de vos rêves, alliant tranquillité et proximité avec les plages. 🏖️
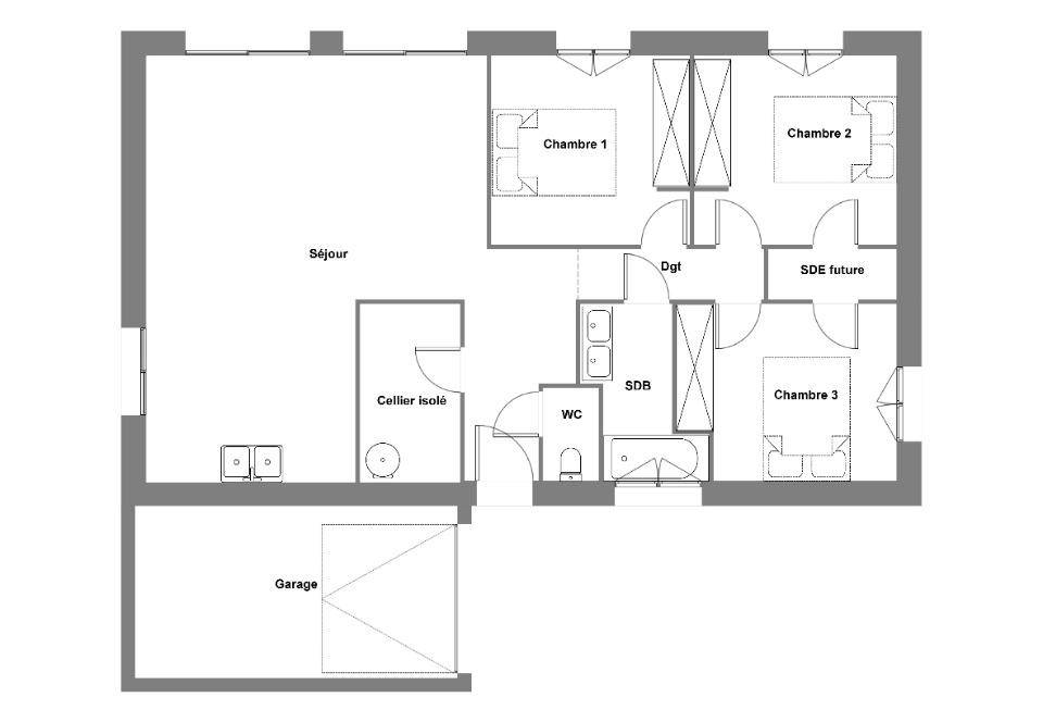
Maisons de l'Avenir vous propose un modèle sur plan de 70m² plein pief, comprenant 3 chambres dont une suite parentale, un vaste espace de vie de 36m², deux salles de bains, et un grand garage. 🛏️🍽️🚿
Les plans sont entièrement modifiables, permettant ainsi une maison sur mesure dans tous les aspects, conçue dans le cadre de notre gamme de maisons passives Bâti Activ. 🏠🌿 Cette maison a été pensée pour maximiser les apports de lumière naturelle, favorisant ainsi les gains énergétiques. 🌞⚡
L'opération globale terrain + maison est de 235 000€. 💰
Ce bien rare et recherché est une opportunité à ne pas manquer. ⭐
Pour plus d'informations ou pour organiser une visite, contactez Erwan TILLY 📞. Ne tardez pas, ce terrain risque de partir rapidement ! ⏳
Logement susceptibles de vous intéresser
Nous vous proposons de découvrir aussi cette sélection de logements situés à moins de 10km de Landéda et qui seraient susceptibles de vous intéresser.
Landéda
TERRAINDEVENEZ PROPRIÉTAIRE D’UN TERRAIN À LANDEDA !Vivez dans un cadre de vie privilégié à Landéda, charmante commune côtière du Nord-Finistère, idéalement située entre Lannilis et Plouguerneau.Profitez du calme de la campagne et de la proximité du littoral, tout en restant proche des commerces, écoles et services – un environnement idéal pour votre futur projet ! Votre terrain comprend 😮 Une surface de 605 m², bien orientéeo Possibilité de construire la maison de vos rêves selon vos envies Les atouts du projet 😮 Terrain viabilisé ou proche des réseauxo Cadre de vie recherché, à proximité des plages, du port et du littoral nordo Liberté de construction, avec plan personnalisable selon vos besoins Prix indiqué hors frais Photos non contractuelles à titre d’illustration Accession possible avec ou sans apportNe manquez pas cette opportunité unique de devenir propriétaire d’un terrain à Landéda et de réaliser votre projet sur-mesure ! Contactez-nous dès maintenant pour plus d’informations et étudier votre projet.
Lampaul-Ploudalmézeau
TERRAIN ET MAISON📍 À VENDRE – Terrain constructible 622 m² à Lampaul-Ploudalmézeau (99800€)À saisir rapidement !Dans un petit lotissement intimiste de seulement 4 lots, découvrez ce beau terrain constructible de 622 m², situé à 1 km de la plage des Trois Moutons.🌊 Atouts du terrain :Exposition idéale avec vue mer dégagéeEnvironnement calme et préservé 🌿Dernier lot disponible – libre de constructeurCadre parfait pour une résidence principale ou secondaire💡 Nous vous proposons sur ce terrain un projet de maison de 93 m², au style contemporain comprenant :4 chambres dont une suite parentale 🛏️1 salles de bains avec douche et baignoire 🚿Un vaste espace de vie de plus de 35 m² lumineux ☀️Un grand garage 🚗Une conception intégrée dans notre concept Maisons Bâti Activ, favorisant l’ensoleillement naturel et réduisant vos coûts énergétiques 🌿⚡💰 Prix de l’opération Terrain + Maison : 330 000 €Ne tardez pas, cette opportunité rare ne restera pas longtemps sur le marché !📞 Contactez Erwan TILLY dès maintenant pour plus d’informations ou organiser une visite sur place.Maisons de l’avenir
Lampaul-Ploudalmézeau
TERRAIN ET MAISON📍 À VENDRE – Terrain constructible 622 m² à Lampaul-Ploudalmézeau (99800€)À saisir rapidement !Dans un petit lotissement intimiste de seulement 4 lots, découvrez ce beau terrain constructible de 622 m², situé à 1 km de la plage des Trois Moutons.🌊 Atouts du terrain :Exposition idéale avec vue mer dégagéeEnvironnement calme et préservé 🌿Dernier lot disponible – libre de constructeurCadre parfait pour une résidence principale ou secondaire💡 Nous vous proposons sur ce terrain un projet de maison de 140 m², au style traditionnel avec des touches contemporaines comprenant :4 chambres dont une suite parentale 🛏️2 salles de bains 🚿Un vaste espace de vie de plus de 55 m² lumineux ☀️Un grand garage 🚗Une conception intégrée dans notre concept Maisons Bâti Activ, favorisant l’ensoleillement naturel et réduisant vos coûts énergétiques 🌿⚡💰 Prix de l’opération Terrain + Maison : 450 000 €Ne tardez pas, cette opportunité rare ne restera pas longtemps sur le marché !📞 Contactez Erwan TILLY dès maintenant pour plus d’informations ou organiser une visite sur place.Maisons de l’avenir
Lampaul-Ploudalmézeau
TERRAIN ET MAISON📍 À VENDRE – Terrain constructible 622 m² à Lampaul-Ploudalmézeau (99800€)À saisir rapidement !Dans un petit lotissement intimiste de seulement 4 lots, découvrez ce beau terrain constructible de 622 m², situé à 1 km de la plage des Trois Moutons.🌊 Atouts du terrain :Exposition idéale avec vue mer dégagéeEnvironnement calme et préservé 🌿Dernier lot disponible – libre de constructeurCadre parfait pour une résidence principale ou secondaire💡 Nous vous proposons sur ce terrain un projet de maison de 100 m² de plein pied, au style contemporain comprenant :3 chambres dont une suite parentale 🛏️1 salles de bains avec douche et baignoire 🚿Un vaste espace de vie de plus de 45 m² lumineux ☀️Un grand garage 🚗Une conception intégrée dans notre concept Maisons Bâti Activ, favorisant l’ensoleillement naturel et réduisant vos coûts énergétiques 🌿⚡💰 Prix de l’opération Terrain + Maison : 340 000 €Ne tardez pas, cette opportunité rare ne restera pas longtemps sur le marché !📞 Contactez Erwan TILLY dès maintenant pour plus d’informations ou organiser une visite sur place.Maisons de l’avenir
Lampaul-Ploudalmézeau
TERRAIN📍 À VENDRE – Terrain constructible 622 m² à Lampaul-Ploudalmézeau (99800€)À saisir rapidement !Dans un petit lotissement intimiste de seulement 4 lots, découvrez ce beau terrain constructible de 622 m², situé à 1 km de la plage des Trois Moutons.🌊 Atouts du terrain :Exposition idéale avec vue mer dégagéeEnvironnement calme et préservé 🌿Dernier lot disponible – libre de constructeurCadre parfait pour une résidence principale ou secondaireNe tardez pas, cette opportunité rare ne restera pas longtemps sur le marché !📞 Contactez Erwan TILLY dès maintenant pour plus d’informations ou organiser une visite sur place.Maisons de l’avenir
Lampaul-Ploudalmézeau
TERRAIN ET MAISON📍 À VENDRE – Terrain constructible 622 m² à Lampaul-Ploudalmézeau (99800€)À saisir rapidement !Dans un petit lotissement intimiste de seulement 4 lots, découvrez ce beau terrain constructible de 622 m², situé à 1 km de la plage des Trois Moutons.🌊 Atouts du terrain :Exposition idéale avec vue mer dégagéeEnvironnement calme et préservé 🌿Dernier lot disponible – libre de constructeurCadre parfait pour une résidence principale ou secondaire💡 Nous vous proposons sur ce terrain un projet de maison de 150 m², au style contemporain comprenant :4 chambres dont une suite parentale 🛏️2 salles de bains 🚿Un vaste espace de vie de plus de 55 m² lumineux ☀️Un grand garage 🚗Une conception intégrée dans notre concept Maisons Bâti Activ, favorisant l’ensoleillement naturel et réduisant vos coûts énergétiques 🌿⚡💰 Prix de l’opération Terrain + Maison : 470 000 €Ne tardez pas, cette opportunité rare ne restera pas longtemps sur le marché !📞 Contactez Erwan TILLY dès maintenant pour plus d’informations ou organiser une visite sur place.Maisons de l’avenir
Plouguerneau
TERRAIN ET MAISONVENTE : maison de 4 pièces (75 m²) à PlouguerneauMAISON 4 PIÈCES NEUVE – PROCHE DE BRESTÀ vendre à quelques kilomètres de la mer et à 22 km de Brest, nous sommes ravis de vous présenter cette maison de 4 pièces de 75 m² à Plouguerneau (29880). Son intérieur offre trois chambres, une cuisine et une salle de bains.Le terrain de la propriété s’étend sur 344 m².Il s’agit d’une maison de 2 niveaux. Son prix de vente est de 229 000 €.Contactez notre agence (ROPERS Jean : (Numéro supprimé)) pour toute information sur cette maison. Donnez vie à vos projets immobiliers avec Maisons de l’Avenir Guipavas.
Plouguerneau
TERRAINDEVENEZ PROPRIÉTAIRE D’UN TERRAIN À PLOUGUERNEAU !Vivez dans un cadre de vie privilégié à Plouguerneau, commune recherchée du Nord-Finistère, connue pour son littoral exceptionnel et sa qualité de vie.Profitez d’un environnement paisible, proche des commerces, écoles, services et plages – un cadre idéal pour réaliser votre futur projet ! Votre terrain comprend 😮 Une surface de 505 m², bien orientéeo Possibilité de construire la maison qui vous ressemble, selon vos envies Les atouts du projet 😮 Terrain viabilisé ou proche des réseauxo Cadre de vie côtier, à proximité immédiate du littoral nordo Liberté de construction, avec plan personnalisable selon vos besoins Prix indiqué hors frais Photos non contractuelles à titre d’illustration Accession possible avec ou sans apportNe manquez pas cette opportunité unique de devenir propriétaire d’un terrain à Plouguerneau et de réaliser votre projet sur-mesure ! Contactez-nous dès maintenant pour plus d’informations et étudier votre projet.
Plouguerneau
TERRAIN ET MAISONVENTE d’une maison F4 (90 m²) à PlouguerneauMAISON 4 PIÈCES NEUVE – PROCHE DE BRESTÀ vendre : localisée à quelques kilomètres de la mer et à quelques kilomètres de Brest, Maisons de l’Avenir Guipavas vous présente à Plouguerneau (29880), cette maison de 4 pièces de 90 m².Cette maison possède 2 niveaux. Son intérieur inclut trois chambres, une cuisine et deux salles de bains. épicerie et un bureau de poste à proximité. Le marché Place de l’Europe a lieu chaque jeudi matin.Son prix de vente est de 262 000 €.Contactez notre agence (ROPERS Jean : (Numéro supprimé)) pour toute information sur la propriété ou sur les démarches à suivre.
L’actualité immobilière à Landéda
27/11/2023
02/11/2023
30/10/2023
20/10/2023
16/10/2023
16/10/2023