Maison à construire à Landivisiau (29400)
Images
Description
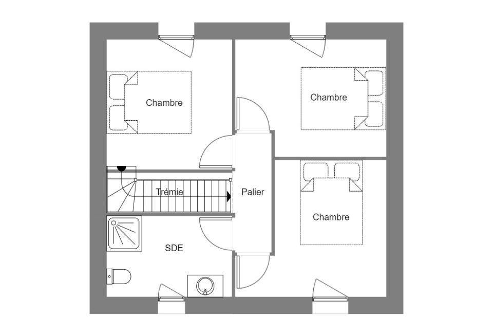
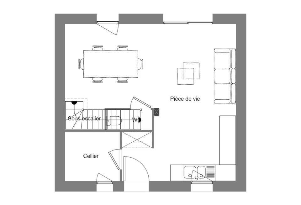
VENTE : maison de 4 pièces (67 m²) à Landivisiau
Cette belle maison traditionnelle aux lignes traditionnelles offre 67m² habitable .
Elle est évolutive.
Au rez-de-chaussée, elle dispose d'une belle pièce de vie offrant un maximum de lumière, d'un wc, d'un cellier.
A l'étage on retrouve 3 chambres, une salle de bains, et un WC. L'orientation de cette maison vous permettra de bénéficier d'un maximum de lumière et de chaleur naturelle pour davantage d'économies et de douceur de vivre.
Elle est à vendre pour la somme de 244 000 €.
N'hésitez pas à prendre contact avec notre constructeur (CAGNARD Aurélie) pour toute question sur cette maison ou sur les démarches à suivre.
Logement susceptibles de vous intéresser
Nous vous proposons de découvrir aussi cette sélection de logements situés à moins de 10km de Landivisiau et qui seraient susceptibles de vous intéresser.
Plougar
TERRAINDEVENEZ PROPRIÉTAIRE D’UN TERRAIN À PLOUGAR !Vivez dans un cadre de vie privilégié à Plougar, charmante commune dynamique du Nord-Finistère, idéalement située à proximité de Landivisiau et Morlaix.Profitez du calme de la campagne, tout en restant proche des commerces, écoles et services – un environnement idéal pour votre futur projet ! Votre terrain comprend 😮 Une surface de 617 m², bien orientéeo Possibilité de construire la maison de vos rêves selon vos envies Les atouts du projet 😮 Terrain viabilisé ou proche des réseauxo Cadre de vie paisible, à proximité de Landivisiau, Morlaix et du littoral nordo Liberté de construction, avec plan personnalisable selon vos besoins Prix indiqué hors frais Photos non contractuelles à titre d’illustration Accession possible avec ou sans apportNe manquez pas cette opportunité unique de devenir propriétaire d’un terrain à Plougar et de réaliser votre projet sur-mesure ! Contactez-nous dès maintenant pour plus d’informations et étudier votre projet.
Landivisiau
TERRAINDEVENEZ PROPRIÉTAIRE D’UN TERRAIN À LANDIVISIAU !Vivez dans un cadre de vie privilégié à Landivisiau, commune dynamique du Nord-Finistère, idéalement située entre Morlaix et Brest.Profitez d’un environnement agréable, alliant calme et proximité immédiate des commerces, écoles, services et axes de transport – un cadre idéal pour votre futur projet ! Votre terrain comprend 😮 Une surface de 628 m², bien orientéeo Possibilité de construire la maison de vos rêves selon vos envies Les atouts du projet 😮 Terrain viabilisé ou proche des réseauxo Cadre de vie recherché, à proximité de Morlaix, Brest et des axes principauxo Liberté de construction, avec plan personnalisable selon vos besoins Prix indiqué hors frais Photos non contractuelles à titre d’illustration Accession possible avec ou sans apportNe manquez pas cette opportunité unique de devenir propriétaire d’un terrain à Landivisiau et de réaliser votre projet sur-mesure ! Contactez-nous dès maintenant pour plus d’informations et étudier votre projet.
Plouvorn
TERRAIN ET MAISONDEVENEZ PROPRIÉTAIRE À PLOUVORN – MAISON NEUVE conforme à la norme RE-2020 !Vivez dans un cadre de vie privilégié à Plouvorn, commune recherchée du Finistère, offrant un environnement calme et verdoyant tout en restant proche des commerces, des écoles et de toutes les commodités – un lieu idéal pour votre famille !Votre future maison comprend :3 chambres spacieuses et lumineusesGrand salon-séjour traversant, ouvert sur le jardinCuisine moderne et fonctionnelleSalle de bain et WC séparésTerrain de 468 m², bien orientéLes atouts du projet :Maison neuve RE2020, à faible consommation d’énergiePlan personnalisable selon vos besoinsEnvironnement paisible et familialPrestations de qualité, finitions soignéesAccession à la propriété possible avec ou sans apport, étude de financement gratuite.Photos à titre d’illustration : photos d’une réalisation similaire (non contractuelles).Nous trouvons l’adresse idéale parmi plus de 200 terrains disponibles pour votre future demeure.Ne manquez pas cette belle opportunité de devenir propriétaire d’une maison moderne et économique à Plouvorn !Contactez-nous dès maintenant pour découvrir les plans et étudier votre projet personnalisé.Armorique Immos, franchise d’un constructeur national de maisons individuelles depuis plus de 40 ans, propose, en collaboration avec ses partenaires fonciers, une sélection de terrains constructibles selon disponibilité, pour la construction de maisons neuves définies par le constructeur, avec un contrat de construction de maison individuelle (loi du 19/12/1990).Prix net, hors frais notariés, d’enregistrement et de publicité foncière.Étude financière réalisée par nos partenaires en courtage (IOSB inscrit à l’Orias).
Landivisiau
TERRAIN ET MAISONDEVENEZ PROPRIÉTAIRE À LANDIVISIAU – MAISON NEUVE conforme à la norme RE-2020 !Vivez dans un cadre de vie privilégié à Landivisiau, commune recherchée du Finistère, offrant un environnement calme et verdoyant tout en restant proche des commerces, des écoles et de toutes les commodités – un lieu idéal pour votre famille !Votre future maison comprend :4 chambres spacieuses et lumineusesGrand salon-séjour traversant, ouvert sur le jardinCuisine moderne et fonctionnelleSalle de bain et WC séparésTerrain de 600 m², bien orientéLes atouts du projet :Maison neuve RE2020, à faible consommation d’énergiePlan personnalisable selon vos besoinsEnvironnement paisible et familialPrestations de qualité, finitions soignéesAccession à la propriété possible avec ou sans apport, étude de financement gratuite.Photos à titre d’illustration : photos d’une réalisation similaire (non contractuelles).Nous trouvons l’adresse idéale parmi plus de 200 terrains disponibles pour votre future demeure.Ne manquez pas cette belle opportunité de devenir propriétaire d’une maison moderne et économique à Landivisiau !Contactez-nous dès maintenant pour découvrir les plans et étudier votre projet personnalisé.Armorique Immos, franchise d’un constructeur national de maisons individuelles depuis plus de 40 ans, propose, en collaboration avec ses partenaires fonciers, une sélection de terrains constructibles selon disponibilité, pour la construction de maisons neuves définies par le constructeur, avec un contrat de construction de maison individuelle (loi du 19/12/1990).Prix net, hors frais notariés, d’enregistrement et de publicité foncière.Étude financière réalisée par nos partenaires en courtage (IOSB inscrit à l’Orias).
Saint-Sauveur
TERRAIN ET MAISONDEVENEZ PROPRIÉTAIRE À SAINT-SAUVEUR – MAISON NEUVE conforme à la dernière norme basse consommation RE-2020 !Vivez dans un cadre de vie privilégié à Saint-Sauveur, commune recherchée du Finistère, offrant un environnement calme et verdoyant tout en restant proche des commerces, des écoles et de toutes les commodités – un lieu idéal pour votre famille !Votre future maison comprend 😮 3 chambres spacieuses et lumineuseso Un grand salon-séjour traversant, ouvert sur le jardino Une cuisine moderne et fonctionnelleo Salle de bain et WC séparéso Le tout sur un terrain de 414 m², bien orientéLes atouts du projet 😮 Maison neuve RE2020, à faible consommation d’énergieo Plan personnalisable selon vos besoinso Environnement paisible et familialo Prestations de qualité, finitions soignéesAccession à la propriété possible avec ou sans apport, étude de financement gratuite.Photos à titre d’illustration (photos d’une de nos réalisations – non contractuelles).Nous trouvons l’adresse idéale parmi plus de 200 terrains disponibles pour votre future demeure.Ne manquez pas cette belle opportunité de devenir propriétaire d’une maison neuve moderne et économique à Saint-Sauveur !Contactez-nous dès maintenant pour découvrir les plans et étudier votre projet personnalisé.Armorique Immos, franchise d’un constructeur national de maisons individuelles depuis plus de 40 ans, propose en collaboration avec ses partenaires fonciers une sélection de terrains constructibles, selon disponibilité, pour la construction de maisons neuves définies par le constructeur, avec un contrat de construction de maison individuelle, dans le cadre de la loi du 19/12/1990.Prix net, hors frais notariés, d’enregistrement et de publicité foncière.Étude financière réalisée par nos partenaires en courtage (IOSB inscrit à l’Orias).
Bodilis
TERRAIN ET MAISONVENTE d’une maison de 5 pièces (90 m²) à BodilisPROCHE DE BREST – MAISON 5 PIÈCES NEUVEÀ vendre à quelques kilomètres de la mer et à quelques kilomètres de Brest, à Bodilis (29400), nous vous proposons cette maison de 5 pièces de 90 m² et de 733 m² de terrain.Il s’agit d’une maison de 2 niveaux. Elle compte quatre chambres, une cuisine et deux salles de bains. La maison est neuve.Il y a l’École Primaire Privée Notre-Dame à moins de 10 minutes à pied. Niveau transports en commun, on trouve la gare Landivisiau à moins de 10 minutes. La nationale N12 est accessible à 3 km.Elle est à vendre pour la somme de 359 900 €.Prenez contact avec notre agence (CAGNARD Aurélie) pour tout renseignement sur cette maison ou sur les modalités de vente. Maisons de l’Avenir Guipavas vous accompagne dans toutes vos démarches et dans tous vos projets immobiliers.
Bodilis
TERRAIN ET MAISONVENTE d’une maison de 5 pièces (140 m²) à BodilisMAISON 5 PIÈCES NEUVE – PROCHE DE BRESTEn vente : localisée à quelques kilomètres de la mer et à 31 km de Brest, à Bodilis (29400), nous sommes heureux de vous proposer cette maison de 5 pièces de 140 m² et de 627 m² de terrain.C’est une maison de 2 niveaux. Elle est composée de quatre chambres, d’une cuisine et de deux salles de bains. La maison est neuve.Il y a l’École Primaire Privée Notre-Dame à moins de 10 minutes à pied. Niveau transports, on trouve deux gares (Landivisiau et La Roche-Maurice) à moins de 10 minutes en voiture. Il y a un accès à la nationale N12 à 3 km.Son prix de vente est de 341 620 €.Contactez notre agence (Aurélie CAGNARD) pour plus d’informations sur la maison ou sur les modalités de vente. Maisons de l’Avenir Guipavas vous accompagne à toutes les étapes de l’achat et dans tous vos projets immobiliers.
Lampaul-Guimiliau
TERRAIN ET MAISONVENTE d’une maison F4 (73 m²) à Lampaul-GuimiliauMAISON 4 PIÈCES NEUVEÀ vendre : sur le littoral, laissez vous charmer par cette maison de 4 pièces de 73 m² à Lampaul-Guimiliau (29400).Cette maison possède 2 niveaux. Elle dispose de trois chambres, d’une cuisine et d’une salle de bains. La maison est neuve.Le terrain du bien s’étend sur 271 m².On trouve l’École Primaire Publique Eric Tabarly et l’École Primaire Privée Saint Joseph à moins de 10 minutes à pied. Niveau transports, il y a les gares Landivisiau, Guimiliau et Saint-Thégonnec à moins de 10 minutes en voiture. On trouve un accès à la nationale N12 à 3 km. On trouve une bibliothèque, deux commerces et une boulangerie dans les environs.Son prix de vente est de 182 409 €.Contactez Aurélie CAGNARD pour toute information sur cette maison ou sur les démarches à suivre. Maisons de l’Avenir Guipavas vous accompagne à toutes les étapes de l’achat et dans tous vos projets immobiliers.
Lampaul-Guimiliau
TERRAIN ET MAISONLampaul-Guimiliau : maison T3 (55 m²) en venteMAISON 3 PIÈCES NEUVEEn vente : localisée à quelques kilomètres de la mer, Maisons de l’Avenir Guipavas vous propose cette maison de 3 pièces de plain-pied de 55 m² à Lampaul-Guimiliau (29400). Son intérieur dispose de deux chambres, d’une cuisine et d’une salle de bains.Le terrain du bien s’étend sur 271 m².La maison est neuve.L’École Primaire Publique Eric Tabarly et l’École Primaire Privée Saint Joseph sont implantées à moins de 10 minutes à pied. Côté transports en commun, on trouve les gares Landivisiau, Guimiliau et Saint-Thégonnec à moins de 10 minutes en voiture. La nationale N12 est accessible à 3 km. Il y a une bibliothèque, deux commerces et une boulangerie dans les environs.Elle est proposée à l’achat pour 146 409 €.Contactez Aurélie CAGNARD pour tout renseignement sur cette maison, sur les démarches à suivre et sur les modalités de vente. Donnez vie à vos projets immobiliers avec Maisons de l’Avenir Guipavas.
L’actualité immobilière à Landivisiau
27/11/2023
02/11/2023
30/10/2023
20/10/2023
16/10/2023
16/10/2023