Maison à construire à Lanhouarneau (29430)
Images
Description
Maison F5 (102 m²) à vendre à Lanhouarneau
PROCHE CENTRE-VILLE - MAISON 5 PIÈCES NEUVE
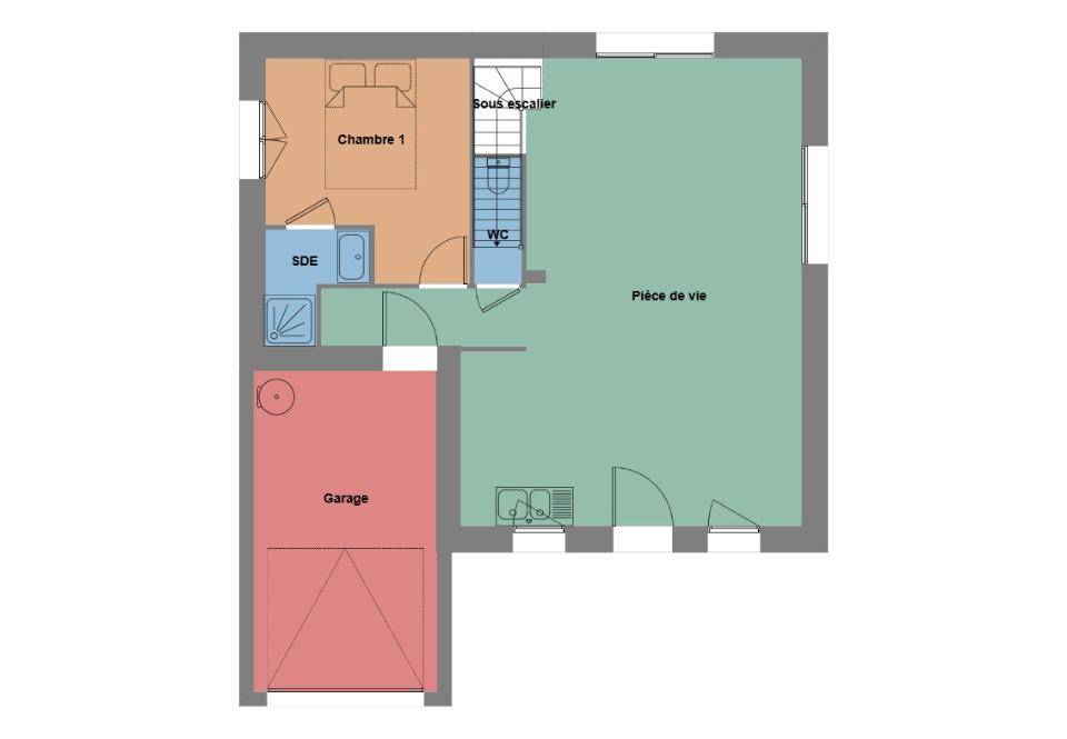
À vendre à quelques kilomètres de la mer et à quelques kilomètres de Brest, notre agence Maisons de l'Avenir Guipavas est ravie de vous présenter cette maison de 5 pièces de 102 m² et de 638 m² de terrain proche du centre-ville de Lanhouarneau (29430).
C'est une maison de 2 niveaux. Son intérieur compte quatre chambres, une cuisine et deux salles de bains. La maison est neuve.
On trouve l'École Primaire Privée Sainte Thérèse à moins de 10 minutes à pied. On trouve un accès à la nationale N12 à 10 km. Il y a une bibliothèque, une boulangerie et une épicerie à proximité.
Elle est proposée à l'achat pour 228 854 €.
N'hésitez pas à prendre contact avec Sami ALKIS pour obtenir de plus amples informations sur le bien.
Logement susceptibles de vous intéresser
Nous vous proposons de découvrir aussi cette sélection de logements situés à moins de 10km de Lanhouarneau et qui seraient susceptibles de vous intéresser.
Lesneven
TERRAIN ET MAISON📍 À VENDRE – Terrain constructible de 395 m² à LesnevenSitué à Lesneven, ce terrain constructible de 395 m² représente une opportunité rare pour concrétiser votre projet immobilier dans un environnement calme et résidentiel, à seulement 10 minutes à pied du centre-ville.🔹 Caractéristiques principales :Superficie : 395 m²Forme : RectangulaireBornage : EffectuéViabilisation : Non viabilisé, mais réseaux (eau, électricité, télécommunications, tout-à-l’égout) en bordure de parcelleConstructibilité : Terrain libre de constructeur, non soumis à l’avis des Architectes des Bâtiments de France (ABF)Emprise au sol maximale : 40 %, soit environ 158 m² constructibles🌿 Environnement :Issu d’une division de parcelles, le terrain se situe dans un quartier paisible et bénéficie d’une proximité immédiate avec toutes les commodités : commerces, écoles, services de santé…💰 Prix de vente : 54 900 €💡 Nous vous proposons sur ce terrain un projet de maison de 70 m² en plein pied, au style contemporain comprenant :3 chambres 1 salles de bains avec douche et baignoire 🚿Un vaste espace de vie de plus de 35 m² lumineux ☀️Un grand garage 🚗Une conception intégrée dans notre concept Maisons Bâti Activ, favorisant l’ensoleillement naturel et réduisant vos coûts énergétiques 🌿⚡💰 Prix de l’opération Terrain + Maison : 245 000 €Ce terrain et ce projet de maison n’attendent plus que vous pour devenir réalité 🏡.📞 Pour plus d’informations ou organiser une visite, contactez Erwan TILLY – Maisons de l’Avenir.
Lesneven
TERRAIN ET MAISON📍 À VENDRE – Terrain constructible de 395 m² à LesnevenSitué à Lesneven, ce terrain constructible de 395 m² représente une opportunité rare pour concrétiser votre projet immobilier dans un environnement calme et résidentiel, à seulement 10 minutes à pied du centre-ville.🔹 Caractéristiques principales :Superficie : 395 m²Forme : RectangulaireBornage : EffectuéViabilisation : Non viabilisé, mais réseaux (eau, électricité, télécommunications, tout-à-l’égout) en bordure de parcelleConstructibilité : Terrain libre de constructeur, non soumis à l’avis des Architectes des Bâtiments de France (ABF)Emprise au sol maximale : 40 %, soit environ 158 m² constructibles🌿 Environnement :Issu d’une division de parcelles, le terrain se situe dans un quartier paisible et bénéficie d’une proximité immédiate avec toutes les commodités : commerces, écoles, services de santé…💰 Prix de vente : 54 900 €💡 Nous vous proposons sur ce terrain un projet de maison de 90 m² en plein pied, au style contemporain avec des touches contemporaines comprenant :3 chambres dont une suite parentale 🛏️2 salles de bains 🚿Un vaste espace de vie de plus de 45 m² lumineux ☀️Un grand garage 🚗Une conception intégrée dans notre concept Maisons Bâti Activ, favorisant l’ensoleillement naturel et réduisant vos coûts énergétiques 🌿⚡💰 Prix de l’opération Terrain + Maison : 278 000 €Ce terrain et ce projet de maison n’attendent plus que vous pour devenir réalité 🏡.📞 Pour plus d’informations ou organiser une visite, contactez Erwan TILLY – Maisons de l’Avenir.
Plounévez-Lochrist
TERRAIN ET MAISONVENTE : maison de 5 pièces (100 m²) à Plounévez-LochristMAISON 5 PIÈCES NEUVEÀ vendre : sur le littoral, notre agence Maisons de l’Avenir Guipavas est ravie de vous proposer cette maison de 5 pièces de 100 m² à Plounévez-Lochrist (29430). Son intérieur offre quatre chambres, une cuisine et deux salles de bains.Le terrain de la maison est de 2 758 m².Cette maison possède 2 niveaux.L’École Primaire Privée Sainte-Famille est implantée à moins de 10 minutes à pied, tout comme une structure d’accueil pour les tout-petits. On trouve un accès à la nationale N12 à 14 km. On trouve un tennis, une bibliothèque, une boulangerie et une épicerie dans les environs.Il est proposé à l’achat pour 380 000 €.N’hésitez pas à prendre contact avec Aurélie CAGNARD pour tout renseignement sur la maison, sur les modalités de vente ou sur les démarches à suivre.
Plounévez-Lochrist
TERRAINVENTE d’un terrain de 2 758 m² à Plounévez-LochristÀ Plounévez-Lochrist (29430) sur le littoral, imaginez la maison de vos rêves sur ce terrain de 2 758 m². Il y a l’École Primaire Privée Sainte-Famille à moins de 10 minutes à pied et une structure d’accueil pour la petite enfance. La nationale N12 est accessible à 14 km. On trouve un tennis, une bibliothèque, une boulangerie et une épicerie à proximité du bien.Il est proposé à l’achat pour 169 900 €. Prenez contact avec notre agence (Aurélie CAGNARD) pour plus de renseignements sur ce terrain ou sur les modalités de vente. Maisons de l’Avenir Guipavas vous accompagne dans tous vos projets immobiliers et dans toutes vos démarches.
Plounévez-Lochrist
TERRAIN ET MAISONVENTE : maison T4 (139 m²) à Plounévez-LochristMAISON 4 PIÈCES NEUVEEn vente à quelques kilomètres de la mer, à Plounévez-Lochrist (29430), votre agence Maisons de l’Avenir Guipavas est heureuse de vous proposer cette maison de 4 pièces de 139 m². Son intérieur propose trois chambres, une cuisine et deux salles de bains.Le terrain du bien est de 2 758 m².Cette maison possède 2 niveaux. Elle est neuve.L’École Primaire Privée Sainte-Famille est implantée à moins de 10 minutes à pied, tout comme une crèche. La nationale N12 est accessible à 14 km. Il y a un tennis, une bibliothèque, une boulangerie et une épicerie à proximité du logement.Son prix de vente est de 462 900 €.Prenez contact avec Aurélie CAGNARD pour tout renseignement sur la maison. Maisons de l’Avenir Guipavas vous accompagne dans tous vos projets immobiliers et à toutes les étapes de votre projet.
Lesneven
TERRAIN📍 À VENDRE – Terrain constructible de 395 m² à LesnevenSitué à Lesneven, ce terrain constructible de 395 m² représente une opportunité rare pour concrétiser votre projet immobilier dans un environnement calme et résidentiel, à seulement 10 minutes à pied du centre-ville.🔹 Caractéristiques principales :Superficie : 395 m²Forme : RectangulaireBornage : EffectuéViabilisation : Non viabilisé, mais réseaux (eau, électricité, télécommunications, tout-à-l’égout) en bordure de parcelleConstructibilité : Terrain libre de constructeur, non soumis à l’avis des Architectes des Bâtiments de France (ABF)Emprise au sol maximale : 40 %, soit environ 158 m² constructibles🌿 Environnement :Issu d’une division de parcelles, le terrain se situe dans un quartier paisible et bénéficie d’une proximité immédiate avec toutes les commodités : commerces, écoles, services de santé…💰 Prix de vente : 54 900 €📞 Pour plus d’informations ou organiser une visite, contactez Erwan TILLY – Maisons de l’Avenir.
Bodilis
TERRAIN ET MAISONVENTE d’une maison de 5 pièces (90 m²) à BodilisPROCHE DE BREST – MAISON 5 PIÈCES NEUVEÀ vendre à quelques kilomètres de la mer et à quelques kilomètres de Brest, à Bodilis (29400), nous vous proposons cette maison de 5 pièces de 90 m² et de 733 m² de terrain.Il s’agit d’une maison de 2 niveaux. Elle compte quatre chambres, une cuisine et deux salles de bains. La maison est neuve.Il y a l’École Primaire Privée Notre-Dame à moins de 10 minutes à pied. Niveau transports en commun, on trouve la gare Landivisiau à moins de 10 minutes. La nationale N12 est accessible à 3 km.Elle est à vendre pour la somme de 359 900 €.Prenez contact avec notre agence (CAGNARD Aurélie) pour tout renseignement sur cette maison ou sur les modalités de vente. Maisons de l’Avenir Guipavas vous accompagne dans toutes vos démarches et dans tous vos projets immobiliers.
Bodilis
TERRAIN ET MAISONVENTE d’une maison de 5 pièces (140 m²) à BodilisMAISON 5 PIÈCES NEUVE – PROCHE DE BRESTEn vente : localisée à quelques kilomètres de la mer et à 31 km de Brest, à Bodilis (29400), nous sommes heureux de vous proposer cette maison de 5 pièces de 140 m² et de 627 m² de terrain.C’est une maison de 2 niveaux. Elle est composée de quatre chambres, d’une cuisine et de deux salles de bains. La maison est neuve.Il y a l’École Primaire Privée Notre-Dame à moins de 10 minutes à pied. Niveau transports, on trouve deux gares (Landivisiau et La Roche-Maurice) à moins de 10 minutes en voiture. Il y a un accès à la nationale N12 à 3 km.Son prix de vente est de 341 620 €.Contactez notre agence (Aurélie CAGNARD) pour plus d’informations sur la maison ou sur les modalités de vente. Maisons de l’Avenir Guipavas vous accompagne à toutes les étapes de l’achat et dans tous vos projets immobiliers.
Plouzévédé
TERRAIN ET MAISONDEVENEZ PROPRIÉTAIRE À PLOUZÉVÉDÉ – MAISON NEUVE conforme à la dernière norme basse consommation RE-2020 !Vivez dans un cadre de vie privilégié à Plouzévédé, commune appréciée pour son calme, son environnement naturel et sa proximité avec les commerces, les services et les écoles. Un lieu idéal pour accueillir votre famille dans un cadre serein et agréable !Votre future maison comprend 😮 3 chambres spacieuses et lumineuseso Un grand salon-séjour traversant ouvert sur le jardino Une cuisine moderne et fonctionnelleo Salle de bain et WC séparésLes atouts du projet 😮 Maison neuve RE2020, à faible consommation d’énergieo Plan personnalisable selon vos besoinso Environnement calme et familialo Prestations de qualité, finitions soignéesCe projet s’implante sur un terrain idéalement situé à Plouzévédé, d’environ 400 m² (surface selon disponibilité des partenaires fonciers).Accession à la propriété possible avec ou sans apport, étude de financement gratuite.Photos à titre d’illustration (photos d’une de nos réalisations – non contractuelles).Nous trouvons l’adresse idéale parmi un large choix de terrains disponibles pour votre future demeure.Ne manquez pas cette belle opportunité de devenir propriétaire d’une maison neuve moderne et économique à Plouzévédé !Contactez-nous dès maintenant pour découvrir les plans et étudier votre projet personnalisé.Armorique Immos, franchise d’un constructeur national de maisons individuelles depuis plus de 40 ans, propose en collaboration avec ses partenaires fonciers une sélection de terrains constructibles, selon disponibilité, pour la construction de maisons neuves définies par le constructeur, avec un contrat de construction de maison individuelle, dans le cadre de la loi du 19/12/1990.Prix net, hors frais notariés, d’enregistrement et de publicité foncière.Étude financière réalisée par nos partenaires en courtage (IOSB inscrit à l’Orias).
L’actualité immobilière à Lanhouarneau
27/11/2023
02/11/2023
30/10/2023
20/10/2023
16/10/2023
16/10/2023