Maison à construire à Le Drennec (29860)
Images
Description
VENTE d'une maison de 5 pièces (102 m²) au Drennec
PROCHE CENTRE-VILLE - MAISON 5 PIÈCES NEUVE
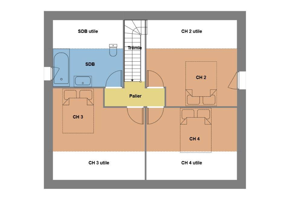
À vendre : située sur le littoral et à deux pas de Brest, nous vous présentons, proche du centre-ville du Drennec (29860), cette maison de 5 pièces de 102 m² et de 300 m² de terrain. Elle compte quatre chambres, une cuisine et deux salles de bains.
Il s'agit d'une maison de 2 niveaux. Elle est neuve.
L'École Primaire Publique des Sources et l'École Primaire Privée Saint Adrien sont implantées à moins de 10 minutes à pied. La nationale N12 est accessible à 8 km. Il y a une bibliothèque et une boulangerie dans les environs.
Elle est à vendre pour la somme de 239 823 €.
N'hésitez pas à prendre contact avec notre agence (Sami ALKIS) pour toute question sur la maison ou sur les démarches à suivre. Concrétisez vos projets immobiliers avec Maisons de l'Avenir Guipavas.
Logement susceptibles de vous intéresser
Nous vous proposons de découvrir aussi cette sélection de logements situés à moins de 10km de Le Drennec et qui seraient susceptibles de vous intéresser.
Guissény
TERRAIN ET MAISONDEVENEZ PROPRIÉTAIRE À GUISSÉNY – MAISON NEUVE RE2020 SUR-MESURE !Vivez dans un cadre de vie privilégié à Guissény, charmante commune dynamique du Nord-Finistère, à proximité des commerces, écoles et des plages du littoral.Profitez du calme de la campagne, tout en restant proche des services essentiels – un environnement idéal pour votre famille ! Votre future maison comprend 😮 3 chambres spacieuses et lumineuseso Un grand salon-séjour traversant, ouvert sur le jardino Une cuisine moderne et fonctionnelleo Salle de bain et WC séparéso Le tout sur un terrain de 453 m², bien orienté Les atouts du projet 😮 Maison neuve RE2020, à faible consommation d’énergieo Plan personnalisable selon vos besoinso Cadre de vie paisible, proche du littoralo Prestations de qualité, finitions soignées Prix indiqué hors frais Photos non contractuelles à titre d’illustration Accession à la propriété possible avec ou sans apportNe manquez pas cette belle opportunité de devenir propriétaire d’une maison neuve moderne et économique à Guissény ! Contactez-nous dès maintenant pour découvrir les plans et étudier votre projet personnalisé.
Guissény
TERRAINGuissény : terrain de 867 m² en venteTerrain borné et viabiliséHors lotissementExposition sud-ouestEnvironnement calme et agréable, proximité immédiate des commerces, écoles et services.Accès rapide aux plages et aux sentiers côtiers, cadre de vie privilégié entre mer et campagne.Ce terrain est une opportunité rare pour concrétiser votre projet de construction dans un secteur recherché du Finistère Nord.Il est à vendre pour la somme de 110 000€. N’hésitez pas à prendre contact avec notre agence (Aurélie CAGNARD : (Numéro supprimé)) pour toute question sur le terrain, sur les modalités de vente ou sur les démarches à suivre. Maisons de l’Avenir Guipavas est là pour vous accompagner dans tous vos projets immobiliers.
Guissény
TERRAIN ET MAISONGuissény : maison de 3 pièces (72 m²) en venteCette belle maison traditionnelle aux lignes contemporaines offre 72m² habitable . Au rez-de-chaussée, elle dispose d’une belle pièce de vie de 34m² offrant un maximum de lumière, d’un wc et d’un cellier. A l’étage on retrouve 2 chambres, une salle de bains, et un WC. L’orientation de cette maison vous permettra de bénéficier d’un maximum de lumière et de chaleur naturelle pour davantage d’économies et de douceur de vivre.Elle est à vendre pour la somme de 268 400 €.Prenez contact avec Aurélie CAGNARD ((Numéro supprimé)) pour obtenir de plus amples informations sur cette maison ou sur les modalités de vente.
Guissény
TERRAIN ET MAISONMaison de 6 pièces (167 m²) à vendre à GuissényCette belle maison traditionnelle aux lignes contemporaines offre 167m² habitable . Au rez-de-chaussée, elle dispose d’une belle pièce de vie offrant un maximum de lumière, d’une grande suite parentale avec sa salle d’eau, d’un wc, d’un très grand cellier et d’un garage.A l’étage on retrouve 3 chambres, une salle de bains, un WC et une mezzanine. L’orientation de cette maison vous permettra de bénéficier d’un maximum de lumière et de chaleur naturelle pour davantage d’économies et de douceur de vivre.Elle est proposée à l’achat pour 542 500 €.N’hésitez pas à prendre contact avec Aurélie CAGNARD ((Numéro supprimé)) pour toute question sur cette maison, sur les modalités de vente ou sur les démarches à suivre.
Guissény
TERRAIN ET MAISONVENTE d’une maison F4 (124 m²) à GuissényCette belle maison traditionnelle aux lignes contemporaines offre 124m² habitable .Elle dispose d’une belle pièce de vie de offrant un maximum de lumière, d’une grande suite parentale avec sa salle d’eau, 2 autres chambres avec une salle de bain, deux wc, d’un très grand cellier, un garage.L’orientation de cette maison vous permettra de bénéficier d’un maximum de lumière et de chaleur naturelle pour davantage d’économies et de douceur de vivre.Elle est à vendre pour la somme de 410 200 €.Prenez contact avec notre agence (Aurélie CAGNARD : (Numéro supprimé)) pour plus d’informations sur cette maison. Maisons de l’Avenir Guipavas vous accompagne à toutes les étapes de l’achat et dans toutes vos démarches.
Guissény
TERRAIN ET MAISONVENTE : maison de 4 pièces (120 m²) à GuissényNouveau Murs Ossature BoisTrès beau plain-pied aux lignes traditionnelles, agencé astucieusement pour un maximum de luminosité, pièce de vie ouverte et volumineuse, 3 chambres dont une suite parentale, un cellier et son garage.Aux normes RE2020, peu énergivore, elle vous ravira par son confort de vie Elle est proposée à l’achat pour 401 000 €.Contactez notre agence (Aurélie CAGNARD : (Numéro supprimé)) pour obtenir de plus amples informations sur la maison. Faites de vos projets immobiliers une réalité avec Maisons de l’Avenir Guipavas.
Lesneven
TERRAINLesneven : terrain de 601 m² en ventePROCHE CENTRE VILLEÀ vendre à quelques kilomètres de la mer et à quelques kilomètres de Brest à Lesneven (29260), grand terrain. DIl est à vendre pour la somme de 73 600 €. Prenez contact avec Jean ROPERS (tél : (Numéro supprimé)) pour toute information sur le terrain ou sur les modalités de vente. Maisons de l’Avenir Guipavas vous accompagne dans toutes vos démarches et dans tous vos projets immobiliers.
Lesneven
TERRAIN ET MAISONMaison de 4 pièces (65 m²) à vendre à LesnevenPROCHE DE BREST – MAISON 4 PIÈCESSur le littoral et à deux pas de Brest, ayez le coup de coeur pour cette maison de 4 pièces de 65 m² à Lesneven (29260). Elle propose trois chambres, une cuisine et une salle de bains.Le terrain du bien est de 601 m².Il s’agit d’une maison de 2 niveaux. Son prix de vente est de 220 100 €.Contactez Jean ROPERS (tél : (Numéro supprimé)) pour tout renseignement sur cette maison, sur les démarches à suivre et sur les modalités de vente. Maisons de l’Avenir Guipavas vous accompagne à toutes les étapes de votre projet et dans tous vos projets immobiliers.
Lesneven
TERRAIN ET MAISONVENTE : maison de 5 pièces (139 m²) à LesnevenMAISON 5 PIÈCES NEUVE – PROCHE DE BRESTÀ quelques kilomètres de la mer et à deux pas de Brest, nous vous présentons en vente à Lesneven (29260), cette maison de 5 pièces de plain-pied de 139 m².Conçue de plain-pied, elle est composée de quatre chambres, d’une cuisine et de deux salles de bains. Elle est à vendre pour la somme de 329 600 €.Prenez contact avec Jean ROPERS (tél : (Numéro supprimé)) pour obtenir de plus amples renseignements sur cette maison. Maisons de l’Avenir Guipavas est là pour vous accompagner à toutes les étapes de l’achat.
L’actualité immobilière à Le Drennec
27/11/2023
02/11/2023
30/10/2023
20/10/2023
16/10/2023
16/10/2023