Maison à construire à Lesneven (29260)
Images
Description
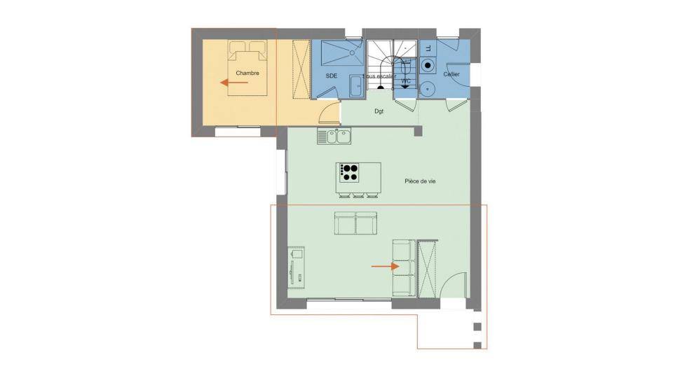
VENTE d'une maison T4 (94 m²) à Lesneven
PROCHE CENTRE-VILLE - MAISON 4 PIÈCES NEUVE
À vendre : située à quelques kilomètres de la mer et à 24 km de Brest, Maisons de l'Avenir Guipavas vous propose cette maison de 4 pièces de 94 m² proche du centre-ville de Lesneven (29260).
Cette maison compte 2 niveaux. Son intérieur compte trois chambres, une cuisine et deux salles de bains. Cette maison est neuve.
Le terrain du bien s'étend sur 625 m².
Des écoles de tous types se trouvent à moins de 10 minutes à pied, tout comme une crèche. Il y a un accès à la nationale N12 à 10 km. Il y a des commerces, quatre boulangeries, un supermarché, trois boucheries-charcuteries et une épicerie dans les environs. Le marché Centre-Ville anime le quartier tous les lundis.
Son prix de vente est de 318 884 €.
Contactez notre agence (ALKIS Sami) pour toute question sur la maison et sur les modalités de vente. Maisons de l'Avenir Guipavas est là pour vous accompagner dans tous vos projets immobiliers.
Logement susceptibles de vous intéresser
Nous vous proposons de découvrir aussi cette sélection de logements situés à moins de 10km de Lesneven et qui seraient susceptibles de vous intéresser.
Tréflez
TERRAINDEVENEZ PROPRIÉTAIRE D’UN TERRAIN À TRÉFLÉZ !Vivez dans un cadre de vie privilégié à Tréfléz, charmante commune dynamique du Nord-Finistère, idéalement située entre Châteaulin et Morlaix.Profitez du calme de la campagne, tout en restant proche des commerces, écoles et services – un environnement idéal pour votre futur projet ! Votre terrain comprend 😮 Une surface de 831 m², bien orientéeo Possibilité de construire la maison de vos rêves selon vos envies Les atouts du projet 😮 Terrain viabilisé ou proche des réseauxo Cadre de vie paisible, à proximité de Châteaulin, Morlaix et du littoral nordo Liberté de construction, avec plan personnalisable selon vos besoins Prix indiqué hors frais Photos non contractuelles à titre d’illustration Accession possible avec ou sans apportNe manquez pas cette opportunité unique de devenir propriétaire d’un terrain à Tréfléz et de réaliser votre projet sur-mesure ! Contactez-nous dès maintenant pour plus d’informations et étudier votre projet.
Tréflez
TERRAIN ET MAISONDEVENEZ PROPRIÉTAIRE À TRÉFLEZ – MAISON NEUVE RE2020 SUR-MESURE !Vivez dans un cadre de vie privilégié à Tréflez, charmante commune du Nord-Finistère, à seulement quelques minutes de Lesneven, Le Folgoët et des plages du littoral.Profitez du calme de la campagne, tout en restant proche des commerces, écoles et services – un environnement idéal pour votre famille ! Votre future maison comprend 😮 4 chambres spacieuses et lumineuseso Un grand salon-séjour traversant, ouvert sur le jardino Une cuisine moderne et fonctionnelleo Salle de bain et WC séparéso Le tout sur un terrain de 549 m², bien orienté Les atouts du projet 😮 Maison neuve RE2020, à faible consommation d’énergieo Plan personnalisable selon vos besoinso Cadre de vie paisible, à proximité de Brest et du littoralo Prestations de qualité, finitions soignées Prix indiqué hors frais Photos non contractuelles à titre d’illustration Accession à la propriété possible avec ou sans apportNe manquez pas cette belle opportunité de devenir propriétaire d’une maison neuve moderne et économique à Tréflez ! Contactez-nous dès maintenant pour découvrir les plans et étudier votre projet personnalisé.
Le Folgoët
TERRAINTerrain de 495 m² à vendre au FolgoëtPROCHE CENTRE-VILLE – PROCHE DE BRESTEn vente sur le littoral et à quelques kilomètres de Brest au Folgoët (29260), terrain de 495 m². Il est prêt à accueillir la maison de vos rêves pour toute la famille. Il est exposé au sud-ouest. Ce terrain se situe non loin du centre-ville. L’École Primaire Privée Sainte Anne-Notre Dame et l’École Primaire Publique Paul Gauguin sont implantées à moins de 10 minutes à pied. La nationale N12 est accessible à 10 km. Il y a trois boulangeries, plusieurs commerces, un supermarché et une boucherie-charcuterie à proximité du bien.Il est à vendre pour la somme de 72 200 €. N’hésitez pas à prendre contact avec notre agence (ALKIS Sami) pour obtenir de plus amples renseignements sur le terrain et sur les démarches à suivre.
Le Folgoët
TERRAIN ET MAISONMaison T5 (92 m²) à vendre au FolgoëtPROCHE CENTRE-VILLE – MAISON 5 PIÈCES NEUVEEn vente : à quelques kilomètres de la mer et à quelques kilomètres de Brest, nous sommes heureux de vous proposer, proche du centre-ville du Folgoët (29260), cette maison de 5 pièces de 92 m² et de 495 m² de terrain. Elle dispose de quatre chambres, d’une cuisine et de deux salles de bains.Il s’agit d’une maison de 2 niveaux. Elle est neuve.Il y a l’École Primaire Privée Sainte Anne-Notre Dame et l’École Primaire Publique Paul Gauguin à moins de 10 minutes à pied. La nationale N12 est accessible à 10 km. On trouve trois boulangeries, plusieurs commerces, un supermarché et une boucherie-charcuterie à quelques minutes.Elle est proposée à l’achat pour 276 830 €.Contactez Sami ALKIS pour tout renseignement sur la maison, sur les démarches à suivre ou sur les modalités de vente. Maisons de l’Avenir Guipavas vous accompagne dans tous vos projets immobiliers et dans toutes vos démarches.
Le Folgoët
TERRAIN ET MAISONVENTE : maison T4 (82 m²) au FolgoëtPROCHE CENTRE-VILLE – MAISON 4 PIÈCES NEUVEÀ quelques kilomètres de la mer et à quelques kilomètres de Brest, venez découvrir cette maison de 4 pièces de plain-pied de 82 m² proche du centre-ville du Folgoët (29260). Son intérieur inclut trois chambres, une cuisine et une salle de bains.Le terrain de la propriété s’étend sur 495 m².Cette maison est neuve.Il y a l’École Primaire Privée Sainte Anne-Notre Dame et l’École Primaire Publique Paul Gauguin à moins de 10 minutes à pied. La nationale N12 est accessible à 10 km. On trouve trois boulangeries, des commerces, un supermarché et une boucherie-charcuterie à proximité.Elle est proposée à l’achat pour 271 807 €.Contactez notre agence (Sami ALKIS) pour tout renseignement sur la maison. Maisons de l’Avenir Guipavas vous accompagne dans toutes vos démarches et dans tous vos projets immobiliers.
Le Drennec
TERRAINTerrain de 416 m² à vendre au DrennecPROCHE CENTRE-VILLE – PROCHE DE BRESTSur le littoral et à 17 km de Brest au Drennec (29860), terrain de 416 m². Il est exposé au sud-ouest. Il se trouve non loin du centre-ville. Il y a l’École Primaire Publique des Sources et l’École Primaire Privée Saint Adrien à moins de 10 minutes à pied. La nationale N12 est accessible à 8 km. On trouve une bibliothèque et une boulangerie à proximité de la propriété.Son prix de vente est de 56 160 €. Contactez Sami ALKIS pour obtenir de plus amples renseignements sur le terrain. Maisons de l’Avenir Guipavas vous accompagne dans toutes vos démarches et à toutes les étapes de votre projet.
Le Drennec
TERRAIN ET MAISONVENTE d’une maison de 4 pièces (94 m²) au DrennecPROCHE CENTRE-VILLE – MAISON 4 PIÈCES NEUVEÀ vendre : localisée à quelques kilomètres de la mer et à deux pas de Brest, proche du centre-ville du Drennec (29860), nous sommes heureux de vous présenter cette maison de 4 pièces de 94 m². Elle dispose de trois chambres, d’une cuisine et de deux salles de bains.Le terrain de la maison s’étend sur 416 m².C’est une maison de 2 niveaux. Elle est neuve.On trouve l’École Primaire Publique des Sources et l’École Primaire Privée Saint Adrien à moins de 10 minutes à pied. La nationale N12 est accessible à 8 km. Il y a une bibliothèque et une boulangerie à proximité.Elle est proposée à l’achat pour 286 834 €.Contactez notre agence (Sami ALKIS) pour toute information sur la maison. Maisons de l’Avenir Guipavas est là pour vous accompagner dans tous vos projets immobiliers.
Le Drennec
TERRAIN ET MAISONMaison de 4 pièces (82 m²) en vente au DrennecPROCHE CENTRE-VILLE – MAISON 4 PIÈCES NEUVEÀ quelques kilomètres de la mer et à deux pas de Brest, en vente proche du centre-ville du Drennec (29860), Maisons de l’Avenir Guipavas vous propose cette maison de 4 pièces de plain-pied de 82 m² et de 416 m² de terrain.Son intérieur inclut trois chambres, une cuisine et une salle de bains. Cette maison est neuve.L’École Primaire Publique des Sources et l’École Primaire Privée Saint Adrien se trouvent à moins de 10 minutes à pied. Il y a un accès à la nationale N12 à 8 km. Il y a une bibliothèque et une boulangerie à proximité.Son prix de vente est de 242 992 €.Contactez Sami ALKIS pour obtenir de plus amples informations sur la maison. Faites de vos projets immobiliers une réalité avec Maisons de l’Avenir Guipavas.
Le Drennec
TERRAINVENTE : terrain de 300 m² au DrennecPROCHE CENTRE-VILLE – PROCHE DE BRESTSur le littoral et à quelques kilomètres de Brest au Drennec (29860), terrain de 300 m². Il est prêt à accueillir votre projet immobilier pour toute la famille. Il est orienté au sud-ouest. Ce terrain se trouve non loin du centre-ville. L’École Primaire Publique des Sources et l’École Primaire Privée Saint Adrien sont implantées à moins de 10 minutes à pied. La nationale N12 est accessible à 8 km. Il y a une bibliothèque et une boulangerie à proximité.Son prix de vente est de 43 500 €. Contactez Sami ALKIS pour obtenir de plus amples renseignements sur ce terrain.
L’actualité immobilière à Lesneven
27/11/2023
02/11/2023
30/10/2023
20/10/2023
16/10/2023
16/10/2023