Maison à construire à Penmarch (29760)
Images
Description
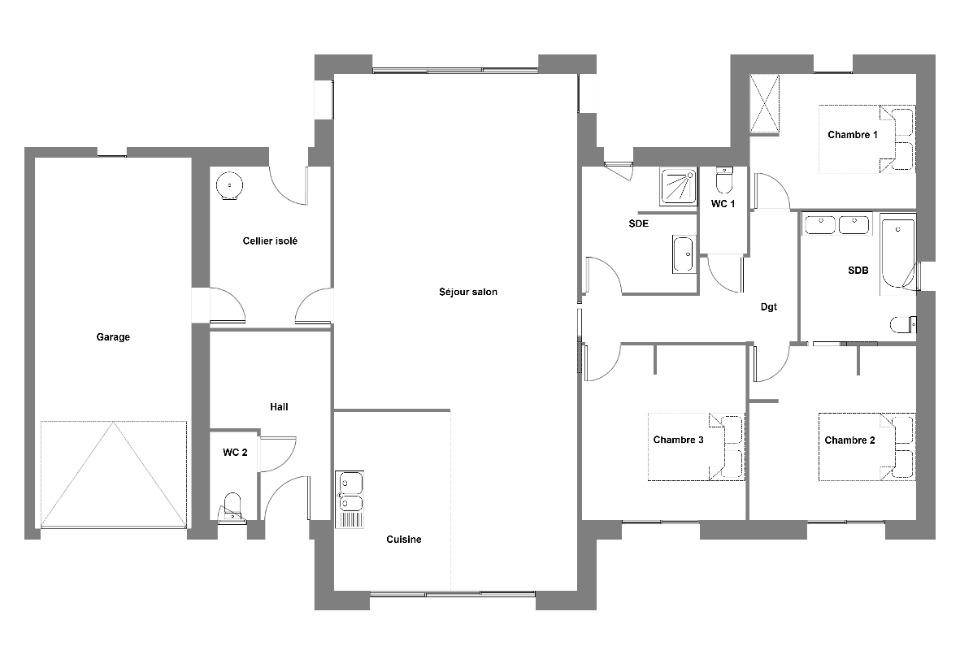
VENTE : maison F4 (95 m²) à Penmarch
PROCHE DE QUIMPER - MAISON 4 PIÈCES NEUVE
En vente : localisée sur le littoral atlantique et à 27 km de Quimper, découvrez à Penmarch (29760), cette maison de 4 pièces de plain-pied de 95 m² et de 615 m² de terrain.
Elle dispose de trois chambres, d'une cuisine et de deux salles de bains. La maison est neuve.
L'École Primaire Publique Auguste Dupouy et l'École Primaire Privée Saint Joseph sont implantées à proximité. On trouve deux boulangeries, un supermarché, un commerce, un bureau de poste et une épicerie à quelques minutes de la maison.
Elle est à vendre pour la somme de 289 500 €.
N'hésitez pas à prendre contact avec Marie LAURENT ((Numéro supprimé)) pour toute information sur cette maison.
Logement susceptibles de vous intéresser
Nous vous proposons de découvrir aussi cette sélection de logements situés à moins de 10km de Penmarch et qui seraient susceptibles de vous intéresser.
Guilvinec
TERRAIN29730 – GUILVINEC – CENTRE-VILLE – TERRAIN NON CONSTRUCTIBLE – SURFACE DE 2288 M² – OPPORTUNITÉ À SAISIR POUR CE GRAND TERRAIN IDÉALEMENT SITUÉeffiCity, l’agence qui estime votre bien en ligne, vous propose ce terrain exceptionnel situé au Guilvinec.D’une surface de 2288m², ce terrain offre une belle opportunité .Ne manquez pas cette chance unique d’acquérir un terrain de cette taille dans un emplacement aussi recherché. Contactez-nous dès maintenant pour organiser une visite et laissez-vous séduire par le potentiel de ce bien. Les informations sur les risques auxquels ce bien est exposé sont disponibles sur le site Georisque : georisques. gouv. fr Erwan Stephan – EI – est Agent Commercial mandataire en immobilier, immatriculé au Registre Spécial des Agents Commerciaux du Tribunal de Commerce de Quimper sous le n(Numéro supprimé).Siège social du mandant : effiCity, 48 avenue de Villiers – 75017 PARIS – Société par Actions Simplifiée, société au capital de 132 373,05 euros, immatriculée au RCS Paris 497 617 746 et titulaire de la Carte professionnelle CPI 7501 2015 000 002 025 – CCI Paris IDF – Caisse de Garantie : GALIAN Assurances 89 rue de la Boétie 75008 Paris
Plomeur
TERRAINDEVENEZ PROPRIÉTAIRE D’UN TERRAIN À PLOMEUR !Vivez dans un cadre de vie privilégié à Plomeur, charmante commune du Sud-Finistère, idéalement située entre Quimper et la côte sud, à proximité des plages.Profitez du calme de la campagne et de la proximité du littoral, tout en restant proche des commerces, écoles et services – un environnement idéal pour votre futur projet ! Votre terrain comprend 😮 Une surface de 476 m², bien orientéeo Possibilité de construire la maison de vos rêves selon vos envies Les atouts du projet 😮 Terrain viabiliséo Cadre de vie paisible et proche des plageso Liberté de construction, avec plan personnalisable selon vos besoins Prix indiqué hors frais Photos non contractuelles à titre d’illustration Accession possible avec ou sans apportNe manquez pas cette opportunité unique de devenir propriétaire d’un terrain à Plomeur et de réaliser votre projet sur-mesure ! Contactez-nous dès maintenant pour plus d’informations et étudier votre projet.
Guilvinec
TERRAIN29730 – GUILVINEC – CENTRE-VILLE – TERRAIN CONSTRUCTIBLE – POSSIBILITÉ DE CRÉER DES LOTS – 2340 m² – OPPORTUNITÉ À SAISIR DANS UN ENVIRONNEMENT PRIVILÉGIÉeffiCity, l’agence qui estime votre bien en ligne, vous propose ce terrain exceptionnel situé au cœur du Guilvinec. Avec une surface de 2340 m², ce terrain constructible offre une multitude de possibilités, dont celle de créer des lots pour des projets de construction diversifiés.Idéalement situé, ce terrain bénéficie d’un emplacement stratégique au sein de la commune, offrant ainsi un accès rapide aux commodités et services environnants. Sa situation privilégiée en fait un investissement idéal pour les porteurs de projets ambitieux à la recherche d’un terrain permettant une construction sur mesure.Ce terrain représente une réelle opportunité pour les investisseurs ou les promoteurs immobiliers en quête d’un emplacement de choix pour concrétiser des projets d’envergure. Ne manquez pas cette chance unique d’acquérir un terrain offrant un potentiel de développement exceptionnel dans un cadre privilégié et recherché.Contactez-nous dès maintenant pour planifier une visite et découvrir en personne les multiples possibilités offertes par ce terrain constructible au cœur du Guilvinec. Les informations sur les risques auxquels ce bien est exposé sont disponibles sur le site Georisque : georisques. gouv. fr Erwan Stephan – EI – est Agent Commercial mandataire en immobilier, immatriculé au Registre Spécial des Agents Commerciaux du Tribunal de Commerce de Quimper sous le n(Numéro supprimé).Siège social du mandant : effiCity, 48 avenue de Villiers – 75017 PARIS – Société par Actions Simplifiée, société au capital de 132 373,05 euros, immatriculée au RCS Paris 497 617 746 et titulaire de la Carte professionnelle CPI 7501 2015 000 002 025 – CCI Paris IDF – Caisse de Garantie : GALIAN Assurances 89 rue de la Boétie 75008 Paris
Guilvinec
TERRAIN29730 – GUILVINEC – KERLEGUER – TERRAIN ZONE NATURELLE – SURFACE DE 1830 M² – OPPORTUNITÉ À SAISIR EN BORD DE MER.effiCity, l’agence qui estime votre bien en ligne, vous propose ce terrain de 1830 m² situé dans le quartier recherché de Kerleguer. Les informations sur les risques auxquels ce bien est exposé sont disponibles sur le site Georisque : georisques. gouv. fr Erwan Stephan – EI – est Agent Commercial mandataire en immobilier, immatriculé au Registre Spécial des Agents Commerciaux du Tribunal de Commerce de Quimper sous le n(Numéro supprimé).Siège social du mandant : effiCity, 48 avenue de Villiers – 75017 PARIS – Société par Actions Simplifiée, société au capital de 132 373,05 euros, immatriculée au RCS Paris 497 617 746 et titulaire de la Carte professionnelle CPI 7501 2015 000 002 025 – CCI Paris IDF – Caisse de Garantie : GALIAN Assurances 89 rue de la Boétie 75008 Paris
Plomeur
TERRAINVENTE : terrain de 535 m² à PlomeurPROCHE CENTREGrand terrain en vente à 5 km de la côte atlantique et à deux pas de Quimper. De 535 m², ce terrain se situe dans Plomeur (29120).Il est à vendre pour la somme de 75 000 €. Contactez notre agence (Mathieu DEROUET : (Numéro supprimé)) pour tout renseignement sur ce terrain ou sur les démarches à suivre.
Plomeur
TERRAIN ET MAISONVENTE : maison F4 (85 m²) à PlomeurMAISON 4 PIÈCES NEUVE – PROCHE DE QUIMPEREn vente : située sur le littoral atlantique et à 23 km de Quimper, nous sommes ravis de vous proposer cette maison de 4 pièces de plain-pied de 85 m² à Plomeur (29120). Elle offre trois chambres, une cuisine et une salle de bains.Le terrain du bien s’étend sur 535 m².Elle est proposée à l’achat pour 277 000 €.N’hésitez pas à prendre contact avec Mathieu DEROUET ((Numéro supprimé)) pour plus de renseignements sur la maison ou sur les démarches à suivre.
Plomeur
TERRAIN ET MAISONPlomeur : maison T4 (120 m²) à vendrePROCHE DE QUIMPER – MAISON 4 PIÈCES NEUVEÀ vendre : à 5 km de la côte atlantique et à 23 km de Quimper, nous vous proposons à Plomeur (29120), cette maison de 4 pièces de plain-pied de 120 m² et de 535 m² de terrain. Elle propose trois chambres, une cuisine et une salle de bains.Elle est à vendre pour la somme de 369 000 €.Contactez Mathieu DEROUET (tél : (Numéro supprimé)) pour plus de renseignements sur cette maison ou sur les modalités de vente. Donnez vie à vos projets immobiliers avec Maisons de l’Avenir Quimper.
Plomeur
TERRAIN ET MAISONPlomeur : maison F4 (150 m²) en venteMAISON 4 PIÈCES NEUVE – PROCHE DE QUIMPEREn vente : sur le littoral atlantique et à deux pas de Quimper, Maisons de l’Avenir Quimper vous propose cette maison de 4 pièces de 150 m² à Plomeur (29120). Elle offre quatre chambres, une cuisine et deux salles de bains.Le terrain de la maison s’étend sur 535 m².Il s’agit d’une maison de 2 niveaux. Elle est proposée à l’achat pour 435 000 €.Contactez notre agence (DEROUET Mathieu : (Numéro supprimé)) pour obtenir de plus amples renseignements sur la maison, sur les modalités de vente et sur les démarches à suivre.
Plomeur
TERRAIN ET MAISONVENTE d’une maison F3 (100 m²) à PlomeurPROCHE DE QUIMPER – MAISON 3 PIÈCES NEUVEEn vente : sur le littoral atlantique et à 23 km de Quimper, nous vous présentons cette maison de 3 pièces de plain-pied de 100 m² à Plomeur (29120).Elle est composée de trois chambres, d’une cuisine et d’une salle de bains. La maison est neuve.Le terrain de la propriété est de 535 m².Elle est proposée à l’achat pour 325 000 €.Prenez contact avec Mathieu DEROUET (tél : (Numéro supprimé)) pour toute information sur cette maison et sur les démarches à suivre. Maisons de l’Avenir Quimper est là pour vous accompagner à toutes les étapes de l’achat.
L’actualité immobilière à Penmarch
27/11/2023
02/11/2023
30/10/2023
20/10/2023
16/10/2023
16/10/2023