Maison à construire à Plonéis (29710)
Images
Description
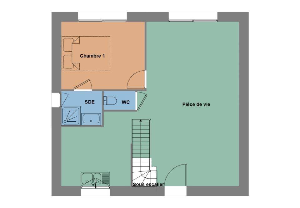
VENTE d'une maison F5 (110 m²) à Plonéis
CENTRE-VILLE - MAISON 5 PIÈCES NEUVE
À vendre : à 14 km de la côte atlantique et à deux pas de Quimper, venez découvrir cette maison de 5 pièces de 110 m² et de 400 m² de terrain à Plonéis (29710), en centre-ville. Son intérieur comporte quatre chambres, une cuisine et deux salles de bains.
Il s'agit d'une maison de 2 niveaux.
Son prix de vente est de 285 500 €.
Prenez contact avec Mathieu DEROUET ((Numéro supprimé)) pour obtenir de plus amples renseignements sur la maison.
Logement susceptibles de vous intéresser
Nous vous proposons de découvrir aussi cette sélection de logements situés à moins de 10km de Plonéis et qui seraient susceptibles de vous intéresser.
Plomelin
TERRAIN ET MAISONVENTE : maison de 4 pièces (120 m²) à PlomelinPROCHE CENTRE-VILLE – MAISON 4 PIÈCES NEUVEÀ vendre à 9 km de l’océan Atlantique et à 8 km de Quimper, proche du centre-ville de Plomelin (29700), nous vous présentons cette maison de 4 pièces de plain-pied de 120 m². Elle se divise en trois chambres, une cuisine et deux salles de bains.Le terrain de cette maison est de 452 m².La maison est neuve.L’École Primaire Privée Notre-Dame de l’Assomption et l’École Primaire Publique Lucie Aubrac sont implantées à moins de 10 minutes à pied. Côté transports en commun, on trouve la gare Quimper à moins de 10 minutes en voiture. Il y a un accès à la nationale N165 à 11 km. Il y a un tennis, deux boulangeries, trois commerces, deux supermarchés, une boucherie-charcuterie et une épicerie dans les environs.Son prix de vente est de 377 843 €.N’hésitez pas à prendre contact avec notre agence (ALKIS Sami) pour toute information sur la maison, sur les modalités de vente et sur les démarches à suivre. Concrétisez vos projets immobiliers avec Maisons de l’Avenir Guipavas.
Locronan
TERRAINEn exclusivité agence :Terrain constructible à Locronan de 1160m2 avec aperçu mer – 97 990 euros FAIDécouvrez ce magnifique terrain niché sur les hauteurs du célèbre village historique de Locronan offrant une vue imprenable sur le Porzay et l’océan.Ce terrain avec un dénivelé offre un cadre idéal pour profiter d’une vue panoramique sur le Ménez Hom et les plages.L’assainissement est tout à l’égout et les réseaux sont déjà au bord de la parcelle.Un environnement calme, très arboré et préservé.Possibilité d’acquérir en sus une parcelle d’environ 450m2 en zone naturelle donc non constructible.- Situé dans un quartier paisible- A proximité des commerces, écoles (école Ste Anne à Locronan, écoles à Plogonnec, Plonévez Porzay), services publics.- A 5 km des premières plages- Implanté au coeur d’un village historique unique, célèbre pour ses maisons en pierre et son patrimoine remarquable.Prix : 97990 euros incluant les honoraires d’un montant de 7990 euros dont 8.88% à la charge de l’acquéreur.Prix Net vendeur : 90000 eurosFrais de Notaire en Sus : 8000 eurosCe terrain est une opportunité rare pour construire la maison de vos rêves dans un environnement naturel et authentique.Contactez moi dès maintenant pour plus d’informations ou pour planifier une visite !Pour visiter et vous accompagner dans votre projet, contactez Laetitia DREAU, au (Numéro supprimé) ou, par courriel à (Email supprimé).Selon l’article L.561.5 du Code Monétaire et Financier, pour l’organisation de la visite, la présentation d’une pièce d’identité vous sera demandée.Cette présente annonce a été rédigée sous la responsabilité éditoriale de Laetitia DREAU agissant sous le statut d’agent commercial immatriculé au RSAC 948169917 QUIMPER auprès de SAS PROPRIETES PRIVEES, au capital de 44 920 euros, ZAC LE CHÊNE FERRÉ – 44 ALLÉE DES CINQ CONTINENTS 44120 VERTOU; SIRET 487 624 777 00040, RCS Nantes. Carte Professionnelle Transactions sur immeubles et fonds de commerce (T) et Gestion immobilière (G) n°CPI 4401 2016 000 010 388 délivrée par la CCI Nantes – Saint Nazaire. Compte séquestre n(Numéro supprimé)67 BPA SAINT-SEBASTIEN-SUR-LOIRE (44230). Garantie GALIAN-SMABTP – 89 rue de la Boétie, 75008 Paris – n°28137 J pour 2 000 000 euros pour T et 120 000 euros pour G. Assurance responsabilité civile professionnelle par GALIAN-SMABTP n° de police 28137.JMandat réf : 426122 – Le professionnel garantit et sécurise votre projet immobilier. (8.88 % honoraires TTC à la charge de l’acquéreur.) Julien PÉROT (EI) Agent Commercial – Numéro RSAC : SAINT BRIEUC 822474151 – .
Quimper
TERRAIN ET MAISONMaison T4 (90 m²) à vendre à QuimperPROCHE CENTRE-VILLE – MAISON 4 PIÈCES NEUVEEn vente à 14 km de l’océan Atlantique, notre agence Maisons de l’Avenir Quimper est ravie de vous proposer cette maison de 4 pièces de 90 m² et de 545 m² de terrain proche du centre-ville de Quimper (29000). Elle inclut trois chambres, une cuisine et deux salles de bains.Il s’agit d’une maison de 2 niveaux. Elle est proposée à l’achat pour 267 000 €.Prenez contact avec notre agence (Mathieu DEROUET : (Numéro supprimé)) pour tout renseignement sur la maison. Donnez vie à vos projets immobiliers avec Maisons de l’Avenir Quimper.
Quimper
TERRAIN ET MAISONVENTE : maison T4 (95 m²) à QuimperPROCHE CENTRE-VILLE – MAISON 4 PIÈCES NEUVEEn vente : située à 14 km de l’océan Atlantique, proche du centre-ville de Quimper (29000), notre agence Maisons de l’Avenir Quimper est ravie de vous présenter cette maison de 4 pièces de 95 m².Cette maison possède 2 niveaux. Son intérieur inclut trois chambres, une cuisine et deux salles de bains. Il est proposé à l’achat pour 293 000 €.Contactez Mathieu DEROUET (tél : (Numéro supprimé)) pour tout renseignement sur la maison, sur les démarches à suivre et sur les modalités de vente. Donnez vie à vos projets immobiliers avec Maisons de l’Avenir Quimper.
Plomelin
TERRAIN ET MAISONVENTE : maison T4 (100 m²) à PlomelinPROCHE CENTRE-VILLE – MAISON 4 PIÈCES NEUVEEn vente : localisée à 9 km de la côte atlantique et à quelques kilomètres de Quimper, venez découvrir, proche du centre-ville de Plomelin (29700), cette maison de 4 pièces de 100 m². Son intérieur propose quatre chambres, une cuisine et deux salles de bains.Le terrain de cette maison est de 830 m².C’est une maison de 2 niveaux. Elle est neuve.L’École Primaire Privée Notre-Dame de l’Assomption et l’École Primaire Publique Lucie Aubrac sont implantées à moins de 10 minutes à pied. Niveau transports, on trouve la gare Quimper à moins de 10 minutes en voiture. Il y a un accès à la nationale N165 à 11 km. Il y a un tennis, deux boulangeries, trois commerces, deux supermarchés, une épicerie et une boucherie-charcuterie à proximité du bien.Elle est proposée à l’achat pour 397 221 €.Prenez contact avec Sami ALKIS pour toute information sur la maison. Maisons de l’Avenir Guipavas vous accompagne dans tous vos projets immobiliers et dans toutes vos démarches.
Quimper
TERRAINVENTE : terrain de 545 m² à QuimperPROCHE CENTRE-VILLEÀ Quimper (29000) à vendre à 14 km de l’océan Atlantique, donnez vie à la maison de vos rêves sur ce terrain de 545 m². Il se situe non loin du centre-ville. Des écoles du primaire et du secondaire sont implantées à moins de 10 minutes. La nationale N165 est accessible à 3 km. Il y a une bibliothèque, des commerces, des boulangeries, un supermarché, des poissonneries et quatre supérettes dans les environs. Il est à vendre pour la somme de 54 000 €. Contactez notre agence (DEROUET Mathieu : (Numéro supprimé)) pour toute question sur ce terrain. Maisons de l’Avenir Quimper vous accompagne à toutes les étapes de votre projet et dans tous vos projets immobiliers.
Kerlaz
TERRAIN ET MAISONVENTE d’une maison T4 (128 m²) à KerlazMAISON 4 PIÈCES NEUVE – PROCHE DE QUIMPEREn vente : située sur le littoral atlantique et à deux pas de Quimper, notre agence Maisons de l’Avenir Quimper est heureuse de vous proposer à Kerlaz (29100), cette maison de 4 pièces de plain-pied de 128 m². Conçue de plain-pied, elle offre trois chambres, une cuisine et deux salles de bains.Le terrain du bien s’étend sur 546 m².La maison est neuve.L’École Primaire Publique de Kerlaz est implantée à proximité. La nationale N165 est accessible à 16 km. Il y a une bibliothèque à quelques minutes.Elle est proposée à l’achat pour 363 500 €.Prenez contact avec notre constructeur (LAURENT Marie : (Numéro supprimé)) pour tout renseignement sur cette maison, sur les démarches à suivre et sur les modalités de vente. Maisons de l’Avenir Quimper est là pour vous accompagner à toutes les étapes de l’achat.
Quimper
TERRAIN ET MAISONQuimper : maison T5 (150 m²) en ventePROCHE CENTRE-VILLE – MAISON 5 PIÈCES NEUVEÀ vendre : à 14 km de la côte atlantique, votre agence Maisons de l’Avenir Quimper est ravie de vous présenter, proche du centre-ville de Quimper (29000), cette maison de 5 pièces de 150 m² et de 545 m² de terrain. Son intérieur est composé de quatre chambres, d’une cuisine et de deux salles de bains.Cette maison compte 2 niveaux. Son prix de vente est de 399 000 €.Contactez Mathieu DEROUET ((Numéro supprimé)) pour tout renseignement sur la maison. Maisons de l’Avenir Quimper vous accompagne dans tous vos projets immobiliers et à toutes les étapes de votre projet.
Kerlaz
TERRAIN ET MAISONKerlaz : maison de 4 pièces (89 m²) en ventePROCHE DE QUIMPER – MAISON 4 PIÈCES NEUVEÀ 3 km de la côte atlantique et à 16 km de Quimper, notre agence Maisons de l’Avenir Quimper est ravie de vous proposer cette maison de 4 pièces de 89 m² et de 546 m² de terrain à vendre à Kerlaz (29100). Son intérieur se divise en trois chambres, une cuisine et deux salles de bains.Cette maison possède 2 niveaux. Elle est neuve.L’École Primaire Publique de Kerlaz se trouve à proximité. On trouve un accès à la nationale N165 à 16 km. Il y a une bibliothèque à quelques minutes à peine.Elle est proposée à l’achat pour 277 600 €.N’hésitez pas à prendre contact avec notre constructeur (Marie LAURENT : (Numéro supprimé)) pour obtenir de plus amples informations sur cette maison ou sur les modalités de vente. Maisons de l’Avenir Quimper vous accompagne dans toutes vos démarches et à toutes les étapes de votre projet.
L’actualité immobilière à Plonéis
27/11/2023
02/11/2023
30/10/2023
20/10/2023
16/10/2023
16/10/2023