Maison à construire à Plonéour-Lanvern (29720)
Images
Description
VENTE d'une maison de 4 pièces (115 m²) à Plonéour-Lanvern
PROCHE CENTRE-VILLE - MAISON 4 PIÈCES NEUVE
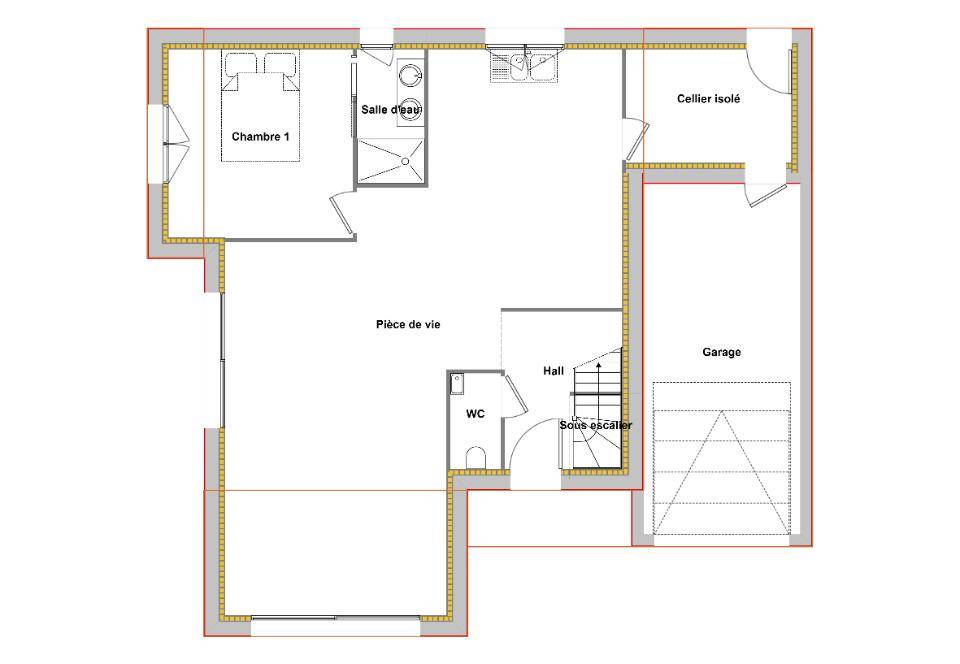
Sur le littoral atlantique et à 16 km de Quimper, Maisons de l'Avenir Quimper vous propose cette maison de 4 pièces de 115 m² à vendre proche du centre-ville de Plonéour-Lanvern (29720). Son intérieur offre quatre chambres, une cuisine et deux salles de bains.
Le terrain de la propriété s'étend sur 744 m².
Il s'agit d'une maison de 2 niveaux.
Elle est à vendre pour la somme de 370 000 €.
Contactez notre agence (DEROUET Mathieu : (Numéro supprimé)) pour obtenir de plus amples informations sur la maison.
Logement susceptibles de vous intéresser
Nous vous proposons de découvrir aussi cette sélection de logements situés à moins de 10km de Plonéour-Lanvern et qui seraient susceptibles de vous intéresser.
Tréogat
TERRAINVENTE : terrain de 727 m² à TréogatPROCHE DE QUIMPERSur le littoral atlantique et à deux pas de Quimper à Tréogat (29720), grand terrain. Réalisez-y votre projet immobilier. Il bénéficie d’une exposition sud-ouest. L’École Primaire Publique les Hirondelles se trouve à proximité.Son prix de vente est de 52 000 €. N’hésitez pas à prendre contact avec notre agence (LAURENT Marie : (Numéro supprimé)) pour plus d’informations sur ce terrain, sur les démarches à suivre ou sur les modalités de vente. Donnez vie à vos projets immobiliers avec Maisons de l’Avenir Quimper.
Plomelin
TERRAIN ET MAISONVENTE : maison de 4 pièces (120 m²) à PlomelinPROCHE CENTRE-VILLE – MAISON 4 PIÈCES NEUVEÀ vendre à 9 km de l’océan Atlantique et à 8 km de Quimper, proche du centre-ville de Plomelin (29700), nous vous présentons cette maison de 4 pièces de plain-pied de 120 m². Elle se divise en trois chambres, une cuisine et deux salles de bains.Le terrain de cette maison est de 452 m².La maison est neuve.L’École Primaire Privée Notre-Dame de l’Assomption et l’École Primaire Publique Lucie Aubrac sont implantées à moins de 10 minutes à pied. Côté transports en commun, on trouve la gare Quimper à moins de 10 minutes en voiture. Il y a un accès à la nationale N165 à 11 km. Il y a un tennis, deux boulangeries, trois commerces, deux supermarchés, une boucherie-charcuterie et une épicerie dans les environs.Son prix de vente est de 377 843 €.N’hésitez pas à prendre contact avec notre agence (ALKIS Sami) pour toute information sur la maison, sur les modalités de vente et sur les démarches à suivre. Concrétisez vos projets immobiliers avec Maisons de l’Avenir Guipavas.
Tréogat
TERRAIN ET MAISONTréogat : maison F4 (125 m²) en venteMAISON 4 PIÈCES NEUVE – PROCHE DE QUIMPERÀ 5 km de l’océan Atlantique et à quelques kilomètres de Quimper, nous vous présentons cette maison de 4 pièces de plain-pied de 125 m² en vente à Tréogat (29720). Conçue de plain-pied, elle offre trois chambres, une cuisine et deux salles de bains.Le terrain de la maison s’étend sur 727 m².Cette maison est neuve.L’École Primaire Publique les Hirondelles est implantée à moins de 10 minutes à pied.Elle est proposée à l’achat pour 331 500 €.Contactez Marie LAURENT ((Numéro supprimé)) pour toute information sur cette maison, sur les démarches à suivre et sur les modalités de vente. Donnez vie à vos projets immobiliers avec Maisons de l’Avenir Quimper.
Plomelin
TERRAIN ET MAISONVENTE : maison T4 (100 m²) à PlomelinPROCHE CENTRE-VILLE – MAISON 4 PIÈCES NEUVEEn vente : localisée à 9 km de la côte atlantique et à quelques kilomètres de Quimper, venez découvrir, proche du centre-ville de Plomelin (29700), cette maison de 4 pièces de 100 m². Son intérieur propose quatre chambres, une cuisine et deux salles de bains.Le terrain de cette maison est de 830 m².C’est une maison de 2 niveaux. Elle est neuve.L’École Primaire Privée Notre-Dame de l’Assomption et l’École Primaire Publique Lucie Aubrac sont implantées à moins de 10 minutes à pied. Niveau transports, on trouve la gare Quimper à moins de 10 minutes en voiture. Il y a un accès à la nationale N165 à 11 km. Il y a un tennis, deux boulangeries, trois commerces, deux supermarchés, une épicerie et une boucherie-charcuterie à proximité du bien.Elle est proposée à l’achat pour 397 221 €.Prenez contact avec Sami ALKIS pour toute information sur la maison. Maisons de l’Avenir Guipavas vous accompagne dans tous vos projets immobiliers et dans toutes vos démarches.
Tréogat
TERRAIN ET MAISONTréogat : maison T3 (57 m²) à vendrePROCHE DE QUIMPER – MAISON 3 PIÈCES NEUVESur la côte atlantique et à deux pas de Quimper, en vente à Tréogat (29720), nous sommes ravis de vous proposer cette maison de 3 pièces de plain-pied de 57 m² et de 727 m² de terrain.Elle offre deux chambres, une cuisine et une salle de bains. La maison est neuve.Il y a l’École Primaire Publique les Hirondelles à proximité.Elle est à vendre pour la somme de 188 990 €.Contactez Marie LAURENT (tél : (Numéro supprimé)) pour toute information sur la maison ou sur les modalités de vente. Faites de vos projets immobiliers une réalité avec Maisons de l’Avenir Quimper.
Plomelin
TERRAIN ET MAISONMaison F5 (114 m²) à vendre à PlomelinPROCHE CENTRE-VILLE – MAISON 5 PIÈCES NEUVEEn vente : sur le littoral atlantique et à 8 km de Quimper, Maisons de l’Avenir Guipavas vous propose, proche du centre-ville de Plomelin (29700), cette maison de 5 pièces de 114 m² et de 830 m² de terrain. Son intérieur comporte quatre chambres, une cuisine et une salle de bains.C’est une maison de 2 niveaux. Elle est neuve.Il y a l’École Primaire Privée Notre-Dame de l’Assomption et l’École Primaire Publique Lucie Aubrac à moins de 10 minutes à pied. Côté transports en commun, on trouve la gare Quimper à moins de 10 minutes en voiture. On trouve un accès à la nationale N165 à 11 km. Il y a un tennis, deux boulangeries, trois commerces, deux supermarchés, une épicerie et une boucherie-charcuterie dans les environs.Son prix de vente est de 443 622 €.Contactez notre agence (ALKIS Sami) pour toute question sur la maison. Faites de vos projets immobiliers une réalité avec Maisons de l’Avenir Guipavas.
Plomelin
TERRAINVENTE : terrain de 830 m² à PlomelinPROCHE CENTRE-VILLE – PROCHE DE QUIMPERÀ Plomelin (29700) à 9 km de l’océan Atlantique et à quelques kilomètres de Quimper, donnez vie à votre projet immobilier sur ce terrain de 830 m². Il est orienté au sud-ouest. Il est situé non loin du centre-ville. L’École Primaire Privée Notre-Dame de l’Assomption et l’École Primaire Publique Lucie Aubrac sont implantées à moins de 10 minutes à pied. Côté transports, il y a la gare Quimper à moins de 10 minutes en voiture. La nationale N165 est accessible à 11 km. On trouve un tennis, deux boulangeries, trois commerces, deux supermarchés, une épicerie et une boucherie-charcuterie à proximité du bien.Ce terrain est proposé à l’achat pour 129 000 €. Contactez notre agence (ALKIS Sami) pour toute question sur ce terrain, sur les modalités de vente et sur les démarches à suivre. Donnez vie à vos projets immobiliers avec Maisons de l’Avenir Guipavas.
Plomelin
TERRAIN ET MAISONVENTE d’une maison F4 (117 m²) à PlomelinPROCHE CENTRE-VILLE – MAISON 4 PIÈCES NEUVEEn vente : située sur le littoral atlantique et à 8 km de Quimper, votre agence Maisons de l’Avenir Guipavas est heureuse de vous présenter, proche du centre-ville de Plomelin (29700), cette maison de 4 pièces de 117 m² et de 452 m² de terrain. Elle propose trois chambres, une cuisine et deux salles de bains.C’est une maison de 2 niveaux. Elle est neuve.On trouve l’École Primaire Privée Notre-Dame de l’Assomption et l’École Primaire Publique Lucie Aubrac à moins de 10 minutes à pied. Niveau transports en commun, il y a la gare Quimper à moins de 10 minutes en voiture. La nationale N165 est accessible à 11 km. On trouve un tennis, deux boulangeries, trois commerces, deux supermarchés, une épicerie et une boucherie-charcuterie à quelques minutes à peine.Elle est à vendre pour la somme de 352 217 €.N’hésitez pas à prendre contact avec Sami ALKIS pour obtenir de plus amples renseignements sur la maison ou sur les modalités de vente.
Plomelin
TERRAIN ET MAISONVENTE : maison de 5 pièces (142 m²) à PlomelinPROCHE CENTRE-VILLE – MAISON 5 PIÈCES NEUVESur le littoral atlantique et à quelques kilomètres de Quimper, votre agence Maisons de l’Avenir Guipavas est ravie de vous proposer à vendre, proche du centre-ville de Plomelin (29700), cette maison de 5 pièces de 142 m² et de 830 m² de terrain.Il s’agit d’une maison de 2 niveaux. Son intérieur se divise en quatre chambres, une cuisine et deux salles de bains. Cette maison est neuve.Il y a l’École Primaire Privée Notre-Dame de l’Assomption et l’École Primaire Publique Lucie Aubrac à moins de 10 minutes à pied. Côté transports en commun, on trouve la gare Quimper à moins de 10 minutes en voiture. Il y a un accès à la nationale N165 à 11 km. Il y a un tennis, deux boulangeries, trois commerces, deux supermarchés, une boucherie-charcuterie et une épicerie dans les environs.Son prix de vente est de 451 828 €.Contactez Sami ALKIS pour tout renseignement sur la propriété ou sur les modalités de vente. Maisons de l’Avenir Guipavas est là pour vous accompagner dans toutes vos démarches.
L’actualité immobilière à Plonéour-Lanvern
27/11/2023
02/11/2023
30/10/2023
20/10/2023
16/10/2023
16/10/2023