Maison à construire à Ploudaniel (29260)
Images
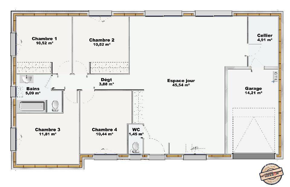
Description
Ploudaniel : maison F5 (104 m²) à vendre
Nouveau Murs Ossature Bois
Cette belle maison traditionnelle aux lignes contemporaines offre 104m² habitable .
Elle dispose d'une belle pièce de vie offrant un maximum de lumière, 4 chambres, une salle de bains, un WC, ainsi qu'un cellier et un garage.
L'orientation de cette maison vous permettra de bénéficier d'un maximum de lumière et de chaleur naturelle pour davantage d'économies et de douceur de vivre.
Elle est à vendre pour la somme de 316 800 €.
Prenez contact avec Aurélie CAGNARD ((Numéro supprimé)) pour toute information sur la maison. Maisons de l'Avenir Guipavas est là pour vous accompagner dans tous vos projets immobiliers.
Logement susceptibles de vous intéresser
Nous vous proposons de découvrir aussi cette sélection de logements situés à moins de 10km de Ploudaniel et qui seraient susceptibles de vous intéresser.
Kernilis
TERRAIN ET MAISONDEVENEZ PROPRIÉTAIRE À KERNILIS – MAISON NEUVE RE2020 SUR-MESURE !Vivez dans un cadre de vie privilégié à Kernilis, charmante commune du Finistère, tout en restant proche des commerces, écoles et services – idéal pour votre famille ! Votre future maison comprend :4 chambres spacieuses et lumineusesUn grand salon-séjour traversant, ouvert sur le jardinUne cuisine moderne et fonctionnelleSalle de bain et WC séparésTerrain de 600 m², bien orienté Les atouts du projet :Maison neuve RE2020, à faible consommation d’énergiePlan personnalisable selon vos besoinsCadre de vie paisible, proche des commodités et du littoralPrestations de qualité, finitions soignées Prix indiqué hors frais Photos non contractuelles, à titre d’illustration Accession à la propriété possible avec ou sans apportNe manquez pas cette opportunité de devenir propriétaire d’une maison neuve moderne et économique à Kernilis ! Contactez-nous dès maintenant pour découvrir les plans et étudier votre projet personnalisé.
Saint-Thonan
TERRAIN ET MAISONDEVENEZ PROPRIÉTAIRE À SAINT-THONAN – MAISON NEUVE RE2020 SUR-MESURE !Vivez dans un cadre de vie privilégié à Saint-Thonan, charmante commune du Finistère, tout en restant proche des commerces, écoles et services – idéal pour votre famille ! Votre future maison comprend 😮 3 chambres spacieuses et lumineuseso Un grand salon-séjour traversant, ouvert sur le jardino Une cuisine moderne et fonctionnelleo Salle de bain et WC séparéso Le tout sur un terrain bien orienté Les atouts du projet 😮 Maison neuve RE2020, à faible consommation d’énergieo Plan personnalisable selon vos besoinso Cadre de vie paisible, proche des commodités et du littoralo Prestations de qualité, finitions soignées Prix indiqué hors frais Photos non contractuelles à titre d’illustration Accession à la propriété possible avec ou sans apportNe manquez pas cette belle opportunité de devenir propriétaire d’une maison neuve moderne et économique à Saint-Thonan ! Contactez-nous dès maintenant pour découvrir les plans et étudier votre projet personnalisé.
Le Drennec
TERRAINDEVENEZ PROPRIÉTAIRE D’UN TERRAIN AU DRENNEC !Installez-vous dans un cadre de vie calme et verdoyant au Drennec, charmante commune du Nord-Finistère, idéalement située à proximité de Brest et du littoral.Profitez d’un environnement paisible et résidentiel, tout en restant proche des commerces, écoles et services – le lieu parfait pour concrétiser votre projet de construction ! Votre terrain comprend 😮 Une surface de 418 m², bien orientéeo Libre de constructeur, pour bâtir la maison de vos rêves Les atouts du projet 😮 Terrain viabilisé ou proche des réseauxo Cadre de vie agréable, proche de Brest et du littoral nordo Plan de maison personnalisable selon vos besoins et vos envies Prix indiqué hors frais Photos non contractuelles, à titre d’illustration Accession possible avec ou sans apportNe manquez pas cette opportunité rare de devenir propriétaire d’un terrain au Drennec, et de réaliser votre maison sur mesure dans un cadre de vie agréable et recherché ! Contactez-nous dès maintenant pour plus d’informations et pour étudier ensemble votre projet.
Kernilis
TERRAINDEVENEZ PROPRIÉTAIRE D’UN TERRAIN À KERNILIS !Installez-vous dans un cadre de vie calme et verdoyant à Kernilis, charmante commune du Nord-Finistère, située à proximité de Saint-Pol-de-Léon et de la mer.Profitez d’un environnement paisible et agréable, tout en restant proche des commerces, écoles et services – le lieu idéal pour concrétiser votre projet de construction ! Votre terrain comprend 😮 Une surface de 600 m², bien orientéeo Libre de constructeur, pour bâtir la maison de vos rêves Les atouts du projet 😮 Terrain viabilisé ou à proximité des réseauxo Cadre de vie recherché, proche de la mer et des commodités localeso Plan de maison personnalisable selon vos besoins et votre style de vie Prix indiqué hors frais Photos non contractuelles, fournies à titre d’illustration Accession possible avec ou sans apportNe laissez pas passer cette opportunité rare de devenir propriétaire d’un terrain à Kernilis, et de réaliser votre maison sur mesure dans un environnement calme et verdoyant ! Contactez-nous dès maintenant pour plus d’informations et pour étudier votre projet.
Ploudaniel
TERRAINDEVENEZ PROPRIÉTAIRE D’UN TERRAIN À PLOUDANIEL !Vivez dans un cadre de vie paisible et convivial à Ploudaniel, charmante commune du Nord-Finistère, idéalement située entre Landerneau et Lesneven.Profitez d’un environnement verdoyant et calme, tout en restant proche des commerces, écoles et services – l’endroit parfait pour réaliser votre projet de construction ! Votre terrain comprend 😮 Une surface de 860 m², bien orientée et agréable à aménagero Libre de constructeur, pour concevoir la maison qui vous ressemble Les atouts du projet 😮 Terrain viabilisé ou à proximité des réseauxo Cadre de vie tranquille, à seulement quelques minutes de Landerneau et de la voie expresso Plan personnalisable, selon vos envies et vos besoins Prix indiqué hors frais Photos non contractuelles, à titre d’illustration Accession possible avec ou sans apportNe manquez pas cette belle opportunité de devenir propriétaire d’un terrain à Ploudaniel, et de construire votre maison sur mesure dans un environnement agréable et bien situé ! Contactez-nous dès maintenant pour plus d’informations et pour étudier ensemble votre projet.
Saint-Thonan
TERRAINDEVENEZ PROPRIÉTAIRE D’UN TERRAIN À SAINT-THONAN !Vivez dans un cadre de vie agréable et dynamique à Saint-Thonan, charmante commune du Nord-Finistère, idéalement située entre Landerneau et Brest.Profitez d’un environnement calme et verdoyant, tout en restant proche des commerces, écoles et services – un lieu idéal pour concrétiser votre projet de construction ! Votre terrain comprend 😮 Une surface de 400 m², bien orientéeo Libre de constructeur, pour bâtir la maison qui vous correspond Les atouts du projet 😮 Terrain viabilisé ou à proximité immédiate des réseauxo Emplacement stratégique, à quelques minutes de Brest et de Landerneauo Plan personnalisable selon vos besoins et votre mode de vie Prix indiqué hors frais Photos non contractuelles, à titre d’illustration Accession possible avec ou sans apportNe manquez pas cette opportunité rare de devenir propriétaire d’un terrain à Saint-Thonan, et de réaliser votre maison sur mesure dans un environnement paisible et bien situé ! Contactez-nous dès maintenant pour plus d’informations et pour étudier ensemble votre projet.
Lanhouarneau
TERRAINVENTE d’un terrain de 638 m² à LanhouarneauPROCHE CENTRE-VILLE – PROCHE DE BRESTÀ vendre sur le littoral et à deux pas de Brest à Lanhouarneau (29430), grand terrain. Réalisez-y la maison de vos rêves. Il bénéficie d’une exposition sud-ouest. Ce terrain est situé non loin du centre-ville. Il y a l’École Primaire Privée Sainte Thérèse à moins de 10 minutes à pied. La nationale N12 est accessible à 10 km. On trouve une bibliothèque, une boulangerie et une épicerie à quelques minutes.Il est à vendre pour la somme de 35 000 €. Contactez Sami ALKIS pour plus d’informations sur ce terrain, sur les modalités de vente et sur les démarches à suivre. Maisons de l’Avenir Guipavas est là pour vous accompagner à toutes les étapes de votre projet.
Lanhouarneau
TERRAIN ET MAISONMaison T5 (102 m²) en vente à LanhouarneauPROCHE CENTRE-VILLE – MAISON 5 PIÈCES NEUVEÀ vendre : localisée à quelques kilomètres de la mer et à 29 km de Brest, proche du centre-ville de Lanhouarneau (29430), nous vous présentons cette maison de 5 pièces de 102 m² et de 638 m² de terrain. Son intérieur dispose de quatre chambres, d’une cuisine et de deux salles de bains.Il s’agit d’une maison de 2 niveaux. Elle est neuve.Il y a l’École Primaire Privée Sainte Thérèse à moins de 10 minutes à pied. La nationale N12 est accessible à 10 km. On trouve une bibliothèque, une boulangerie et une épicerie dans les environs.Elle est proposée à l’achat pour 228 954 €.Contactez notre agence (Sami ALKIS) pour toute question sur la maison ou sur les démarches à suivre. Maisons de l’Avenir Guipavas est là pour vous accompagner dans tous vos projets immobiliers.
Lanhouarneau
TERRAIN ET MAISONVENTE : maison T3 (86 m²) à LanhouarneauPROCHE CENTRE-VILLE – MAISON 3 PIÈCES NEUVEEn vente : à quelques kilomètres de la mer et à 29 km de Brest, proche du centre-ville de Lanhouarneau (29430), nous vous présentons cette maison de 3 pièces de plain-pied de 86 m².Conçue de plain-pied, elle dispose de trois chambres, d’une cuisine et d’une salle de bains. Cette maison est neuve.Le terrain du bien s’étend sur 638 m².On trouve l’École Primaire Privée Sainte Thérèse à moins de 10 minutes à pied. Il y a un accès à la nationale N12 à 10 km. Il y a une bibliothèque, une boulangerie et une épicerie à proximité.Elle est à vendre pour la somme de 237 931 €.Contactez Sami ALKIS pour tout renseignement sur la propriété ou sur les modalités de vente. Donnez vie à vos projets immobiliers avec Maisons de l’Avenir Guipavas.
L’actualité immobilière à Ploudaniel
27/11/2023
02/11/2023
30/10/2023
20/10/2023
16/10/2023
16/10/2023