Maison à construire à Plougar (29440)
Images
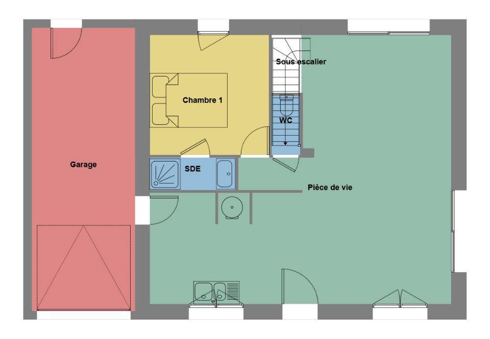
Description
Plougar : maison T6 (119 m²) à vendre
Le terrain de la propriété s'étend sur 788 m².
Cette belle maison traditionnelle aux lignes contemporaines offre 119m² habitable . Au rez-de-chaussée, elle dispose d'une belle pièce de vie offrant un maximum de lumière, d'une suite parentale avec sa salle d'eau, d'un wc et son garage. A l'étage on retrouve 4 chambres, une salle de bains, et un WC. L'orientation de cette maison vous permettra de bénéficier d'un maximum de lumière et de chaleur naturelle pour davantage d'économies et de douceur de vivre.
Elle est proposée à l'achat pour 308 241 €.
Contactez Aurélie CAGNARD ((Numéro supprimé)) pour toute information sur cette maison, sur les modalités de vente ou sur les démarches à suivre. Maisons de l'Avenir Guipavas est là pour vous accompagner dans tous vos projets immobiliers.
Logement susceptibles de vous intéresser
Nous vous proposons de découvrir aussi cette sélection de logements situés à moins de 10km de Plougar et qui seraient susceptibles de vous intéresser.
Bodilis
TERRAINDEVENEZ PROPRIÉTAIRE D’UN TERRAIN À BODILIS !Installez-vous dans un cadre de vie calme et verdoyant à Bodilis, charmante commune du Nord-Finistère, idéalement située à proximité de Landivisiau et de Morlaix.Profitez d’un environnement paisible et agréable, tout en restant proche des commerces, écoles et services – l’endroit idéal pour concrétiser votre projet de construction ! Votre terrain comprend 😮 Une surface de 824 m², bien orientéeo Libre de constructeur, pour bâtir la maison de vos rêves Les atouts du projet 😮 Terrain viabilisé ou à proximité des réseauxo Cadre de vie recherché, proche des commodités et de la campagneo Plan de maison personnalisable selon vos besoins et envies Prix indiqué hors frais Photos non contractuelles, à titre d’illustration Accession possible avec ou sans apportNe laissez pas passer cette opportunité rare de devenir propriétaire d’un terrain à Bodilis, et de réaliser votre maison sur mesure dans un cadre de vie agréable et bien situé ! Contactez-nous dès maintenant pour plus d’informations et pour étudier votre projet.
Plougar
TERRAIN ET MAISONPlougar : maison T6 (119 m²) à vendreLe terrain de la propriété s’étend sur 788 m².Cette belle maison traditionnelle aux lignes contemporaines offre 119m² habitable . Au rez-de-chaussée, elle dispose d’une belle pièce de vie offrant un maximum de lumière, d’une suite parentale avec sa salle d’eau, d’un wc et son garage. A l’étage on retrouve 4 chambres, une salle de bains, et un WC. L’orientation de cette maison vous permettra de bénéficier d’un maximum de lumière et de chaleur naturelle pour davantage d’économies et de douceur de vivre.Elle est proposée à l’achat pour 308 241 €.Contactez Aurélie CAGNARD ((Numéro supprimé)) pour toute information sur cette maison, sur les modalités de vente ou sur les démarches à suivre. Maisons de l’Avenir Guipavas est là pour vous accompagner dans tous vos projets immobiliers.
Plougar
TERRAIN ET MAISONPlougar : maison F5 (140 m²) en venteCette belle maison traditionnelle aux lignes contemporaines offre 140 m² habitable . Au rez-de-chaussée, elle dispose d’une belle pièce de vie offrant un maximum de lumière, d’une grande suite parentale avec sa salle d’eau, d’un wc et d’un très grand cellier. A l’étage on retrouve 3 chambres, une salle de bains, et un WC. L’orientation de cette maison vous permettra de bénéficier d’un maximum de lumière et de chaleur naturelle pour davantage d’économies et de douceur de vivreElle est proposée à l’achat pour 378 500 €.Contactez Aurélie CAGNARD (tél : (Numéro supprimé)) pour tout renseignement sur la maison, sur les modalités de vente ou sur les démarches à suivre. Maisons de l’Avenir Guipavas vous accompagne dans tous vos projets immobiliers et dans toutes vos démarches.
Plougar
TERRAIN ET MAISONVENTE d’une maison de 7 pièces (104 m²) à PlougarNouveau Murs Ossature BoisCette belle maison traditionnelle aux lignes contemporaines offre 104m² habitable . Elle dispose d’une suite parentale avec sa salle d’eau, d’une belle pièce de vie offrant un maximum de lumière et d’un cellier.A l’étage vous disposerez 4 chambres et une salle de bains.L’orientation de cette maison vous permettra de bénéficier d’un maximum de lumière et de chaleur naturelle pour davantage d’économies et de douceur de vivre.Aux normes RE2020, peu énergivore, elle vous ravira par son confort de vie.Son prix de vente est de 270 641 €.Contactez Aurélie CAGNARD ((Numéro supprimé)) pour plus de renseignements sur la maison, sur les démarches à suivre et sur les modalités de vente. Maisons de l’Avenir Guipavas est là pour vous accompagner à toutes les étapes de votre projet.
Lanhouarneau
TERRAINVENTE d’un terrain de 638 m² à LanhouarneauPROCHE CENTRE-VILLE – PROCHE DE BRESTÀ vendre sur le littoral et à deux pas de Brest à Lanhouarneau (29430), grand terrain. Réalisez-y la maison de vos rêves. Il bénéficie d’une exposition sud-ouest. Ce terrain est situé non loin du centre-ville. Il y a l’École Primaire Privée Sainte Thérèse à moins de 10 minutes à pied. La nationale N12 est accessible à 10 km. On trouve une bibliothèque, une boulangerie et une épicerie à quelques minutes.Il est à vendre pour la somme de 35 000 €. Contactez Sami ALKIS pour plus d’informations sur ce terrain, sur les modalités de vente et sur les démarches à suivre. Maisons de l’Avenir Guipavas est là pour vous accompagner à toutes les étapes de votre projet.
Lanhouarneau
TERRAIN ET MAISONMaison T5 (102 m²) en vente à LanhouarneauPROCHE CENTRE-VILLE – MAISON 5 PIÈCES NEUVEÀ vendre : localisée à quelques kilomètres de la mer et à 29 km de Brest, proche du centre-ville de Lanhouarneau (29430), nous vous présentons cette maison de 5 pièces de 102 m² et de 638 m² de terrain. Son intérieur dispose de quatre chambres, d’une cuisine et de deux salles de bains.Il s’agit d’une maison de 2 niveaux. Elle est neuve.Il y a l’École Primaire Privée Sainte Thérèse à moins de 10 minutes à pied. La nationale N12 est accessible à 10 km. On trouve une bibliothèque, une boulangerie et une épicerie dans les environs.Elle est proposée à l’achat pour 228 954 €.Contactez notre agence (Sami ALKIS) pour toute question sur la maison ou sur les démarches à suivre. Maisons de l’Avenir Guipavas est là pour vous accompagner dans tous vos projets immobiliers.
Lanhouarneau
TERRAIN ET MAISONVENTE : maison T3 (86 m²) à LanhouarneauPROCHE CENTRE-VILLE – MAISON 3 PIÈCES NEUVEEn vente : à quelques kilomètres de la mer et à 29 km de Brest, proche du centre-ville de Lanhouarneau (29430), nous vous présentons cette maison de 3 pièces de plain-pied de 86 m².Conçue de plain-pied, elle dispose de trois chambres, d’une cuisine et d’une salle de bains. Cette maison est neuve.Le terrain du bien s’étend sur 638 m².On trouve l’École Primaire Privée Sainte Thérèse à moins de 10 minutes à pied. Il y a un accès à la nationale N12 à 10 km. Il y a une bibliothèque, une boulangerie et une épicerie à proximité.Elle est à vendre pour la somme de 237 931 €.Contactez Sami ALKIS pour tout renseignement sur la propriété ou sur les modalités de vente. Donnez vie à vos projets immobiliers avec Maisons de l’Avenir Guipavas.
Lanhouarneau
TERRAIN ET MAISONVENTE : maison T5 (125 m²) à LanhouarneauPROCHE CENTRE-VILLE – MAISON 5 PIÈCES NEUVEÀ vendre : localisée sur le littoral et à deux pas de Brest, proche du centre-ville de Lanhouarneau (29430), découvrez cette maison de 5 pièces de 125 m² et de 638 m² de terrain.C’est une maison de 2 niveaux. Elle compte quatre chambres, une cuisine et deux salles de bains. Cette maison est neuve.Il y a l’École Primaire Privée Sainte Thérèse à moins de 10 minutes à pied. La nationale N12 est accessible à 10 km. On trouve une bibliothèque, une boulangerie et une épicerie à quelques minutes.Il est proposé à l’achat pour 321 377 €.Prenez contact avec Sami ALKIS pour tout renseignement sur la maison, sur les modalités de vente ou sur les démarches à suivre. Maisons de l’Avenir Guipavas est là pour vous accompagner dans tous vos projets immobiliers.
Lanhouarneau
TERRAINLanhouarneau : terrain de 468 m² à vendrePROCHE CENTRE-VILLE – PROCHE DE BRESTEn vente à quelques kilomètres de la mer et à deux pas de Brest à Lanhouarneau (29430), terrain de 468 m². Il bénéficie d’une exposition sud-ouest. Il est situé non loin du centre-ville. L’École Primaire Privée Sainte Thérèse se trouve à moins de 10 minutes à pied. La nationale N12 est accessible à 10 km. Il y a une bibliothèque, une boulangerie et une épicerie à proximité du bien.Ce terrain est à vendre pour la somme de 26 000 €. N’hésitez pas à prendre contact avec notre agence (ALKIS Sami) pour plus d’informations sur le terrain, sur les modalités de vente ou sur les démarches à suivre. Maisons de l’Avenir Guipavas est là pour vous accompagner à toutes les étapes de votre projet.
L’actualité immobilière à Plougar
27/11/2023
02/11/2023
30/10/2023
20/10/2023
16/10/2023
16/10/2023