Maison à construire à Plouguerneau (29880)
Images
Description
📢 À vendre : Terrain à Plouguerneau, proche de la mer ! 🌊
Dernière opportunité dans un charmant lotissement de 11 lots ! Ce magnifique terrain de 348 m² vous attend à Plouguerneau, à quelques pas de la mer, pour un prix attractif de 49 000 €.
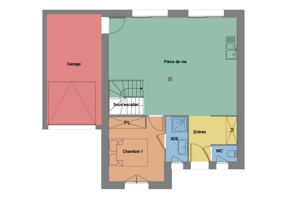
✨ Projet clé en main : Sur ce terrain, nous vous proposons les plans d'une maison de plain-pied de 115 m², comprenant :
4 chambres confortables 🛏️
Un espace de vie tout ouvert, lumineux et convivial 🛋️
Une vaste salle de bain et une salle d'eau privé supplémentaire🚿
Un garage pratique pour protéger ou stocker votre voiture 🚗
Ce projet s'inscrit dans le cadre de nos maisons passives Bâti Activ', conçues pour optimiser l'ensoleillement et maximiser les gains d'énergie. 🌞💡
Prix du projet terrain + maison : 320 000 €
Ne laissez pas passer cette belle opportunité ! Contactez dès maintenant Erwan Tilly des Maisons de l'Avenir pour visiter le terrain et concevoir votre future maison sur mesure, adaptée à vos envies et besoins.
Faites vite, ce bien va partir très rapidement ! 🏡
Logement susceptibles de vous intéresser
Nous vous proposons de découvrir aussi cette sélection de logements situés à moins de 10km de Plouguerneau et qui seraient susceptibles de vous intéresser.
Kerlouan
TERRAIN ET MAISONKerlouan : maison F5 (164 m²) en venteMAISON 5 PIÈCES NEUVE – PROCHE DE BRESTÀ quelques kilomètres de la mer et à deux pas de Brest, notre agence Maisons de l’Avenir Guipavas est heureuse de vous proposer cette maison de 5 pièces de 164 m² à vendre à Kerlouan (29890). Son intérieur inclut quatre chambres, une cuisine et deux salles de bains.Le terrain de la propriété est de 588 m².Cette maison possède 2 niveaux. Elle est neuve.L’École Primaire Privée Sainte Anne est implantée à moins de 10 minutes à pied. On trouve un accès à la nationale N12 à 19 km. Il y a une bibliothèque, une boulangerie, un commerce, un supermarché, une boucheries-charcuteries et un bureau de poste dans les environs.Son prix de vente est de 458 000 €.Contactez Aurélie CAGNARD pour plus de renseignements sur cette maison.
Guissény
TERRAINTerrain de 867 m² en vente à GuissényPROCHE DE BRESTSur le littoral et à 24 km de Brest à Guissény (29880), grand terrain. Il est prêt à accueillir votre projet de construction pour toute la famille. L’Annexe du Collège Privé Diwan Penn Ar Bed Relecq-Kerhuon et l’École Primaire Privée Sainte Jeanne d’Arc sont implantés dans la commune. Il y a un accès à la nationale N12 à 18 km. Il y a une bibliothèque à proximité de la propriété.Il est proposé à l’achat pour 110 000 €. Contactez Aurélie CAGNARD pour toute question sur ce terrain ou sur les modalités de vente. Faites de vos projets immobiliers une réalité avec Maisons de l’Avenir Guipavas.
Kerlouan
TERRAINKerlouan : terrain de 588 m² à vendrePROCHE DE BRESTÀ Kerlouan (29890) en vente à quelques kilomètres de la mer et à deux pas de Brest, donnez vie à votre résidence principale ou secondaire sur ce terrain de 588 m². L’École Primaire Privée Sainte Anne est implantée à moins de 10 minutes à pied. La nationale N12 est accessible à 19 km. On trouve une bibliothèque, une boulangerie, un commerce, un supermarché, un bureau de poste et une boucherie-charcuterie dans les environs.Son prix de vente est de 50 000 €. N’hésitez pas à prendre contact avec notre agence (CAGNARD Aurélie) pour tout renseignement sur ce terrain et sur les démarches à suivre. Donnez vie à vos projets immobiliers avec Maisons de l’Avenir Guipavas.
Kerlouan
TERRAIN ET MAISONKerlouan : maison de 4 pièces (90 m²) à vendreMAISON 4 PIÈCES NEUVE – PROCHE DE BRESTÀ vendre : sur le littoral et à 28 km de Brest, Maisons de l’Avenir Guipavas vous propose cette maison de 4 pièces de 90 m² à Kerlouan (29890). Son intérieur comporte trois chambres, une cuisine et deux salles de bains.Le terrain de la propriété est de 588 m².C’est une maison de 2 niveaux. Elle est neuve.Il y a l’École Primaire Privée Sainte Anne à moins de 10 minutes à pied. On trouve un accès à la nationale N12 à 19 km. On trouve une bibliothèque, une boulangerie, un commerce, un supermarché, un bureau de poste et une boucherie-charcuterie à proximité du bien.Son prix de vente est de 305 000 €.N’hésitez pas à prendre contact avec Aurélie CAGNARD pour obtenir de plus amples informations sur cette maison, sur les démarches à suivre ou sur les modalités de vente. Maisons de l’Avenir Guipavas vous accompagne dans tous vos projets immobiliers et à toutes les étapes de l’achat.
Guissény
TERRAIN ET MAISONVENTE : maison de 6 pièces (117 m²) à GuissényPROCHE DE BREST – MAISON 6 PIÈCES NEUVEEn vente : à quelques kilomètres de la mer et à 24 km de Brest, Maisons de l’Avenir Guipavas vous présente à Guissény (29880), cette maison de 6 pièces de 117 m² et de 867 m² de terrain.C’est une maison de 2 niveaux. Elle inclut cinq chambres, une cuisine et deux salles de bains. La maison est neuve.Il y a l’Annexe du Collège Privé Diwan Penn Ar Bed Relecq-Kerhuon et l’École Primaire Privée Sainte Jeanne d’Arc dans la commune. La nationale N12 est accessible à 18 km. On trouve une bibliothèque à proximité de la maison.Elle est proposée à l’achat pour 359 000 €.N’hésitez pas à prendre contact avec Aurélie CAGNARD pour toute information sur cette maison ou sur les démarches à suivre. Concrétisez vos projets immobiliers avec Maisons de l’Avenir Guipavas.
Guissény
TERRAIN ET MAISONVENTE : maison T4 (152 m²) à GuissényPROCHE DE BREST – MAISON 4 PIÈCES NEUVEÀ vendre : située à quelques kilomètres de la mer et à 24 km de Brest, à Guissény (29880), nous sommes ravis de vous présenter cette maison de 4 pièces de 152 m².Il s’agit d’une maison de 2 niveaux. Son intérieur dispose de trois chambres, d’une cuisine et de deux salles de bains. Cette maison est neuve.Le terrain de la propriété s’étend sur 867 m².Il y a l’Annexe du Collège Privé Diwan Penn Ar Bed Relecq-Kerhuon et l’École Primaire Privée Sainte Jeanne d’Arc dans la commune. Il y a un accès à la nationale N12 à 18 km. On trouve une bibliothèque dans les environs.Son prix de vente est de 429 000 €.Prenez contact avec Aurélie CAGNARD pour tout renseignement sur la maison.
Guissény
TERRAIN ET MAISONMaison de 6 pièces (167 m²) à vendre à GuissényPROCHE DE BREST – MAISON 6 PIÈCES NEUVEEn vente : localisée sur le littoral et à 24 km de Brest, venez découvrir cette maison de 6 pièces de 167 m² et de 867 m² de terrain à Guissény (29880). Son intérieur offre quatre chambres, une cuisine et deux salles de bains.C’est une maison de 2 niveaux. Elle est neuve.L’Annexe du Collège Privé Diwan Penn Ar Bed Relecq-Kerhuon et l’École Primaire Privée Sainte Jeanne d’Arc sont implantés dans la commune. Il y a un accès à la nationale N12 à 18 km. On trouve une bibliothèque à quelques minutes à peine.Elle est à vendre pour la somme de 459 000 €.Prenez contact avec Aurélie CAGNARD pour plus de renseignements sur ce bien, sur les modalités de vente ou sur les démarches à suivre.
Kerlouan
TERRAIN ET MAISONMaison de 4 pièces (80 m²) à vendre à KerlouanPROCHE DE BREST – MAISON 4 PIÈCES NEUVEEn vente : à quelques kilomètres de la mer et à quelques kilomètres de Brest, nous sommes heureux de vous proposer à Kerlouan (29890), cette maison de 4 pièces de plain-pied de 80 m².Elle compte trois chambres, une cuisine et une salle de bains. Cette maison est neuve.Le terrain du bien est de 588 m².L’École Primaire Privée Sainte Anne est implantée à moins de 10 minutes à pied. La nationale N12 est accessible à 19 km. Il y a une bibliothèque, une boulangerie, un commerce, un supermarché, une boucheries-charcuteries et un bureau de poste à proximité.Elle est à vendre pour la somme de 270 000 €.Contactez Aurélie CAGNARD pour plus d’informations sur cette maison, sur les modalités de vente ou sur les démarches à suivre.
Guissény
TERRAIN ET MAISONMaison F5 (89 m²) en vente à GuissényPROCHE DE BREST – MAISON 5 PIÈCES NEUVEEn vente à quelques kilomètres de la mer et à 24 km de Brest, ayez le coup de coeur pour cette maison de 5 pièces de 89 m² à Guissény (29880). Elle dispose de quatre chambres, d’une cuisine et de deux salles de bains.Le terrain de la maison s’étend sur 867 m².C’est une maison de 2 niveaux. Elle est neuve.Il y a l’Annexe du Collège Privé Diwan Penn Ar Bed Relecq-Kerhuon et l’École Primaire Privée Sainte Jeanne d’Arc dans la commune. On trouve un accès à la nationale N12 à 18 km. On trouve une bibliothèque dans les environs.Son prix de vente est de 303 000 €.Contactez Aurélie CAGNARD pour obtenir de plus amples renseignements sur cette maison. Maisons de l’Avenir Guipavas est là pour vous accompagner dans tous vos projets immobiliers.
L’actualité immobilière à Plouguerneau
27/11/2023
02/11/2023
30/10/2023
20/10/2023
16/10/2023
16/10/2023