Maison à construire à Plourin (29830)
Images
Description
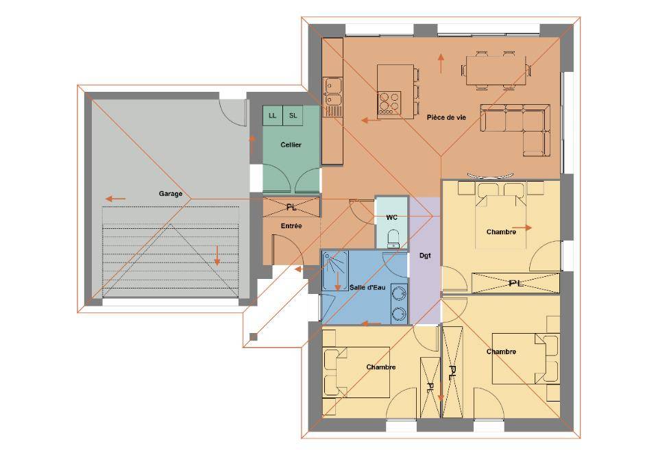
Maison T4 (95 m²) en vente à Plourin
MAISON 4 PIÈCES NEUVE - PROCHE DE BREST
Sur le littoral et à deux pas de Brest, votre agence Maisons de l'Avenir Guipavas est ravie de vous proposer cette maison de 4 pièces de plain-pied de 95 m² et de 775 m² de terrain en vente à Plourin (29830). Elle propose trois chambres, une cuisine et une salle de bains.
Son prix de vente est de 303 000 €.
Contactez Jean ROPERS (tél : (Numéro supprimé)) pour toute question sur la maison. Faites de vos projets immobiliers une réalité avec Maisons de l'Avenir Guipavas.
Logement susceptibles de vous intéresser
Nous vous proposons de découvrir aussi cette sélection de logements situés à moins de 10km de Plourin et qui seraient susceptibles de vous intéresser.
Lampaul-Ploudalmézeau
TERRAIN ET MAISON📍 À VENDRE – Terrain constructible 622 m² à Lampaul-Ploudalmézeau (99800€)À saisir rapidement !Dans un petit lotissement intimiste de seulement 4 lots, découvrez ce beau terrain constructible de 622 m², situé à 1 km de la plage des Trois Moutons.🌊 Atouts du terrain :Exposition idéale avec vue mer dégagéeEnvironnement calme et préservé 🌿Dernier lot disponible – libre de constructeurCadre parfait pour une résidence principale ou secondaire💡 Nous vous proposons sur ce terrain un projet de maison de 93 m², au style contemporain comprenant :4 chambres dont une suite parentale 🛏️1 salles de bains avec douche et baignoire 🚿Un vaste espace de vie de plus de 35 m² lumineux ☀️Un grand garage 🚗Une conception intégrée dans notre concept Maisons Bâti Activ, favorisant l’ensoleillement naturel et réduisant vos coûts énergétiques 🌿⚡💰 Prix de l’opération Terrain + Maison : 330 000 €Ne tardez pas, cette opportunité rare ne restera pas longtemps sur le marché !📞 Contactez Erwan TILLY dès maintenant pour plus d’informations ou organiser une visite sur place.Maisons de l’avenir
Milizac-Guipronvel
TERRAIN ET MAISON📍 À VENDRE – Terrain constructible de 505 m² à Milizac-GuipronvelDécouvrez ce terrain de 505 m² situé dans un quartier résidentiel paisible, au coeur d’un environnement verdoyant et agréable.🌿 Atouts du terrain :Cadre calme et résidentiel, idéal pour une maison familiale 🏡Accès rapide à Brest : seulement 15 minutes en voiture 🚗🏫 À proximité : écoles, commerces du centre-bourg, vie associative dynamique et transports scolaires.Profitez du compromis parfait entre tranquillité et accessibilité, pour réaliser votre futur projet de vie.💡 Nous vous proposons sur ce terrain un projet de maison de 70m² de plein pied, au style contemporain comprenant :3 chambres dont une suite parentale et un bureau🛏️1 salles de bains avec douche et baignoire🚿Un vaste espace de vie de plus de 35 m² lumineux ☀️Un grand garage 🚗Une conception intégrée dans notre concept Maisons Bâti Activ, favorisant l’ensoleillement naturel et réduisant vos coûts énergétiques 🌿⚡💰 Prix de l’opération Terrain + Maison : 254 000 €📞 Contactez Erwan TILLY dès maintenant pour plus d’informations ou organiser une visite.
Lampaul-Ploudalmézeau
TERRAIN ET MAISON📍 À VENDRE – Terrain constructible 622 m² à Lampaul-Ploudalmézeau (99800€)À saisir rapidement !Dans un petit lotissement intimiste de seulement 4 lots, découvrez ce beau terrain constructible de 622 m², situé à 1 km de la plage des Trois Moutons.🌊 Atouts du terrain :Exposition idéale avec vue mer dégagéeEnvironnement calme et préservé 🌿Dernier lot disponible – libre de constructeurCadre parfait pour une résidence principale ou secondaire💡 Nous vous proposons sur ce terrain un projet de maison de 140 m², au style traditionnel avec des touches contemporaines comprenant :4 chambres dont une suite parentale 🛏️2 salles de bains 🚿Un vaste espace de vie de plus de 55 m² lumineux ☀️Un grand garage 🚗Une conception intégrée dans notre concept Maisons Bâti Activ, favorisant l’ensoleillement naturel et réduisant vos coûts énergétiques 🌿⚡💰 Prix de l’opération Terrain + Maison : 450 000 €Ne tardez pas, cette opportunité rare ne restera pas longtemps sur le marché !📞 Contactez Erwan TILLY dès maintenant pour plus d’informations ou organiser une visite sur place.Maisons de l’avenir
Milizac-Guipronvel
TERRAIN📍 À VENDRE – Terrain constructible de 505 m² à Milizac-GuipronvelDécouvrez ce terrain de 505 m² situé dans un quartier résidentiel paisible, au coeur d’un environnement verdoyant et agréable.🌿 Atouts du terrain :Cadre calme et résidentiel, idéal pour une maison familiale 🏡Accès rapide à Brest : seulement 15 minutes en voiture 🚗🏫 À proximité : écoles, commerces du centre-bourg, vie associative dynamique et transports scolaires.Profitez du compromis parfait entre tranquillité et accessibilité, pour réaliser votre futur projet de vie.📞 Contactez Erwan TILLY dès maintenant pour plus d’informations ou organiser une visite.
Milizac-Guipronvel
TERRAIN ET MAISONCadre calme et résidentiel, idéal pour une maison familiale 🏡Accès rapide à Brest : seulement 15 minutes en voiture 🚗🏫 À proximité : écoles, commerces du centre-bourg, vie associative dynamique et transports scolaires.Profitez du compromis parfait entre tranquillité et accessibilité, pour réaliser votre futur projet de vie.💡 Nous vous proposons sur ce terrain un projet de maison de 150m², au style contemporain comprenant :5 chambres dont une suite parentale et un bureau🛏️2 salles de bains dont une avec douche et baignoire🚿Un vaste espace de vie de plus de 55 m² lumineux ☀️Un grand garage 🚗Une conception intégrée dans notre concept Maisons Bâti Activ, favorisant l’ensoleillement naturel et réduisant vos coûts énergétiques 🌿⚡💰 Prix de l’opération Terrain + Maison : 462 000 €📞 Contactez Erwan TILLY dès maintenant pour plus d’informations ou organiser une visite.
Lampaul-Ploudalmézeau
TERRAIN ET MAISON📍 À VENDRE – Terrain constructible 622 m² à Lampaul-Ploudalmézeau (99800€)À saisir rapidement !Dans un petit lotissement intimiste de seulement 4 lots, découvrez ce beau terrain constructible de 622 m², situé à 1 km de la plage des Trois Moutons.🌊 Atouts du terrain :Exposition idéale avec vue mer dégagéeEnvironnement calme et préservé 🌿Dernier lot disponible – libre de constructeurCadre parfait pour une résidence principale ou secondaire💡 Nous vous proposons sur ce terrain un projet de maison de 100 m² de plein pied, au style contemporain comprenant :3 chambres dont une suite parentale 🛏️1 salles de bains avec douche et baignoire 🚿Un vaste espace de vie de plus de 45 m² lumineux ☀️Un grand garage 🚗Une conception intégrée dans notre concept Maisons Bâti Activ, favorisant l’ensoleillement naturel et réduisant vos coûts énergétiques 🌿⚡💰 Prix de l’opération Terrain + Maison : 340 000 €Ne tardez pas, cette opportunité rare ne restera pas longtemps sur le marché !📞 Contactez Erwan TILLY dès maintenant pour plus d’informations ou organiser une visite sur place.Maisons de l’avenir
Lampaul-Ploudalmézeau
TERRAIN📍 À VENDRE – Terrain constructible 622 m² à Lampaul-Ploudalmézeau (99800€)À saisir rapidement !Dans un petit lotissement intimiste de seulement 4 lots, découvrez ce beau terrain constructible de 622 m², situé à 1 km de la plage des Trois Moutons.🌊 Atouts du terrain :Exposition idéale avec vue mer dégagéeEnvironnement calme et préservé 🌿Dernier lot disponible – libre de constructeurCadre parfait pour une résidence principale ou secondaireNe tardez pas, cette opportunité rare ne restera pas longtemps sur le marché !📞 Contactez Erwan TILLY dès maintenant pour plus d’informations ou organiser une visite sur place.Maisons de l’avenir
Milizac-Guipronvel
TERRAIN ET MAISON📍 À VENDRE – Terrain constructible de 505 m² à Milizac-GuipronvelDécouvrez ce terrain de 505 m² situé dans un quartier résidentiel paisible, au coeur d’un environnement verdoyant et agréable.🌿 Atouts du terrain :Cadre calme et résidentiel, idéal pour une maison familiale 🏡Accès rapide à Brest : seulement 15 minutes en voiture 🚗🏫 À proximité : écoles, commerces du centre-bourg, vie associative dynamique et transports scolaires.Profitez du compromis parfait entre tranquillité et accessibilité, pour réaliser votre futur projet de vie.💡 Nous vous proposons sur ce terrain un projet de maison de 110m², au style contemporain comprenant :4 chambres dont une suite parentale 🛏️2 salles de bains dont une avec douche et baignoire🚿Un vaste espace de vie de plus de 35 m² lumineux ☀️Un grand garage 🚗Une conception intégrée dans notre concept Maisons Bâti Activ, favorisant l’ensoleillement naturel et réduisant vos coûts énergétiques 🌿⚡💰 Prix de l’opération Terrain + Maison : 340 000 €📞 Contactez Erwan TILLY dès maintenant pour plus d’informations ou organiser une visite.
Lampaul-Ploudalmézeau
TERRAIN ET MAISON📍 À VENDRE – Terrain constructible 622 m² à Lampaul-Ploudalmézeau (99800€)À saisir rapidement !Dans un petit lotissement intimiste de seulement 4 lots, découvrez ce beau terrain constructible de 622 m², situé à 1 km de la plage des Trois Moutons.🌊 Atouts du terrain :Exposition idéale avec vue mer dégagéeEnvironnement calme et préservé 🌿Dernier lot disponible – libre de constructeurCadre parfait pour une résidence principale ou secondaire💡 Nous vous proposons sur ce terrain un projet de maison de 150 m², au style contemporain comprenant :4 chambres dont une suite parentale 🛏️2 salles de bains 🚿Un vaste espace de vie de plus de 55 m² lumineux ☀️Un grand garage 🚗Une conception intégrée dans notre concept Maisons Bâti Activ, favorisant l’ensoleillement naturel et réduisant vos coûts énergétiques 🌿⚡💰 Prix de l’opération Terrain + Maison : 470 000 €Ne tardez pas, cette opportunité rare ne restera pas longtemps sur le marché !📞 Contactez Erwan TILLY dès maintenant pour plus d’informations ou organiser une visite sur place.Maisons de l’avenir
L’actualité immobilière à Plourin
27/11/2023
02/11/2023
30/10/2023
20/10/2023
16/10/2023
16/10/2023