Maison à construire à Plozévet (29710)
Images
Description
Maison de 6 pièces (180 m²) à vendre à Plozévet
EMPLACEMENT PRIVILÉGIÉ - MAISON 6 PIÈCES NEUVE
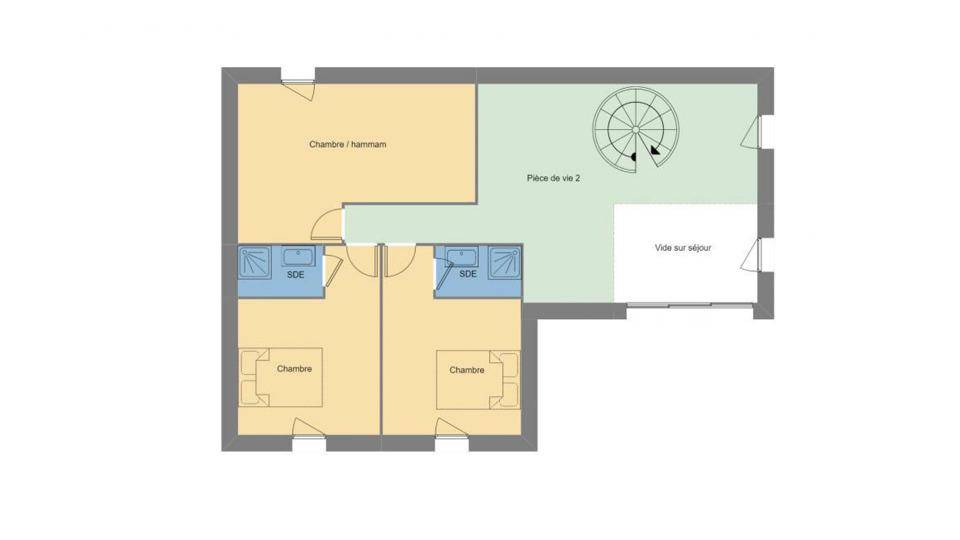
En vente : sur la côte atlantique et à 24 km de Quimper, nous vous proposons, bénéficiant d'un emplacement d'exception dans Plozévet (29710), cette maison de 6 pièces de 180 m² et de 1 026 m² de terrain.
Cette maison comporte 2 niveaux. Elle se divise en cinq chambres, une cuisine et quatre salles de bains. La maison est neuve.
Cette maison se situe dans un secteur attractif. Il y a l'École Primaire Publique Georges le Bail et le Collège Henri le Moal à moins de 10 minutes à pied. On trouve un tennis, un supermarché, deux boulangeries, deux commerces, une boucherie-charcuterie et un bureau de poste dans les environs.
Elle est à vendre pour la somme de 469 800 €.
Contactez notre agence (MANCINELLI Sabrina : (Numéro supprimé)) pour tout renseignement sur la maison, sur les modalités de vente ou sur les démarches à suivre. Maisons de l'Avenir Pont-l'Abbé est là pour vous accompagner dans tous vos projets immobiliers.
Logement susceptibles de vous intéresser
Nous vous proposons de découvrir aussi cette sélection de logements situés à moins de 10km de Plozévet et qui seraient susceptibles de vous intéresser.
Tréogat
TERRAIN ET MAISONVENTE : maison de 4 pièces (75 m²) à TréogatPROCHE DE QUIMPER – MAISON 4 PIÈCES NEUVEÀ 5 km de la côte atlantique et à deux pas de Quimper, nous sommes heureux de vous présenter en vente à Tréogat (29720), cette maison de 4 pièces de plain-pied de 75 m² et de 629 m² de terrain.Son intérieur comporte trois chambres, une cuisine et une salle de bains. La maison est neuve.On trouve l’École Primaire Publique les Hirondelles à proximité.Elle est proposée à l’achat pour 203 400 €.Prenez contact avec Marie LAURENT ((Numéro supprimé)) pour toute question sur la maison ou sur les modalités de vente. Donnez vie à vos projets immobiliers avec Maisons de l’Avenir Quimper.
Tréogat
TERRAINTréogat : terrain de 629 m² en ventePROCHE DE QUIMPERÀ Tréogat (29720) sur le littoral atlantique et à quelques kilomètres de Quimper, projetez la maison de vos rêves sur ce terrain de 629 m². Il est exposé au sud-ouest. L’École Primaire Publique les Hirondelles est implantée à proximité.Il est à vendre pour la somme de 45 000 €. Prenez contact avec notre agence (Marie LAURENT : (Numéro supprimé)) pour obtenir de plus amples renseignements sur ce terrain, sur les modalités de vente et sur les démarches à suivre.
Tréogat
TERRAIN ET MAISONVENTE : maison de 4 pièces (120 m²) à TréogatPROCHE DE QUIMPER – MAISON 4 PIÈCES NEUVEÀ vendre : sur le littoral atlantique et à deux pas de Quimper, à Tréogat (29720), notre agence Maisons de l’Avenir Quimper est ravie de vous proposer cette maison de 4 pièces de plain-pied de 120 m². Conçue de plain-pied, elle inclut trois chambres, une cuisine et une salle de bains.Le terrain du bien est de 629 m².La maison est neuve.L’École Primaire Publique les Hirondelles est implantée à proximité.Elle est proposée à l’achat pour 312 500 €.N’hésitez pas à prendre contact avec Marie LAURENT (tél : (Numéro supprimé)) pour toute question sur cette maison et sur les démarches à suivre. Concrétisez vos projets immobiliers avec Maisons de l’Avenir Quimper.
Tréogat
TERRAIN ET MAISONVENTE : maison F6 (149 m²) à TréogatMAISON 6 PIÈCES NEUVE – PROCHE DE QUIMPERÀ 5 km de la côte atlantique et à 21 km de Quimper, en vente à Tréogat (29720), nous vous présentons cette maison de 6 pièces de 149 m² et de 629 m² de terrain.Cette maison comporte 2 niveaux. Son intérieur propose cinq chambres, une cuisine et deux salles de bains. Cette maison est neuve.Il y a l’École Primaire Publique les Hirondelles à proximité.Son prix de vente est de 388 600 €.Prenez contact avec notre agence (Marie LAURENT : (Numéro supprimé)) pour toute question sur la propriété ou sur les modalités de vente. Faites de vos projets immobiliers une réalité avec Maisons de l’Avenir Quimper.
Tréogat
TERRAIN ET MAISONMaison de 4 pièces (105 m²) à vendre à TréogatPROCHE DE QUIMPER – MAISON 4 PIÈCES NEUVEEn vente : à 5 km de la côte atlantique et à quelques kilomètres de Quimper, à Tréogat (29720), Maisons de l’Avenir Quimper vous propose cette maison de 4 pièces de 105 m². Son intérieur dispose de quatre chambres, d’une cuisine et de deux salles de bains.Le terrain de la propriété s’étend sur 629 m².C’est une maison de 2 niveaux. Elle est neuve.Il y a l’École Primaire Publique les Hirondelles à proximité.Elle est à vendre pour la somme de 281 800 €.Contactez Marie LAURENT ((Numéro supprimé)) pour obtenir de plus amples informations sur cette maison ou sur les modalités de vente. Donnez vie à vos projets immobiliers avec Maisons de l’Avenir Quimper.
Tréogat
TERRAIN ET MAISONVous rêvez d’une maison neuve, moderne et adaptée à vos besoins ? Nous vous proposons un projet de construction comprenant :- Une maison individuelle comprenant : 4 chambres spacieuses, un grand salon lumineux, une cuisine fonctionnelle, WC , salle(s) de bain/d’eau sur un terrain de 629m², idéalement situé à TREOGAT.Profitez d’une maison sur-mesure, conçue pour votre confort et votre bien-être ! Maison RE2020 à faible consommation d’énergies. Prix hors frais. Photos non contractuelles et illustratives. Possibilité d’accession à la propriété avec un CDI (hors CAF, RSA et Pôle Emploi). Pour tout renseignement supplémentaire, contactez nous au (Numéro supprimé).
Landudec
TERRAIN ET MAISONVous rêvez d’une maison neuve, moderne et adaptée à vos besoins ? Nous vous proposons un projet de construction comprenant :- Une maison individuelle comprenant : 3 chambres spacieuses, un grand salon lumineux, une cuisine fonctionnelle, WC , salle(s) de bain/d’eau sur un terrain de 441m², idéalement situé à LANDUDEC.Profitez d’une maison sur-mesure, conçue pour votre confort et votre bien-être ! Maison RE2020 à faible consommation d’énergies. Prix hors frais. Photos non contractuelles et illustratives. Possibilité d’accession à la propriété avec un CDI (hors CAF, RSA et Pôle Emploi). Pour tout renseignement supplémentaire, contactez nous au (Numéro supprimé).
Plouhinec
TERRAINFiche N°Id-TCT177427 : PLOUHINEC Fiche BC177427 : Plouhinec, secteur Centre bourg, Terrain – – Equipements annexes : – chauffage : Aucun – Plus d’informations disponibles sur demande… – Mentions légales : Proposé à la vente à 73400 Euros (Dont 12.92% TTC d’honoraires à la charge de l’acquéreur, soit un prix hors honoraires de 65000 Euros) – Affaire suivie par M. SIEGFRIED KNEBEL (Agent commercial independant) – Reseau Immo-Diffusion Audierne – Pour plus d’informations, contactez notre secrétariat au (Numéro supprimé) (Appel gratuit ou prix d’une communication locale)
Tréogat
TERRAINJoli terrain sur TREOGAT , plat et idéalement situé, parfait pour réaliser votre projet de construction de maison individuelle avec notre entreprise.- Superficie : 629 m²- Emplacement : Bien placé dans un cadre agréable- Prix : Hors fraisNe manquez pas cette opportunité !Pour plus d’informations, contactez nous au (Numéro supprimé).
L’actualité immobilière à Plozévet
27/11/2023
02/11/2023
30/10/2023
20/10/2023
16/10/2023
16/10/2023