Maison à construire à Tréogat (29720)
Images
Description
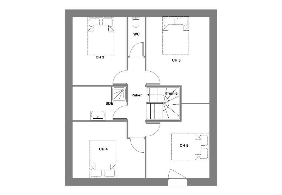
VENTE : maison F6 (149 m²) à Tréogat
MAISON 6 PIÈCES NEUVE - PROCHE DE QUIMPER
À 5 km de la côte atlantique et à 21 km de Quimper, en vente à Tréogat (29720), nous vous présentons cette maison de 6 pièces de 149 m² et de 629 m² de terrain.
Cette maison comporte 2 niveaux. Son intérieur propose cinq chambres, une cuisine et deux salles de bains. Cette maison est neuve.
Il y a l'École Primaire Publique les Hirondelles à proximité.
Son prix de vente est de 388 600 €.
Prenez contact avec notre agence (Marie LAURENT : (Numéro supprimé)) pour toute question sur la propriété ou sur les modalités de vente. Faites de vos projets immobiliers une réalité avec Maisons de l'Avenir Quimper.
Logement susceptibles de vous intéresser
Nous vous proposons de découvrir aussi cette sélection de logements situés à moins de 10km de Tréogat et qui seraient susceptibles de vous intéresser.
Plomeur
TERRAINDEVENEZ PROPRIÉTAIRE D’UN TERRAIN À PLOMEUR !Vivez dans un cadre de vie privilégié à Plomeur, charmante commune du Sud-Finistère, idéalement située entre Quimper et la côte sud, à proximité des plages.Profitez du calme de la campagne et de la proximité du littoral, tout en restant proche des commerces, écoles et services – un environnement idéal pour votre futur projet ! Votre terrain comprend 😮 Une surface de 476 m², bien orientéeo Possibilité de construire la maison de vos rêves selon vos envies Les atouts du projet 😮 Terrain viabiliséo Cadre de vie paisible et proche des plageso Liberté de construction, avec plan personnalisable selon vos besoins Prix indiqué hors frais Photos non contractuelles à titre d’illustration Accession possible avec ou sans apportNe manquez pas cette opportunité unique de devenir propriétaire d’un terrain à Plomeur et de réaliser votre projet sur-mesure ! Contactez-nous dès maintenant pour plus d’informations et étudier votre projet.
Plogastel-Saint-Germain
TERRAIN ET MAISONDEVENEZ PROPRIÉTAIRE À PLOGASTEL-SAINT-GERMAIN – MAISON NEUVE RE2020 SUR-MESURE !Vivez dans un cadre de vie privilégié à Plogastel-Saint-Germain, charmante commune dynamique du Pays Bigouden, idéalement située entre Quimper et les plages d’Audierne et de Penmarch.Profitez du calme de la campagne, tout en restant proche des commerces, écoles et services – un environnement idéal pour votre famille ! Votre future maison comprend 😮 2 chambres spacieuses et lumineuseso Un grand salon-séjour traversant, ouvert sur le jardino Une cuisine moderne et fonctionnelleo Salle de bain et WC séparéso Le tout sur un terrain de 470 m², bien orienté Les atouts du projet 😮 Maison neuve RE2020, à faible consommation d’énergieo Plan personnalisable selon vos besoinso Cadre de vie paisible, à proximité de Quimper et du littoral bigoudeno Prestations de qualité, finitions soignées Prix indiqué hors frais Photos non contractuelles à titre d’illustration Accession à la propriété possible avec ou sans apportNe manquez pas cette belle opportunité de devenir propriétaire d’une maison neuve moderne et économique à Plogastel-Saint-Germain ! Contactez nous dès maintenant pour découvrir les plans et étudier votre projet personnalisé
Plonéour-Lanvern
TERRAIN ET MAISONVous rêvez d’une maison neuve, moderne et adaptée à vos besoins ? Nous vous proposons un projet de construction comprenant :- Une maison individuelle comprenant : 3 chambres spacieuses, un grand salon lumineux, une cuisine fonctionnelle, WC , salle(s) de bain/d’eau sur un terrain de 554m², idéalement situé à PLONEOUR LANVERN.Profitez d’une maison sur-mesure, conçue pour votre confort et votre bien-être ! Maison RE2020 à faible consommation d’énergies. Prix hors frais. Photos non contractuelles et illustratives. Possibilité d’accession à la propriété avec un CDI (hors CAF, RSA et Pôle Emploi). Pour tout renseignement supplémentaire, contactez nous au (Numéro supprimé).
Plomeur
TERRAINVENTE : terrain de 535 m² à PlomeurPROCHE CENTREGrand terrain en vente à 5 km de la côte atlantique et à deux pas de Quimper. De 535 m², ce terrain se situe dans Plomeur (29120).Il est à vendre pour la somme de 75 000 €. Contactez notre agence (Mathieu DEROUET : (Numéro supprimé)) pour tout renseignement sur ce terrain ou sur les démarches à suivre.
Plomeur
TERRAIN ET MAISONVENTE : maison F4 (85 m²) à PlomeurMAISON 4 PIÈCES NEUVE – PROCHE DE QUIMPEREn vente : située sur le littoral atlantique et à 23 km de Quimper, nous sommes ravis de vous proposer cette maison de 4 pièces de plain-pied de 85 m² à Plomeur (29120). Elle offre trois chambres, une cuisine et une salle de bains.Le terrain du bien s’étend sur 535 m².Elle est proposée à l’achat pour 277 000 €.N’hésitez pas à prendre contact avec Mathieu DEROUET ((Numéro supprimé)) pour plus de renseignements sur la maison ou sur les démarches à suivre.
Plomeur
TERRAIN ET MAISONPlomeur : maison T4 (120 m²) à vendrePROCHE DE QUIMPER – MAISON 4 PIÈCES NEUVEÀ vendre : à 5 km de la côte atlantique et à 23 km de Quimper, nous vous proposons à Plomeur (29120), cette maison de 4 pièces de plain-pied de 120 m² et de 535 m² de terrain. Elle propose trois chambres, une cuisine et une salle de bains.Elle est à vendre pour la somme de 369 000 €.Contactez Mathieu DEROUET (tél : (Numéro supprimé)) pour plus de renseignements sur cette maison ou sur les modalités de vente. Donnez vie à vos projets immobiliers avec Maisons de l’Avenir Quimper.
Plomeur
TERRAIN ET MAISONPlomeur : maison F4 (150 m²) en venteMAISON 4 PIÈCES NEUVE – PROCHE DE QUIMPEREn vente : sur le littoral atlantique et à deux pas de Quimper, Maisons de l’Avenir Quimper vous propose cette maison de 4 pièces de 150 m² à Plomeur (29120). Elle offre quatre chambres, une cuisine et deux salles de bains.Le terrain de la maison s’étend sur 535 m².Il s’agit d’une maison de 2 niveaux. Elle est proposée à l’achat pour 435 000 €.Contactez notre agence (DEROUET Mathieu : (Numéro supprimé)) pour obtenir de plus amples renseignements sur la maison, sur les modalités de vente et sur les démarches à suivre.
Plomeur
TERRAIN ET MAISONVENTE d’une maison F3 (100 m²) à PlomeurPROCHE DE QUIMPER – MAISON 3 PIÈCES NEUVEEn vente : sur le littoral atlantique et à 23 km de Quimper, nous vous présentons cette maison de 3 pièces de plain-pied de 100 m² à Plomeur (29120).Elle est composée de trois chambres, d’une cuisine et d’une salle de bains. La maison est neuve.Le terrain de la propriété est de 535 m².Elle est proposée à l’achat pour 325 000 €.Prenez contact avec Mathieu DEROUET (tél : (Numéro supprimé)) pour toute information sur cette maison et sur les démarches à suivre. Maisons de l’Avenir Quimper est là pour vous accompagner à toutes les étapes de l’achat.
Plomeur
TERRAIN ET MAISONPlomeur : maison de 5 pièces (115 m²) en venteMAISON 5 PIÈCES NEUVE – PROCHE DE QUIMPERÀ vendre : à 5 km de l’océan Atlantique et à 23 km de Quimper, nous vous présentons à Plomeur (29120), cette maison de 5 pièces de 115 m². Son intérieur propose quatre chambres, une cuisine et une salle de bains.Le terrain de la propriété s’étend sur 535 m².Cette maison compte 2 niveaux. Elle est proposée à l’achat pour 375 900 €.Contactez notre agence (Mathieu DEROUET : (Numéro supprimé)) pour toute question sur cette maison ou sur les modalités de vente.
L’actualité immobilière à Tréogat
27/11/2023
02/11/2023
30/10/2023
20/10/2023
16/10/2023
16/10/2023