Maison à construire à Pont-l'Abbé (29120)
Images
Description
Pont-l'Abbé : maison de 4 pièces (80 m²) en vente
PROCHE CENTRE-VILLE - MAISON 4 PIÈCES NEUVE
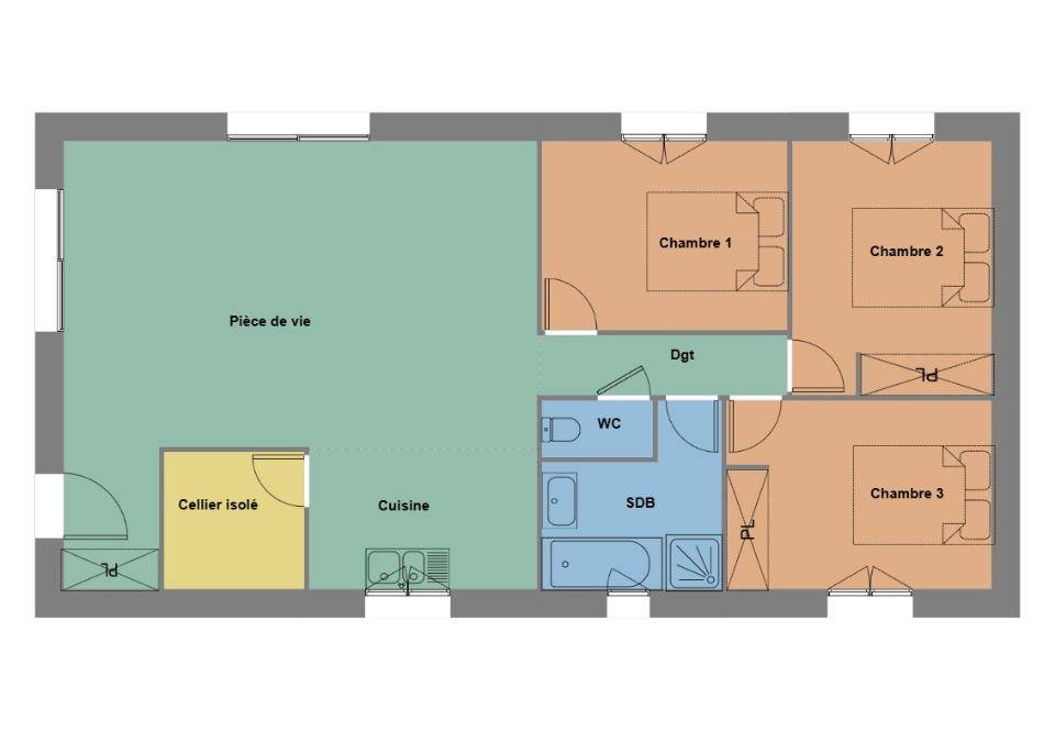
En vente : à 8 km de la côte atlantique et à quelques kilomètres de Quimper, proche du centre-ville de Pont-l'Abbé (29120), votre agence Maisons de l'Avenir Pont-l'Abbé est ravie de vous présenter cette maison de 4 pièces de plain-pied de 80 m². Conçue de plain-pied, elle compte trois chambres, une cuisine et une salle de bains.
Le terrain de la propriété est de 520 m².
Elle est à vendre pour la somme de 268 000 €.
N'hésitez pas à prendre contact avec notre agence (DEROUET Mathieu : (Numéro supprimé)) pour tout renseignement sur la maison, sur les démarches à suivre ou sur les modalités de vente. Donnez vie à vos projets immobiliers avec Maisons de l'Avenir Pont-l'Abbé.
Logement susceptibles de vous intéresser
Nous vous proposons de découvrir aussi cette sélection de logements situés à moins de 10km de Pont-l'Abbé et qui seraient susceptibles de vous intéresser.
Plobannalec-Lesconil
TERRAIN ET MAISONPlobannalec-Lesconil : maison F4 (95 m²) à vendreCENTRE-VILLE – MAISON 4 PIÈCES NEUVEEn vente : située sur le littoral atlantique et à quelques kilomètres de Quimper, venez découvrir cette maison de 4 pièces de 95 m² dans le centre de Plobannalec-Lesconil (29740).Cette maison comporte 2 niveaux. Son intérieur comporte trois chambres, une cuisine et deux salles de bains.Elle est à vendre pour la somme de 264 000 €.Prenez contact avec Mathieu DEROUET ((Numéro supprimé)) pour toute information sur la maison. Concrétisez vos projets immobiliers avec Maisons de l’Avenir Quimper.
Plomelin
TERRAIN ET MAISONVENTE : maison de 4 pièces (120 m²) à PlomelinPROCHE CENTRE-VILLE – MAISON 4 PIÈCES NEUVEÀ vendre à 9 km de l’océan Atlantique et à 8 km de Quimper, proche du centre-ville de Plomelin (29700), nous vous présentons cette maison de 4 pièces de plain-pied de 120 m². Elle se divise en trois chambres, une cuisine et deux salles de bains.Le terrain de cette maison est de 452 m².La maison est neuve.L’École Primaire Privée Notre-Dame de l’Assomption et l’École Primaire Publique Lucie Aubrac sont implantées à moins de 10 minutes à pied. Côté transports en commun, on trouve la gare Quimper à moins de 10 minutes en voiture. Il y a un accès à la nationale N165 à 11 km. Il y a un tennis, deux boulangeries, trois commerces, deux supermarchés, une boucherie-charcuterie et une épicerie dans les environs.Son prix de vente est de 377 843 €.N’hésitez pas à prendre contact avec notre agence (ALKIS Sami) pour toute information sur la maison, sur les modalités de vente et sur les démarches à suivre. Concrétisez vos projets immobiliers avec Maisons de l’Avenir Guipavas.
Plomelin
TERRAIN ET MAISONVENTE : maison T4 (100 m²) à PlomelinPROCHE CENTRE-VILLE – MAISON 4 PIÈCES NEUVEEn vente : localisée à 9 km de la côte atlantique et à quelques kilomètres de Quimper, venez découvrir, proche du centre-ville de Plomelin (29700), cette maison de 4 pièces de 100 m². Son intérieur propose quatre chambres, une cuisine et deux salles de bains.Le terrain de cette maison est de 830 m².C’est une maison de 2 niveaux. Elle est neuve.L’École Primaire Privée Notre-Dame de l’Assomption et l’École Primaire Publique Lucie Aubrac sont implantées à moins de 10 minutes à pied. Niveau transports, on trouve la gare Quimper à moins de 10 minutes en voiture. Il y a un accès à la nationale N165 à 11 km. Il y a un tennis, deux boulangeries, trois commerces, deux supermarchés, une épicerie et une boucherie-charcuterie à proximité du bien.Elle est proposée à l’achat pour 397 221 €.Prenez contact avec Sami ALKIS pour toute information sur la maison. Maisons de l’Avenir Guipavas vous accompagne dans tous vos projets immobiliers et dans toutes vos démarches.
Plobannalec-Lesconil
TERRAINTerrain de 480 m² en vente à Plobannalec-LesconilCENTRE-VILLE – PROCHE DE QUIMPERTerrain de 480 m² sur la côte atlantique et à quelques kilomètres de Quimper. Ce terrain se situe en plein coeur de Plobannalec-Lesconil (29740).Ce terrain est proposé à l’achat pour 45 000 €. Contactez notre agence (DEROUET Mathieu : (Numéro supprimé)) pour toute information sur ce terrain.
Plomelin
TERRAIN ET MAISONMaison F5 (114 m²) à vendre à PlomelinPROCHE CENTRE-VILLE – MAISON 5 PIÈCES NEUVEEn vente : sur le littoral atlantique et à 8 km de Quimper, Maisons de l’Avenir Guipavas vous propose, proche du centre-ville de Plomelin (29700), cette maison de 5 pièces de 114 m² et de 830 m² de terrain. Son intérieur comporte quatre chambres, une cuisine et une salle de bains.C’est une maison de 2 niveaux. Elle est neuve.Il y a l’École Primaire Privée Notre-Dame de l’Assomption et l’École Primaire Publique Lucie Aubrac à moins de 10 minutes à pied. Côté transports en commun, on trouve la gare Quimper à moins de 10 minutes en voiture. On trouve un accès à la nationale N165 à 11 km. Il y a un tennis, deux boulangeries, trois commerces, deux supermarchés, une épicerie et une boucherie-charcuterie dans les environs.Son prix de vente est de 443 622 €.Contactez notre agence (ALKIS Sami) pour toute question sur la maison. Faites de vos projets immobiliers une réalité avec Maisons de l’Avenir Guipavas.
Plomelin
TERRAINVENTE : terrain de 830 m² à PlomelinPROCHE CENTRE-VILLE – PROCHE DE QUIMPERÀ Plomelin (29700) à 9 km de l’océan Atlantique et à quelques kilomètres de Quimper, donnez vie à votre projet immobilier sur ce terrain de 830 m². Il est orienté au sud-ouest. Il est situé non loin du centre-ville. L’École Primaire Privée Notre-Dame de l’Assomption et l’École Primaire Publique Lucie Aubrac sont implantées à moins de 10 minutes à pied. Côté transports, il y a la gare Quimper à moins de 10 minutes en voiture. La nationale N165 est accessible à 11 km. On trouve un tennis, deux boulangeries, trois commerces, deux supermarchés, une épicerie et une boucherie-charcuterie à proximité du bien.Ce terrain est proposé à l’achat pour 129 000 €. Contactez notre agence (ALKIS Sami) pour toute question sur ce terrain, sur les modalités de vente et sur les démarches à suivre. Donnez vie à vos projets immobiliers avec Maisons de l’Avenir Guipavas.
Plomelin
TERRAIN ET MAISONVENTE d’une maison F4 (117 m²) à PlomelinPROCHE CENTRE-VILLE – MAISON 4 PIÈCES NEUVEEn vente : située sur le littoral atlantique et à 8 km de Quimper, votre agence Maisons de l’Avenir Guipavas est heureuse de vous présenter, proche du centre-ville de Plomelin (29700), cette maison de 4 pièces de 117 m² et de 452 m² de terrain. Elle propose trois chambres, une cuisine et deux salles de bains.C’est une maison de 2 niveaux. Elle est neuve.On trouve l’École Primaire Privée Notre-Dame de l’Assomption et l’École Primaire Publique Lucie Aubrac à moins de 10 minutes à pied. Niveau transports en commun, il y a la gare Quimper à moins de 10 minutes en voiture. La nationale N165 est accessible à 11 km. On trouve un tennis, deux boulangeries, trois commerces, deux supermarchés, une épicerie et une boucherie-charcuterie à quelques minutes à peine.Elle est à vendre pour la somme de 352 217 €.N’hésitez pas à prendre contact avec Sami ALKIS pour obtenir de plus amples renseignements sur la maison ou sur les modalités de vente.
Plobannalec-Lesconil
TERRAIN ET MAISONMaison de 5 pièces (100 m²) à vendre à Plobannalec-LesconilCENTRE-VILLE – MAISON 5 PIÈCES NEUVEÀ vendre sur la côte atlantique et à 22 km de Quimper, Maisons de l’Avenir Quimper vous présente cette maison de 5 pièces de plain-pied de 100 m² et de 480 m² de terrain en plein coeur de Plobannalec-Lesconil (29740). Conçue de plain-pied, elle offre quatre chambres, une cuisine et deux salles de bains.Son prix de vente est de 275 000 €.Contactez notre agence (DEROUET Mathieu : (Numéro supprimé)) pour toute information sur la maison. Concrétisez vos projets immobiliers avec Maisons de l’Avenir Quimper.
Plomelin
TERRAIN ET MAISONVENTE : maison de 5 pièces (142 m²) à PlomelinPROCHE CENTRE-VILLE – MAISON 5 PIÈCES NEUVESur le littoral atlantique et à quelques kilomètres de Quimper, votre agence Maisons de l’Avenir Guipavas est ravie de vous proposer à vendre, proche du centre-ville de Plomelin (29700), cette maison de 5 pièces de 142 m² et de 830 m² de terrain.Il s’agit d’une maison de 2 niveaux. Son intérieur se divise en quatre chambres, une cuisine et deux salles de bains. Cette maison est neuve.Il y a l’École Primaire Privée Notre-Dame de l’Assomption et l’École Primaire Publique Lucie Aubrac à moins de 10 minutes à pied. Côté transports en commun, on trouve la gare Quimper à moins de 10 minutes en voiture. Il y a un accès à la nationale N165 à 11 km. Il y a un tennis, deux boulangeries, trois commerces, deux supermarchés, une boucherie-charcuterie et une épicerie dans les environs.Son prix de vente est de 451 828 €.Contactez Sami ALKIS pour tout renseignement sur la propriété ou sur les modalités de vente. Maisons de l’Avenir Guipavas est là pour vous accompagner dans toutes vos démarches.
L’actualité immobilière à Pont-l'Abbé
27/11/2023
02/11/2023
30/10/2023
20/10/2023
16/10/2023
16/10/2023