Maison à construire à Quimper (29000)
Images
Description
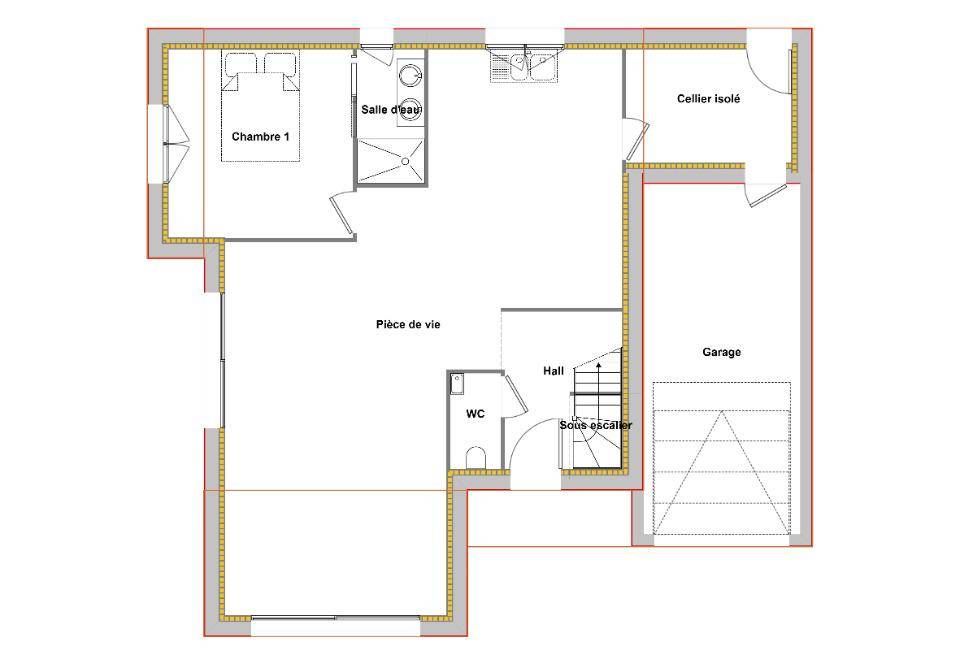
Quimper : maison F4 (105 m²) à vendre
PROCHE CENTRE-VILLE - MAISON 4 PIÈCES NEUVE
En vente : à 14 km de la côte atlantique, venez découvrir cette maison de 4 pièces de 105 m² et de 548 m² de terrain proche du centre-ville de Quimper (29000).
Il s'agit d'une maison de 2 niveaux. Elle se divise en quatre chambres, une cuisine et deux salles de bains.
Son prix de vente est de 300 000 €.
Prenez contact avec Mathieu DEROUET ((Numéro supprimé)) pour obtenir de plus amples renseignements sur la maison. Donnez vie à vos projets immobiliers avec Maisons de l'Avenir Quimper.
Logement susceptibles de vous intéresser
Nous vous proposons de découvrir aussi cette sélection de logements situés à moins de 10km de Quimper et qui seraient susceptibles de vous intéresser.
Plomelin
TERRAIN ET MAISONVENTE : maison de 4 pièces (120 m²) à PlomelinPROCHE CENTRE-VILLE – MAISON 4 PIÈCES NEUVEÀ vendre à 9 km de l’océan Atlantique et à 8 km de Quimper, proche du centre-ville de Plomelin (29700), nous vous présentons cette maison de 4 pièces de plain-pied de 120 m². Elle se divise en trois chambres, une cuisine et deux salles de bains.Le terrain de cette maison est de 452 m².La maison est neuve.L’École Primaire Privée Notre-Dame de l’Assomption et l’École Primaire Publique Lucie Aubrac sont implantées à moins de 10 minutes à pied. Côté transports en commun, on trouve la gare Quimper à moins de 10 minutes en voiture. Il y a un accès à la nationale N165 à 11 km. Il y a un tennis, deux boulangeries, trois commerces, deux supermarchés, une boucherie-charcuterie et une épicerie dans les environs.Son prix de vente est de 377 843 €.N’hésitez pas à prendre contact avec notre agence (ALKIS Sami) pour toute information sur la maison, sur les modalités de vente et sur les démarches à suivre. Concrétisez vos projets immobiliers avec Maisons de l’Avenir Guipavas.
Pleuven
TERRAIN ET MAISONMaison de 4 pièces (75 m²) à vendre à PleuvenPROCHE CENTRE-VILLE – MAISON 4 PIÈCES NEUVEEn vente à 7 km de l’océan Atlantique et à 10 km de Quimper, notre agence Maisons de l’Avenir Pont-l’Abbé est ravie de vous proposer cette maison de 4 pièces de 75 m² et de 379 m² de terrain proche du centre-ville de Pleuven (29170).Cette maison comporte 2 niveaux. Son intérieur compte trois chambres, une cuisine et une salle de bains.Elle est proposée à l’achat pour 282 500 €.N’hésitez pas à prendre contact avec notre agence (DEROUET Mathieu : (Numéro supprimé)) pour toute information sur le bien, sur les démarches à suivre ou sur les modalités de vente. Maisons de l’Avenir Pont-l’Abbé est là pour vous accompagner à toutes les étapes de l’achat.
Pleuven
TERRAINPleuven : terrain de 450 m² en ventePROCHE CENTRE-VILLE – PROCHE DE QUIMPERÀ Pleuven (29170) à 7 km de l’océan Atlantique et à 10 km de Quimper, imaginez la maison de vos rêves sur ce terrain de 450 m². Il se trouve non loin du centre-ville. Il est proposé à l’achat pour 113 000 €. N’hésitez pas à prendre contact avec notre agence (DEROUET Mathieu : (Numéro supprimé)) pour plus de renseignements sur ce terrain ou sur les démarches à suivre. Faites de vos projets immobiliers une réalité avec Maisons de l’Avenir Pont-l’Abbé.
Quimper
TERRAIN ET MAISONMaison T4 (90 m²) à vendre à QuimperPROCHE CENTRE-VILLE – MAISON 4 PIÈCES NEUVEEn vente à 14 km de l’océan Atlantique, notre agence Maisons de l’Avenir Quimper est ravie de vous proposer cette maison de 4 pièces de 90 m² et de 545 m² de terrain proche du centre-ville de Quimper (29000). Elle inclut trois chambres, une cuisine et deux salles de bains.Il s’agit d’une maison de 2 niveaux. Elle est proposée à l’achat pour 267 000 €.Prenez contact avec notre agence (Mathieu DEROUET : (Numéro supprimé)) pour tout renseignement sur la maison. Donnez vie à vos projets immobiliers avec Maisons de l’Avenir Quimper.
Pleuven
TERRAIN ET MAISONMaison de 4 pièces (95 m²) à vendre à PleuvenPROCHE CENTRE-VILLE – MAISON 4 PIÈCES NEUVEEn vente : à 7 km de l’océan Atlantique et à 10 km de Quimper, découvrez cette maison de 4 pièces de 95 m² et de 450 m² de terrain proche du centre-ville de Pleuven (29170). Son intérieur comporte trois chambres, une cuisine et deux salles de bains.Cette maison possède 2 niveaux. Elle est à vendre pour la somme de 352 000 €.N’hésitez pas à prendre contact avec Mathieu DEROUET ((Numéro supprimé)) pour toute information sur la maison, sur les modalités de vente ou sur les démarches à suivre.
Quimper
TERRAIN ET MAISONVENTE : maison T4 (95 m²) à QuimperPROCHE CENTRE-VILLE – MAISON 4 PIÈCES NEUVEEn vente : située à 14 km de l’océan Atlantique, proche du centre-ville de Quimper (29000), notre agence Maisons de l’Avenir Quimper est ravie de vous présenter cette maison de 4 pièces de 95 m².Cette maison possède 2 niveaux. Son intérieur inclut trois chambres, une cuisine et deux salles de bains. Il est proposé à l’achat pour 293 000 €.Contactez Mathieu DEROUET (tél : (Numéro supprimé)) pour tout renseignement sur la maison, sur les démarches à suivre et sur les modalités de vente. Donnez vie à vos projets immobiliers avec Maisons de l’Avenir Quimper.
Plomelin
TERRAIN ET MAISONVENTE : maison T4 (100 m²) à PlomelinPROCHE CENTRE-VILLE – MAISON 4 PIÈCES NEUVEEn vente : localisée à 9 km de la côte atlantique et à quelques kilomètres de Quimper, venez découvrir, proche du centre-ville de Plomelin (29700), cette maison de 4 pièces de 100 m². Son intérieur propose quatre chambres, une cuisine et deux salles de bains.Le terrain de cette maison est de 830 m².C’est une maison de 2 niveaux. Elle est neuve.L’École Primaire Privée Notre-Dame de l’Assomption et l’École Primaire Publique Lucie Aubrac sont implantées à moins de 10 minutes à pied. Niveau transports, on trouve la gare Quimper à moins de 10 minutes en voiture. Il y a un accès à la nationale N165 à 11 km. Il y a un tennis, deux boulangeries, trois commerces, deux supermarchés, une épicerie et une boucherie-charcuterie à proximité du bien.Elle est proposée à l’achat pour 397 221 €.Prenez contact avec Sami ALKIS pour toute information sur la maison. Maisons de l’Avenir Guipavas vous accompagne dans tous vos projets immobiliers et dans toutes vos démarches.
Quimper
TERRAINVENTE : terrain de 545 m² à QuimperPROCHE CENTRE-VILLEÀ Quimper (29000) à vendre à 14 km de l’océan Atlantique, donnez vie à la maison de vos rêves sur ce terrain de 545 m². Il se situe non loin du centre-ville. Des écoles du primaire et du secondaire sont implantées à moins de 10 minutes. La nationale N165 est accessible à 3 km. Il y a une bibliothèque, des commerces, des boulangeries, un supermarché, des poissonneries et quatre supérettes dans les environs. Il est à vendre pour la somme de 54 000 €. Contactez notre agence (DEROUET Mathieu : (Numéro supprimé)) pour toute question sur ce terrain. Maisons de l’Avenir Quimper vous accompagne à toutes les étapes de votre projet et dans tous vos projets immobiliers.
Pleuven
TERRAIN ET MAISONMaison de 4 pièces (85 m²) à vendre à PleuvenPROCHE CENTRE-VILLE – MAISON 4 PIÈCES NEUVEEn vente à 7 km de la côte atlantique et à quelques kilomètres de Quimper, découvrez cette maison de 4 pièces de plain-pied de 85 m² proche du centre-ville de Pleuven (29170).Elle compte trois chambres, une cuisine et une salle de bains. Elle est proposée à l’achat pour 330 000 €.N’hésitez pas à prendre contact avec notre agence (Mathieu DEROUET : (Numéro supprimé)) pour tout renseignement sur la maison, sur les démarches à suivre et sur les modalités de vente.
L’actualité immobilière à Quimper
27/11/2023
02/11/2023
30/10/2023
20/10/2023
16/10/2023
16/10/2023