Maison à construire à Quimperlé (29300)
Images
Description
VENTE d'une maison de 4 pièces (89 m²) à Quimperlé
PROCHE CENTRE-VILLE - MAISON 4 PIÈCES NEUVE
À vendre à 13 km de l'océan Atlantique et à deux pas de Lorient, notre agence Maisons de l'Avenir Quimper est ravie de vous présenter cette maison de 4 pièces de 89 m² et de 377 m² de terrain proche du centre-ville de Quimperlé (29300).
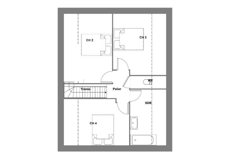
C'est une maison de 2 niveaux. Son intérieur comporte trois chambres, une cuisine et deux salles de bains. Cette maison est neuve.
Il y a cinq établissements scolaires à proximité, tout comme une structure d'accueil pour la petite enfance. Côté transports en commun, on trouve la gare Quimperlé dans les alentours. La nationale N165 est accessible à 2 km. Il y a des commerces, des boulangeries, un supermarché, quatre épiceries et deux poissonneries à proximité. Ne manquez pas le marché Place saint Michel chaque vendredi.
Son prix de vente est de 254 700 €.
Prenez contact avec Marie LAURENT ((Numéro supprimé)) pour obtenir de plus amples renseignements sur la maison, sur les démarches à suivre ou sur les modalités de vente. Maisons de l'Avenir Quimper est là pour vous accompagner à toutes les étapes de votre projet.
Logement susceptibles de vous intéresser
Nous vous proposons de découvrir aussi cette sélection de logements situés à moins de 10km de Quimperlé et qui seraient susceptibles de vous intéresser.
Locunolé
TERRAINLocunolé : terrain de 1 404 m² en ventePROCHE DE LORIENTÀ Locunolé (29310) à 20 km de l’océan Atlantique et à 21 km de Lorient, projetez la maison de vos rêves sur ce terrain de 1 404 m². Il est exposé au sud-ouest. L’École Primaire Publique Bertrand Ollivier est implantée à moins de 10 minutes à pied. Niveau transports, il y a la gare Quimperlé à moins de 10 minutes en voiture. On trouve un accès à la nationale N165 à 10 km.Son prix de vente est de 84 720 €. Contactez notre agence (Marie LAURENT : (Numéro supprimé)) pour toute information sur ce terrain, sur les démarches à suivre ou sur les modalités de vente. Maisons de l’Avenir Quimper est là pour vous accompagner dans tous vos projets immobiliers.
Locunolé
TERRAIN ET MAISONLocunolé : maison F4 (130 m²) en ventePROCHE DE LORIENT – MAISON 4 PIÈCES NEUVEÀ vendre : à 20 km de la côte atlantique et à quelques kilomètres de Lorient, à Locunolé (29310), laissez vous charmer par cette maison de 4 pièces de plain-pied de 130 m² et de 1 404 m² de terrain. Conçue de plain-pied, elle inclut trois chambres, une cuisine et deux salles de bains.Cette maison est neuve.Il y a l’École Primaire Publique Bertrand Ollivier à moins de 10 minutes à pied. Côté transports en commun, on trouve la gare Quimperlé à moins de 10 minutes en voiture. La nationale N165 est accessible à 10 km.Elle est proposée à l’achat pour 385 720 €.Contactez Marie LAURENT ((Numéro supprimé)) pour toute question sur ce bien ou sur les modalités de vente. Maisons de l’Avenir Quimper vous accompagne à toutes les étapes de l’achat et dans tous vos projets immobiliers.
Locunolé
TERRAIN ET MAISONVENTE : maison F6 (153 m²) à LocunoléMAISON 6 PIÈCES NEUVE – PROCHE DE LORIENTÀ vendre à 20 km de la côte atlantique et à deux pas de Lorient, votre agence Maisons de l’Avenir Quimper est ravie de vous proposer cette maison de 6 pièces de 153 m² à Locunolé (29310). Elle comporte cinq chambres, une cuisine et deux salles de bains.Le terrain du bien est de 1 404 m².Cette maison compte 2 niveaux. Elle est neuve.Il y a l’École Primaire Publique Bertrand Ollivier à moins de 10 minutes à pied. Niveau transports, on trouve la gare Quimperlé à moins de 10 minutes en voiture. On trouve un accès à la nationale N165 à 10 km.Son prix de vente est de 426 320 €.Contactez Marie LAURENT (tél : (Numéro supprimé)) pour toute information sur la maison, sur les modalités de vente ou sur les démarches à suivre.
Locunolé
TERRAIN ET MAISONVENTE d’une maison T4 (100 m²) à LocunoléPROCHE DE LORIENT – MAISON 4 PIÈCES NEUVEÀ vendre : localisée à 20 km de la côte atlantique et à 21 km de Lorient, à Locunolé (29310), nous sommes ravis de vous présenter cette maison de 4 pièces de plain-pied de 100 m². Elle est composée de trois chambres, d’une cuisine et d’une salle de bains.Le terrain de la maison est de 1 404 m².Cette maison est neuve.L’École Primaire Publique Bertrand Ollivier est implantée à moins de 10 minutes à pied. Côté transports en commun, il y a la gare Quimperlé à moins de 10 minutes en voiture. Il y a un accès à la nationale N165 à 10 km.Son prix de vente est de 319 720 €.Contactez notre agence (Marie LAURENT : (Numéro supprimé)) pour toute information sur la propriété. Maisons de l’Avenir Quimper est là pour vous accompagner dans tous vos projets immobiliers.
Locunolé
TERRAIN ET MAISONVENTE d’une maison de 4 pièces (105 m²) à LocunoléMAISON 4 PIÈCES NEUVE – PROCHE DE LORIENTÀ vendre : située à 20 km de la côte atlantique et à 21 km de Lorient, Maisons de l’Avenir Quimper vous présente cette maison de 4 pièces de 105 m² à Locunolé (29310).C’est une maison de 2 niveaux. Son intérieur se divise en quatre chambres, une cuisine et deux salles de bains. La maison est neuve.Le terrain du bien s’étend sur 1 404 m².Il y a l’École Primaire Publique Bertrand Ollivier à moins de 10 minutes à pied. Côté transports, on trouve la gare Quimperlé à moins de 10 minutes en voiture. La nationale N165 est accessible à 10 km.Elle est proposée à l’achat pour 330 720 €.Prenez contact avec Marie LAURENT ((Numéro supprimé)) pour tout renseignement sur la maison, sur les modalités de vente ou sur les démarches à suivre.
Guidel
TERRAINVENTE d’un terrain de 406 m² à GuidelPROCHE DE LORIENTTerrain de 406 m² sur la côte atlantique et à quelques kilomètres de Lorient. Ce terrain se situe dans Guidel (56520). Son prix de vente est de 195 000 €. N’hésitez pas à prendre contact avec notre agence (LAPART Anne-Sophie : (Numéro supprimé)) pour plus d’informations sur ce terrain ou sur les démarches à suivre.
Guidel
TERRAIN ET MAISONVENTE d’une maison F3 (75 m²) à GuidelPROCHE DE LORIENT – MAISON 3 PIÈCES NEUVEEn vente sur le littoral atlantique et à quelques kilomètres de Lorient, Maisons de l’Avenir Lorient vous présente à Guidel (56520), cette maison de 3 pièces de 75 m². Son intérieur compte deux chambres, une cuisine et une salle de bains.Le terrain du bien est de 406 m².Cette maison possède 2 niveaux. Elle est proposée à l’achat pour 360 000 €.Contactez notre agence (LAPART Anne-Sophie : (Numéro supprimé)) pour tout renseignement sur cette maison, sur les démarches à suivre ou sur les modalités de vente. Maisons de l’Avenir Lorient vous accompagne à toutes les étapes de votre projet et dans tous vos projets immobiliers.
Guidel
TERRAIN ET MAISONMaison T4 (95 m²) à vendre à GuidelPROCHE DE LORIENT – MAISON 4 PIÈCES NEUVEEn vente : localisée sur la côte atlantique et à 10 km de Lorient, notre agence Maisons de l’Avenir Lorient est ravie de vous proposer cette maison de 4 pièces de 95 m² à Guidel (56520). Son intérieur offre trois chambres, une cuisine et deux salles de bains.Le terrain du bien est de 406 m².Cette maison possède 2 niveaux. Son prix de vente est de 404 000 €.Contactez notre agence (Anne-Sophie LAPART : (Numéro supprimé)) pour obtenir de plus amples informations sur la maison et sur les démarches à suivre. Maisons de l’Avenir Lorient est là pour vous accompagner à toutes les étapes de l’achat.
Guidel
TERRAIN ET MAISONVENTE : maison de 5 pièces (13 015 m²) à GuidelMAISON 5 PIÈCES NEUVE – PROCHE DE LORIENTSur le littoral atlantique et à quelques kilomètres de Lorient, laissez vous charmer par cette maison de 5 pièces de 13 015 m² à vendre à Guidel (56520).Cette maison compte 2 niveaux. Son intérieur inclut quatre chambres, une cuisine et deux salles de bains. Son prix de vente est de 496 000 €.N’hésitez pas à prendre contact avec Anne-Sophie LAPART (tél : (Numéro supprimé)) pour obtenir de plus amples informations sur la maison, sur les démarches à suivre et sur les modalités de vente. Concrétisez vos projets immobiliers avec Maisons de l’Avenir Lorient.
L’actualité immobilière à Quimperlé
27/11/2023
02/11/2023
30/10/2023
20/10/2023
16/10/2023
16/10/2023