Maison à construire à Riec-sur-Bélon (29340)
Images
Description
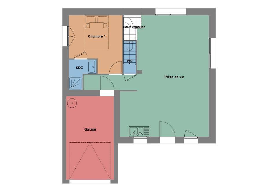
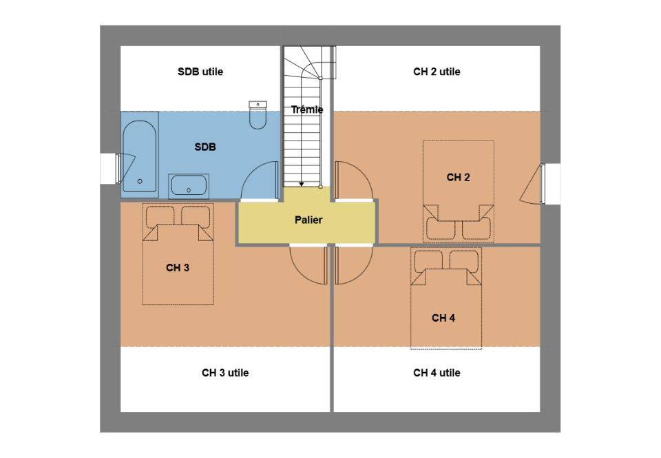
Maison de 5 pièces (130 m²) à vendre à Riec-sur-Bélon
MAISON 5 PIÈCES NEUVE - PROCHE DE LORIENT
À vendre : située à 10 km de la côte atlantique et à deux pas de Lorient, nous sommes ravis de vous présenter cette maison de 5 pièces de 130 m² et de 423 m² de terrain à Riec-sur-Bélon (29340). Elle offre quatre chambres, une cuisine et deux salles de bains.
Cette maison comporte 2 niveaux.
Son prix de vente est de 380 500 €.
Prenez contact avec Anne-Sophie LAPART (tél : (Numéro supprimé)) pour toute information sur cette maison ou sur les modalités de vente. Donnez vie à vos projets immobiliers avec Maisons de l'Avenir Lorient.
Logement susceptibles de vous intéresser
Nous vous proposons de découvrir aussi cette sélection de logements situés à moins de 10km de Riec-sur-Bélon et qui seraient susceptibles de vous intéresser.
Riec-sur-Bélon
TERRAINVENTE d’un terrain de 1 462 m² à Riec-sur-BélonPROCHE DE LORIENTÀ Riec-sur-Bélon (29340) à 10 km de la côte atlantique et à quelques kilomètres de Lorient, venez découvrir ce terrain de 1 462 m². Il bénéficie d’une exposition sud-ouest. Des écoles maternelles et élémentaires sont implantées dans la commune. Niveau transports, il y a la gare Bannalec à moins de 10 minutes en voiture. On trouve un accès à la nationale N165 à 4 km. On trouve une bibliothèque et un supermarché dans les environs.Il est proposé à l’achat pour 146 300 €. Contactez Marie LAURENT (tél : (Numéro supprimé)) pour toute question sur ce terrain ou sur les démarches à suivre.
Riec-sur-Bélon
TERRAIN ET MAISONMaison de 4 pièces (125 m²) à vendre à Riec-sur-BélonMAISON 4 PIÈCES NEUVE – PROCHE DE LORIENTÀ vendre : localisée à 10 km de la côte atlantique et à deux pas de Lorient, votre agence Maisons de l’Avenir Quimper est ravie de vous proposer cette maison de 4 pièces de plain-pied de 125 m² et de 1 462 m² de terrain à Riec-sur-Bélon (29340).Son intérieur dispose de trois chambres, d’une cuisine et de deux salles de bains. Cette maison est neuve.Il y a des écoles primaires dans la commune. Côté transports, on trouve la gare Bannalec à moins de 10 minutes en voiture. Il y a un accès à la nationale N165 à 4 km. Il y a une bibliothèque et un supermarché à quelques minutes de la maison.Son prix de vente est de 417 500 €.N’hésitez pas à prendre contact avec Marie LAURENT (tél : (Numéro supprimé)) pour toute question sur cette maison ou sur les modalités de vente.
Riec-sur-Bélon
TERRAIN ET MAISONVENTE : maison de 5 pièces (150 m²) à Riec-sur-BélonPROCHE DE LORIENT – MAISON 5 PIÈCES NEUVEEn vente : à 10 km de l’océan Atlantique et à 25 km de Lorient, à Riec-sur-Bélon (29340), Maisons de l’Avenir Quimper vous présente cette maison de 5 pièces de 150 m² et de 1 462 m² de terrain.Il s’agit d’une maison de 2 niveaux. Son intérieur se divise en quatre chambres, une cuisine et deux salles de bains. La maison est neuve.Il y a des écoles maternelles et élémentaires dans la commune. Côté transports en commun, on trouve la gare Bannalec à moins de 10 minutes en voiture. Il y a un accès à la nationale N165 à 4 km. Il y a une bibliothèque et un supermarché à quelques minutes à peine.Elle est à vendre pour la somme de 476 300 €.Contactez notre agence (LAURENT Marie : (Numéro supprimé)) pour toute question sur cette maison. Faites de vos projets immobiliers une réalité avec Maisons de l’Avenir Quimper.
Riec-sur-Bélon
TERRAIN ET MAISONVENTE : maison F5 (139 m²) à Riec-sur-BélonPROCHE DE LORIENT – MAISON 5 PIÈCES NEUVEÀ 10 km de la côte atlantique et à 25 km de Lorient, nous vous proposons en vente à Riec-sur-Bélon (29340), cette maison de 5 pièces de plain-pied de 139 m² et de 1 462 m² de terrain.Son intérieur propose quatre chambres, une cuisine et deux salles de bains. La maison est neuve.Il y a des écoles maternelles et élémentaires dans la commune. Côté transports, on trouve la gare Bannalec à moins de 10 minutes en voiture. La nationale N165 est accessible à 4 km. Il y a une bibliothèque et un supermarché à proximité de la maison.Elle est proposée à l’achat pour 453 200 €.Prenez contact avec Marie LAURENT ((Numéro supprimé)) pour toute question sur la maison, sur les modalités de vente ou sur les démarches à suivre. Donnez vie à vos projets immobiliers avec Maisons de l’Avenir Quimper.
Riec-sur-Bélon
TERRAIN ET MAISONVENTE d’une maison de 4 pièces (95 m²) à Riec-sur-BélonMAISON 4 PIÈCES NEUVE – PROCHE DE LORIENTÀ vendre à 10 km de la côte atlantique et à deux pas de Lorient, ayez le coup de coeur pour à Riec-sur-Bélon (29340), cette maison de 4 pièces de 95 m². Son intérieur se divise en trois chambres, une cuisine et deux salles de bains.Le terrain du bien est de 1 462 m².Cette maison comporte 2 niveaux. Elle est neuve.Des écoles maternelles et élémentaires sont implantées dans la commune. Niveau transports en commun, il y a la gare Bannalec à moins de 10 minutes en voiture. La nationale N165 est accessible à 4 km. On trouve une bibliothèque et un supermarché à quelques minutes.Son prix de vente est de 360 800 €.Contactez notre agence (Marie LAURENT : (Numéro supprimé)) pour toute question sur la maison ou sur les démarches à suivre. Donnez vie à vos projets immobiliers avec Maisons de l’Avenir Quimper.
Baye
TERRAIN ET MAISONVENTE : maison de 4 pièces (75 m²) à BayeMAISON 4 PIÈCES NEUVE – PROCHE DE LORIENTÀ 9 km de l’océan Atlantique et à deux pas de Lorient, en vente à Baye (29300), laissez vous charmer par cette maison de 4 pièces de plain-pied de 75 m². Elle inclut trois chambres, une cuisine et une salle de bains.Le terrain de la maison est de 650 m².Cette maison est neuve.Il y a l’École Primaire Publique de Baye à moins de 10 minutes à pied. Côté transports, on trouve la gare Quimperlé à moins de 10 minutes en voiture. La nationale N165 est accessible à 2 km. Il y a une bibliothèque, une boulangerie, un commerce et une boucherie-charcuterie à proximité.Elle est à vendre pour la somme de 219 600 €.Prenez contact avec Marie LAURENT (tél : (Numéro supprimé)) pour plus de renseignements sur cette maison ou sur les démarches à suivre.
Baye
TERRAINBaye : terrain de 650 m² en ventePROCHE DE LORIENTGrand terrain en vente à 9 km de l’océan Atlantique et à deux pas de Lorient. De 650 m², ce terrain se situe dans Baye (29300). Il bénéficie d’une exposition sud-ouest. L’École Primaire Publique de Baye est implantée à moins de 10 minutes à pied. Côté transports en commun, on trouve la gare Quimperlé à moins de 10 minutes en voiture. La nationale N165 est accessible à 2 km. Il y a une bibliothèque, une boulangerie, un commerce et une boucherie-charcuterie à quelques minutes à peine.Ce terrain est proposé à l’achat pour 68 835 €. Prenez contact avec notre agence (LAURENT Marie : (Numéro supprimé)) pour obtenir de plus amples informations sur ce terrain. Maisons de l’Avenir Quimper vous accompagne dans toutes vos démarches et à toutes les étapes de l’achat.
Baye
TERRAIN ET MAISONVENTE : maison de 5 pièces (145 m²) à BayeMAISON 5 PIÈCES NEUVE – PROCHE DE LORIENTÀ 9 km de l’océan Atlantique et à deux pas de Lorient, laissez vous charmer par cette maison de 5 pièces de plain-pied de 145 m² à Baye (29300). Son intérieur propose quatre chambres, une cuisine et deux salles de bains.Le terrain de la propriété s’étend sur 650 m².Cette maison est neuve.Il y a l’École Primaire Publique de Baye à moins de 10 minutes à pied. Niveau transports, on trouve la gare Quimperlé à moins de 10 minutes en voiture. Il y a un accès à la nationale N165 à 2 km. Il y a une bibliothèque, une boulangerie, un commerce et une boucherie-charcuterie à proximité de la maison.Elle est à vendre pour la somme de 373 335 €.N’hésitez pas à prendre contact avec Marie LAURENT (tél : (Numéro supprimé)) pour toute information sur la maison, sur les démarches à suivre ou sur les modalités de vente. Maisons de l’Avenir Quimper vous accompagne dans tous vos projets immobiliers et dans toutes vos démarches.
Baye
TERRAIN ET MAISONMaison de 4 pièces (95 m²) à vendre à BayePROCHE DE LORIENT – MAISON 4 PIÈCES NEUVEÀ vendre : située à 9 km de l’océan Atlantique et à 21 km de Lorient, nous vous proposons cette maison de 4 pièces de 95 m² à Baye (29300). Son intérieur comporte trois chambres, une cuisine et une salle de bains.Le terrain de la propriété s’étend sur 650 m².Cette maison possède 2 niveaux. Elle est neuve.Il y a l’École Primaire Publique de Baye à moins de 10 minutes à pied. Niveau transports en commun, on trouve la gare Quimperlé à moins de 10 minutes en voiture. La nationale N165 est accessible à 2 km. Il y a une bibliothèque, une boulangerie, un commerce et une boucherie-charcuterie à quelques minutes du bien.Elle est proposée à l’achat pour 284 600 €.Contactez notre agence (Marie LAURENT : (Numéro supprimé)) pour toute question sur ce bien, sur les démarches à suivre ou sur les modalités de vente. Donnez vie à vos projets immobiliers avec Maisons de l’Avenir Quimper.
L’actualité immobilière à Riec-sur-Bélon
27/11/2023
02/11/2023
30/10/2023
20/10/2023
16/10/2023
16/10/2023