Maison à construire à Saint-Coulitz (29150)
Images
Description
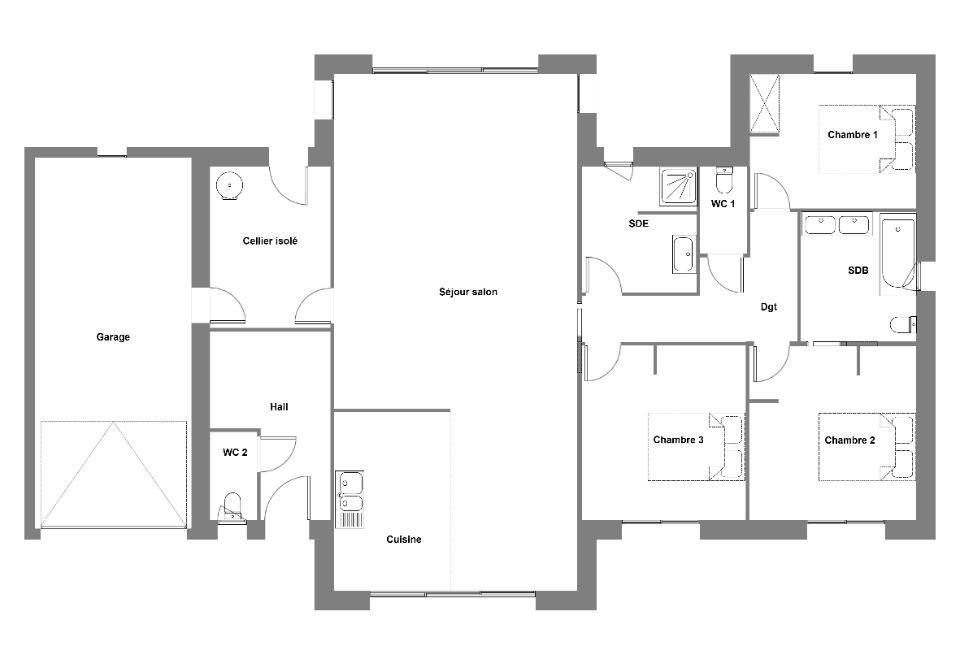
Saint-Coulitz : maison de 4 pièces (124 m²) à vendre
MAISON 4 PIÈCES NEUVE - PROCHE DE QUIMPER
En vente : à 19 km de la côte atlantique et à 21 km de Quimper, nous sommes ravis de vous présenter cette maison de 4 pièces de plain-pied de 124 m² et de 520 m² de terrain à Saint-Coulitz (29150). Son intérieur comporte trois chambres, une cuisine et deux salles de bains.
La maison est neuve.
Des établissements scolaires de tous types sont implantés à moins de 10 minutes en voiture. Côté transports, on trouve les gares Châteaulin et Pont-de-Buis à proximité. Les nationales N165 et N164 sont accessibles à moins de 5 km. Il y a deux bassins de natation, des bibliothèques, des tennis, des commerces, des supermarchés, des boulangeries, des boucheries-charcuteries et une supérette à quelques minutes. Le marché Centre-Ville a lieu chaque jeudi.
Elle est proposée à l'achat pour 322 900 €.
N'hésitez pas à prendre contact avec Marie LAURENT ((Numéro supprimé)) pour tout renseignement sur la maison, sur les démarches à suivre ou sur les modalités de vente. Donnez vie à vos projets immobiliers avec Maisons de l'Avenir Quimper.
Logement susceptibles de vous intéresser
Nous vous proposons de découvrir aussi cette sélection de logements situés à moins de 10km de Saint-Coulitz et qui seraient susceptibles de vous intéresser.
Cast
TERRAIN ET MAISONCast : maison de 5 pièces (102 m²) à vendrePROCHE CENTRE-VILLE – MAISON 5 PIÈCES NEUVEEn vente à 15 km de la côte atlantique et à 17 km de Quimper, nous vous proposons cette maison de 5 pièces de 102 m² proche du centre-ville de Cast (29150).Cette maison possède 2 niveaux. Elle inclut quatre chambres, une cuisine et deux salles de bains. Cette maison est neuve.Le terrain du bien s’étend sur 371 m².Il y a l’École Primaire Publique de Cast et l’École Primaire Privée Notre-Dame à moins de 10 minutes à pied. Côté transports en commun, on trouve la gare Châteaulin à moins de 10 minutes en voiture. On trouve un accès à la nationale N165 à 8 km. Il y a un tennis et une boucherie-charcuterie à proximité.Elle est proposée à l’achat pour 206 835 €.Contactez Sami ALKIS pour toute information sur le bien. Maisons de l’Avenir Guipavas est là pour vous accompagner dans tous vos projets immobiliers.
Cast
TERRAIN ET MAISONVENTE : maison T4 (82 m²) à CastPROCHE CENTRE-VILLE – MAISON 4 PIÈCES NEUVEEn vente : située à 15 km de la côte atlantique et à 17 km de Quimper, notre agence Maisons de l’Avenir Guipavas est heureuse de vous présenter cette maison de 4 pièces de plain-pied de 82 m² et de 371 m² de terrain, proche du centre-ville de Cast (29150). Son intérieur inclut trois chambres, une cuisine et une salle de bains.La maison est neuve.L’École Primaire Publique de Cast et l’École Primaire Privée Notre-Dame se trouvent à moins de 10 minutes à pied. Côté transports, il y a la gare Châteaulin à moins de 10 minutes en voiture. La nationale N165 est accessible à 8 km. On trouve un tennis et une boucherie-charcuterie dans les environs.Son prix de vente est de 195 918 €.Contactez Sami ALKIS pour tout renseignement sur le bien. Faites de vos projets immobiliers une réalité avec Maisons de l’Avenir Guipavas.
Cast
TERRAINVENTE d’un terrain de 509 m² à CastPROCHE CENTRE-VILLE – PROCHE DE QUIMPERGrand terrain à 15 km de la côte atlantique et à 17 km de Quimper. De 509 m², ce terrain se situe proche du centre-ville de Cast (29150). Il bénéficie d’une exposition sud-ouest. L’École Primaire Publique de Cast et l’École Primaire Privée Notre-Dame se trouvent à moins de 10 minutes à pied. Niveau transports en commun, il y a la gare Châteaulin à moins de 10 minutes en voiture. Il y a un accès à la nationale N165 à 8 km. On trouve un tennis et une boucherie-charcuterie dans les environs.Il est proposé à l’achat pour 19 851 €. Contactez notre agence (Sami ALKIS) pour tout renseignement sur le terrain. Maisons de l’Avenir Guipavas est là pour vous accompagner dans tous vos projets immobiliers.
Cast
TERRAIN ET MAISONMaison de 4 pièces (94 m²) en vente à CastPROCHE CENTRE-VILLE – MAISON 4 PIÈCES NEUVEÀ 15 km de l’océan Atlantique et à deux pas de Quimper, en vente proche du centre-ville de Cast (29150), nous sommes heureux de vous proposer cette maison de 4 pièces de plain-pied de 94 m².Elle comporte trois chambres, une cuisine et deux salles de bains. La maison est neuve.Le terrain de la propriété est de 509 m².L’École Primaire Publique de Cast et l’École Primaire Privée Notre-Dame sont implantées à moins de 10 minutes à pied. Côté transports en commun, on trouve la gare Châteaulin à moins de 10 minutes en voiture. On trouve un accès à la nationale N165 à 8 km. Il y a un tennis et une boucherie-charcuterie à quelques minutes du logement.Elle est à vendre pour la somme de 247 812 €.N’hésitez pas à prendre contact avec notre agence (ALKIS Sami) pour toute information sur la maison, sur les démarches à suivre ou sur les modalités de vente. Faites de vos projets immobiliers une réalité avec Maisons de l’Avenir Guipavas.
Cast
TERRAIN ET MAISONVENTE d’une maison de 5 pièces (140 m²) à CastPROCHE CENTRE-VILLE – MAISON 5 PIÈCES NEUVEÀ 15 km de l’océan Atlantique et à quelques kilomètres de Quimper, votre agence Maisons de l’Avenir Guipavas est heureuse de vous proposer en vente, proche du centre-ville de Cast (29150), cette maison de 5 pièces de 140 m² et de 509 m² de terrain.C’est une maison de 2 niveaux. Son intérieur dispose de quatre chambres, d’une cuisine et de deux salles de bains. La maison est neuve.Il y a l’École Primaire Publique de Cast et l’École Primaire Privée Notre-Dame à moins de 10 minutes à pied. Côté transports, on trouve la gare Châteaulin à moins de 10 minutes en voiture. La nationale N165 est accessible à 8 km. Il y a un tennis et une boucherie-charcuterie à proximité du logement.Elle est proposée à l’achat pour 332 543 €.N’hésitez pas à prendre contact avec notre agence (ALKIS Sami) pour tout renseignement sur la maison, sur les démarches à suivre ou sur les modalités de vente. Maisons de l’Avenir Guipavas est là pour vous accompagner dans tous vos projets immobiliers.
Cast
TERRAIN ET MAISONVENTE d’une maison T4 (73 m²) à CastPROCHE CENTRE-VILLE – MAISON 4 PIÈCES NEUVEÀ 15 km de l’océan Atlantique et à 17 km de Quimper, à vendre proche du centre-ville de Cast (29150), Maisons de l’Avenir Guipavas vous propose cette maison de 4 pièces de 73 m² et de 509 m² de terrain. Elle compte trois chambres, une cuisine et une salle de bains.Cette maison possède 2 niveaux. Elle est neuve.Il y a l’École Primaire Publique de Cast et l’École Primaire Privée Notre-Dame à moins de 10 minutes à pied. Niveau transports, on trouve la gare Châteaulin à moins de 10 minutes en voiture. La nationale N165 est accessible à 8 km. Il y a un tennis et une boucherie-charcuterie à quelques minutes du logement.Son prix de vente est de 174 816 €.Prenez contact avec Sami ALKIS pour plus d’informations sur la maison, sur les modalités de vente ou sur les démarches à suivre. Maisons de l’Avenir Guipavas vous accompagne dans tous vos projets immobiliers et à toutes les étapes de votre projet.
Cast
TERRAINVENTE d’un terrain de 371 m² à CastPROCHE CENTRE-VILLE – PROCHE DE QUIMPERÀ Cast (29150) en vente à 17 km de Quimper, imaginez la maison de vos rêves sur ce terrain de 371 m². Il bénéficie d’une exposition sud-ouest. Il est situé non loin du centre-ville. Il y a l’École Primaire Publique de Cast et l’École Primaire Privée Notre-Dame à moins de 10 minutes à pied. Niveau transports en commun, on trouve la gare Châteaulin à moins de 10 minutes en voiture. La nationale N165 est accessible à 8 km. Il y a un tennis et une boucherie-charcuterie à quelques minutes du terrain.Ce terrain est à vendre pour la somme de 14 469 €. Prenez contact avec notre agence (ALKIS Sami) pour obtenir de plus amples renseignements sur ce terrain, sur les modalités de vente ou sur les démarches à suivre.
Cast
TERRAIN ET MAISONVENTE : maison de 3 pièces (57 m²) à CastPROCHE CENTRE-VILLE – MAISON 3 PIÈCES NEUVEÀ vendre à 15 km de la côte atlantique et à quelques kilomètres de Quimper, nous vous proposons cette maison de 3 pièces de plain-pied de 57 m² et de 371 m² de terrain, proche du centre-ville de Cast (29150).Son intérieur propose deux chambres, une cuisine et une salle de bains. La maison est neuve.L’École Primaire Publique de Cast et l’École Primaire Privée Notre-Dame sont implantées à moins de 10 minutes à pied. Niveau transports, on trouve la gare Châteaulin à moins de 10 minutes en voiture. On trouve un accès à la nationale N165 à 8 km. Il y a un tennis et une boucherie-charcuterie dans les environs.Son prix de vente est de 153 321 €.Contactez Sami ALKIS pour plus d’informations sur le bien, sur les démarches à suivre ou sur les modalités de vente.
Saint-Coulitz
TERRAIN ET MAISONMaison F4 (130 m²) en vente à Saint-CoulitzMAISON 4 PIÈCES NEUVE – PROCHE DE QUIMPERÀ vendre à 19 km de l’océan Atlantique et à deux pas de Quimper, à Saint-Coulitz (29150), nous vous présentons cette maison de 4 pièces de 130 m². Elle inclut trois chambres, une cuisine et deux salles de bains.Le terrain du bien est de 520 m².Cette maison comporte 2 niveaux. Elle est neuve.Il y a des établissements scolaires de tous types (de la maternelle au lycée) à moins de 10 minutes en voiture. Côté transports en commun, on trouve les gares Châteaulin et Pont-de-Buis dans les alentours. Les nationales N165 et N164 sont accessibles à moins de 5 km. Il y a deux bassins de natation, des bibliothèques, des tennis, des commerces, des supermarchés, des boulangeries, trois épiceries et trois bureaux de poste à proximité. Enfin, le marché Centre-Ville a lieu chaque jeudi.Elle est à vendre pour la somme de 336 700 €.Prenez contact avec Marie LAURENT (tél : (Numéro supprimé)) pour tout renseignement sur cette maison, sur les démarches à suivre et sur les modalités de vente.
L’actualité immobilière à Saint-Coulitz
27/11/2023
02/11/2023
30/10/2023
20/10/2023
16/10/2023
16/10/2023