Maison à construire à Tréméven (29300)
Images
Description
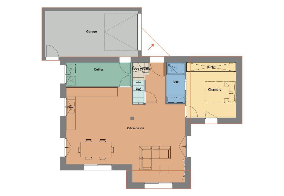
VENTE : maison F5 (111 m²) à Tréméven
IDÉALEMENT SITUÉE - MAISON 5 PIÈCES NEUVE
À 16 km de l'océan Atlantique et à 20 km de Lorient, en vente idéalement située dans Tréméven (29300), Maisons de l'Avenir Lorient vous propose cette maison de 5 pièces de 111 m² et de 480 m² de terrain. Son intérieur est composé de quatre chambres, d'une cuisine et de deux salles de bains.
C'est une maison de 2 niveaux. Elle est neuve.
Ce bien se situe dans un quartier prisé. Il y a l'École Primaire Publique Yann-Fanch Kemener à moins de 10 minutes à pied. Niveau transports, on trouve la gare Quimperlé à moins de 10 minutes en voiture. La nationale N165 est accessible à 5 km. Il y a une bibliothèque et deux épiceries à proximité.
Il est proposé à l'achat pour 320 000 €.
Prenez contact avec notre agence (COLLOCH Christophe : (Numéro supprimé)) pour toute information sur la maison ou sur les modalités de vente. Faites de vos projets immobiliers une réalité avec Maisons de l'Avenir Lorient.
Logement susceptibles de vous intéresser
Nous vous proposons de découvrir aussi cette sélection de logements situés à moins de 10km de Tréméven et qui seraient susceptibles de vous intéresser.
Mellac
TERRAIN ET MAISONDEVENEZ PROPRIÉTAIRE À MELLAC – MAISON NEUVE conforme à la dernière norme basse consommation RE-2020 !Vivez dans un cadre de vie privilégié à Mellac, commune recherchée pour son calme, son environnement naturel et sa proximité avec Quimperlé, ses commerces, ses services et ses écoles. Un lieu idéal pour accueillir votre famille dans un cadre serein et agréable !Votre future maison comprend 😮 3 chambres spacieuses et lumineuseso Un grand salon-séjour traversant ouvert sur le jardino Une cuisine moderne et fonctionnelleo Salle de bain et WC séparésLes atouts du projet 😮 Maison neuve RE2020, à faible consommation d’énergieo Plan personnalisable selon vos besoinso Environnement calme et familialo Prestations de qualité, finitions soignéesCe projet s’implante sur un terrain idéalement situé à Mellac, d’environ 563 m² (surface selon disponibilité des partenaires fonciers).Accession à la propriété possible avec ou sans apport, étude de financement gratuite.Photos à titre d’illustration (photos d’une de nos réalisations – non contractuelles).Nous trouvons l’adresse idéale parmi un large choix de terrains disponibles pour votre future demeure.Ne manquez pas cette belle opportunité de devenir propriétaire d’une maison neuve moderne et économique à Mellac !Contactez-nous dès maintenant pour découvrir les plans et étudier votre projet personnalisé.Armorique Immos, franchise d’un constructeur national de maisons individuelles depuis plus de 40 ans, propose en collaboration avec ses partenaires fonciers une sélection de terrains constructibles, selon disponibilité, pour la construction de maisons neuves définies par le constructeur, avec un contrat de construction de maison individuelle, dans le cadre de la loi du 19/12/1990.Prix net, hors frais notariés, d’enregistrement et de publicité foncière.Étude financière réalisée par nos partenaires en courtage (IOSB inscrit à l’Orias).
Baye
TERRAIN ET MAISONVENTE d’une maison T3 (55 m²) à BayeQUARTIER RECHERCHÉ – MAISON 3 PIÈCES NEUVEÀ 9 km de la côte atlantique et à quelques kilomètres de Lorient, en vente située dans un quartier attractif de Baye (29300), votre agence Maisons de l’Avenir Lorient est ravie de vous proposer cette maison de 3 pièces de plain-pied de 55 m² et de 390 m² de terrain. Son intérieur compte deux chambres, une cuisine et une salle de bains.La maison est neuve.Cette maison est située dans un secteur recherché. L’École Primaire Publique de Baye se trouve à moins de 10 minutes à pied. Niveau transports, il y a la gare Quimperlé à moins de 10 minutes en voiture. La nationale N165 est accessible à 2 km. On trouve une bibliothèque, une boulangerie, un commerce et une boucherie-charcuterie dans les environs.Son prix de vente est de 216 000 €.Prenez contact avec notre constructeur (COLLOCH Christophe : (Numéro supprimé)) pour obtenir de plus amples renseignements sur le bien, sur les démarches à suivre ou sur les modalités de vente.
Tréméven
TERRAINTréméven : terrain de 400 m² en venteEMPLACEMENT PRIVILÉGIÉ – PROCHE DE LORIENTÀ Tréméven (29300) à vendre à 16 km de la côte atlantique et à 20 km de Lorient, venez découvrir ce terrain de 400 m². Il se trouve dans un quartier recherché. Il y a l’École Primaire Publique Yann-Fanch Kemener à moins de 10 minutes à pied. Niveau transports, on trouve la gare Quimperlé à moins de 10 minutes en voiture. La nationale N165 est accessible à 5 km. Il y a une bibliothèque et deux épiceries à quelques minutes à peine.Il est proposé à l’achat pour 47 000 €. Contactez Christophe COLLOCH (tél : (Numéro supprimé)) pour obtenir de plus amples informations sur ce terrain.
Baye
TERRAIN ET MAISONVENTE d’une maison T4 (75 m²) à BayeQUARTIER RECHERCHÉ – MAISON 4 PIÈCES NEUVEÀ vendre à 9 km de l’océan Atlantique et à 21 km de Lorient, nous vous présentons, dans un quartier convoité de Baye (29300), cette maison de 4 pièces de plain-pied de 75 m² et de 390 m² de terrain. Conçue de plain-pied, elle propose trois chambres, une cuisine et une salle de bains.Cette maison est neuve.La maison est située dans un secteur recherché. On trouve l’École Primaire Publique de Baye à moins de 10 minutes à pied. Côté transports, il y a la gare Quimperlé à moins de 10 minutes en voiture. On trouve un accès à la nationale N165 à 2 km. On trouve une bibliothèque, une boulangerie, un commerce et une boucherie-charcuterie dans les environs.Elle est proposée à l’achat pour 279 000 €.Contactez Christophe COLLOCH (tél : (Numéro supprimé)) pour obtenir de plus amples informations sur la maison. Maisons de l’Avenir Lorient vous accompagne dans toutes vos démarches et dans tous vos projets immobiliers.
Rédené
TERRAINRédené : terrain de 415 m² à vendreQUARTIER RECHERCHÉ – PROCHE DE LORIENTÀ Rédené (29300) en vente à 12 km de la côte atlantique et à 15 km de Lorient, donnez vie à votre projet immobilier sur ce terrain de 415 m². Dans un quartier prisé, le terrain niché dans un quartier recherché est proche des commerces et des écoles. L’École Primaire Privée Notre-Dame de Lorette et l’École Primaire Publique du Marronnier sont implantées à moins de 10 minutes à pied. Niveau transports, il y a deux gares (Gestel et Quimperlé) à moins de 10 minutes en voiture. On trouve un accès à la nationale N165 à 4 km. On trouve un tennis, une boulangerie, une boucherie-charcuterie et une épicerie à quelques minutes à peine.Son prix de vente est de 56 000 €. Prenez contact avec Christophe COLLOCH (tél : (Numéro supprimé)) pour toute information sur ce terrain, sur les modalités de vente ou sur les démarches à suivre. Maisons de l’Avenir Lorient est là pour vous accompagner à toutes les étapes de votre projet.
Tréméven
TERRAIN ET MAISONVENTE : maison F5 (111 m²) à TrémévenIDÉALEMENT SITUÉE – MAISON 5 PIÈCES NEUVEÀ 16 km de l’océan Atlantique et à 20 km de Lorient, en vente idéalement située dans Tréméven (29300), Maisons de l’Avenir Lorient vous propose cette maison de 5 pièces de 111 m² et de 480 m² de terrain. Son intérieur est composé de quatre chambres, d’une cuisine et de deux salles de bains.C’est une maison de 2 niveaux. Elle est neuve.Ce bien se situe dans un quartier prisé. Il y a l’École Primaire Publique Yann-Fanch Kemener à moins de 10 minutes à pied. Niveau transports, on trouve la gare Quimperlé à moins de 10 minutes en voiture. La nationale N165 est accessible à 5 km. Il y a une bibliothèque et deux épiceries à proximité.Il est proposé à l’achat pour 320 000 €.Prenez contact avec notre agence (COLLOCH Christophe : (Numéro supprimé)) pour toute information sur la maison ou sur les modalités de vente. Faites de vos projets immobiliers une réalité avec Maisons de l’Avenir Lorient.
Baye
TERRAIN ET MAISONVENTE d’une maison T4 (94 m²) à BayeQUARTIER RECHERCHÉ – MAISON 4 PIÈCES NEUVEÀ vendre : à 9 km de l’océan Atlantique et à quelques kilomètres de Lorient, nous vous présentons, située dans un quartier recherché de Baye (29300), cette maison de 4 pièces de plain-pied de 94 m².Conçue de plain-pied, elle offre trois chambres, une cuisine et deux salles de bains. La maison est neuve.Le terrain de la propriété s’étend sur 390 m².La maison se trouve dans un secteur prisé. Il y a l’École Primaire Publique de Baye à moins de 10 minutes à pied. Côté transports, on trouve la gare Quimperlé à moins de 10 minutes en voiture. La nationale N165 est accessible à 2 km. Il y a une bibliothèque, une boulangerie, un commerce et une boucherie-charcuterie dans les environs.Son prix de vente est de 326 000 €.Contactez Christophe COLLOCH (tél : (Numéro supprimé)) pour plus de renseignements sur la maison.
Baye
TERRAIN ET MAISONVENTE d’une maison T5 (87 m²) à BayeQUARTIER RECHERCHÉ – MAISON 5 PIÈCES NEUVEEn vente : située à 9 km de l’océan Atlantique et à 21 km de Lorient, nous vous présentons cette maison de 5 pièces de 87 m² dans un secteur prisé de Baye (29300). Son intérieur compte quatre chambres, une cuisine et une salle de bains.Le terrain du bien est de 390 m².Il s’agit d’une maison de 2 niveaux. Elle est neuve.La maison est située dans un quartier attractif. On trouve l’École Primaire Publique de Baye à moins de 10 minutes à pied. Côté transports, il y a la gare Quimperlé à moins de 10 minutes en voiture. La nationale N165 est accessible à 2 km. On trouve une bibliothèque, une boulangerie, un commerce et une boucherie-charcuterie dans les environs.Elle est à vendre pour la somme de 290 000 €.Contactez Christophe COLLOCH ((Numéro supprimé)) pour plus d’informations sur la maison, sur les démarches à suivre ou sur les modalités de vente.
Baye
TERRAIN ET MAISONMaison T4 (83 m²) à vendre à BayeQUARTIER RECHERCHÉ – MAISON 4 PIÈCES NEUVEÀ 9 km de l’océan Atlantique et à 21 km de Lorient, nous vous proposons à vendre, construite dans un quartier recherché de Baye (29300), cette maison de 4 pièces de plain-pied de 83 m².Elle dispose de trois chambres, d’une cuisine et d’une salle de bains. Cette maison est neuve.Le terrain de la propriété s’étend sur 390 m².La maison est située dans un secteur prisé. L’École Primaire Publique de Baye se trouve à moins de 10 minutes à pied. Côté transports, il y a la gare Quimperlé à moins de 10 minutes en voiture. Il y a un accès à la nationale N165 à 2 km. On trouve une bibliothèque, une boulangerie, un commerce et une boucherie-charcuterie dans les environs.Elle est à vendre pour la somme de 296 000 €.N’hésitez pas à prendre contact avec notre agence (Christophe COLLOCH : (Numéro supprimé)) pour tout renseignement sur la maison.
L’actualité immobilière à Tréméven
27/11/2023
02/11/2023
30/10/2023
20/10/2023
16/10/2023
16/10/2023