Maison à construire à Tréogat (29720)
Images
Description
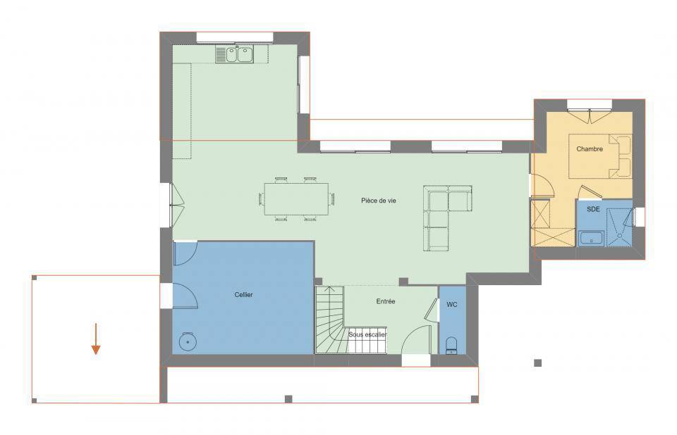
Tréogat : maison de 5 pièces (150 m²) à vendre
PROCHE DE QUIMPER - MAISON 5 PIÈCES NEUVE
À vendre : sur la côte atlantique et à 21 km de Quimper, votre agence Maisons de l'Avenir Quimper est heureuse de vous proposer à Tréogat (29720), cette maison de 5 pièces de 150 m² et de 727 m² de terrain.
Cette maison comporte 2 niveaux. Elle compte quatre chambres, une cuisine et deux salles de bains. Cette maison est neuve.
L'École Primaire Publique les Hirondelles est implantée à proximité.
Elle est proposée à l'achat pour 413 500 €.
Prenez contact avec Marie LAURENT (tél : (Numéro supprimé)) pour plus d'informations sur la maison.
Logement susceptibles de vous intéresser
Nous vous proposons de découvrir aussi cette sélection de logements situés à moins de 10km de Tréogat et qui seraient susceptibles de vous intéresser.
Tréogat
TERRAINVENTE : terrain de 727 m² à TréogatPROCHE DE QUIMPERSur le littoral atlantique et à deux pas de Quimper à Tréogat (29720), grand terrain. Réalisez-y votre projet immobilier. Il bénéficie d’une exposition sud-ouest. L’École Primaire Publique les Hirondelles se trouve à proximité.Son prix de vente est de 52 000 €. N’hésitez pas à prendre contact avec notre agence (LAURENT Marie : (Numéro supprimé)) pour plus d’informations sur ce terrain, sur les démarches à suivre ou sur les modalités de vente. Donnez vie à vos projets immobiliers avec Maisons de l’Avenir Quimper.
Tréogat
TERRAIN ET MAISONTréogat : maison F4 (125 m²) en venteMAISON 4 PIÈCES NEUVE – PROCHE DE QUIMPERÀ 5 km de l’océan Atlantique et à quelques kilomètres de Quimper, nous vous présentons cette maison de 4 pièces de plain-pied de 125 m² en vente à Tréogat (29720). Conçue de plain-pied, elle offre trois chambres, une cuisine et deux salles de bains.Le terrain de la maison s’étend sur 727 m².Cette maison est neuve.L’École Primaire Publique les Hirondelles est implantée à moins de 10 minutes à pied.Elle est proposée à l’achat pour 331 500 €.Contactez Marie LAURENT ((Numéro supprimé)) pour toute information sur cette maison, sur les démarches à suivre et sur les modalités de vente. Donnez vie à vos projets immobiliers avec Maisons de l’Avenir Quimper.
Tréogat
TERRAIN ET MAISONTréogat : maison T3 (57 m²) à vendrePROCHE DE QUIMPER – MAISON 3 PIÈCES NEUVESur la côte atlantique et à deux pas de Quimper, en vente à Tréogat (29720), nous sommes ravis de vous proposer cette maison de 3 pièces de plain-pied de 57 m² et de 727 m² de terrain.Elle offre deux chambres, une cuisine et une salle de bains. La maison est neuve.Il y a l’École Primaire Publique les Hirondelles à proximité.Elle est à vendre pour la somme de 188 990 €.Contactez Marie LAURENT (tél : (Numéro supprimé)) pour toute information sur la maison ou sur les modalités de vente. Faites de vos projets immobiliers une réalité avec Maisons de l’Avenir Quimper.
Tréogat
TERRAIN ET MAISONMaison T4 (95 m²) à vendre à TréogatPROCHE DE QUIMPER – MAISON 4 PIÈCES NEUVEEn vente : à 5 km de l’océan Atlantique et à quelques kilomètres de Quimper, notre agence Maisons de l’Avenir Quimper est heureuse de vous proposer cette maison de 4 pièces de 95 m² et de 727 m² de terrain à Tréogat (29720). Son intérieur se divise en trois chambres, une cuisine et deux salles de bains.Cette maison possède 2 niveaux. Elle est neuve.Il y a l’École Primaire Publique les Hirondelles à proximité.Son prix de vente est de 268 500 €.Prenez contact avec notre agence (Marie LAURENT : (Numéro supprimé)) pour toute question sur cette maison. Maisons de l’Avenir Quimper vous accompagne dans toutes vos démarches et dans tous vos projets immobiliers.
Tréogat
TERRAIN ET MAISONTréogat : maison de 5 pièces (150 m²) à vendrePROCHE DE QUIMPER – MAISON 5 PIÈCES NEUVEÀ vendre : sur la côte atlantique et à 21 km de Quimper, votre agence Maisons de l’Avenir Quimper est heureuse de vous proposer à Tréogat (29720), cette maison de 5 pièces de 150 m² et de 727 m² de terrain.Cette maison comporte 2 niveaux. Elle compte quatre chambres, une cuisine et deux salles de bains. Cette maison est neuve.L’École Primaire Publique les Hirondelles est implantée à proximité.Elle est proposée à l’achat pour 413 500 €.Prenez contact avec Marie LAURENT (tél : (Numéro supprimé)) pour plus d’informations sur la maison.
Saint-Jean-Trolimon
TERRAIN ET MAISONVENTE : maison de 6 pièces (150 m²) à Saint-Jean-TrolimonMAISON 6 PIÈCES NEUVE – PROCHE DE QUIMPERÀ 7 km de l’océan Atlantique et à deux pas de Quimper, ayez le coup de coeur pour cette maison de 6 pièces de 150 m² et de 540 m² de terrain en vente à Saint-Jean-Trolimon (29120).Il s’agit d’une maison de 2 niveaux. Son intérieur se divise en cinq chambres, une cuisine et quatre salles de bains. Elle est à vendre pour la somme de 435 000 €.N’hésitez pas à prendre contact avec notre agence (DEROUET Mathieu : (Numéro supprimé)) pour toute question sur la maison, sur les modalités de vente ou sur les démarches à suivre.
Saint-Jean-Trolimon
TERRAIN ET MAISONMaison T6 (115 m²) en vente à Saint-Jean-TrolimonMAISON 6 PIÈCES OSSATURE BOIS – PROCHE DE QUIMPERÀ 7 km de l’océan Atlantique et à quelques kilomètres de Quimper, votre agence Maisons de l’Avenir Pont-l’Abbé est heureuse de vous présenter cette maison de 6 pièces de 115 m² en vente à Saint-Jean-Trolimon (29120). Son intérieur compte cinq chambres, une cuisine et deux salles de bains.Le terrain de la propriété s’étend sur 540 m².Cette maison possède 2 niveaux. Son prix de vente est de 375 900 €.Prenez contact avec Mathieu DEROUET (tél : (Numéro supprimé)) pour toute question sur la maison et sur les modalités de vente.
Saint-Jean-Trolimon
TERRAIN ET MAISONMaison de 5 pièces (125 m²) en vente à Saint-Jean-TrolimonMAISON 5 PIÈCES NEUVE – PROCHE DE QUIMPERSur le littoral atlantique et à 22 km de Quimper, venez découvrir cette maison de 5 pièces de 125 m² et de 540 m² de terrain en vente à Saint-Jean-Trolimon (29120). Son intérieur dispose de quatre chambres, d’une cuisine et de deux salles de bains.C’est une maison de 2 niveaux. Elle est proposée à l’achat pour 380 000 €.N’hésitez pas à prendre contact avec Mathieu DEROUET ((Numéro supprimé)) pour plus d’informations sur la maison. Maisons de l’Avenir Pont-l’Abbé est là pour vous accompagner dans tous vos projets immobiliers.
Saint-Jean-Trolimon
TERRAIN ET MAISONMaison de 4 pièces (95 m²) en vente à Saint-Jean-TrolimonPROCHE DE QUIMPER – MAISON 4 PIÈCES NEUVEEn vente : localisée sur le littoral atlantique et à quelques kilomètres de Quimper, à Saint-Jean-Trolimon (29120), Maisons de l’Avenir Pont-l’Abbé vous présente cette maison de 4 pièces de 95 m² et de 540 m² de terrain.Il s’agit d’une maison de 2 niveaux. Elle se divise en trois chambres, une cuisine et deux salles de bains. Il est à vendre pour la somme de 314 000 €.Contactez Mathieu DEROUET (tél : (Numéro supprimé)) pour obtenir de plus amples informations sur cette maison, sur les modalités de vente ou sur les démarches à suivre. Maisons de l’Avenir Pont-l’Abbé est là pour vous accompagner à toutes les étapes de l’achat.
L’actualité immobilière à Tréogat
27/11/2023
02/11/2023
30/10/2023
20/10/2023
16/10/2023
16/10/2023