Maison à construire à Tréouergat (29290)
Images
Description
Tréouergat : maison de 5 pièces (140 m²) en vente
IDÉALEMENT SITUÉE - MAISON 5 PIÈCES NEUVE
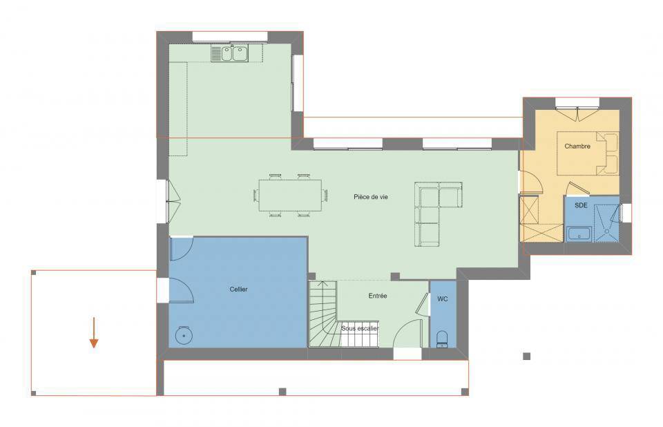
Sur le littoral et à quelques kilomètres de Brest, notre agence Maisons de l'Avenir Guipavas est heureuse de vous proposer à vendre, idéalement située dans Tréouergat (29290), cette maison de 5 pièces de 140 m². Elle inclut quatre chambres, une cuisine et deux salles de bains.
Le terrain du bien est de 591 m².
Cette maison comporte 2 niveaux. Elle est neuve.
Cette maison se situe dans un secteur recherché. Les nationales N12, N265 et N165 sont accessibles à moins de 18 km.
Elle est à vendre pour la somme de 400 000 €.
N'hésitez pas à prendre contact avec notre agence pour toute information sur la maison.
Logement susceptibles de vous intéresser
Nous vous proposons de découvrir aussi cette sélection de logements situés à moins de 10km de Tréouergat et qui seraient susceptibles de vous intéresser.
Lampaul-Ploudalmézeau
TERRAIN ET MAISON📍 À VENDRE – Terrain constructible 622 m² à Lampaul-Ploudalmézeau (99800€)À saisir rapidement !Dans un petit lotissement intimiste de seulement 4 lots, découvrez ce beau terrain constructible de 622 m², situé à 1 km de la plage des Trois Moutons.🌊 Atouts du terrain :Exposition idéale avec vue mer dégagéeEnvironnement calme et préservé 🌿Dernier lot disponible – libre de constructeurCadre parfait pour une résidence principale ou secondaire💡 Nous vous proposons sur ce terrain un projet de maison de 93 m², au style contemporain comprenant :4 chambres dont une suite parentale 🛏️1 salles de bains avec douche et baignoire 🚿Un vaste espace de vie de plus de 35 m² lumineux ☀️Un grand garage 🚗Une conception intégrée dans notre concept Maisons Bâti Activ, favorisant l’ensoleillement naturel et réduisant vos coûts énergétiques 🌿⚡💰 Prix de l’opération Terrain + Maison : 330 000 €Ne tardez pas, cette opportunité rare ne restera pas longtemps sur le marché !📞 Contactez Erwan TILLY dès maintenant pour plus d’informations ou organiser une visite sur place.Maisons de l’avenir
Milizac-Guipronvel
TERRAIN ET MAISON📍 À VENDRE – Terrain constructible de 505 m² à Milizac-GuipronvelDécouvrez ce terrain de 505 m² situé dans un quartier résidentiel paisible, au coeur d’un environnement verdoyant et agréable.🌿 Atouts du terrain :Cadre calme et résidentiel, idéal pour une maison familiale 🏡Accès rapide à Brest : seulement 15 minutes en voiture 🚗🏫 À proximité : écoles, commerces du centre-bourg, vie associative dynamique et transports scolaires.Profitez du compromis parfait entre tranquillité et accessibilité, pour réaliser votre futur projet de vie.💡 Nous vous proposons sur ce terrain un projet de maison de 70m² de plein pied, au style contemporain comprenant :3 chambres dont une suite parentale et un bureau🛏️1 salles de bains avec douche et baignoire🚿Un vaste espace de vie de plus de 35 m² lumineux ☀️Un grand garage 🚗Une conception intégrée dans notre concept Maisons Bâti Activ, favorisant l’ensoleillement naturel et réduisant vos coûts énergétiques 🌿⚡💰 Prix de l’opération Terrain + Maison : 254 000 €📞 Contactez Erwan TILLY dès maintenant pour plus d’informations ou organiser une visite.
Lampaul-Ploudalmézeau
TERRAIN ET MAISON📍 À VENDRE – Terrain constructible 622 m² à Lampaul-Ploudalmézeau (99800€)À saisir rapidement !Dans un petit lotissement intimiste de seulement 4 lots, découvrez ce beau terrain constructible de 622 m², situé à 1 km de la plage des Trois Moutons.🌊 Atouts du terrain :Exposition idéale avec vue mer dégagéeEnvironnement calme et préservé 🌿Dernier lot disponible – libre de constructeurCadre parfait pour une résidence principale ou secondaire💡 Nous vous proposons sur ce terrain un projet de maison de 140 m², au style traditionnel avec des touches contemporaines comprenant :4 chambres dont une suite parentale 🛏️2 salles de bains 🚿Un vaste espace de vie de plus de 55 m² lumineux ☀️Un grand garage 🚗Une conception intégrée dans notre concept Maisons Bâti Activ, favorisant l’ensoleillement naturel et réduisant vos coûts énergétiques 🌿⚡💰 Prix de l’opération Terrain + Maison : 450 000 €Ne tardez pas, cette opportunité rare ne restera pas longtemps sur le marché !📞 Contactez Erwan TILLY dès maintenant pour plus d’informations ou organiser une visite sur place.Maisons de l’avenir
Milizac-Guipronvel
TERRAIN📍 À VENDRE – Terrain constructible de 505 m² à Milizac-GuipronvelDécouvrez ce terrain de 505 m² situé dans un quartier résidentiel paisible, au coeur d’un environnement verdoyant et agréable.🌿 Atouts du terrain :Cadre calme et résidentiel, idéal pour une maison familiale 🏡Accès rapide à Brest : seulement 15 minutes en voiture 🚗🏫 À proximité : écoles, commerces du centre-bourg, vie associative dynamique et transports scolaires.Profitez du compromis parfait entre tranquillité et accessibilité, pour réaliser votre futur projet de vie.📞 Contactez Erwan TILLY dès maintenant pour plus d’informations ou organiser une visite.
Milizac-Guipronvel
TERRAIN ET MAISONCadre calme et résidentiel, idéal pour une maison familiale 🏡Accès rapide à Brest : seulement 15 minutes en voiture 🚗🏫 À proximité : écoles, commerces du centre-bourg, vie associative dynamique et transports scolaires.Profitez du compromis parfait entre tranquillité et accessibilité, pour réaliser votre futur projet de vie.💡 Nous vous proposons sur ce terrain un projet de maison de 150m², au style contemporain comprenant :5 chambres dont une suite parentale et un bureau🛏️2 salles de bains dont une avec douche et baignoire🚿Un vaste espace de vie de plus de 55 m² lumineux ☀️Un grand garage 🚗Une conception intégrée dans notre concept Maisons Bâti Activ, favorisant l’ensoleillement naturel et réduisant vos coûts énergétiques 🌿⚡💰 Prix de l’opération Terrain + Maison : 462 000 €📞 Contactez Erwan TILLY dès maintenant pour plus d’informations ou organiser une visite.
Lampaul-Ploudalmézeau
TERRAIN ET MAISON📍 À VENDRE – Terrain constructible 622 m² à Lampaul-Ploudalmézeau (99800€)À saisir rapidement !Dans un petit lotissement intimiste de seulement 4 lots, découvrez ce beau terrain constructible de 622 m², situé à 1 km de la plage des Trois Moutons.🌊 Atouts du terrain :Exposition idéale avec vue mer dégagéeEnvironnement calme et préservé 🌿Dernier lot disponible – libre de constructeurCadre parfait pour une résidence principale ou secondaire💡 Nous vous proposons sur ce terrain un projet de maison de 100 m² de plein pied, au style contemporain comprenant :3 chambres dont une suite parentale 🛏️1 salles de bains avec douche et baignoire 🚿Un vaste espace de vie de plus de 45 m² lumineux ☀️Un grand garage 🚗Une conception intégrée dans notre concept Maisons Bâti Activ, favorisant l’ensoleillement naturel et réduisant vos coûts énergétiques 🌿⚡💰 Prix de l’opération Terrain + Maison : 340 000 €Ne tardez pas, cette opportunité rare ne restera pas longtemps sur le marché !📞 Contactez Erwan TILLY dès maintenant pour plus d’informations ou organiser une visite sur place.Maisons de l’avenir
Lampaul-Ploudalmézeau
TERRAIN📍 À VENDRE – Terrain constructible 622 m² à Lampaul-Ploudalmézeau (99800€)À saisir rapidement !Dans un petit lotissement intimiste de seulement 4 lots, découvrez ce beau terrain constructible de 622 m², situé à 1 km de la plage des Trois Moutons.🌊 Atouts du terrain :Exposition idéale avec vue mer dégagéeEnvironnement calme et préservé 🌿Dernier lot disponible – libre de constructeurCadre parfait pour une résidence principale ou secondaireNe tardez pas, cette opportunité rare ne restera pas longtemps sur le marché !📞 Contactez Erwan TILLY dès maintenant pour plus d’informations ou organiser une visite sur place.Maisons de l’avenir
Milizac-Guipronvel
TERRAIN ET MAISON📍 À VENDRE – Terrain constructible de 505 m² à Milizac-GuipronvelDécouvrez ce terrain de 505 m² situé dans un quartier résidentiel paisible, au coeur d’un environnement verdoyant et agréable.🌿 Atouts du terrain :Cadre calme et résidentiel, idéal pour une maison familiale 🏡Accès rapide à Brest : seulement 15 minutes en voiture 🚗🏫 À proximité : écoles, commerces du centre-bourg, vie associative dynamique et transports scolaires.Profitez du compromis parfait entre tranquillité et accessibilité, pour réaliser votre futur projet de vie.💡 Nous vous proposons sur ce terrain un projet de maison de 110m², au style contemporain comprenant :4 chambres dont une suite parentale 🛏️2 salles de bains dont une avec douche et baignoire🚿Un vaste espace de vie de plus de 35 m² lumineux ☀️Un grand garage 🚗Une conception intégrée dans notre concept Maisons Bâti Activ, favorisant l’ensoleillement naturel et réduisant vos coûts énergétiques 🌿⚡💰 Prix de l’opération Terrain + Maison : 340 000 €📞 Contactez Erwan TILLY dès maintenant pour plus d’informations ou organiser une visite.
Lampaul-Ploudalmézeau
TERRAIN ET MAISON📍 À VENDRE – Terrain constructible 622 m² à Lampaul-Ploudalmézeau (99800€)À saisir rapidement !Dans un petit lotissement intimiste de seulement 4 lots, découvrez ce beau terrain constructible de 622 m², situé à 1 km de la plage des Trois Moutons.🌊 Atouts du terrain :Exposition idéale avec vue mer dégagéeEnvironnement calme et préservé 🌿Dernier lot disponible – libre de constructeurCadre parfait pour une résidence principale ou secondaire💡 Nous vous proposons sur ce terrain un projet de maison de 150 m², au style contemporain comprenant :4 chambres dont une suite parentale 🛏️2 salles de bains 🚿Un vaste espace de vie de plus de 55 m² lumineux ☀️Un grand garage 🚗Une conception intégrée dans notre concept Maisons Bâti Activ, favorisant l’ensoleillement naturel et réduisant vos coûts énergétiques 🌿⚡💰 Prix de l’opération Terrain + Maison : 470 000 €Ne tardez pas, cette opportunité rare ne restera pas longtemps sur le marché !📞 Contactez Erwan TILLY dès maintenant pour plus d’informations ou organiser une visite sur place.Maisons de l’avenir
L’actualité immobilière à Tréouergat
27/11/2023
02/11/2023
30/10/2023
20/10/2023
16/10/2023
16/10/2023