Terrain à vendre

Maison à construire à Saze (30650)

390000 €
95 m²
Saze
Gard (30)
TERRAIN ET MAISON
Réf externe: 3548537
Annonce publiée le 5 novembre 2025

Images

Description

L'agence Maisons France Confort du Pontet vous propose, en accord avec son partenaire foncier et en exclusivité ce joli terrain de 432 m² sur la commune de SAZE .
SAZE se situe à 10 minutes d'Avignon et à 15 minutes de l' accès a l autoroute a 15mn .
Le terrain est exposé plein sud, il est non viabilités et se situe dans une zone très calme tout proche du centre ville.
Vous trouverez dans les alentours un hôpital, un centre commercial, un pôle santé, une école, collège, arrêt de bus etc...
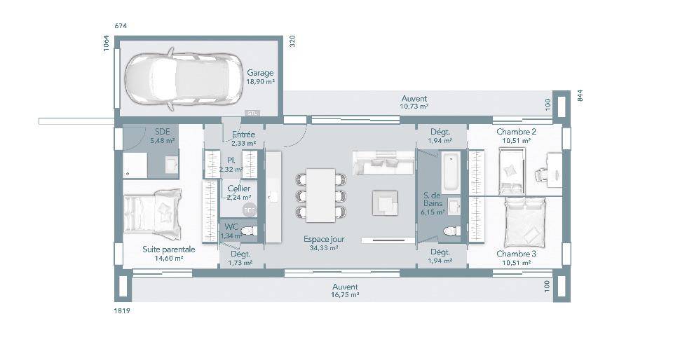
Votre villa contemporaine personnalisée avec de hautes prestations
Pour plus d'informations, n'hésitez à contacter Lionel Montagne de l'agence de Maisons France Confort Le Pontet au (Numéro supprimé)

CONTACTER

Logement susceptibles de vous intéresser

99 000 € 211 €/m²
470 m²

Tavel

TERRAIN

30126 TAVEL- Gard – Terrain 473 m² – 99 000 Euros -Nicolas JENNY vous propose ce terrain plat de 470 m², arboré et en partie clôturé dans un environnement calme tout en restant proche des commodités (commerces, écoles, transports).Viabilités en bordure, ce terrain est prêt à accueillir votre projet de construction.Exposition agréable offrant une belle luminosité tout au long de la journée.Libre de constructeur : laissez libre cours à vos envies architecturales.Secteur recherché, cadre de vie paisible et familial.Une belle opportunité à saisir pour construire la maison dans un cadre agréablePrix de vente : 99 000 Euros (honoraires à la charge du vendeur).Mandat 409432. Dossier et photos sur demande.Selon l’article L.561.5 du Code Monétaire et Financier, pour l’organisation de la visite, la présentation d’une pièce d’identité vous sera demandée.Informations sur les risques auxquels ce bien est exposé sont disponibles sur le site Géorisques : www.georisques.gouv.frNicolas JENNY 06 72 999 518, (Email supprimé).Cette présente annonce a été rédigée sous la responsabilité éditoriale de Nicolas JENNY agissant en qualité de conseiller immobilier indépendant sous portage salarial auprès de SAS PROPRIETES PRIVEES, au capital de 44 920 Euros, ZAC LE CHÊNE FERRÉ – 44 ALLÉE DES CINQ CONTINENTS 44120 VERTOU. SIRET 487 624 777 00040, RCS Nantes. Carte Professionnelle Transactions sur immeubles et fonds de commerce (T) et Gestion immobilière (G) n°CPI 4401 2016 000 010 388 délivrée par la CCI Nantes – Saint Nazaire. Compte séquestre n(Numéro supprimé)67 BPA SAINT-SEBASTIEN-SUR-LOIRE (44230). Garantie GALIAN-SMABTP – 89 rue de la Boétie, 75008 Paris – n°28137 J pour 2 000 000 euros pour T et 120 000 euros pour G. Assurance responsabilité civile professionnelle par GALIAN-SMABTP n° de police 28137.J.

L’actualité immobilière à Saze

Image du post Pourquoi acheter un terrain en lotissement ? 27/11/2023
Lire l’article
Pourquoi acheter un terrain en lotissement ?
Image du post Vendre son terrain à un promoteur : comment procéder ? 02/11/2023
Lire l’article
Vendre son terrain à un promoteur : comment procéder ?
Image du post Diviser le terrain de sa maison pour le vendre : pourquoi et comment ? 30/10/2023
Lire l’article
Diviser le terrain de sa maison pour le vendre : pourquoi et comment ?
Image du post Acheter un terrain viabilisé : quels avantages ? 20/10/2023
Lire l’article
Acheter un terrain viabilisé : quels avantages ?
Image du post Les 7 étapes incontournables pour bien vendre votre terrain constructible 16/10/2023
Lire l’article
Les 7 étapes incontournables pour bien vendre votre terrain constructible
Image du post 5 points clés à vérifier pour l’achat d’un terrain constructible  16/10/2023
Lire l’article
5 points clés à vérifier pour l’achat d’un terrain constructible