Maison à construire à Cuguron (31210)
Images
Description
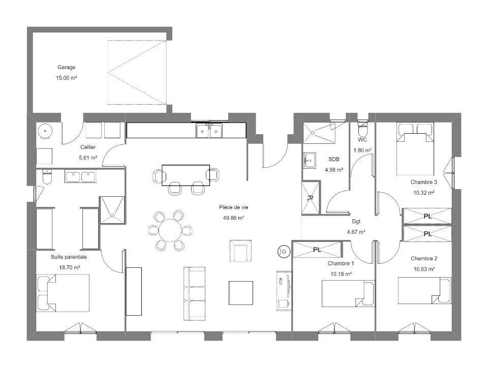
VENTE : maison de 5 pièces (115 m²) à Cuguron
Maison neuve 5 pièces en vente à Cuguron (31210) avec une surface de 115 m² sur un terrain de 2 030 m². Elle compte quatre chambres, une cuisine et deux salles de bains.
Proche gare (Montréjeau-Gourdan-Polignan), établissements scolaires, crèche, marchés, tennis, bibliothèques, bassins de natation, commerces, supermarchés, boulangeries, boucheries-charcuteries et épiceries. Autoroutes A64 et A645 à 5 km. Espagne à 32 km.
Cette maison de 5 pièces est à vendre pour la somme de 230 000 €.
Prenez contact avec Valérie PUJADE ((Numéro supprimé)) pour tout renseignement sur la maison.
Logement susceptibles de vous intéresser
Nous vous proposons de découvrir aussi cette sélection de logements situés à moins de 10km de Cuguron et qui seraient susceptibles de vous intéresser.
Clarac
TERRAINTerrain plat de 1000m2 situé sur la commune de Clarac, au coeur d’un environnement calme et résidentiel, à proximité immédiate de Saint Gaudens et Montréjeau. Toutes commodités (écoles, commerces, accès A64)Facile à aménager. Prêt à construire. Etude de sol G1 déjà effectuée.Ce terrain est parfaitement adapté pour la construction de votre future maison.Pour plus d’informations, vous pouvez contacter directement Valérie PUJADE au (Numéro supprimé).
Clarac
TERRAIN ET MAISONBelle maison plain pied de 90m2 avec garage moderne en toit plat. Profitez d’une grande pièce de vie fonctionnelle et baignée de lumière, un coin nuit séparé avec 3 chambres équipées de placards, 1 salle de bain avec grande douche à l’italienne, 1 WC séparé. Le cellier attenant au garage et à l’espace de vie.Construite selon les normes RE2020, cette maison vous garantit efficacité énergétique, confort thermique et économie d’énergie. Pour votre étude personnalisée, vous pouvez contacter Valérie PUJADE au (Numéro supprimé).
Clarac
TERRAIN ET MAISONVous rêvez d’une maison lumineuse, fonctionnelle et clé en main ? Découvrez ce plain pied de 90m2 habitables avec garage de 20m2, pensé pour votre confort au quotidien? 3 chambres confortables, grande pièce de vie ouverte avec baies vitrées, salle de bain moderne, WC séparé, garage attenant. Construite selon les normes RE2020, cette maison vous garantit efficacité énergétique, confort thermique et économie d’énergie. Pour votre étude personnalisée, vous pouvez contacter Valérie PUJADE au (Numéro supprimé).
Bordes-de-Rivière
TERRAINBeau terrain plat ,constructible à vendre – 1800m2 à Bordes de Rivière. A 8 minutes entrée autoroute Montréjeau, 10 minutes de Saint Gaudens.Idéal pour votre projet de construction de résidence principale ou secondaire.Accès facile, réseaux en bordure, assainissement individuel à prévoir.Pour votre étude personnalisée, vous pouvez contacter directement Valérie PUJADE au (Numéro supprimé).
Bordes-de-Rivière
TERRAIN ET MAISONBelle maison en forme V, pensée pour offrir un style unique, une luminosité exceptionnelle et un confort de vie incomparable.Avec ses 100m2 habitables et son garage de 15m2, cette maison moderne séduit par son architecture élégante et son agencement optimisé. Un ESPACE de VIE d’exception : séjour spacieux et lumineux de + de 53m2, grandes baies vitrées pour une ouverture totale sur l’extérieur, cuisine ouverte conviviale, idéale pour recevoir. ESPACE NUIT avec 3 chambres bien disposé, une salle de bain moderne avec double vasque et douche à l’italienne, 1 WC indépendant. Praticité et confort au quotidien avec un cellier attenant cuisine/garage.Cette maison est idéale pour les familles et amoureux d’espaces ouverts.Pour votre projet personnalisé, vous pouvez contacter directement Valérie PUJADE au (Numéro supprimé).
Bordes-de-Rivière
TERRAIN ET MAISONLaissez vous séduire par cette maison moderne aux lignes élégantes, parfaitement pensée pour offrir confort, fonctionnalité et bien être au quotidien.Cette maison de plein pied de 115m2 propose une distribution optimisée et des volumes généreux pour répondre aux besoins des familles modernes.GRANDES OUVERTES pour une maison baignée de lumière., alliant confort et efficacité énergétique.Grande Piece de vie ouverte et traversante de 50m2, 3 chambres avec placard intégrés, 1 suite parentale avec salle d’eau privatise et dressing, 1 salle de bain principale et 1 WC séparé.Cellier attenant à la cuisine et au garage, praticité garantie !UN lieu de vie agréable au quotidien comme pour accueillir vos proches.Pour votre étude personnalisée, vous pouvez contacter directement Valérie PUJADE au (Numéro supprimé).
Cuguron
TERRAINTerrain de 2 030 m² à vendre à CuguronProjetez-vous sur ce terrain de 2 030 m² à Cuguron (31210).À proximité : gare (Montréjeau-Gourdan-Polignan), établissements scolaires, crèche, marchés, tennis, bibliothèques, bassins de natation, commerces, supermarchés, boulangeries, boucheries-charcuteries et supérettes. Accès autoroutes A64 et A645 à 5 km. Espagne à 32 km.Son prix de vente est de 28 000 €. Contactez notre agence (PUJADE Valérie : (Numéro supprimé)) pour tout renseignement sur le terrain, sur les démarches à suivre ou sur les modalités de vente.
Cuguron
TERRAIN ET MAISONMaison de 4 pièces (100 m²) à vendre à CuguronÀ Cuguron (31210), maison neuve en vente de 4 pièces, 100 m² de surface sur 2 030 m² de terrain. Elle offre trois chambres, une cuisine et une salle de bains.Proche gare (Montréjeau-Gourdan-Polignan), établissements scolaires, crèche, marchés, tennis, bibliothèques, bassins de natation, commerces, supermarchés, boulangeries, bureaux de poste et épiceries. Autoroutes A64 et A645 accessibles à 5 km. Espagne à 32 km.Le prix de vente de cette maison de 4 pièces est de 213 000 €.N’hésitez pas à prendre contact avec notre agence (Valérie PUJADE : (Numéro supprimé)) pour toute question sur la maison de plain-pied, sur les démarches à suivre ou sur les modalités de vente.
Cuguron
TERRAIN ET MAISONVENTE : maison de 4 pièces (100 m²) à CuguronÀ découvrir à Cuguron (31210) : maison neuve 4 pièces à vendre, 100 m² et 2 030 m² de terrain. Elle offre trois chambres, une cuisine et deux salles de bains.Proche gare (Montréjeau-Gourdan-Polignan), établissements scolaires, crèche, marchés, tennis, bibliothèques, bassins de natation, commerces, supermarchés, boulangeries, boucheries-charcuteries et bureaux de poste. Autoroutes A64 et A645 à 5 km. Espagne à 32 km.Le prix de vente de cette maison de 4 pièces est de 263 000 €.Contactez notre agence (PUJADE Valérie : (Numéro supprimé)) pour obtenir de plus amples informations sur la maison, sur les démarches à suivre ou sur les modalités de vente. Maisons Bruno Petit GHPA Saint-Gaudens vous accompagne à toutes les étapes de l’achat et dans tous vos projets immobiliers.
L’actualité immobilière à Cuguron
27/11/2023
02/11/2023
30/10/2023
20/10/2023
16/10/2023
16/10/2023