Maison à construire à Saussens (31460)
Images
Description
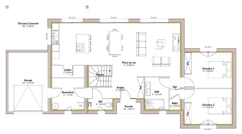
Une villa familiale d'exception à Saussens, le luxe de l'espace et de la lumière.
Découvrez un projet de vie unique et haut de gamme à SAUSSENS : la construction d'une villa contemporaine de 145 m² sur un terrain de 681 m². Cette opportunité rare est pensée pour une clientèle exigeante, désireuse d'allier l'intimité d'une vie à la campagne et les avantages d'une proximité avec Toulouse.
Une architecture intelligente pour un confort optimal
Cette villa à étage partiel a été conçue pour maximiser l'espace, la fonctionnalité et la lumière :
Vaste pièce de vie avec cuisine ouverte : Un espace central, convivial et aéré, complété par un cellier pratique.
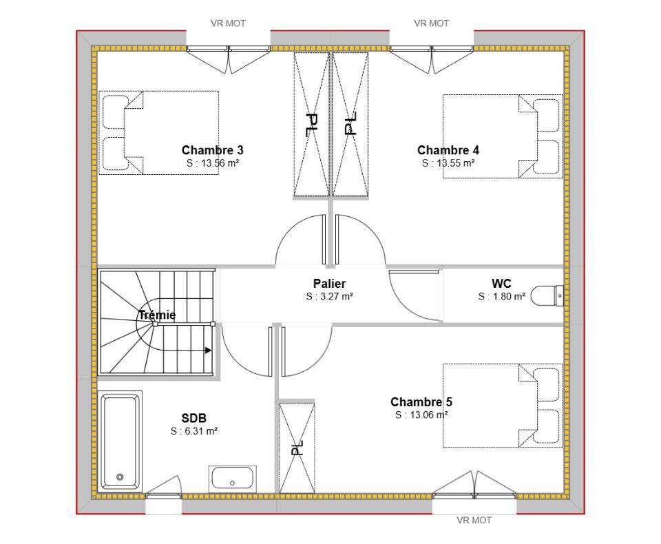
Cinq chambres spacieuses : Idéale pour les familles, cette maison offre des espaces de repos distincts pour chacun.
Deux salles de bains et deux WC séparés : Un agencement réfléchi pour une circulation fluide et un confort quotidien.
Nombreux rangements intégrés : L'ingéniosité de la conception assure une organisation parfaite et un intérieur épuré.
Les espaces extérieurs sont également pensés pour votre bien-être, avec une terrasse de 15 m² et un porche d'entrée qui confèrent à la maison une élégance certaine.
Un investissement de prestige dans un cadre recherché
Ce projet "terrain + maison" est proposé à partir de 356 000 € (hors frais de notaire et annexes).
Le terrain de 681 m², entièrement viabilisé, est une véritable rareté dans ce secteur. Saussens, avec son atmosphère paisible et son accès aisé aux commodités essentielles (écoles, commerces, services de santé), offre le parfait équilibre entre une vie sereine et une proximité immédiate de l'effervescence toulousaine.
Ne manquez pas cette opportunité de concevoir la maison de vos rêves dans un environnement privilégié. Pour en savoir plus, contactez dès aujourd'hui l'agence Maisons France Confort de Saint-Orens au (Numéro supprimé).
Annonce proposée par un Agent Commercial Partenaire.
Logement susceptibles de vous intéresser
Nous vous proposons de découvrir aussi cette sélection de logements situés à moins de 10km de Saussens et qui seraient susceptibles de vous intéresser.
Caraman
TERRAINNOUVEAUTE : Belle parcelle de 634 m² borné viabilisé avec assainissement autonome à prévoir dans un environnement bucolique – au calme dans un charmant village du Lauragais – Belle vue sur la campagne environnante – Surface plancher de 250 m² maximum – Plusieurs parcelles sont visibles sur RDV – Venez vous projeter dans votre futur chez vous !!Honoraires de 5.75 % TTC inclus à la charge de l’acquéreur (87 000 hors honoraires)Votre agent commercial 3G IMMO sur place EI – Nathalie YVART JOUSSEAUME inscrite au RSAC de TOULOUSE n° 519 106 579 Selon l’article L.561.5 du Code Monétaire et Financier, pour l’organisation de la visite, la présentation d’une pièce d’identité vous sera demandée.Les informations sur les risques auxquels ce bien est exposé sont disponibles sur le site Géorisques : www.georisques.gouv.frLes informations sur les risques auxquels ce bien est exposé sont disponibles sur le site Géorisques : www.georisques.gouv.fr
Saussens
TERRAIN ET MAISONLe modèle Lina est une maison à étage de 93m² à l’architecture contemporaine et épurée.À l’étage, le coin nuit s’articule autour de trois chambres dont une avec un dressing, d’une salle de bain et d’un wc séparé.Au rez-de-chaussée, la pièce de vie est fonctionnelle avec une cuisine ouverte sur le séjour de plus de 35m².Enfin, la maison dispose d’un garage de 15m² qui peut accueillir un véhicule.Tous nos modèles de maison peuvent être personnalisés en fonction de vos besoins et envies !Dans la jolie commune de Saussens, ce terrain d’une surface de 722 m² est entièrement viabilisé. Il est issu d’un petit lotissement de 8 lots dans un quartier calme à un kilomètre de Bourg Saint Bernard. Vous avez également toutes les commodités et commerces nécessaires à proximité.
Verfeil
TERRAIN ET MAISONLe modèle Zoé est une maison de plain-pied de 100 m² à l’architecture contemporaine et épurée. Elle s’articule autour de trois chambres avec placard, d’une salle de bain et d’un wc séparé. La pièce de vie est fonctionnelle avec une cuisine ouverte sur le séjour de près de 48m² .Enfin, la maison dispose d’un cellier et d’un espace de rangement à l’entrée.Tous nos modèles de maison peuvent être personnalisés en fonction de vos besoins et envies !Dans la charmante commune de Verfeil, ce terrain de 945 m² est issu d’un petit lotissement de quelques lots seulement. Vous y découvrirez un cadre calme et accueillant. De plus, sa proximité avec le centre de Verfeil vous offre un accès à toutes les commodités nécessaires dans votre quotidien.
Saint-Pierre-de-Lages
TERRAIN ET MAISONLe modèle Thyssane est une maison de plain-pied de 108 m² à l’architecture contemporaine et épurée grâce à son auvent. Elle s’articule autour de quatre chambres avec placard dont une suite parentale avec dressing et salle d’eau, d’une salle de bain et d’un wc séparé. La pièce de vie est fonctionnelle avec une cuisine ouverte sur le séjour de plus de 42m² .Enfin, la maison dispose d’un beau garage de 18 m² qui peut accueillir un véhicule.Tous nos modèles de maison peuvent être personnalisés en fonction de vos besoins et envies !Nous vous proposons un joli terrain d’environ 600 m² entièrement viabilisé sur la commune de Saint Pierre de Lages. Ce joli terrain est pourvu du tout à l’égout et se situe au cœur du village. Il est aussi à proximité de toutes les commodités avec un accès direct à la voie rapide. Enfin, vous pourrez profiter d’un environnement champêtre avec vue sur les Pyrénées.
Verfeil
TERRAINLot numéro 5 – Surface 983m² – SDP 250m² – Verfeil, une commune accueillante, incarne l’alliance parfaite entre histoire, patrimoine et vitalité. Bénéficiant d’une liaison directe avec l’autoroute A68, Verfeil est implantée tout proche de Toulouse et de son dynamique pôle économique de l’Est.Entouré des payasages du pays toulousain, le programme «Dans les champs» profite de sa proximité avec le centre de Verfeil, offrant ainsi un accès aisé à tous ses attraits, tels que commerces et services de santé.Avec ses 8 terrains «Dans les Champs» vous enchantera par son ambiance sereine et apaisante.Devenez propriétaire au sein d’un village au caractère unique !
Verfeil
TERRAINVERFEILTerrain de 945 m²au prix de 129 000 € hors frais de notaireVenez découvrir cette magnifique parcelle située dans la commune de Verfeil. Ce terrain au calme et entièrement viabilisé est parfait pour accueillir votre projet de construction. N’attendez plus !Pour toutes informations, contactez l’agence MAISONS FRANCE CONFORT de Saint Orens au (Numéro supprimé).Annonce proposée par un Agent Commercial Partenaire.
Verfeil
TERRAIN ET MAISONUne villa familiale d’exception à VERFEIL, le luxe de l’espace et de la lumière.Découvrez un projet de vie unique et haut de gamme à VERFEIL : la construction d’une villa contemporaine de 145 m² sur un terrain de 945 m². Cette opportunité rare est pensée pour une clientèle exigeante, désireuse d’allier l’intimité d’une vie à la campagne et les avantages d’une proximité avec Toulouse.Une architecture intelligente pour un confort optimalCette villa à étage partiel a été conçue pour maximiser l’espace, la fonctionnalité et la lumière :Vaste pièce de vie avec cuisine ouverte : Un espace central, convivial et aéré, complété par un cellier pratique.Cinq chambres spacieuses : Idéale pour les familles, cette maison offre des espaces de repos distincts pour chacun.Deux salles de bains et deux WC séparés : Un agencement réfléchi pour une circulation fluide et un confort quotidien.Nombreux rangements intégrés : L’ingéniosité de la conception assure une organisation parfaite et un intérieur épuré.Les espaces extérieurs sont également pensés pour votre bien-être, avec une terrasse de 15 m² et un porche d’entrée qui confèrent à la maison une élégance certaine.Un investissement de prestige dans un cadre recherchéCe projet « terrain + maison » est proposé à partir de 397 000 € (hors frais de notaire et annexes).Le terrain de 800 m², entièrement viabilisé, est une véritable rareté dans ce secteur. Verfeil, avec son atmosphère paisible et son accès aisé aux commodités essentielles (écoles, commerces, services de santé), offre le parfait équilibre entre une vie sereine et une proximité immédiate de l’effervescence toulousaine.Ne manquez pas cette opportunité de concevoir la maison de vos rêves dans un environnement privilégié. Pour en savoir plus, contactez dès aujourd’hui l’agence Maisons France Confort de Saint-Orens au (Numéro supprimé).Annonce proposée par un Agent Commercial Partenaire.
Verfeil
TERRAIN ET MAISONUne villa éco-responsable sur un terrain d’exception à VERFEILDécouvrez une opportunité rare d’allier un cadre de vie privilégié et une construction respectueuse de l’environnement. À Verfeil, à quelques minutes de Toulouse, ce projet « clé en main » vous propose une villa de 110 m² en ossature bois, conçue pour une clientèle soucieuse de son impact écologique et de son confort.Une conception durable et un confort de vie optimalCette villa se distingue par son architecture en « L » et sa construction en ossature bois, un choix moderne et éco-responsable. Les avantages de ce type de construction sont nombreux :Performance énergétique supérieure : L’ossature bois offre une isolation thermique exceptionnelle, réduisant considérablement vos besoins en chauffage et votre empreinte carbone.Environnement intérieur sain : Le bois est un matériau naturel qui régule l’humidité de manière saine et contribue à un air ambiant de meilleure qualité.Architecture soignée : La villa bénéficie d’une conception ingénieuse avec un vaste salon-séjour traversant et une cuisine ouverte pour une luminosité optimale.La maison propose également 4 chambres, dont une suite parentale avec salle d’eau privative, et une terrasse de 23 m², pour des moments de détente en famille. Un garage de 15 m² complète cet ensemble.L’alliance de la nature et de la modernitéCe projet « terrain + maison » est proposé à partir de 370 380 € (hors frais de notaire et annexes).Le terrain de 945 m², entièrement viabilisé, offre un espace généreux pour profiter du calme et de la sérénité de la campagne. Verfeil, avec ses commodités de proximité (commerces, écoles, services de santé), représente le parfait équilibre entre une vie tranquille et l’accès à l’effervescence de Toulouse.Pour concrétiser votre projet de vie dans cette villa d’exception, contactez dès à présent l’agence Maisons France Confort de Saint-Orens au (Numéro supprimé).Annonce proposée par un Agent Commercial Partenaire.
Verfeil
TERRAIN ET MAISONVERFEILTerrain de 945 m² + Maison de 84 m² + Garage de 14 m²A partir de 289 035 € Hors frais de notaire et hors frais annexes.Faire le choix d’une maison fonctionnelle et optimisée. Une grande pièce de vie de 38 m², un cellier, 2 chambres, une salle de bains et une suite parentale avec salle d’eau privative et dressing, le tout de plain-pied, avec un garage intégré et dans un style mêlant parfaitement la simplicité et la modernité.Sur cette magnifique parcelle située dans la commune de Verfeil. Ce terrain au calme et entièrement viabilisé est parfait pour accueillir votre projet de construction. N’attendez plus !Modification des plans et du niveau de prestations possibles suivant vos envies et votre budget.Maisons France Confort vous offre dans votre contrat de construction de maison individuelle : Étude de financement confidentielle et gratuite, garanties de livraison au prix et dans les délais convenus, garantie de parfait achèvement, garantie de bon fonctionnement, garantie décennale et assurance dommages ouvrage, garantie de remboursement de l’acompte perçu, garantie des normes RE2020, étude de sol.Pour toutes informations, contactez l’agence MAISONS FRANCE CONFORT de Saint Orens au (Numéro supprimé).Annonce proposée par un Agent Commercial Partenaire.
L’actualité immobilière à Saussens
27/11/2023
02/11/2023
30/10/2023
20/10/2023
16/10/2023
16/10/2023