Images
Description
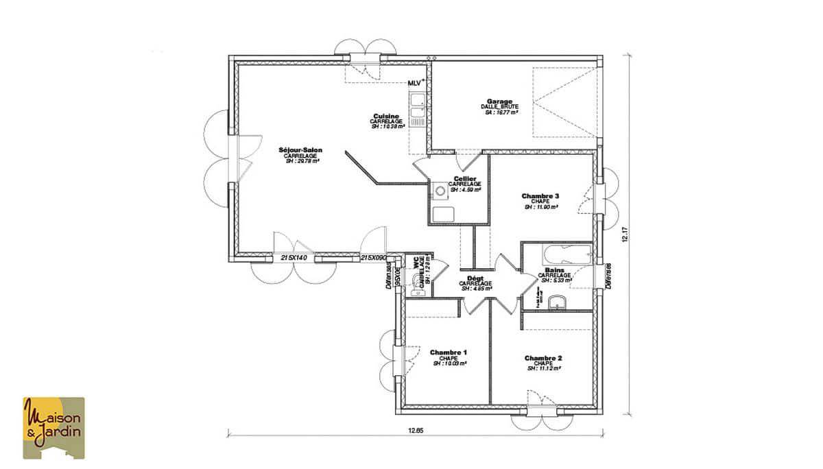
Nous vous proposons cette maison neuve, baptisée Eolia, un modèle d'habitation qui conjugue élégance et fonctionnalité sur une surface de 89 m². Conçue en forme de L, cette maison se distingue par son architecture moderne et son intégration harmonieuse dans l'environnement. Avec ses 3 chambres et ses 4 pièces au total, Eolia offre un cadre de vie idéal pour une famille à la recherche de confort et de bien-être.
L'Eolia se présente avec sa toiture 4 pans et intègre un garage, combinant esthétique et praticité. Son design en L n'est pas seulement un choix esthétique mais aussi fonctionnel, permettant de délimiter naturellement les espaces de vie et offrant la possibilité d'aménager une très grande terrasse. Cette dernière, véritable extension de l'espace de vie intérieur, promet des moments conviviaux en plein air, dans un cadre privilégié.
Cette maison est conçue pour répondre aux attentes les plus exigeantes en termes de performance énergétique. Basse consommation et conforme à la norme RE2020, l'Eolia est une réponse concrète aux enjeux de développement durable et de réduction des dépenses énergétiques. Elle représente ainsi un investissement pérenne, garantissant confort et économies sur le long terme.
L'intérieur de l'Eolia est pensé pour offrir un cadre de vie agréable et fonctionnel. Les espaces sont optimisés pour faciliter la circulation et maximiser la lumière naturelle, créant une atmosphère chaleureuse et accueillante. Cette maison est le coup de cœur assuré pour ceux qui cherchent à allier modernité, confort et respect de l'environnement.
Choisir l'Eolia, c'est opter pour une maison qui s'adapte à votre style de vie tout en anticipant les besoins de demain. Ne manquez pas l'opportunité de construire la maison de vos rêves, une demeure où il fait bon vivre, ouverte sur l'extérieur et respectueuse de l'environnement.
Logement susceptibles de vous intéresser
Nous vous proposons de découvrir aussi cette sélection de logements situés à moins de 10km de Lavoûte-sur-Loire et qui seraient susceptibles de vous intéresser.
Lavoûte-sur-Loire
TERRAIN ET MAISONNous vous proposons cette maison neuve, baptisée Eolia, un modèle d’habitation qui conjugue élégance et fonctionnalité sur une surface de 89 m². Conçue en forme de L, cette maison se distingue par son architecture moderne et son intégration harmonieuse dans l’environnement. Avec ses 3 chambres et ses 4 pièces au total, Eolia offre un cadre de vie idéal pour une famille à la recherche de confort et de bien-être.L’Eolia se présente avec sa toiture 4 pans et intègre un garage, combinant esthétique et praticité. Son design en L n’est pas seulement un choix esthétique mais aussi fonctionnel, permettant de délimiter naturellement les espaces de vie et offrant la possibilité d’aménager une très grande terrasse. Cette dernière, véritable extension de l’espace de vie intérieur, promet des moments conviviaux en plein air, dans un cadre privilégié.Cette maison est conçue pour répondre aux attentes les plus exigeantes en termes de performance énergétique. Basse consommation et conforme à la norme RE2020, l’Eolia est une réponse concrète aux enjeux de développement durable et de réduction des dépenses énergétiques. Elle représente ainsi un investissement pérenne, garantissant confort et économies sur le long terme.L’intérieur de l’Eolia est pensé pour offrir un cadre de vie agréable et fonctionnel. Les espaces sont optimisés pour faciliter la circulation et maximiser la lumière naturelle, créant une atmosphère chaleureuse et accueillante. Cette maison est le coup de cœur assuré pour ceux qui cherchent à allier modernité, confort et respect de l’environnement.Choisir l’Eolia, c’est opter pour une maison qui s’adapte à votre style de vie tout en anticipant les besoins de demain. Ne manquez pas l’opportunité de construire la maison de vos rêves, une demeure où il fait bon vivre, ouverte sur l’extérieur et respectueuse de l’environnement.
Lavoûte-sur-Loire
TERRAINNous vous proposons ce magnifique terrain constructible plat de 1348 m², situé à Lavoûte-sur-Loire, au cœur de la Haute-Loire. Ce terrain bénéficie d’une excellente exposition est/ouest et vous permettra de profiter pleinement de la lumière naturelle tout au long de la journée. Avec une viabilité en bordure et un certificat d’urbanisme positif, ce terrain est la toile de fond parfaite pour concrétiser votre projet immobilier dans un cadre paisible et serein. Idéalement situé dans un hameau apaisant, ce terrain vous permet de profiter d’une belle vue dégagée, tout en étant à proximité des commodités nécessaires pour votre quotidien. La ville de Lavoûte-sur-Loire offre un cadre de vie agréable, riche de paysages naturels et d’activités en plein air, ainsi qu’un accès facile au complexe aquatique local. En plus de sa proximité avec la nature, la région Auvergne-Rhône-Alpes est connue pour son patrimoine culturel et ses charmantes petites bourgades, ce qui en fait un endroit parfait pour établir votre résidence principale ou secondaire. Ce terrain présente une opportunité rare à saisir pour ceux qui souhaitent construire leur havre de paix dans un environnement exceptionnel. N’attendez pas pour envisager cette chance unique d’acquérir un bien dans un lieu privilégié. À noter qu’en tant que constructeur, nous ne sommes pas mandatés pour réaliser la vente de ce terrain.
Borne
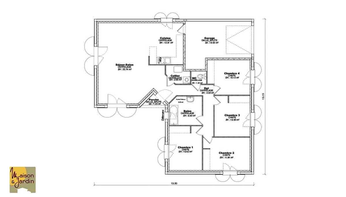
TERRAIN ET MAISONNous vous proposons cette maison neuve, baptisée Eolia, un modèle d’habitation qui allie élégance et fonctionnalité dans un design en L distinctif. Avec une surface habitable de 102 m², cette maison est conçue pour offrir confort et bien-être à ses résidents. Elle dispose de 4 chambres spacieuses et est composée de 4 pièces bien agencées, promettant ainsi un cadre de vie idéal pour une famille.L’Eolia se distingue par son architecture moderne avec un choix entre un toit à 2 ou 4 pans et intègre un garage, fusionnant esthétique et praticité. La conception en L de la maison n’est pas seulement un choix esthétique mais aussi fonctionnel, offrant une séparation naturelle entre les espaces de vie et les zones de nuit, tout en maximisant l’exposition à la lumière naturelle.L’aspect le plus séduisant de l’Eolia réside dans sa grande ouverture vers l’extérieur. La possibilité d’aménager une vaste terrasse est une invitation à profiter des jours ensoleillés et des soirées douces, faisant de cette maison le lieu parfait pour des moments conviviaux en famille ou entre amis.Construite dans le respect des normes de la RE2020, cette maison basse consommation est un choix responsable qui témoigne de votre engagement envers l’environnement. Elle est équipée des dernières innovations en matière d’isolation et de systèmes énergétiques, garantissant ainsi une réduction significative de vos factures énergétiques tout en offrant un confort optimal en toutes saisons.L’Eolia est une maison qui répond aux attentes des plus exigeants, alliant design moderne, fonctionnalité et performance énergétique. C’est une opportunité unique de faire construire votre future maison, un espace pensé pour le bien-être de toute la famille. Ne laissez pas passer cette chance de vivre dans une maison qui allie beauté, confort et respect de l’environnement.
Borne
TERRAINDécouvrez ce terrain de 1300m², idéalement situé dans un charmant petit lotissement de 5 lots à Borne (43350) dans le département de la Haute-Loire, à 10 minutes d’une zone commerciale et 15 minutes du Puy en Velay. Ce terrain non viabilisé représente une opportunité unique pour la réalisation de votre projet de construction de maison. Avec un ensoleillement optimal et une superbe vue, ce terrain se distingue par ses caractéristiques exceptionnelles, notamment son cadre champêtre et son emplacement privilégié. Offrez-vous la possibilité de bâtir la maison de vos rêves dans un environnement qui respire la tranquillité et la nature. Borne, en Auvergne-Rhône-Alpes, est une ville dynamique qui combine le confort de la vie citadine et la sérénité de la campagne. Ici, vous trouverez toutes les commodités nécessaires à la vie quotidienne, ainsi qu’une crèche et l’école à proximité pour vos enfants. Profitez d’une qualité de vie exceptionnelle dans un cadre naturel enchanteur. Ne manquez pas cette opportunité rare! Contactez-nous dès aujourd’hui pour découvrir le potentiel de ce terrain ! À noter qu’en tant que constructeur, nous ne sommes pas mandatés pour réaliser la vente de ce terrain.
Borne
TERRAIN ET MAISONNous vous proposons cette maison neuve, baptisée Focus 91, une demeure qui réinvente l’art de vivre en famille. Avec ses 91 m² judicieusement répartis, cette maison est l’incarnation parfaite du célèbre slogan L’espace n’est plus un luxe. Elle offre non seulement quatre chambres spacieuses mais aussi une grande pièce de vie où partager des moments inoubliables devient la norme. La Focus 91 se distingue par son design extérieur jeune et intemporel, qui séduira à coup sûr ceux qui cherchent à allier esthétique et fonctionnalité. Son grand garage intégré ajoute une touche de commodité non négligeable, faisant de cette maison le choix idéal pour les familles en quête d’un foyer convivial et pratique.Mais ce qui rend la Focus 91 véritablement exceptionnelle, c’est son rapport qualité/prix inimaginable pour une maison basse consommation. Conforme à la norme RE2020, cette maison est conçue pour minimiser votre empreinte écologique tout en maximisant votre confort. Elle est entièrement personnalisable, vous permettant ainsi de créer un espace qui reflète parfaitement votre style de vie et vos préférences.Les options les plus plébiscitées par nos clients, telles que des solutions d’isolation avancées et des systèmes de chauffage performants, sont disponibles pour faire de la Focus 91 une maison encore plus économique et agréable à vivre. En choisissant cette maison, vous optez pour un habitat durable qui répond aux exigences les plus strictes en matière de consommation énergétique.La Focus 91 est plus qu’une maison ; c’est un investissement dans votre avenir et celui de votre famille. Ne manquez pas l’opportunité de construire le foyer de vos rêves, un lieu où chaque jour est une invitation à profiter de la vie dans ce qu’elle a de meilleur. Contactez-nous dès maintenant pour commencer à concrétiser votre projet de vie dans une maison qui, bien plus qu’un lieu de résidence, sera le théâtre de vos plus beaux souvenirs.
Borne
TERRAINDécouvrez ce terrain de 1100 m², idéalement situé dans un charmant petit lotissement de 5 lot à Borne (43350) dans le département de la Haute-Loire, à 10 minutes d’une zone commerciale et 15 minutes du Puy en Velay. Ce terrain non viabilisé représente une opportunité unique pour la réalisation de votre projet de construction de maison. Avec un ensoleillement optimal et une superbe vue, ce terrain se distingue par ses caractéristiques exceptionnelles, notamment son cadre champêtre et son emplacement privilégié. Offrez-vous la possibilité de bâtir la maison de vos rêves dans un environnement qui respire la tranquillité et la nature. Borne, en Auvergne-Rhône-Alpes, est une ville dynamique qui combine le confort de la vie citadine et la sérénité de la campagne. Ici, vous trouverez toutes les commodités nécessaires à la vie quotidienne, ainsi qu’une crèche et l’école à proximité pour vos enfants. Profitez d’une qualité de vie exceptionnelle dans un cadre naturel enchanteur. Ne manquez pas cette opportunité rare! Contactez-nous dès aujourd’hui pour découvrir le potentiel de ce terrain ! À noter qu’en tant que constructeur, nous ne sommes pas mandatés pour réaliser la vente de ce terrain.
Rosières
TERRAIN ET MAISONNous vous proposons cette maison neuve, baptisée Eolia, un modèle d’habitation qui allie élégance et fonctionnalité dans un design en L distinctif. Avec une surface habitable de 102 m², cette maison est conçue pour offrir confort et bien-être à ses résidents. Elle dispose de 4 chambres spacieuses et est composée de 4 pièces bien agencées, promettant ainsi un cadre de vie idéal pour une famille.L’Eolia se distingue par son architecture moderne avec un choix entre un toit à 2 ou 4 pans et intègre un garage, fusionnant esthétique et praticité. La conception en L de la maison n’est pas seulement un choix esthétique mais aussi fonctionnel, offrant une séparation naturelle entre les espaces de vie et les zones de nuit, tout en maximisant l’exposition à la lumière naturelle.L’aspect le plus séduisant de l’Eolia réside dans sa grande ouverture vers l’extérieur. La possibilité d’aménager une vaste terrasse est une invitation à profiter des jours ensoleillés et des soirées douces, faisant de cette maison le lieu parfait pour des moments conviviaux en famille ou entre amis.Construite dans le respect des normes de la RE2020, cette maison basse consommation est un choix responsable qui témoigne de votre engagement envers l’environnement. Elle est équipée des dernières innovations en matière d’isolation et de systèmes énergétiques, garantissant ainsi une réduction significative de vos factures énergétiques tout en offrant un confort optimal en toutes saisons.L’Eolia est une maison qui répond aux attentes des plus exigeants, alliant design moderne, fonctionnalité et performance énergétique. C’est une opportunité unique de faire construire votre future maison, un espace pensé pour le bien-être de toute la famille. Ne laissez pas passer cette chance de vivre dans une maison qui allie beauté, confort et respect de l’environnement.
Rosières
TERRAINNous vous présentons un terrain à vendre de 1430 m², situé a quelques minutes de la charmante commune de Rosières, dans le département de la Haute-Loire. Ce terrain plat, non viabilisé, assainissement individuel a prévoir offre une belle opportunité de construction pour votre future maison, permettant ainsi de réaliser votre projet de vie dans un cadre paisible. La commune de Rosières se distingue par son ambiance conviviale et son charme rural, idéale pour les familles ou les couples en quête de tranquillité. Idéalement situé en Haute-Loire, Rosières bénéficie d’un cadre naturel exceptionnel, propice aux activités de plein air. Profitez des paysages environnants et des sentiers de randonnée qui raviront les amateurs de nature. La commune est proche des commodités essentielles, telles que des commerces de proximité, des écoles et des infrastructures sportives. De plus, la proximité avec des villes dynamiques et accessibles vous permet de bénéficier de toutes les attractions locales tout en vivant dans un environnement serein et agréable. Ce terrain présente un potentiel indéniable pour ceux qui souhaitent construire la maison de leurs rêves. Ne manquez pas cette opportunité unique d’acquérir un bien qui allie tranquilité et accessibilité. Contactez-nous dès maintenant pour plus d’informations !
Blavozy
TERRAIN ET MAISONNous vous proposons cette maison neuve, baptisée Focus 80, un modèle phare de notre gamme qui se distingue par son excellent rapport qualité/prix. Conçue pour répondre aux attentes des familles modernes, cette maison de 80 m² allie fonctionnalité et esthétique avec un design contemporain et jeune. Elle comprend 3 chambres spacieuses, un vaste séjour lumineux pour des moments de partage en famille ou entre amis, ainsi qu’un garage intégré, offrant ainsi un total de 4 pièces bien agencées pour un confort optimal.La Focus 80 est avant tout une maison basse consommation, conçue dans le strict respect de la norme RE2020. Cette réglementation environnementale de dernière génération garantit une efficacité énergétique maximale, réduisant considérablement vos factures d’énergie tout en contribuant à la protection de l’environnement. Opter pour la Focus 80, c’est faire le choix d’un habitat durable, qui répond aux exigences les plus élevées en matière de performance énergétique.Parmi les options les plus plébiscitées par nos clients, nous avons intégré des solutions innovantes pour renforcer le confort de votre maison tout en optimisant sa consommation énergétique. La Focus 80 se démarque par son prix d’appel imbattable, ce qui en fait un choix privilégié pour les acquéreurs à la recherche d’un excellent rapport qualité/prix sans compromis sur la qualité et la durabilité.En choisissant la Focus 80, vous optez pour une maison qui va à l’essentiel sans négliger l’élégance et le bien-être. C’est le coup de cœur assuré pour ceux qui rêvent d’une maison neuve, moderne, et respectueuse de l’environnement. Ne laissez pas passer cette opportunité de construire la maison de vos rêves, conforme aux dernières normes environnementales. La Focus 80 vous attend pour commencer un nouveau chapitre de votre vie dans un cadre confortable et durable.
L’actualité immobilière à Lavoûte-sur-Loire
27/11/2023
02/11/2023
30/10/2023
20/10/2023
16/10/2023
16/10/2023