Images
Description
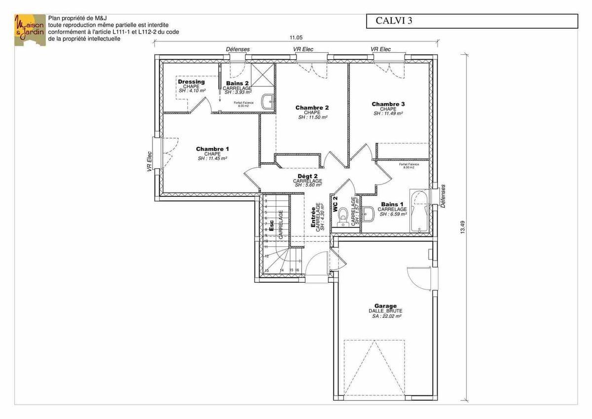
Nous vous proposons cette maison neuve, modèle Calvi, conçue pour s'adapter harmonieusement à un terrain pentu, offrant ainsi une expérience de vie unique et un confort inégalé. Avec une surface généreuse de 118 m², cette demeure est l'incarnation parfaite de l'élégance contemporaine et de la fonctionnalité.
Le modèle "Calvi se distingue par son architecture moderne, disponible en configuration ""L"", optimisant l'espace et la lumière naturelle. Chaque détail a été pensé pour répondre aux attentes des plus exigeants, alliant esthétique et praticité.
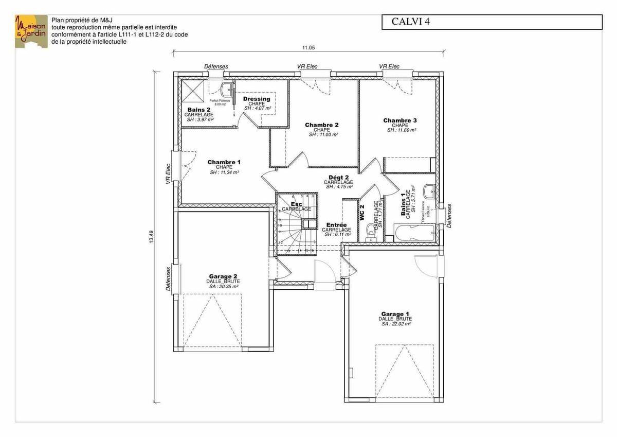
Cette maison se compose de 4 pièces bien agencées, incluant 3 chambres confortables pour accueillir votre famille. La suite parentale est un véritable havre de paix, offrant intimité et confort avec sa salle de bain privative et son dressing sur mesure, promettant des moments de détente absolue.
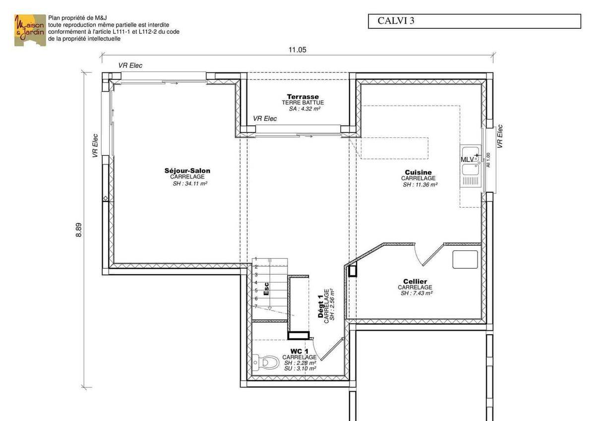
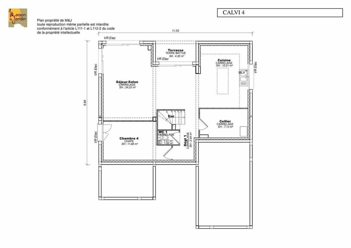
La partie jour se révèle être un espace ouvert et lumineux, comprenant un grand salon/séjour jouxtant une cuisine moderne ouverte, idéale pour partager des moments conviviaux. Un cellier attenant à la cuisine et une cave près du garage offrent des solutions de rangement supplémentaires et pratiques.
Le garage, un atout majeur de ce modèle, assure un espace sécurisé pour vos véhicules, tandis que le porche couvert invite à la contemplation des paysages environnants, ajoutant une touche de charme à l'ensemble.
Construite dans le respect des normes RE2020, cette maison basse consommation est un choix responsable, garantissant un confort thermique toute l'année et des économies d'énergie significatives. C'est l'assurance d'un habitat sain, durable et respectueux de l'environnement.
Le modèle "Calvi est la promesse d'un foyer où bien-être, modernité et respect de l'environnement se rencontrent pour créer un cadre de vie idéal. Ne manquez pas l'opportunité de faire de cette maison le cocon de votre famille.
Logement susceptibles de vous intéresser
Nous vous proposons de découvrir aussi cette sélection de logements situés à moins de 10km de Saint-Germain-Laprade et qui seraient susceptibles de vous intéresser.
Saint-Germain-Laprade
TERRAINÀ vendre, magnifique terrain viabilisé de 408 m² situé dans le charmant lotissement de Saint-Germain-Laprade, dans la Haute-Loire. Ce terrain plat offre un cadre idéal pour votre projet de construction de maison. Le quartier privilégié promet une qualité de vie exceptionnelle grâce à son atmosphère paisible et ses superbes vues. Ne laissez pas passer cette opportunité de créer votre havre de paix dans un environnement dynamique. Saint-Germain-Laprade est une commune attrayante qui allie tranquillité et accès aux commodités. Située à proximité de commerces, d’écoles et de services variés, elle facilite le quotidien tout en offrant un cadre de vie agréable. Avec ses paysages pittoresques et ses nombreuses possibilités d’activités de plein air, cette ville est le choix parfait pour les familles et les amateurs de nature. Ne manquez pas l’opportunité de vivre dans ce cadre idyllique! En somme, ce terrain représente une opportunité unique pour tous ceux qui souhaitent construire la maison de leurs rêves. N’attendez plus pour envisager cette acquisition prometteuse au cœur d’un environnement enchanteur!
Saint-Pierre-Eynac
TERRAIN ET MAISONNous vous proposons cette maison neuve, baptisée Focus 91, une demeure qui réinvente l’art de vivre en famille. Avec ses 91 m² judicieusement répartis, cette maison est l’incarnation parfaite du célèbre slogan L’espace n’est plus un luxe. Elle offre non seulement quatre chambres spacieuses mais aussi une grande pièce de vie où partager des moments inoubliables devient la norme. La Focus 91 se distingue par son design extérieur jeune et intemporel, qui séduira à coup sûr ceux qui cherchent à allier esthétique et fonctionnalité. Son grand garage intégré ajoute une touche de commodité non négligeable, faisant de cette maison le choix idéal pour les familles en quête d’un foyer convivial et pratique.Mais ce qui rend la Focus 91 véritablement exceptionnelle, c’est son rapport qualité/prix inimaginable pour une maison basse consommation. Conforme à la norme RE2020, cette maison est conçue pour minimiser votre empreinte écologique tout en maximisant votre confort. Elle est entièrement personnalisable, vous permettant ainsi de créer un espace qui reflète parfaitement votre style de vie et vos préférences.Les options les plus plébiscitées par nos clients, telles que des solutions d’isolation avancées et des systèmes de chauffage performants, sont disponibles pour faire de la Focus 91 une maison encore plus économique et agréable à vivre. En choisissant cette maison, vous optez pour un habitat durable qui répond aux exigences les plus strictes en matière de consommation énergétique.La Focus 91 est plus qu’une maison ; c’est un investissement dans votre avenir et celui de votre famille. Ne manquez pas l’opportunité de construire le foyer de vos rêves, un lieu où chaque jour est une invitation à profiter de la vie dans ce qu’elle a de meilleur. Contactez-nous dès maintenant pour commencer à concrétiser votre projet de vie dans une maison qui, bien plus qu’un lieu de résidence, sera le théâtre de vos plus beaux souvenirs.
Saint-Pierre-Eynac
TERRAINTerrain à bâtir de 781 m² situé au coeur d’un lotissement calme et recherché à Saint-Pierre-Eynac, en Haute-Loire. Ce terrain plat est prêt à accueillir votre projet de construction, offrant une excellente orientation pour maximiser la lumière naturelle. Sa viabilisation complète (Eau, Électricité, Télécom et Assainissement collectif en bordure) en fait un choix pratique et fonctionnel pour réaliser la maison de vos rêves, qu’il s’agisse d’un plain-pied ou d’une maison à étage selon vos préférences. Saint-Pierre-Eynac, charmante commune de la région Auvergne-Rhône-Alpes, bénéficie d’un emplacement privilégié à proximité du Puy-en-Velay, connue pour son riche patrimoine culturel et naturel. Profitez des commodités locales telles que des écoles, des commerces et des services de santé tout en vivant dans un environnement paisible. La région regorge d’activités de plein air, avec des sentiers de randonnée et des paysages à couper le souffle. C’est un cadre de vie idéal pour les familles et les amoureux de la nature, offrant à la fois tranquillité et accessibilité aux attractions de la région. Ne manquez pas cette opportunité exceptionnelle d’investir dans un terrain qui promet de réaliser votre projet immobilier dans une commune dynamique et accueillante. Contactez-nous dès aujourd’hui pour découvrir toutes les possibilités qu’offre ce terrain unique. À noter qu’en tant que constructeur, nous ne sommes pas mandatés pour réaliser la vente de ce terrain.
Blavozy
TERRAIN ET MAISONNous vous proposons cette maison neuve, baptisée Focus 80, un modèle phare de notre gamme qui se distingue par son excellent rapport qualité/prix. Conçue pour répondre aux attentes des familles modernes, cette maison de 80 m² allie fonctionnalité et esthétique avec un design contemporain et jeune. Elle comprend 3 chambres spacieuses, un vaste séjour lumineux pour des moments de partage en famille ou entre amis, ainsi qu’un garage intégré, offrant ainsi un total de 4 pièces bien agencées pour un confort optimal.La Focus 80 est avant tout une maison basse consommation, conçue dans le strict respect de la norme RE2020. Cette réglementation environnementale de dernière génération garantit une efficacité énergétique maximale, réduisant considérablement vos factures d’énergie tout en contribuant à la protection de l’environnement. Opter pour la Focus 80, c’est faire le choix d’un habitat durable, qui répond aux exigences les plus élevées en matière de performance énergétique.Parmi les options les plus plébiscitées par nos clients, nous avons intégré des solutions innovantes pour renforcer le confort de votre maison tout en optimisant sa consommation énergétique. La Focus 80 se démarque par son prix d’appel imbattable, ce qui en fait un choix privilégié pour les acquéreurs à la recherche d’un excellent rapport qualité/prix sans compromis sur la qualité et la durabilité.En choisissant la Focus 80, vous optez pour une maison qui va à l’essentiel sans négliger l’élégance et le bien-être. C’est le coup de cœur assuré pour ceux qui rêvent d’une maison neuve, moderne, et respectueuse de l’environnement. Ne laissez pas passer cette opportunité de construire la maison de vos rêves, conforme aux dernières normes environnementales. La Focus 80 vous attend pour commencer un nouveau chapitre de votre vie dans un cadre confortable et durable.
Le Puy-en-Velay
TERRAINTerrain constructible de 5178 m² pourvu d’un certificat d’urbanisme validé, favorable à la construction d’une jusqu’à 5 maisons à usage d’habitation, offrant de la viabilité en bordure.Idéal pour un projet de promotion immobilière de type lotissement.Situé dans un quartier paisible et résidentiel, il bénéficie aussi bien des commodités (écoles, commerces locaux, Espace Chirel, transport en commun) que d’un environnement calme avec une vue dégagée. Vous avez le projet de construire la maison de vos rêves dans un cadre stratégique, paisible et verdoyant ? Contactez-nous dès maintenant.Prix de vente : 290000 euros Honoraires charge vendeurBien non soumis à DPEPour visiter et vous accompagner dans votre projet, contactez Aristide GNAMBODOE, au (Numéro supprimé) ou, par courriel à (Email supprimé).Selon l’article L.561.5 du Code Monétaire et Financier, pour l’organisation de la visite, la présentation d’une pièce d’identité vous sera demandée.Cette présente annonce a été rédigée sous la responsabilité éditoriale de Aristide GNAMBODOE agissant sous le statut d’agent commercial immatriculé au RSAC 434104592 LE PUY EN VELAY auprès de SAS PROPRIETES PRIVEES, au capital de 44 920 euros, ZAC LE CHÊNE FERRÉ – 44 ALLÉE DES CINQ CONTINENTS 44120 VERTOU; SIRET 487 624 777 00040, RCS Nantes. Carte Professionnelle Transactions sur immeubles et fonds de commerce (T) et Gestion immobilière (G) n°CPI 4401 2016 000 010 388 délivrée par la CCI Nantes – Saint Nazaire. Compte séquestre n(Numéro supprimé)67 BPA SAINT-SEBASTIEN-SUR-LOIRE (44230). Garantie GALIAN-SMABTP – 89 rue de la Boétie, 75008 Paris – n°28137 J pour 2 000 000 euros pour T et 120 000 euros pour G. Assurance responsabilité civile professionnelle par GALIAN-SMABTP n° de police 28137.JMandat réf : 418568 – Le professionnel garantit et sécurise votre projet immobilier. Aristide GNAMBODOE (EI) Agent Commercial – Numéro RSAC : 434104592 LE PUY EN VELAY – .
Blavozy
TERRAIN ET MAISONNous vous proposons cette maison neuve, baptisée Cristalia, un modèle de résidence qui allie élégance, confort et respect de l’environnement. Conçue pour répondre aux attentes des plus exigeants, Cristalia offre une surface habitable de 97 m², parfaitement répartie entre 4 chambres lumineuses et 5 pièces à vivre, promettant ainsi un cadre de vie idéal pour toute la famille.Cette maison se distingue par son architecture moderne, avec une option de toiture à 2 ou 4 pans, selon vos préférences, et un garage intégré pour plus de commodité. Son design extérieur est complété par une toiture de 2 à 3 versants, ajoutant un charme indéniable à l’ensemble. L’intérieur n’est pas en reste, offrant un salon séjour spacieux et ouvert sur l’extérieur, invitant la lumière naturelle à chaque moment de la journée et renforçant le lien avec la nature environnante.L’aménagement intérieur a été pensé pour être à la fois moderne et très fonctionnel, répondant ainsi aux besoins de la vie contemporaine. La possibilité de personnaliser votre espace selon vos goûts et vos besoins est un atout majeur, vous permettant de créer un foyer qui vous ressemble vraiment.Cristalia est également une maison basse consommation, conçue dans le strict respect de la norme RE2020. Cette caractéristique garantit une efficacité énergétique optimale, réduisant ainsi vos factures d’énergie tout en contribuant à la protection de l’environnement. C’est une maison qui s’inscrit dans l’avenir, offrant confort et durabilité.Choisir Cristalia, c’est opter pour une maison qui combine esthétique, fonctionnalité et respect de l’environnement. Une maison où chaque détail a été pensé pour votre bien-être et celui de votre famille. Ne manquez pas l’opportunité de construire la maison de vos rêves, une maison qui vous accompagnera dans tous les moments importants de votre vie.
Saint-Julien-Chapteuil
TERRAIN ET MAISONNous vous proposons cette maison neuve, baptisée Eolia, un modèle d’habitation qui conjugue élégance et fonctionnalité sur une surface de 89 m². Conçue en forme de L, cette maison se distingue par son architecture moderne et son intégration harmonieuse dans l’environnement. Avec ses 3 chambres et ses 4 pièces au total, Eolia offre un cadre de vie idéal pour une famille à la recherche de confort et de bien-être.L’Eolia se présente avec sa toiture 4 pans et intègre un garage, combinant esthétique et praticité. Son design en L n’est pas seulement un choix esthétique mais aussi fonctionnel, permettant de délimiter naturellement les espaces de vie et offrant la possibilité d’aménager une très grande terrasse. Cette dernière, véritable extension de l’espace de vie intérieur, promet des moments conviviaux en plein air, dans un cadre privilégié.Cette maison est conçue pour répondre aux attentes les plus exigeantes en termes de performance énergétique. Basse consommation et conforme à la norme RE2020, l’Eolia est une réponse concrète aux enjeux de développement durable et de réduction des dépenses énergétiques. Elle représente ainsi un investissement pérenne, garantissant confort et économies sur le long terme.L’intérieur de l’Eolia est pensé pour offrir un cadre de vie agréable et fonctionnel. Les espaces sont optimisés pour faciliter la circulation et maximiser la lumière naturelle, créant une atmosphère chaleureuse et accueillante. Cette maison est le coup de cœur assuré pour ceux qui cherchent à allier modernité, confort et respect de l’environnement.Choisir l’Eolia, c’est opter pour une maison qui s’adapte à votre style de vie tout en anticipant les besoins de demain. Ne manquez pas l’opportunité de construire la maison de vos rêves, une demeure où il fait bon vivre, ouverte sur l’extérieur et respectueuse de l’environnement.
Saint-Julien-Chapteuil
TERRAINDécouvrez ce magnifique terrain constructible de 750 m² situé à La Chapuze, à seulement quelques minutes de Saint-Julien-Chapteuil, dans un environnement calme et verdoyant. Ce terrain est idéal pour réaliser votre projet de construction, que ce soit pour une résidence principale ou secondaire. Caractéristiques principales : Superficie : 750 m² Type : Terrain constructible Localisation : La Chapuze, à proximité de Saint-Julien-Chapteuil Environnement : Calme et nature, avec vue dégagée sur la campagne environnante Points forts : Viabilité à proximité : L’eau est déjà raccordé, l’électricité est à proximité. L assainissement par une micro station sera idéale sur ce terrain. Cadre naturel : Environnement paisible, idéal pour les amoureux de la nature Proche des commodités : À quelques minutes en voiture des commerces, écoles et services de Saint Julien-Chapteuil Possibilité de projet sur mesure : Terrain plat et bien orienté Ce terrain offre un cadre de vie exceptionnel pour ceux qui recherchent la tranquillité sans s’éloigner des services et infrastructures. N’attendez plus pour concrétiser votre projet.
Blavozy
TERRAIN ET MAISONNous vous proposons cette maison neuve, baptisée Eolia, un modèle d’habitation qui conjugue élégance et fonctionnalité sur une surface de 89 m². Conçue en forme de L, cette maison se distingue par son architecture moderne et son intégration harmonieuse dans l’environnement. Avec ses 3 chambres et ses 4 pièces au total, Eolia offre un cadre de vie idéal pour une famille à la recherche de confort et de bien-être.L’Eolia se présente avec sa toiture 4 pans et intègre un garage, combinant esthétique et praticité. Son design en L n’est pas seulement un choix esthétique mais aussi fonctionnel, permettant de délimiter naturellement les espaces de vie et offrant la possibilité d’aménager une très grande terrasse. Cette dernière, véritable extension de l’espace de vie intérieur, promet des moments conviviaux en plein air, dans un cadre privilégié.Cette maison est conçue pour répondre aux attentes les plus exigeantes en termes de performance énergétique. Basse consommation et conforme à la norme RE2020, l’Eolia est une réponse concrète aux enjeux de développement durable et de réduction des dépenses énergétiques. Elle représente ainsi un investissement pérenne, garantissant confort et économies sur le long terme.L’intérieur de l’Eolia est pensé pour offrir un cadre de vie agréable et fonctionnel. Les espaces sont optimisés pour faciliter la circulation et maximiser la lumière naturelle, créant une atmosphère chaleureuse et accueillante. Cette maison est le coup de cœur assuré pour ceux qui cherchent à allier modernité, confort et respect de l’environnement.Choisir l’Eolia, c’est opter pour une maison qui s’adapte à votre style de vie tout en anticipant les besoins de demain. Ne manquez pas l’opportunité de construire la maison de vos rêves, une demeure où il fait bon vivre, ouverte sur l’extérieur et respectueuse de l’environnement.
L’actualité immobilière à Saint-Germain-Laprade
27/11/2023
02/11/2023
30/10/2023
20/10/2023
16/10/2023
16/10/2023