Images
Description
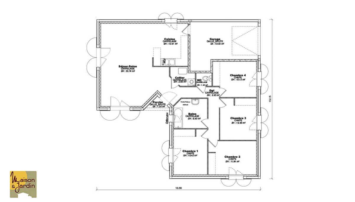
Nous vous proposons cette maison neuve, baptisée Eolia, un modèle d'habitation qui conjugue élégance et fonctionnalité sur une surface de 89 m². Conçue en forme de L, cette maison se distingue par son architecture moderne et son intégration harmonieuse dans l'environnement. Avec ses 3 chambres et ses 4 pièces au total, Eolia offre un cadre de vie idéal pour une famille à la recherche de confort et de bien-être.
L'Eolia se présente avec sa toiture 4 pans et intègre un garage, combinant esthétique et praticité. Son design en L n'est pas seulement un choix esthétique mais aussi fonctionnel, permettant de délimiter naturellement les espaces de vie et offrant la possibilité d'aménager une très grande terrasse. Cette dernière, véritable extension de l'espace de vie intérieur, promet des moments conviviaux en plein air, dans un cadre privilégié.
Cette maison est conçue pour répondre aux attentes les plus exigeantes en termes de performance énergétique. Basse consommation et conforme à la norme RE2020, l'Eolia est une réponse concrète aux enjeux de développement durable et de réduction des dépenses énergétiques. Elle représente ainsi un investissement pérenne, garantissant confort et économies sur le long terme.
L'intérieur de l'Eolia est pensé pour offrir un cadre de vie agréable et fonctionnel. Les espaces sont optimisés pour faciliter la circulation et maximiser la lumière naturelle, créant une atmosphère chaleureuse et accueillante. Cette maison est le coup de cœur assuré pour ceux qui cherchent à allier modernité, confort et respect de l'environnement.
Choisir l'Eolia, c'est opter pour une maison qui s'adapte à votre style de vie tout en anticipant les besoins de demain. Ne manquez pas l'opportunité de construire la maison de vos rêves, une demeure où il fait bon vivre, ouverte sur l'extérieur et respectueuse de l'environnement.
Logement susceptibles de vous intéresser
Nous vous proposons de découvrir aussi cette sélection de logements situés à moins de 10km de Blavozy et qui seraient susceptibles de vous intéresser.
Lavoûte-sur-Loire
TERRAIN ET MAISONNous vous proposons cette maison neuve, baptisée Eolia, un modèle d’habitation qui conjugue élégance et fonctionnalité sur une surface de 89 m². Conçue en forme de L, cette maison se distingue par son architecture moderne et son intégration harmonieuse dans l’environnement. Avec ses 3 chambres et ses 4 pièces au total, Eolia offre un cadre de vie idéal pour une famille à la recherche de confort et de bien-être.L’Eolia se présente avec sa toiture 4 pans et intègre un garage, combinant esthétique et praticité. Son design en L n’est pas seulement un choix esthétique mais aussi fonctionnel, permettant de délimiter naturellement les espaces de vie et offrant la possibilité d’aménager une très grande terrasse. Cette dernière, véritable extension de l’espace de vie intérieur, promet des moments conviviaux en plein air, dans un cadre privilégié.Cette maison est conçue pour répondre aux attentes les plus exigeantes en termes de performance énergétique. Basse consommation et conforme à la norme RE2020, l’Eolia est une réponse concrète aux enjeux de développement durable et de réduction des dépenses énergétiques. Elle représente ainsi un investissement pérenne, garantissant confort et économies sur le long terme.L’intérieur de l’Eolia est pensé pour offrir un cadre de vie agréable et fonctionnel. Les espaces sont optimisés pour faciliter la circulation et maximiser la lumière naturelle, créant une atmosphère chaleureuse et accueillante. Cette maison est le coup de cœur assuré pour ceux qui cherchent à allier modernité, confort et respect de l’environnement.Choisir l’Eolia, c’est opter pour une maison qui s’adapte à votre style de vie tout en anticipant les besoins de demain. Ne manquez pas l’opportunité de construire la maison de vos rêves, une demeure où il fait bon vivre, ouverte sur l’extérieur et respectueuse de l’environnement.
Lavoûte-sur-Loire
TERRAINNous vous proposons ce magnifique terrain constructible plat de 1348 m², situé à Lavoûte-sur-Loire, au cœur de la Haute-Loire. Ce terrain bénéficie d’une excellente exposition est/ouest et vous permettra de profiter pleinement de la lumière naturelle tout au long de la journée. Avec une viabilité en bordure et un certificat d’urbanisme positif, ce terrain est la toile de fond parfaite pour concrétiser votre projet immobilier dans un cadre paisible et serein. Idéalement situé dans un hameau apaisant, ce terrain vous permet de profiter d’une belle vue dégagée, tout en étant à proximité des commodités nécessaires pour votre quotidien. La ville de Lavoûte-sur-Loire offre un cadre de vie agréable, riche de paysages naturels et d’activités en plein air, ainsi qu’un accès facile au complexe aquatique local. En plus de sa proximité avec la nature, la région Auvergne-Rhône-Alpes est connue pour son patrimoine culturel et ses charmantes petites bourgades, ce qui en fait un endroit parfait pour établir votre résidence principale ou secondaire. Ce terrain présente une opportunité rare à saisir pour ceux qui souhaitent construire leur havre de paix dans un environnement exceptionnel. N’attendez pas pour envisager cette chance unique d’acquérir un bien dans un lieu privilégié. À noter qu’en tant que constructeur, nous ne sommes pas mandatés pour réaliser la vente de ce terrain.
Rosières
TERRAIN ET MAISONNous vous proposons cette maison neuve, baptisée Eolia, un modèle d’habitation qui allie élégance et fonctionnalité dans un design en L distinctif. Avec une surface habitable de 102 m², cette maison est conçue pour offrir confort et bien-être à ses résidents. Elle dispose de 4 chambres spacieuses et est composée de 4 pièces bien agencées, promettant ainsi un cadre de vie idéal pour une famille.L’Eolia se distingue par son architecture moderne avec un choix entre un toit à 2 ou 4 pans et intègre un garage, fusionnant esthétique et praticité. La conception en L de la maison n’est pas seulement un choix esthétique mais aussi fonctionnel, offrant une séparation naturelle entre les espaces de vie et les zones de nuit, tout en maximisant l’exposition à la lumière naturelle.L’aspect le plus séduisant de l’Eolia réside dans sa grande ouverture vers l’extérieur. La possibilité d’aménager une vaste terrasse est une invitation à profiter des jours ensoleillés et des soirées douces, faisant de cette maison le lieu parfait pour des moments conviviaux en famille ou entre amis.Construite dans le respect des normes de la RE2020, cette maison basse consommation est un choix responsable qui témoigne de votre engagement envers l’environnement. Elle est équipée des dernières innovations en matière d’isolation et de systèmes énergétiques, garantissant ainsi une réduction significative de vos factures énergétiques tout en offrant un confort optimal en toutes saisons.L’Eolia est une maison qui répond aux attentes des plus exigeants, alliant design moderne, fonctionnalité et performance énergétique. C’est une opportunité unique de faire construire votre future maison, un espace pensé pour le bien-être de toute la famille. Ne laissez pas passer cette chance de vivre dans une maison qui allie beauté, confort et respect de l’environnement.
Rosières
TERRAINNous vous présentons un terrain à vendre de 1430 m², situé a quelques minutes de la charmante commune de Rosières, dans le département de la Haute-Loire. Ce terrain plat, non viabilisé, assainissement individuel a prévoir offre une belle opportunité de construction pour votre future maison, permettant ainsi de réaliser votre projet de vie dans un cadre paisible. La commune de Rosières se distingue par son ambiance conviviale et son charme rural, idéale pour les familles ou les couples en quête de tranquillité. Idéalement situé en Haute-Loire, Rosières bénéficie d’un cadre naturel exceptionnel, propice aux activités de plein air. Profitez des paysages environnants et des sentiers de randonnée qui raviront les amateurs de nature. La commune est proche des commodités essentielles, telles que des commerces de proximité, des écoles et des infrastructures sportives. De plus, la proximité avec des villes dynamiques et accessibles vous permet de bénéficier de toutes les attractions locales tout en vivant dans un environnement serein et agréable. Ce terrain présente un potentiel indéniable pour ceux qui souhaitent construire la maison de leurs rêves. Ne manquez pas cette opportunité unique d’acquérir un bien qui allie tranquilité et accessibilité. Contactez-nous dès maintenant pour plus d’informations !
Le Pertuis
TERRAINA voir sans tarderAu calme dans un petit hameau , la nature aux portes de la RN 88(accès en 5 mns), beau terrain à construire( certificat d’urbanisme opérationnel OK pour 3 maisons de 100 m² chacune), la viabilisation est à proximité, l’assainissement est à prévoir (microstation d’épuration).Bien exposé, vous aurez libre choix de la construction pour un projet familial ou de l’investissement.A bientôt Les honoraires sont à la charge du vendeur.Les informations sur les risques auxquels ce bien est exposé sont disponibles sur le site Géorisques : www. georisques. gouv. fr.Contactez Nadine SMAJDOR Entrepreneur Individuel, Agent commercial OptimHome (RSAC N(Numéro supprimé) Greffe de SAINT ETIENNE) (Numéro supprimé) (réf. 591851 )
Blavozy
TERRAIN ET MAISONNous vous proposons cette maison neuve, baptisée Focus 80, un modèle phare de notre gamme qui se distingue par son excellent rapport qualité/prix. Conçue pour répondre aux attentes des familles modernes, cette maison de 80 m² allie fonctionnalité et esthétique avec un design contemporain et jeune. Elle comprend 3 chambres spacieuses, un vaste séjour lumineux pour des moments de partage en famille ou entre amis, ainsi qu’un garage intégré, offrant ainsi un total de 4 pièces bien agencées pour un confort optimal.La Focus 80 est avant tout une maison basse consommation, conçue dans le strict respect de la norme RE2020. Cette réglementation environnementale de dernière génération garantit une efficacité énergétique maximale, réduisant considérablement vos factures d’énergie tout en contribuant à la protection de l’environnement. Opter pour la Focus 80, c’est faire le choix d’un habitat durable, qui répond aux exigences les plus élevées en matière de performance énergétique.Parmi les options les plus plébiscitées par nos clients, nous avons intégré des solutions innovantes pour renforcer le confort de votre maison tout en optimisant sa consommation énergétique. La Focus 80 se démarque par son prix d’appel imbattable, ce qui en fait un choix privilégié pour les acquéreurs à la recherche d’un excellent rapport qualité/prix sans compromis sur la qualité et la durabilité.En choisissant la Focus 80, vous optez pour une maison qui va à l’essentiel sans négliger l’élégance et le bien-être. C’est le coup de cœur assuré pour ceux qui rêvent d’une maison neuve, moderne, et respectueuse de l’environnement. Ne laissez pas passer cette opportunité de construire la maison de vos rêves, conforme aux dernières normes environnementales. La Focus 80 vous attend pour commencer un nouveau chapitre de votre vie dans un cadre confortable et durable.
Le Puy-en-Velay
TERRAINTerrain constructible de 5178 m² pourvu d’un certificat d’urbanisme validé, favorable à la construction d’une jusqu’à 5 maisons à usage d’habitation, offrant de la viabilité en bordure.Idéal pour un projet de promotion immobilière de type lotissement.Situé dans un quartier paisible et résidentiel, il bénéficie aussi bien des commodités (écoles, commerces locaux, Espace Chirel, transport en commun) que d’un environnement calme avec une vue dégagée. Vous avez le projet de construire la maison de vos rêves dans un cadre stratégique, paisible et verdoyant ? Contactez-nous dès maintenant.Prix de vente : 290000 euros Honoraires charge vendeurBien non soumis à DPEPour visiter et vous accompagner dans votre projet, contactez Aristide GNAMBODOE, au (Numéro supprimé) ou, par courriel à (Email supprimé).Selon l’article L.561.5 du Code Monétaire et Financier, pour l’organisation de la visite, la présentation d’une pièce d’identité vous sera demandée.Cette présente annonce a été rédigée sous la responsabilité éditoriale de Aristide GNAMBODOE agissant sous le statut d’agent commercial immatriculé au RSAC 434104592 LE PUY EN VELAY auprès de SAS PROPRIETES PRIVEES, au capital de 44 920 euros, ZAC LE CHÊNE FERRÉ – 44 ALLÉE DES CINQ CONTINENTS 44120 VERTOU; SIRET 487 624 777 00040, RCS Nantes. Carte Professionnelle Transactions sur immeubles et fonds de commerce (T) et Gestion immobilière (G) n°CPI 4401 2016 000 010 388 délivrée par la CCI Nantes – Saint Nazaire. Compte séquestre n(Numéro supprimé)67 BPA SAINT-SEBASTIEN-SUR-LOIRE (44230). Garantie GALIAN-SMABTP – 89 rue de la Boétie, 75008 Paris – n°28137 J pour 2 000 000 euros pour T et 120 000 euros pour G. Assurance responsabilité civile professionnelle par GALIAN-SMABTP n° de police 28137.JMandat réf : 418568 – Le professionnel garantit et sécurise votre projet immobilier. Aristide GNAMBODOE (EI) Agent Commercial – Numéro RSAC : 434104592 LE PUY EN VELAY – .
Blavozy
TERRAIN ET MAISONNous vous proposons cette maison neuve, baptisée Cristalia, un modèle de résidence qui allie élégance, confort et respect de l’environnement. Conçue pour répondre aux attentes des plus exigeants, Cristalia offre une surface habitable de 97 m², parfaitement répartie entre 4 chambres lumineuses et 5 pièces à vivre, promettant ainsi un cadre de vie idéal pour toute la famille.Cette maison se distingue par son architecture moderne, avec une option de toiture à 2 ou 4 pans, selon vos préférences, et un garage intégré pour plus de commodité. Son design extérieur est complété par une toiture de 2 à 3 versants, ajoutant un charme indéniable à l’ensemble. L’intérieur n’est pas en reste, offrant un salon séjour spacieux et ouvert sur l’extérieur, invitant la lumière naturelle à chaque moment de la journée et renforçant le lien avec la nature environnante.L’aménagement intérieur a été pensé pour être à la fois moderne et très fonctionnel, répondant ainsi aux besoins de la vie contemporaine. La possibilité de personnaliser votre espace selon vos goûts et vos besoins est un atout majeur, vous permettant de créer un foyer qui vous ressemble vraiment.Cristalia est également une maison basse consommation, conçue dans le strict respect de la norme RE2020. Cette caractéristique garantit une efficacité énergétique optimale, réduisant ainsi vos factures d’énergie tout en contribuant à la protection de l’environnement. C’est une maison qui s’inscrit dans l’avenir, offrant confort et durabilité.Choisir Cristalia, c’est opter pour une maison qui combine esthétique, fonctionnalité et respect de l’environnement. Une maison où chaque détail a été pensé pour votre bien-être et celui de votre famille. Ne manquez pas l’opportunité de construire la maison de vos rêves, une maison qui vous accompagnera dans tous les moments importants de votre vie.
Rosières
TERRAINÀ Vendre Superbe Terrain d’environ 2000 m² à Rosières (Haute-Loire)Situation idéale le long de la Via Fluvia , Vue imprenable plein sudVous rêvez d’un cadre paisible, verdoyant et bien exposé pour construire votre futur chez-vous . Ce magnifique terrain est fait pour vous ! Les atouts du terrain :Superficie généreuse : 2000 m²Exposition plein sud : ensoleillement optimal toute la journéeCadre calme, en bordure de la Via Fluvia (piste cyclable et piétonne)Réseaux en bordure : eau, électricité, téléphoneTerrain non viabilisé, mais accès aux réseaux immédiatEnvironnement naturel préservé, tout en restant proche des commerces et commodités Idéal pour un projet de résidence principale, secondaire ou un investissement dans un cadre nature.Une seconde parcelle d’environ 2500 m² est aussi disponible à la vente, ou possibilité d’acheter en global 4700 m².Informations légales :Les informations sur les risques auxquels ce bien est exposé sont disponibles sur le site www.georisques.gouv.fr.Contactez-nous dès maintenant pour plus d’informations ou organiser une visite sur place !A visiter rapidement, contactez-nous pour organiser une visite Gaëlle DUPLANIL : MAXIHOME – 40 Boulevard Marcel Cachin 13500 MARTIGUES -Tél : (Numéro supprimé) email : (Email supprimé) RCS 852 003 847 Agent commercial indépendant du réseau national Maxihome N° RSAC : 898 585 179 – Ville du greffe : RSAC LE PUY-EN-VELAY
L’actualité immobilière à Blavozy
27/11/2023
02/11/2023
30/10/2023
20/10/2023
16/10/2023
16/10/2023