Images
Description
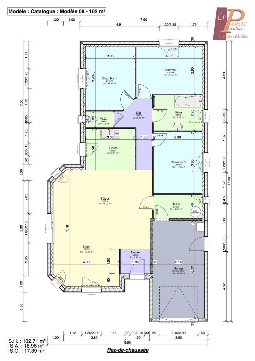
"Sur ce terrain, nous vous proposons cette maison neuve : la Garelle, un modèle conçu par Pavillons Parot. Cette très belle maison traditionnelle de plain-pied en forme de T est idéale pour ceux qui recherchent de belles dimensions tout en possédant un terrain étroit. Avec une superficie de 102 m², elle offre un espace de vie généreux et bien agencé.
La Garelle se compose de 4 pièces, dont 3 jolies chambres, parfaites pour accueillir une famille. Le salon-séjour, niché dans un oriel, confère à cette maison une esthétique unique et très design. Vous apprécierez également le cloisonnement séparant l’entrée du séjour, offrant ainsi une organisation optimale des espaces.
Les chambres donnent sur un dégagement, créant un espace nuit bien délimité. Un cellier pratique et un garage intégré, avec une porte communicante entre les deux, ajoutent au confort de cette demeure. Vous n’aurez plus besoin de sortir pour accéder à votre garage, un détail pratique qui fait toute la différence.
Construite en terre cuite h10, cette maison est non seulement esthétique mais aussi durable. De plus, elle est conforme à la réglementation RE2020, garantissant une basse consommation énergétique et un respect des normes environnementales actuelles.
Cette confortable demeure est idéale pour les familles souhaitant disposer d’un bon confort bien organisé sur un seul niveau, dans une habitation à l’architecture originale. Ne manquez pas cette opportunité unique de vivre dans une maison alliant modernité, praticité et respect de l’environnement.
Logement susceptibles de vous intéresser
Nous vous proposons de découvrir aussi cette sélection de logements situés à moins de 10km de Bologne et qui seraient susceptibles de vous intéresser.
Bologne
TERRAIN ET MAISON« Sur ce terrain, nous vous proposons cette maison neuve : la Garelle, un modèle conçu par Pavillons Parot. Cette très belle maison traditionnelle de plain-pied en forme de T est idéale pour ceux qui recherchent de belles dimensions tout en possédant un terrain étroit. Avec une superficie de 102 m², elle offre un espace de vie généreux et bien agencé.La Garelle se compose de 4 pièces, dont 3 jolies chambres, parfaites pour accueillir une famille. Le salon-séjour, niché dans un oriel, confère à cette maison une esthétique unique et très design. Vous apprécierez également le cloisonnement séparant l’entrée du séjour, offrant ainsi une organisation optimale des espaces.Les chambres donnent sur un dégagement, créant un espace nuit bien délimité. Un cellier pratique et un garage intégré, avec une porte communicante entre les deux, ajoutent au confort de cette demeure. Vous n’aurez plus besoin de sortir pour accéder à votre garage, un détail pratique qui fait toute la différence.Construite en terre cuite h10, cette maison est non seulement esthétique mais aussi durable. De plus, elle est conforme à la réglementation RE2020, garantissant une basse consommation énergétique et un respect des normes environnementales actuelles.Cette confortable demeure est idéale pour les familles souhaitant disposer d’un bon confort bien organisé sur un seul niveau, dans une habitation à l’architecture originale. Ne manquez pas cette opportunité unique de vivre dans une maison alliant modernité, praticité et respect de l’environnement.
Bologne
TERRAINVous recherchez un terrain de 750m² pour y construire votre future maison? Ne cherchez plus, ce terrain est fait pour vous! Situé dans un lotissement calme de la charmante ville de Bologne, ce terrain saura vous séduire par sa surface idéale pour un projet de construction de maison. Implanté dans un village dynamique et convivial, ce terrain bénéficie d’une localisation idéale. A seulement dix minutes de la ville de Chaumont et de toutes ses commodités, vous pourrez profiter de tous les services nécessaires au quotidien. De plus, les écoles maternelles et primaires se trouvent à proximité, offrant ainsi une qualité de vie optimale pour les familles. Sans oublier la présence de nombreux commerces, facilitant grandement le quotidien. Avec son emplacement dans un quartier résidentiel et son accès rapide aux transports en commun, ce terrain offre une opportunité unique pour construire la maison de vos rêves. Avec une façade de 22m, vous pourrez laisser libre cours à votre imagination pour créer votre futur chez vous. Ne laissez pas passer cette occasion et venez visiter ce terrain dès maintenant. Profitez de cette opportunité dans le charmant département de Haute-Marne et réalisez enfin votre projet immobilier. N’attendez plus, contactez-nous pour plus d’informations et planifiez dès à présent une visite du terrain. A saisir rapidement!
Bologne
TERRAIN ET MAISONSur ce terrain, nous vous proposons cette maison neuve : l’Intimity I de notre gamme Evasihome.Chez Babeau-Seguin, nous voulons en faire toujours plus pour nos clients ! C’est pourquoi notre bureau d’étude a imaginé cette gamme de modèles tous dotés d’une suite parentale généreuse. Parce qu’en tant que parents, vous avez besoin d’un peu d’intimité et de tranquillité, même si vous adorez être avec votre petite famille ! Evasihome Intimity I répond à cette attente.Un joli pavillon où tout le monde se sent à l’aiseEvasihome Intimity I est un pavillon de plain-pied avec garage intégré, agrémenté d’une terrasse semi-couverte. La suite parentale comprend un beau dressing et une salle d’eau, pour un confort maximum. Une porte-fenêtre donne directement sur la terrasse, pour plus d’autonomie ! Avec ses 109 m², cette maison dispose de quatre chambres, dont une suite parentale, toutes dotées de placards pour la tribu. Une salle de bain avec w.c. séparés, une grande pièce de vie avec cuisine ouverte et un cellier complètent l’ensemble.Une maison aux dimensions adaptéesL’Intimity I vous est proposée avec une surface de 109 m² pour s’adapter aux besoins de votre famille. Craquez dès aujourd’hui pour ce merveilleux modèle et venez nous rendre visite en agence, nous vous dirons tout ce que vous voulez savoir sur votre future maison ! De plus, nous vous présenterons, si vous le souhaitez, un catalogue de terrains à bâtir afin de vous simplifier la vie.Quoi de mieux pour ce terrain que le modèle Intimity I de 109 m². L’objectif de cette maison est simple : allier une forme traditionnelle rassurante et un intérieur moderne et adapté aux exigences d’aujourd’hui, le tout avec un maximum d’équipements de série (4 chambres, une suite parentale avec dressing et salle de bain, terrasse couverte).Les caractéristiques principales de cette maison incluent une verrière, une suite parentale, une terrasse couverte et des prises USB murales. Les options les plus demandées par nos cli
Bologne
TERRAINDécouvrez ce terrain magnifique de 1023 m², idéalement situé à Bologne, dans le département de la Haute-Marne en région Grand Est. Viabilisé et parfaitement plat, ce terrain vous offre une opportunité unique pour réaliser votre projet de construction de maison. Un cadre paisible et agréable, propice à l’édification d’une demeure familiale conviviale, vous attend au cœur de cette charmante commune. Bologne bénéficie d’un emplacement stratégique, alliant tranquillité et proximité avec les commodités nécessaires à un cadre de vie agréable. Vous trouverez à proximité immédiate des commerces, des écoles et divers services, le tout dans un environnement calme et serein. De plus, un arrêt de bus et un accès aux axes routiers importants se situent à quelques pas, facilitant vos déplacements. Ce cadre enchanteur et accessible ajoute une véritable plus-value à votre futur projet. Ne laissez pas passer cette chance de concrétiser votre rêve de construction sur ce terrain prometteur. Contactez-nous pour plus d’informations et pour envisager cette opportunité d’achat exceptionnelle. À noter qu’en tant que constructeur, nous ne sommes pas mandatés pour réaliser la vente de ce terrain.
Jonchery
TERRAIN ET MAISONSur ce terrain, nous vous proposons cette maison neuve : la Focus EVO, un modèle unique de 110 m² conçu par Babeau-Seguin, constructeur offrant le meilleur rapport qualité/prix du marché. Cette maison basse consommation est conforme à la norme RE2020, garantissant des performances énergétiques exceptionnelles.La Focus EVO se distingue par son concept évolutif, alliant une maison neuve prête à vivre et une maison prête à finir. Livrée avec 73 m² habitables, elle est conçue pour évoluer avec vos besoins futurs. Grâce à ses combles aménageables, vous pouvez facilement augmenter votre surface habitable à 110 m², ajoutant ainsi deux chambres supplémentaires et une salle de bain, pour un total de 4 chambres et 2 salles de bains.Les caractéristiques principales de cette maison incluent un garage intégré, un cellier, et des combles aménageables. Les options les plus demandées par nos clients, telles que la version Investisseur et les prises USB murales, sont également disponibles.La Focus EVO est idéale pour tous ceux qui recherchent une maison complète à un prix compétitif. Elle comprend une grande pièce de jour traversante, 4 chambres, une salle de bain, et un garage de 15 m². Que vous soyez un jeune couple, un célibataire ou une famille en pleine expansion, cette maison saura s’adapter à vos besoins et à vos envies.Ne manquez pas cette occasion unique de devenir propriétaire d’une maison évolutive, économe en énergie et conforme aux dernières normes environnementales. Contactez-nous dès aujourd’hui pour plus d’informations et pour planifier une visite.
Jonchery
TERRAINÀ vendre, un magnifique terrain de 687 m², idéalement situé à Jonchery, Haute-Marne, dans la région dynamique du Grand Est. Ce terrain est viabilisé, prêt à accueillir votre projet de construction de maison. Son cadre champêtre offre une atmosphère apaisante tout en étant à proximité d’un axe routier important, garantissant ainsi un accès facile et rapide aux principales commodités. Jonchery est une commune attrayante, offrant à ses habitants un mélange parfait de tranquillité et de praticité. À proximité, vous pourrez bénéficier de diverses attractions locales, d’écoles, de commerces et de services de première nécessité. La région est également riche en paysages naturels à explorer, ce qui en fait un lieu de vie agréable pour les familles et les amoureux de la nature. Avec un prix attractif, ce terrain représente une opportunité précieuse pour réaliser votre projet immobilier dans un environnement en pleine expansion. Ne manquez pas cette occasion unique d’investir dans un site prometteur à Jonchery. Nous vous encourageons à envisager ce terrain propice à la construction de votre future maison. À noter qu’en tant que constructeur, nous ne sommes pas mandatés pour réaliser la vente de ce terrain.
Jonchery
TERRAINVous rêvez de construire votre maison dans un cadre paisible et verdoyant ?THE DOOR MAN L’immobilier 100% partagé vous propose ce terrain viabilisé (eau, électricité) tout est fait pour vous !Situé dans un village à 10 min de Chaumont, ce terrain offre une belle opportunité pour un projet de construction.Il permet une grande liberté architecturale pour donner vie à votre projet.? Terrain prêt à bâtir? Toutes les viabilités en bordure? Proche des écoles et commercesNos conseillers sont disponibles du Mardi au Samedi de 9h à 12h et de 14h à 18h. Honoraires charge vendeur.Non soumis au DPE.Conseiller en immobilier : BERTHOT Fanny (EI).RSAC : 909123549.Les informations sur les risques auxquels ce bien est exposé sont disponibles sur le site Géorisques : (Lien supprimé). Sur ce site seront également consultables une fiche d’information sur les obligations de débroussaillement et une carte des zones soumises à cette obligation.La présente annonce immobilière a été rédigée sous la responsabilité éditoriale de BERTHOT Fanny (EI), mandataire indépendant en immobilier (sans détention de fonds), agent commercial de la SASU THE DOOR MAN France immatriculé au RSAC, titulaire de la carte de démarchage immobilier pour le compte de la société THE DOOR MAN France SASU.
Jonchery
TERRAINTHE DOOR MAN – L’immobilier 100 % partagé vous propose en exclusivité ce magnifique terrain de 2 476 m², idéalement situé au cœur de Jonchery, à seulement 10 minutes de Chaumont.Entièrement viabilisé, ce terrain offre un cadre paisible et verdoyant pour concrétiser votre projet de construction.Laissez libre cours à vos envies et imaginez la maison de vos rêves dans un environnement calme et recherché, tout en restant proche des commodités et axes principaux.Une opportunité rare à ne pas manquer !Nos conseillers sont disponibles du Mardi au Samedi de 9h à 12h et de 14h à 18h. Honoraires charge vendeur.Non soumis au DPE.Conseiller en immobilier : BERTHOT Fanny (EI).RSAC : 909123549.Les informations sur les risques auxquels ce bien est exposé sont disponibles sur le site Géorisques : (Lien supprimé). Sur ce site seront également consultables une fiche d’information sur les obligations de débroussaillement et une carte des zones soumises à cette obligation.La présente annonce immobilière a été rédigée sous la responsabilité éditoriale de BERTHOT Fanny (EI), mandataire indépendant en immobilier (sans détention de fonds), agent commercial de la SASU THE DOOR MAN France immatriculé au RSAC, titulaire de la carte de démarchage immobilier pour le compte de la société THE DOOR MAN France SASU.
L’actualité immobilière à Bologne
27/11/2023
02/11/2023
30/10/2023
20/10/2023
16/10/2023
16/10/2023