Images
Description
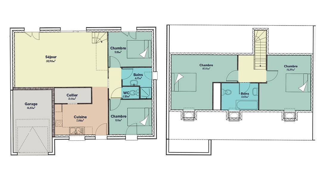
Sur ce terrain, nous vous proposons cette maison neuve : la Focus EVO, un modèle unique de 110 m² conçu par Babeau-Seguin, constructeur offrant le meilleur rapport qualité/prix du marché. Cette maison basse consommation est conforme à la norme RE2020, garantissant des performances énergétiques exceptionnelles.
La Focus EVO se distingue par son concept évolutif, alliant une maison neuve prête à vivre et une maison prête à finir. Livrée avec 73 m² habitables, elle est conçue pour évoluer avec vos besoins futurs. Grâce à ses combles aménageables, vous pouvez facilement augmenter votre surface habitable à 110 m², ajoutant ainsi deux chambres supplémentaires et une salle de bain, pour un total de 4 chambres et 2 salles de bains.
Les caractéristiques principales de cette maison incluent un garage intégré, un cellier, et des combles aménageables. Les options les plus demandées par nos clients, telles que la version Investisseur et les prises USB murales, sont également disponibles.
La Focus EVO est idéale pour tous ceux qui recherchent une maison complète à un prix compétitif. Elle comprend une grande pièce de jour traversante, 4 chambres, une salle de bain, et un garage de 15 m². Que vous soyez un jeune couple, un célibataire ou une famille en pleine expansion, cette maison saura s'adapter à vos besoins et à vos envies.
Ne manquez pas cette occasion unique de devenir propriétaire d'une maison évolutive, économe en énergie et conforme aux dernières normes environnementales. Contactez-nous dès aujourd'hui pour plus d'informations et pour planifier une visite.
Logement susceptibles de vous intéresser
Nous vous proposons de découvrir aussi cette sélection de logements situés à moins de 10km de Jonchery et qui seraient susceptibles de vous intéresser.

Villiers-le-Sec
TERRAIN ET MAISONSur ce terrain, nous vous proposons cette maison neuve, la Ménilière Sud, conçue par Babeau-Seguin, constructeur offrant le meilleur rapport qualité/prix du marché. Cette superbe maison traditionnelle du sud, avec ses galeries et ses tuiles canal, dispose d’une surface de 100 m² et comprend 3 chambres et 4 pièces.La Ménilière Sud est une maison basse consommation, conforme à la RE2020, garantissant des économies d’énergie et un confort optimal tout au long de l’année. Elle est équipée d’un garage intégré, et vous avez le choix entre un toit à 2 pans ou à 4 pans, selon vos préférences.Offrant beaucoup de cachet, la Ménilière Sud est facilement personnalisable pour répondre à vos besoins et à vos goûts. Son porche avant pratique vous évitera la panique de chercher vos clés les jours de pluie. Ce modèle est particulièrement apprécié pour son excellent rapport qualité/prix, ce qui en fait l’un des modèles sur-mesure les plus vendus.Ne manquez pas cette opportunité unique d’acquérir une maison neuve, économe en énergie et parfaitement adaptée à vos envies. Contactez-nous dès maintenant pour plus d’informations et pour découvrir toutes les possibilités de personnalisation de la Ménilière Sud.

Villiers-le-Sec
TERRAINVous rêvez de construire la maison de vos rêves ? Ne cherchez plus ! Ce terrain viabilisé de 1139 m², idéalement situé à Villiers-le-Sec, est l’opportunité parfaite pour votre projet de construction. Avec son cadre champêtre et son environnement calme, ce terrain vous offre un espace idéal pour vous épanouir. Profitez d’un quartier privilégié, propice à l’épanouissement familial. Villiers-le-Sec, dans le département de la Haute-Marne, est une ville qui sait allier tranquillité et accessibilité. À proximité des commodités essentielles et des écoles, vous bénéficiez d’un cadre idyllique à seulement quelques pas des services de la vie quotidienne. Enfin, profitez de l’accès rapide aux axes routiers importants, facilitant vos déplacements vers les grandes agglomérations environnantes. C’est un endroit idéal pour vivre pleinement, loin de l’agitation des grandes villes. N’attendez plus pour réaliser votre projet ! Ce terrain représente une opportunité rare sur le marché immobilier. Saisissez cette chance unique d’investir dans un emplacement de choix avec un potentiel exceptionnel. À noter qu’en tant que constructeur, nous ne sommes pas mandatés pour réaliser la vente de ce terrain.

Villiers-le-Sec
TERRAIN ET MAISONSur ce terrain, nous vous proposons cette maison neuve, la Sauvetière, conçue par Babeau-Seguin, constructeur offrant le meilleur rapport qualité/prix du marché. Cette maison de 107 m², à classer sans nul doute dans la catégorie des maisons modernes, sera idéale pour votre famille.La Sauvetière, une maison plain-pied traditionnelle, vous offre de base une vaste galerie et un garage accolé en rupture avec le volume principal de la construction. Son audacieux plan en forme de L, disponible en version 2 pans ou 4 pans, ne vous laissera pas indifférent.Cette maison dispose de 4 chambres spacieuses et de 4 pièces, offrant un espace de vie confortable et fonctionnel. Le garage accolé permet un accès direct à la maison, facilitant ainsi votre quotidien.L’un des atouts majeurs de la Sauvetière est sa basse consommation énergétique, conforme à la réglementation RE2020, garantissant des économies d’énergie et un confort optimal tout au long de l’année.Ne manquez pas cette opportunité unique d’acquérir une maison moderne, économe en énergie et parfaitement adaptée à vos besoins. Contactez-nous dès maintenant pour plus d’informations et pour planifier une visite.

Villiers-le-Sec
TERRAINDécouvrez cette exceptionnelle opportunité d’acquérir un terrain viabilisé de 1 223 m², idéalement situé à Villiers-le-Sec, en Haute-Marne. Cette parcelle plate, ensoleillée et offrant un cadre champêtre se prête parfaitement à la réalisation de votre projet de construction de maison. Ne manquez pas cette chance unique de bâtir votre oasis personnelle dans un quartier privilégié, alliant tranquillité et confort. Villiers-le-Sec, niché dans la région Grand Est, est une ville dynamique qui combine le charme de la campagne et la proximité des commodités modernes. Profitez de l’accès aisé aux écoles à proximité, ainsi qu’à un axe routier important qui vous relie facilement aux principales villes de la région. Ce terrain bénéficie d’un environnement paisible tout en étant proche des services nécessaires à votre vie quotidienne, faisant de cet endroit un lieu de vie privilégié. Cette offre rare présente un potentiel incroyable pour ceux qui aspirent à créer leur maison de rêve. N’attendez plus pour envisager cette opportunité d’achat unique?! À noter qu’en tant que constructeur, nous ne sommes pas mandatés pour réaliser la vente de ce terrain.

Bologne
TERRAIN ET MAISONSur ce terrain, nous vous proposons cette maison neuve : l’Intimity I de notre gamme Evasihome.Chez Babeau-Seguin, nous voulons en faire toujours plus pour nos clients ! C’est pourquoi notre bureau d’étude a imaginé cette gamme de modèles tous dotés d’une suite parentale généreuse. Parce qu’en tant que parents, vous avez besoin d’un peu d’intimité et de tranquillité, même si vous adorez être avec votre petite famille ! Evasihome Intimity I répond à cette attente.Un joli pavillon où tout le monde se sent à l’aiseEvasihome Intimity I est un pavillon de plain-pied avec garage intégré, agrémenté d’une terrasse semi-couverte. La suite parentale comprend un beau dressing et une salle d’eau, pour un confort maximum. Une porte-fenêtre donne directement sur la terrasse, pour plus d’autonomie ! Avec ses 109 m², cette maison dispose de quatre chambres, dont une suite parentale, toutes dotées de placards pour la tribu. Une salle de bain avec w.c. séparés, une grande pièce de vie avec cuisine ouverte et un cellier complètent l’ensemble.Une maison aux dimensions adaptéesL’Intimity I vous est proposée avec une surface de 109 m² pour s’adapter aux besoins de votre famille. Craquez dès aujourd’hui pour ce merveilleux modèle et venez nous rendre visite en agence, nous vous dirons tout ce que vous voulez savoir sur votre future maison ! De plus, nous vous présenterons, si vous le souhaitez, un catalogue de terrains à bâtir afin de vous simplifier la vie.Quoi de mieux pour ce terrain que le modèle Intimity I de 109 m². L’objectif de cette maison est simple : allier une forme traditionnelle rassurante et un intérieur moderne et adapté aux exigences d’aujourd’hui, le tout avec un maximum d’équipements de série (4 chambres, une suite parentale avec dressing et salle de bain, terrasse couverte).Les caractéristiques principales de cette maison incluent une verrière, une suite parentale, une terrasse couverte et des prises USB murales. Les options les plus demandées par nos cli

Bologne
TERRAINDécouvrez ce terrain magnifique de 1023 m², idéalement situé à Bologne, dans le département de la Haute-Marne en région Grand Est. Viabilisé et parfaitement plat, ce terrain vous offre une opportunité unique pour réaliser votre projet de construction de maison. Un cadre paisible et agréable, propice à l’édification d’une demeure familiale conviviale, vous attend au cœur de cette charmante commune. Bologne bénéficie d’un emplacement stratégique, alliant tranquillité et proximité avec les commodités nécessaires à un cadre de vie agréable. Vous trouverez à proximité immédiate des commerces, des écoles et divers services, le tout dans un environnement calme et serein. De plus, un arrêt de bus et un accès aux axes routiers importants se situent à quelques pas, facilitant vos déplacements. Ce cadre enchanteur et accessible ajoute une véritable plus-value à votre futur projet. Ne laissez pas passer cette chance de concrétiser votre rêve de construction sur ce terrain prometteur. Contactez-nous pour plus d’informations et pour envisager cette opportunité d’achat exceptionnelle. À noter qu’en tant que constructeur, nous ne sommes pas mandatés pour réaliser la vente de ce terrain.

Jonchery
TERRAIN ET MAISONSur ce terrain, nous vous proposons cette maison neuve : la Focus EVO, un modèle unique de 110 m² conçu par Babeau-Seguin, constructeur offrant le meilleur rapport qualité/prix du marché. Cette maison basse consommation est conforme à la norme RE2020, garantissant des performances énergétiques exceptionnelles.La Focus EVO se distingue par son concept évolutif, alliant une maison neuve prête à vivre et une maison prête à finir. Livrée avec 73 m² habitables, elle est conçue pour évoluer avec vos besoins futurs. Grâce à ses combles aménageables, vous pouvez facilement augmenter votre surface habitable à 110 m², ajoutant ainsi deux chambres supplémentaires et une salle de bain, pour un total de 4 chambres et 2 salles de bains.Les caractéristiques principales de cette maison incluent un garage intégré, un cellier, et des combles aménageables. Les options les plus demandées par nos clients, telles que la version Investisseur et les prises USB murales, sont également disponibles.La Focus EVO est idéale pour tous ceux qui recherchent une maison complète à un prix compétitif. Elle comprend une grande pièce de jour traversante, 4 chambres, une salle de bain, et un garage de 15 m². Que vous soyez un jeune couple, un célibataire ou une famille en pleine expansion, cette maison saura s’adapter à vos besoins et à vos envies.Ne manquez pas cette occasion unique de devenir propriétaire d’une maison évolutive, économe en énergie et conforme aux dernières normes environnementales. Contactez-nous dès aujourd’hui pour plus d’informations et pour planifier une visite.

Jonchery
TERRAINÀ vendre, un magnifique terrain de 687 m², idéalement situé à Jonchery, Haute-Marne, dans la région dynamique du Grand Est. Ce terrain est viabilisé, prêt à accueillir votre projet de construction de maison. Son cadre champêtre offre une atmosphère apaisante tout en étant à proximité d’un axe routier important, garantissant ainsi un accès facile et rapide aux principales commodités. Jonchery est une commune attrayante, offrant à ses habitants un mélange parfait de tranquillité et de praticité. À proximité, vous pourrez bénéficier de diverses attractions locales, d’écoles, de commerces et de services de première nécessité. La région est également riche en paysages naturels à explorer, ce qui en fait un lieu de vie agréable pour les familles et les amoureux de la nature. Avec un prix attractif, ce terrain représente une opportunité précieuse pour réaliser votre projet immobilier dans un environnement en pleine expansion. Ne manquez pas cette occasion unique d’investir dans un site prometteur à Jonchery. Nous vous encourageons à envisager ce terrain propice à la construction de votre future maison. À noter qu’en tant que constructeur, nous ne sommes pas mandatés pour réaliser la vente de ce terrain.

Villiers-le-Sec
TERRAIN ET MAISONSur ce terrain, nous vous proposons cette maison neuve : la Focus EVO, un modèle unique de 110 m² conçu par Babeau-Seguin, constructeur offrant le meilleur rapport qualité/prix du marché. Cette maison basse consommation est conforme à la norme RE2020, garantissant des performances énergétiques exceptionnelles.La Focus EVO se distingue par son concept évolutif, alliant une maison neuve prête à vivre et une maison prête à finir. Livrée avec 73 m² habitables, elle est conçue pour évoluer avec vos besoins futurs. Grâce à ses combles aménageables, vous pouvez facilement augmenter votre surface habitable à 110 m², ajoutant ainsi deux chambres supplémentaires et une salle de bain, pour un total de 4 chambres et 2 salles de bains.Les caractéristiques principales de cette maison incluent un garage intégré, un cellier, et des combles aménageables. Les options les plus demandées par nos clients, telles que la version Investisseur et les prises USB murales, sont également disponibles.La Focus EVO est idéale pour tous ceux qui recherchent une maison complète à un prix compétitif. Elle comprend une grande pièce de jour traversante, 4 chambres, une salle de bain, et un garage de 15 m². Que vous soyez un jeune couple, un célibataire ou une famille en pleine expansion, cette maison saura s’adapter à vos besoins et à vos envies.Ne manquez pas cette occasion unique de devenir propriétaire d’une maison évolutive, économe en énergie et conforme aux dernières normes environnementales. Contactez-nous dès aujourd’hui pour plus d’informations et pour planifier une visite.
L’actualité immobilière à Jonchery





