Maison à construire à Nanterre (92000)
Images
Description
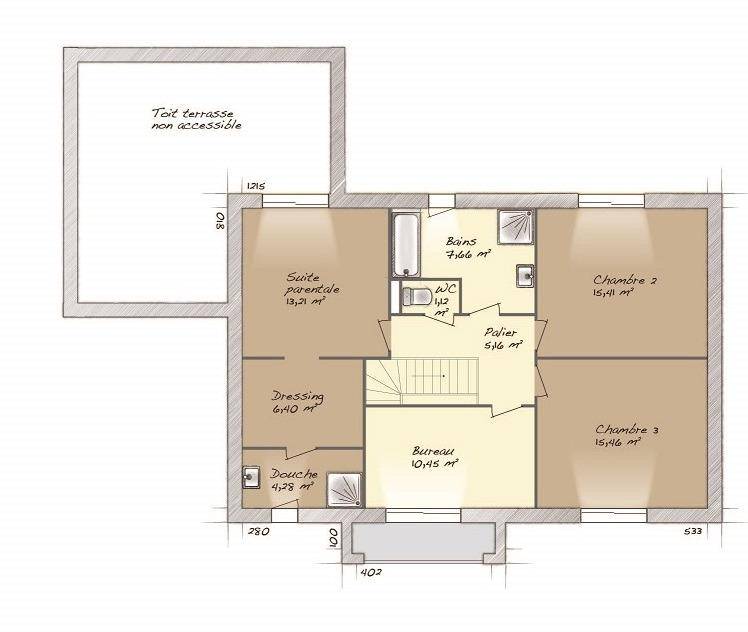
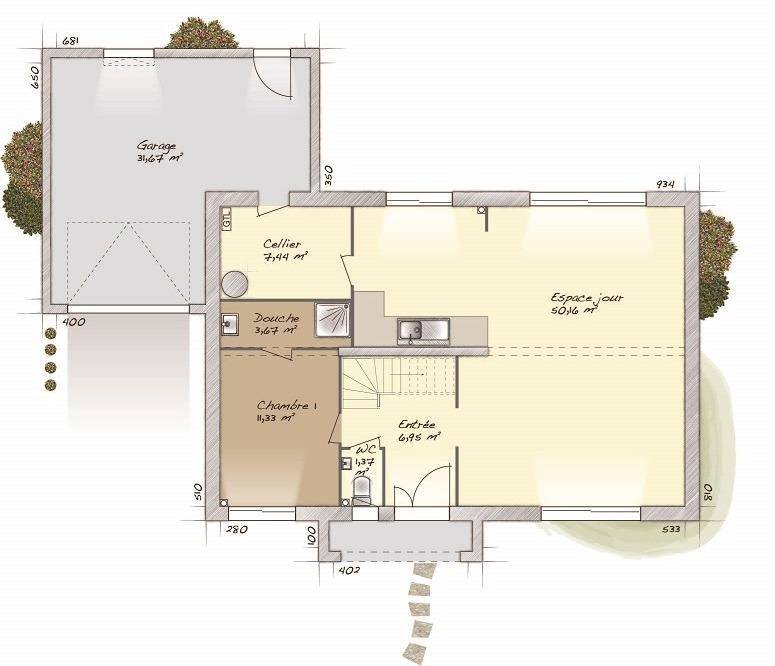
Nanterre : maison T7 (160 m²) en vente
MAISON 7 PIÈCES NEUVE
À vendre : à quelques minutes de la station Nanterre Ville du RER A (10 min de Paris), Maisons Balency Coignières vous présente cette maison de 7 pièces de 160 m² à Nanterre (92000). Elle offre quatre chambres, une cuisine et deux salles de bains.
Le terrain de la maison s'étend sur 570 m².
Cette maison possède 2 niveaux. Elle est neuve.
Tous les types d'établissements scolaires (de la maternelle au lycée) sont implantés à moins de 10 minutes à pied, tout comme sept structures d'accueil pour la petite enfance. Niveau transports, il y a la station de RER Nanterre-Ville (ligne A) juste à côté. On trouve une bibliothèque, deux tennis, un bassin de natation, des boulangeries, des commerces, des supermarchés, deux poissonneries et un bureau de poste dans les environs. Enfin, le marché Cité Jolio Curie anime les environs.
Son prix de vente est de 1 109 220 €.
Contactez notre agence (DUTEURTRE Arnaud : (Numéro supprimé)) pour obtenir de plus amples renseignements sur cette maison. Maisons Balency Coignières est là pour vous accompagner dans toutes vos démarches.
Annonce proposée par un Agent Commercial Partenaire.
Logement susceptibles de vous intéresser
Nous vous proposons de découvrir aussi cette sélection de logements situés à moins de 10km de Nanterre et qui seraient susceptibles de vous intéresser.
La Celle-Saint-Cloud
TERRAINTerrain de 780 m² à vendre à La Celle-Saint-CloudQUARTIER RECHERCHÉ – VUE PANORAMIQUEÀ La Celle-Saint-Cloud (78170) au pied du Transilien L (30 min de Paris), venez découvrir ce terrain de 780 m². Il profite d’une vue panoramique et bénéficie d’une exposition sud-ouest. Dans un secteur convoité, le terrain situé dans un quartier prisé est proche des écoles et des commerces. Il y a des écoles de tous types à moins de 10 minutes à pied, tout comme deux structures d’accueil pour la petite enfance. Côté transports en commun, on trouve la gare La Celle-Saint-Cloud à quelques pas du terrain. Il y a une bibliothèque, un bassin de natation, des boulangeries, deux supermarchés, des commerces, deux épiceries et un bureau de poste dans les environs.Ce terrain est à vendre pour la somme de 890 000 €. Prenez contact avec notre agence (Dominique TCHICAYA : (Numéro supprimé)) pour obtenir de plus amples informations sur le terrain, sur les modalités de vente ou sur les démarches à suivre. Maisons France Confort La Queue-en-Brie est là pour vous accompagner à toutes les étapes de votre projet.
Chaville
TERRAIN//(Numéro supprimé) — Les maisons CLAIRVAL vous proposent ce terrain plat de 500 m² situé à Chaville, commune prisée des Hauts-de-Seine, nichée entre les forêts de Meudon et de Fausses-Reposes. Vous bénéficierez d’un cadre de vie verdoyant et résidentiel, tout en profitant de la proximité immédiate des commerces, écoles et services. Les gares RER et Transilien, ainsi que les accès rapides à Paris et Versailles, facilitent vos déplacements quotidiens. Ce terrain plat et bien orienté offre la possibilité de concevoir une maison contemporaine, lumineuse et économe en énergie, conforme à la norme RE2020, avec des prestations personnalisées : aménagements intérieurs sur mesure, solutions énergétiques performantes et domotique. 📞 Contactez-nous dès aujourd’hui pour concrétiser votre projet à Chaville.Prix : 799000 €.Sur ce terrain de 500 m² à CHAVILLE, Maisons Clairval vous propose de réaliser votre projet de construction de maison individuelle.Demandez une étude gratuite et personnalisée de votre projet de construction sur ce terrain !Contactez John BOUT au (Numéro supprimé) ou au (Numéro supprimé) (Maisons Clairval – Agence de Rouvres).Prix hors frais de notaire. Terrain sélectionné et vu pour vous sous réserve de disponibilité et au prix indiqué par notre partenaire foncier. Conditions et visuels non contractuels.Cette annonce a été créée et diffusée avec le logiciel VITAHOME.
Sartrouville
TERRAINTerrain à vendre : emplacement idéal pour votre prochain projet. Description : A la recherche du lieu parfait pour concrétiser votre vision ? Ne chercher plus, il est là ! Ce terrain spacieux, situé dans un quartier très rechercher, offre une belle opportunité unique pour réaliser le projet d’une vie Caractéristiques : – Emplacement stratégique offrant un accès facile aux commodités locales et aux axes de transport. – Environnement calme et paisible, idéal pour ceux qui recherchent la tranquillité tout en restant connectés à la vie urbaine. – Proximité des écoles, commerces et autres services essentiels, garantissant une vie pratique et confortable. Ne manquez pas cette opportunité unique d’investir dans l’avenir et de réaliser vos aspirations. N’hésitez pas à me contacter dès maintenant pour plus d’informations et pour planifier une visite sur place !Prix : 220000 €.Sur ce terrain, réalisez votre projet de construction de maison RE 2020 avec PAVILLONS D'ÎLE-DE-FRANCE (constructeur de maisons de gamme et sur-mesure depuis plus de 50 ans) :- Plan sur-mesure et personnalisé de 2 à 5 chambres- Mode de chauffage au choix- Grands choix d'équipements et de prestations- Matériaux de qualité selon les normes en vigueur- Accompagnement dans le choix et l’acquisition du terrainDemandez une étude gratuite et personnalisée de votre projet de construction sur ce terrain !Contactez Jason GUEVEL au (Numéro supprimé) ou au (Numéro supprimé) (Pavillons d'Île-de-France – Agence de Cauffry).Prix hors frais de notaire. Terrain sélectionné et vu pour vous sous réserve de disponibilité et au prix indiqué par notre partenaire foncier. Visuels non contractuels.Cette annonce a été créée et diffusée avec le logiciel VITAHOME.
Sannois
TERRAIN ET MAISONRéalisez votre projet de construction de maison RE 2020 avec PAVILLONS D'ÎLE-DE-FRANCE (constructeur de maisons de gamme et sur-mesure depuis plus de 50 ans) :- Plan sur-mesure et personnalisé de 2 à 5 chambres- Mode de chauffage au choix- Grands choix d'équipements et de prestations- Matériaux de qualité selon les normes en vigueur- Accompagnement dans le choix et l’acquisition du terrainInformations du terrain : TERRAIN PLAT SITUE A 500 M DE LA GARE , ET TOUTES COMMODITES SUR PLACEDemandez une étude gratuite et personnalisée de votre projet de construction !Contactez Kamel SELMI au (Numéro supprimé) ou au (Numéro supprimé) (Pavillons d'Île-de-France – Agence de Cauffry).Prix avec assurance dommages-ouvrage comprise, hors VRD, terrain viabilisé, assainissement non compris, frais de notaire non compris, taxes non comprises, frais divers non compris. Terrain sélectionné et vu pour vous sous réserve de disponibilité et au prix indiqué par notre partenaire foncier. Visuels non contractuels.Cette annonce a été créée et diffusée avec le logiciel VITAHOME.
Bezons
TERRAINVotre conseiller Maisons France Confort M.AKKUS Erkan est à votre disposition pour vous accompagner dans votre projet de construction de maison personnalisée. Nouveau! Projet de construction à BEZONS secteur très prisé et résidentiel. Sur ce terrain plat de 380m2. Maison contemporaine de 4 chambres 100m2 avec une belle entrée comprenant un vestiaire, grand et lumineux séjour traversant, cuisine ouverte avec un cellier, WC. A l’étage, 4 chambres confortables dont une suite parentale avec dressing et salle d’eau, une salle de bain commune et un wc séparé. Nombreux rangement et une belle distribution. Coût total du projet 399.000€ (Frais de compteurs, de branchements, de raccordements et frais de notaire inclus) contactez votre conseiller M.AKKUS Erkan au (Numéro supprimé)Annonce proposée par un Agent Commercial Partenaire.
Sannois
TERRAIN ET MAISONRéalisez votre projet de construction de maison RE 2020 avec PAVILLONS D'ÎLE-DE-FRANCE (constructeur de maisons de gamme et sur-mesure depuis plus de 50 ans) :- Plan sur-mesure et personnalisé de 2 à 5 chambres- Mode de chauffage au choix- Grands choix d'équipements et de prestations- Matériaux de qualité selon les normes en vigueur- Accompagnement dans le choix et l’acquisition du terrainInformations du terrain : Terrain à vendre : emplacement idéal pour votre prochain projet.Localisation : SannoisDescription :A la recherche du lieu parfait pour concrétiser votre vision ? Ne chercher plus, il est là ! Ce terrain situé dans un quartier très rechercher, offre une belle opportunité unique pour réaliser le projet d’une vieCaractéristiques :- Emplacement stratégique offrant un accès facile aux commodités locales et aux axes de transport.- Environnement calme et paisible, idéal pour ceux qui recherchent la tranquillité tout en restant connectés à la vie urbaine.- Proximité des écoles, commerces et autres services essentiels, garantissant une vie pratique et confortable.Ne manquez pas cette opportunité unique d’investir dans l’avenir et de réaliser vos aspirations. N’hésitez pas à me contacter dès maintenant pour plus d’informations et pour planifier une visite sur place !Demandez une étude gratuite et personnalisée de votre projet de construction !Contactez Jason GUEVEL au (Numéro supprimé) ou au (Numéro supprimé) (Pavillons d'Île-de-France – Agence de Cauffry).Prix avec assurance dommages-ouvrage comprise, hors VRD, terrain viabilisé, assainissement non compris, frais de notaire non compris, taxes non comprises, frais divers non compris. Terrain sélectionné et vu pour vous sous réserve de disponibilité et au prix indiqué par notre partenaire foncier. Visuels non contractuels.Cette annonce a été créée et diffusée avec le logiciel VITAHOME.
Chaville
TERRAIN(Numéro supprimé) — Les Maisons Clairval vous proposent ce terrain plat viabilisé de 250 m² situé à Chaville (92), dans un secteur recherché offrant un cadre de vie paisible et verdoyant entre Versailles et Paris. Vous profiterez d’un environnement résidentiel agréable, à proximité immédiate des commerces, écoles et transports (gare RER C et ligne N), facilitant les déplacements quotidiens. Ce terrain plat et bien orienté permet d’envisager la construction d’une maison moderne, lumineuse et économe en énergie, conforme à la réglementation RE2020, selon vos envies et votre mode de vie.📞 Contactez-nous dès aujourd’hui pour découvrir ce terrain et imaginer votre futur projet à Chaville.Prix : 399000 €.Sur ce terrain de 251 m² à CHAVILLE, Maisons Clairval vous propose de réaliser votre projet de construction de maison individuelle.Demandez une étude gratuite et personnalisée de votre projet de construction sur ce terrain !Contactez John BOUT au (Numéro supprimé) ou au (Numéro supprimé) (Maisons Clairval – Agence de Rouvres).Prix hors frais de notaire. Terrain sélectionné et vu pour vous sous réserve de disponibilité et au prix indiqué par notre partenaire foncier. Conditions et visuels non contractuels.Cette annonce a été créée et diffusée avec le logiciel VITAHOME.
La Celle-Saint-Cloud
TERRAIN ET MAISONVENTE : maison de 8 pièces (120 m²) à La Celle-Saint-CloudQUARTIER RECHERCHÉ – MAISON 8 PIÈCES NEUVEÀ vendre : à proximité du Transilien L (30 min de Paris), dans un quartier convoité de La Celle-Saint-Cloud (78170), nous sommes ravis de vous proposer cette maison de 8 pièces de 120 m² avec vue panoramique.Cette maison compte 2 niveaux. Elle se divise en cinq chambres, une cuisine et trois salles de bains. La maison est neuve.Un balcon la complète, un gain de confort et d’espace appréciable. Le terrain de la propriété s’étend sur 780 m².Cette maison se trouve dans un secteur prisé. Des établissements scolaires de tous niveaux (de la maternelle au lycée) sont implantés à moins de 10 minutes à pied, tout comme deux structures d’accueil pour les enfants en bas âge. Côté transports, on trouve la gare La Celle-Saint-Cloud juste à côté. Il y a une bibliothèque, un bassin de natation, des boulangeries, deux supermarchés, des commerces, deux épiceries et trois boucheries-charcuteries à quelques minutes à peine.Son prix de vente est de 1 688 000 €.Contactez Dominique TCHICAYA ((Numéro supprimé)) pour obtenir de plus amples renseignements sur la maison ou sur les démarches à suivre. Maisons France Confort La Queue-en-Brie vous accompagne dans tous vos projets immobiliers et à toutes les étapes de l’achat.
Sannois
TERRAIN ET MAISONRéalisez votre projet de construction de maison RE 2020 avec PAVILLONS D'ÎLE-DE-FRANCE (constructeur de maisons de gamme et sur-mesure depuis plus de 50 ans) :- Plan sur-mesure et personnalisé de 2 à 5 chambres- Mode de chauffage au choix- Grands choix d'équipements et de prestations- Matériaux de qualité selon les normes en vigueur- Accompagnement dans le choix et l’acquisition du terrainInformations du terrain : TERRAIN PLAT SITUE A 500 M DE LA GARE , ET TOUTES COMMODITES SUR PLACEDemandez une étude gratuite et personnalisée de votre projet de construction !Contactez Kamel SELMI au (Numéro supprimé) ou au (Numéro supprimé) (Pavillons d'Île-de-France – Agence de Cauffry).Prix avec assurance dommages-ouvrage comprise, hors VRD, terrain viabilisé, assainissement non compris, frais de notaire non compris, taxes non comprises, frais divers non compris. Terrain sélectionné et vu pour vous sous réserve de disponibilité et au prix indiqué par notre partenaire foncier. Visuels non contractuels.Cette annonce a été créée et diffusée avec le logiciel VITAHOME.
L’actualité immobilière à Nanterre
27/11/2023
02/11/2023
30/10/2023
20/10/2023
16/10/2023
16/10/2023