Maison à construire à Bourg-des-Comptes (35890)
Images
Description
Bourg-des-Comptes : maison T5 (100 m²) à vendre
IDÉALEMENT SITUÉE - MAISON 5 PIÈCES NEUVE
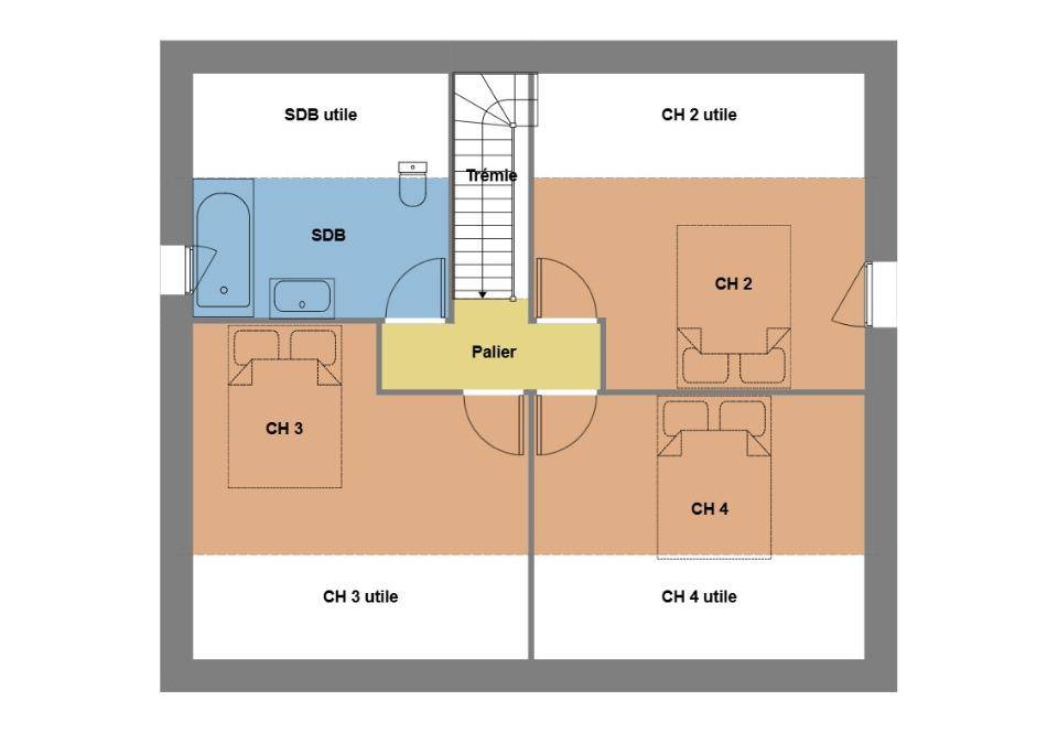
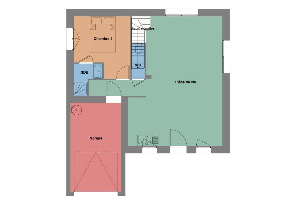
À vendre : située à quelques kilomètres de Rennes, nous sommes heureux de vous proposer cette maison de 5 pièces de 100 m² et de 453 m² de terrain idéalement située dans Bourg-des-Comptes (35890). Son intérieur offre quatre chambres, une cuisine et deux salles de bains.
C'est une maison de 2 niveaux. Elle est neuve.
Cette maison se situe dans un secteur convoité. On trouve l'École Primaire Publique les Rondines et l'École Primaire Privée Notre Dame à moins de 10 minutes à pied et une crèche. Niveau transports en commun, il y a quatre gares à moins de 10 minutes en voiture. La nationale N137 est accessible à 5 km. On trouve un tennis, un supermarché, une boulangerie, deux commerces et une boucherie-charcuterie dans les environs.
Son prix de vente est de 240 900 €.
Contactez Dimitri MESAS ((Numéro supprimé)) pour tout renseignement sur la maison ou sur les démarches à suivre. Donnez vie à vos projets immobiliers avec Maisons de l'Avenir Cesson-Sévigné.
Logement susceptibles de vous intéresser
Nous vous proposons de découvrir aussi cette sélection de logements situés à moins de 10km de Bourg-des-Comptes et qui seraient susceptibles de vous intéresser.
Chanteloup
TERRAIN ET MAISONÀ vendre terrain constructible de 409 m², entièrement viabilisé (eau, électricité, assainissement), situé sur la commune de Chanteloup. Environnement calme et résidentiel, proche des commerces, écoles et transports. Idéal pour la construction d’une maison individuelle. Plongez dans un intérieur où luminosité et espace s'harmonisent parfaitement pour créer un cadre de vie accueillant et chaleureux. Dès l’entrée, la sensation d’ouverture vous invite à découvrir un vaste espace de vie, où la cuisine, moderne et conviviale, se prolonge naturellement vers un salon agréable et une salle à manger propice aux moments de partage. Côté nuit, les chambres offrent un véritable cocon de tranquillité, pensées pour conjuguer intimité et confort. L’agencement soigné garantit une circulation fluide entre les différents espaces, tandis que des rangements astucieux optimisent chaque recoin pour une organisation parfaite. L’extérieur prolonge cet art de vivre avec un espace idéal pour se détendre ou recevoir, à aménager selon vos envies. Une maison où chaque détail a été pensé pour vous offrir un quotidien serein et harmonieux. Pour vous assurer un confort de vie et conformément à la RE2025, nous avons choisi un mode de chauffage par PAC + plancher chauffant, volets roulants électriques. Prix hors peinture, décoration, revêtements de sol dans les chambres, cuisine équipée, frais de notaire, raccordements, dommage ouvrage. // Réf. : 2655-213658-ALT. Prix terrain : 84 000 €, hors frais d'agence à la charge de l'acquéreur. Ce terrain vous est proposé, par nos partenaires fonciers, dans le cadre d'un projet de construction avec nous. Les informations sur les risques auxquels ce bien est exposé sont disponibles sur le site Géorisques (www.georisques.gouv.fr). Prix maison : 176 161 €.
Chanteloup
TERRAINÀ vendre terrain constructible de 409 m², entièrement viabilisé (eau, électricité, assainissement), situé sur la commune de Chanteloup. Environnement calme et résidentiel, proche des commerces, écoles et transports. Idéal pour la construction d’une maison individuelle. // Réf. : T213658. Prix terrain : 84 000 €, hors frais d'agence et de notaire à la charge de l'acquéreur. Ce terrain vous est proposé, par nos partenaires fonciers, dans le cadre d'un projet de construction avec nous. Les informations sur les risques auxquels ce bien est exposé sont disponibles sur le site Géorisques (www.georisques.gouv.fr).
Chanteloup
TERRAINÀ vendre terrain constructible de 409 m², entièrement viabilisé (eau, électricité, assainissement), situé sur la commune de Chanteloup. Environnement calme et résidentiel, proche des commerces, écoles et transports. Idéal pour la construction d’une maison individuelle. // Réf. : T213658. Prix terrain : 84 000 €, hors frais d'agence et de notaire à la charge de l'acquéreur. Ce terrain vous est proposé, par nos partenaires fonciers, dans le cadre d'un projet de construction avec nous. Les informations sur les risques auxquels ce bien est exposé sont disponibles sur le site Géorisques (www.georisques.gouv.fr).
Chanteloup
TERRAIN ET MAISONÀ vendre terrain constructible de 409 m², entièrement viabilisé (eau, électricité, assainissement), situé sur la commune de Chanteloup. Environnement calme et résidentiel, proche des commerces, écoles et transports. Idéal pour la construction d’une maison individuelle. Cette maison allie modernité, fonctionnalité et élégance pour offrir un cadre de vie chaleureux et harmonieux. Son agencement optimisé permet à chaque membre de la famille de profiter d’un espace bien pensé, où confort et praticité se rencontrent. Avec quatre chambres accueillantes, une grande pièce de vie lumineuse, une salle de bain moderne et un cellier pratique, elle répond parfaitement aux besoins du quotidien. Son espace de vie convivial invite aux moments de partage, tandis que ses finitions soignées et son système de chauffage performant assurent un bien-être optimal en toute saison. Son architecture contemporaine et son aménagement astucieux en font un véritable cocon, où il fait bon vivre jour après jour. Pour vous assurer un confort de vie et conformément à la RE2025, nous avons choisi un mode de chauffage par PAC + plancher chauffant, volets roulants électriques. Prix hors peinture, décoration, revêtements de sol dans les chambres, cuisine équipée, frais de notaire, raccordements, dommage ouvrage. // Réf. : 2645-213658-ALT. Prix terrain : 84 000 €, hors frais d'agence à la charge de l'acquéreur. Ce terrain vous est proposé, par nos partenaires fonciers, dans le cadre d'un projet de construction avec nous. Les informations sur les risques auxquels ce bien est exposé sont disponibles sur le site Géorisques (www.georisques.gouv.fr). Prix maison : 171 811 €.
Chanteloup
TERRAIN ET MAISONÀ vendre terrain constructible de 409 m², entièrement viabilisé (eau, électricité, assainissement), situé sur la commune de Chanteloup. Environnement calme et résidentiel, proche des commerces, écoles et transports. Idéal pour la construction d’une maison individuelle. Succombez au charme de cette maison moderne et lumineuse, pensée pour allier confort et optimisation des espaces. Son vaste espace de vie baigné de lumière invite à la convivialité et s’adapte à votre mode de vie. Côté nuit, chacun profite de son intimité avec 3 belles chambres, dont une suite parentale avec dressing et salle d’eau privée. Une salle de bain supplémentaire et un cellier viennent compléter cet agencement idéal pour un quotidien fluide et pratique. Avec son architecture contemporaine et ses finitions soignées, cette maison est entièrement personnalisable pour répondre à toutes vos envies. Pour un confort optimal et conforme à la RE2025, cette maison dispose d’une PAC avec plancher chauffant et volets roulants électriques. À noter : Le prix indiqué exclut les revêtements de sol des chambres, la cuisine aménagée, la peinture, la décoration, les raccordements, les frais de notaire et l’assurance dommages-ouvrage. (Piscine non contractuelle, non comprise dans le prix)). Imaginez votre futur chez-vous, contactez-nous dès aujourd’hui !. // Réf. : 541-213658-ALT. Prix terrain : 84 000 €, hors frais d'agence à la charge de l'acquéreur. Ce terrain vous est proposé, par nos partenaires fonciers, dans le cadre d'un projet de construction avec nous. Les informations sur les risques auxquels ce bien est exposé sont disponibles sur le site Géorisques (www.georisques.gouv.fr). Prix maison : 251 997 €.
Guichen
TERRAIN ET MAISONMaison de 5 pièces (102 m²) à vendre à GuichenIDÉALEMENT SITUÉE – MAISON 5 PIÈCES NEUVEÀ vendre : localisée à quelques kilomètres de Rennes, Maisons de l’Avenir Cesson-Sévigné vous présente, idéalement située dans Guichen (35580), cette maison de 5 pièces de 102 m² et de 350 m² de terrain. Elle compte quatre chambres, une cuisine et deux salles de bains.C’est une maison de 2 niveaux. Elle est neuve.La maison est située dans un secteur prisé. On trouve quatre établissements scolaires à moins de 10 minutes à pied. Côté transports en commun, il y a cinq gares à moins de 10 minutes en voiture. On trouve un accès à la nationale N137 à 8 km. On trouve une bibliothèque, un tennis, quatre boulangeries, des commerces, une supérette, un bureau de poste et une boucherie-charcuterie à proximité.Son prix de vente est de 260 000 €.Contactez notre agence (Dimitri MESAS : (Numéro supprimé)) pour toute question sur la maison. Maisons de l’Avenir Cesson-Sévigné est là pour vous accompagner dans tous vos projets immobiliers.
Guichen
TERRAIN ET MAISONGuichen : maison de 3 pièces (65 m²) à vendreIDÉALEMENT SITUÉE – MAISON 3 PIÈCES NEUVEÀ vendre à 19 km de Rennes, découvrez cette maison de 3 pièces de 65 m² avec vue sur jardin idéalement située dans Guichen (35580). Son intérieur est composé de deux chambres, d’une cuisine et d’une salle de bains.Le terrain de la propriété s’étend sur 350 m².C’est une maison de plain-pied. Elle est neuve.La maison se situe dans un secteur convoité. Quatre établissements scolaires sont implantés à moins de 10 minutes à pied. Côté transports, on trouve cinq gares à moins de 10 minutes en voiture. On trouve un accès à la nationale N137 à 8 km. Il y a une bibliothèque, un tennis, quatre boulangeries, des commerces, une boucherie-charcuterie, un bureau de poste et une supérette dans les environs.Elle est à vendre pour la somme de 216 700 €.Contactez notre agence (Dimitri MESAS : (Numéro supprimé)) pour tout renseignement sur la maison, sur les démarches à suivre et sur les modalités de vente. Maisons de l’Avenir Cesson-Sévigné vous accompagne à toutes les étapes de l’achat et dans tous vos projets immobiliers.
Chanteloup
TERRAIN ET MAISONVENTE d’une maison de 5 pièces (110 m²) à ChanteloupIDÉALEMENT SITUÉE – MAISON 5 PIÈCES NEUVEEn vente : localisée à deux pas de Rennes, nous sommes heureux de vous présenter cette maison de 5 pièces de 110 m² idéalement située dans Chanteloup (35150). Elle inclut quatre chambres, une cuisine et deux salles de bains.Le terrain du bien s’étend sur 261 m².Il s’agit d’une maison de 2 niveaux. Elle est neuve.Ce bien se situe dans un secteur prisé. L’École Primaire Publique Lucie Aubrac est implantée à moins de 10 minutes à pied, tout comme une crèche. Niveau transports en commun, on trouve quatre gares à moins de 10 minutes en voiture. La nationale N137 est accessible à 6 km. Il y a une boulangerie à quelques minutes.Il est proposé à l’achat pour 295 000 €.Prenez contact avec notre agence (MESAS Dimitri : (Numéro supprimé)) pour obtenir de plus amples informations sur la maison ou sur les modalités de vente. Maisons de l’Avenir Cesson-Sévigné est là pour vous accompagner dans toutes vos démarches.
Guichen
TERRAINTerrain de 350 m² en vente à GuichenIDÉALEMENT SITUÉ – PROCHE DE RENNESÀ vendre à quelques kilomètres de Rennes à Guichen (35580), terrain de 350 m². Il est prêt à accueillir votre projet immobilier pour toute la famille. Ce terrain, avec une exposition sud, donne sur un jardin. Ce terrain se situe dans un quartier recherché. Quatre établissements scolaires se trouvent à moins de 10 minutes à pied. Niveau transports en commun, il y a cinq gares à moins de 10 minutes en voiture. La nationale N137 est accessible à 8 km. On trouve une bibliothèque, un tennis, quatre boulangeries, des commerces, un bureau de poste, une supérette et une boucherie-charcuterie dans les environs.Il est proposé à l’achat pour 77 350 €. Contactez Dimitri MESAS (tél : (Numéro supprimé)) pour obtenir de plus amples informations sur le terrain ou sur les modalités de vente. Concrétisez vos projets immobiliers avec Maisons de l’Avenir Cesson-Sévigné.
L’actualité immobilière à Bourg-des-Comptes
27/11/2023
02/11/2023
30/10/2023
20/10/2023
16/10/2023
16/10/2023