Maison à construire à Déols (36130)
Images
Description
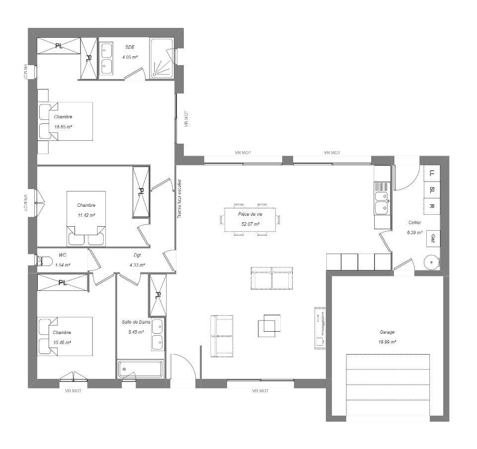
VENTE : maison T4 (110 m²) à Déols
Idéalement située - Maison neuve 4 pièces à vendre à Déols (36130) avec une surface de 110 m² et de 527 m² de terrain. Son intérieur se divise en trois chambres, une cuisine et deux salles de bains.
Proche gare (Châteauroux), établissements scolaires, tennis, bassin de natation, boulangeries, commerces, supermarché, bureau de poste et boucheries-charcuteries. Autoroute A20 et nationale N151 à 3 km. Châteauroux à 4 km.
Cette maison de 4 pièces est proposée à l'achat pour 239 750 €.
Contactez notre agence (Kevin GRIMAUD : (Numéro supprimé)) pour toute question sur la maison ou sur les démarches à suivre. Maisons Bruno Petit MJB Châteauroux vous accompagne dans tous vos projets immobiliers et à toutes les étapes de votre projet.
Logement susceptibles de vous intéresser
Nous vous proposons de découvrir aussi cette sélection de logements situés à moins de 10km de Déols et qui seraient susceptibles de vous intéresser.
Saint-Maur
TERRAIN ET MAISONSaint-Maur : maison de 4 pièces (85 m²) en venteEmplacement privilégié – À vendre à Saint-Maur (36250) : maison neuve 4 pièces de 85 m² sur un terrain de 1 413 m². Elle offre trois chambres, une cuisine et une salle de bains.À dix minutes : gares (Châteauroux et Luant), écoles, tennis, commerces, boulangerie et boucherie-charcuterie. Accès autoroute A20 et nationale N151 à 7 km. Châteauroux à 6 km.Cette maison de 4 pièces est proposée à l’achat pour 194 100 €.Contactez Kevin GRIMAUD (tél : (Numéro supprimé)) pour toute information sur la maison ou sur les modalités de vente.
Déols
TERRAIN ET MAISONVENTE d’une maison F3 (70 m²) à DéolsIdéalement située – À découvrir à Déols (36130) : maison neuve 3 pièces en vente, 70 m² de surface et 527 m² de terrain. Elle compte deux chambres, une cuisine et une salle de bains.Proche gare (Châteauroux), établissements scolaires, tennis, bassin de natation, boulangeries, commerces, supermarché, boucheries-charcuteries et bureau de poste. Autoroute A20 et nationale N151 accessibles à 3 km. Châteauroux à 4 km.Le prix de vente de cette maison de 3 pièces est de 164 250 €.Contactez notre agence (GRIMAUD Kevin : (Numéro supprimé)) pour obtenir de plus amples informations sur la maison.
Vineuil
TERRAIN ET MAISONVENTE d’une maison F4 (95 m²) à VineuilProche de Châteauroux – À découvrir à Vineuil (36110) : maison neuve 4 pièces à vendre. Surface de 95 m² sur 4 700 m² de terrain. Elle comporte trois chambres, une cuisine et deux salles de bains.Proche École Primaire des Vignes-R. Vincent, tennis et boulangerie. Autoroute A20 et nationale N151 à 10 km.Le prix de vente de cette maison de 4 pièces est de 214 000 €.Prenez contact avec notre agence (Franck RUBIO : (Numéro supprimé)) pour toute information sur la maison. Maisons Bruno Petit MJB Châteauroux est là pour vous accompagner dans toutes vos démarches.
Saint-Maur
TERRAIN ET MAISONVENTE d’une maison de 6 pièces (120 m²) à Saint-MaurEmplacement privilégié – Maison neuve 6 pièces à vendre à Saint-Maur (36250) avec une surface de 120 m² et de 1 413 m² de terrain. Elle comporte quatre chambres, une cuisine et deux salles de bains.À dix minutes : gares (Châteauroux et Luant), écoles, tennis, commerces, boulangerie et boucherie-charcuterie. Accès autoroute A20 et nationale N151 à 7 km. Châteauroux à 6 km.Cette maison de 6 pièces est proposée à l’achat pour 305 000 €.Contactez Kevin GRIMAUD ((Numéro supprimé)) pour plus de renseignements sur la maison ou sur les démarches à suivre. Donnez vie à vos projets immobiliers avec Maisons Bruno Petit MJB Châteauroux.
Déols
TERRAIN ET MAISONVENTE : maison T4 (110 m²) à DéolsIdéalement située – Maison neuve 4 pièces à vendre à Déols (36130) avec une surface de 110 m² et de 527 m² de terrain. Son intérieur se divise en trois chambres, une cuisine et deux salles de bains.Proche gare (Châteauroux), établissements scolaires, tennis, bassin de natation, boulangeries, commerces, supermarché, bureau de poste et boucheries-charcuteries. Autoroute A20 et nationale N151 à 3 km. Châteauroux à 4 km.Cette maison de 4 pièces est proposée à l’achat pour 239 750 €.Contactez notre agence (Kevin GRIMAUD : (Numéro supprimé)) pour toute question sur la maison ou sur les démarches à suivre. Maisons Bruno Petit MJB Châteauroux vous accompagne dans tous vos projets immobiliers et à toutes les étapes de votre projet.
Châteauroux
TERRAIN ET MAISONVENTE d’une maison T4 (110 m²) à ChâteaurouxEmplacement privilégié – À vendre à Châteauroux (36000) : maison neuve 4 pièces de 110 m² sur un terrain de 2 300 m². Son intérieur offre trois chambres, une cuisine et deux salles de bains.À dix minutes : gare (Châteauroux), établissements scolaires, crèche, bibliothèque, boulangeries, commerces, supermarchés, épiceries et bureau de poste. Autoroute A20 et nationale N151 à 5 km.Cette maison de 4 pièces est à vendre pour la somme de 271 400 €.Contactez Franck RUBIO ((Numéro supprimé)) pour toute question sur la maison de plain-pied ou sur les démarches à suivre. Maisons Bruno Petit MJB Châteauroux est là pour vous accompagner dans tous vos projets immobiliers.
Saint-Maur
TERRAIN ET MAISONMaison T4 (130 m²) à vendre sur la commune de Saint-MaurEmplacement privilégié – Maison neuve 4 pièces en vente à Saint-Maur (36250) avec 2 niveaux, une surface de 130 m² sur un terrain de 1 413 m². Elle offre quatre chambres, une cuisine et deux salles de bains.Proche gares (Châteauroux et Luant), écoles, tennis, commerces, boulangerie et boucherie-charcuterie. Autoroute A20 et nationale N151 accessibles à 7 km. Châteauroux à 6 km.Le prix de vente de cette maison de 4 pièces est de 350 000 €.N’hésitez pas à prendre contact avec Kevin GRIMAUD ((Numéro supprimé)) pour plus de renseignements sur la maison, sur les modalités de vente ou sur les démarches à suivre. Maisons Bruno Petit MJB Châteauroux est là pour vous accompagner à toutes les étapes de votre projet.
Saint-Maur
TERRAIN ET MAISONMaison T4 (110 m²) à vendre à Saint-MaurEmplacement privilégié – Sur la commune de Saint-Maur (36250), maison neuve à vendre de 4 pièces, 110 m² de surface sur 1 413 m² de terrain. Son intérieur compte trois chambres, une cuisine et deux salles de bains.À proximité : gares (Châteauroux et Luant), écoles, tennis, commerces, boulangerie et boucherie-charcuterie. Autoroute A20 et nationale N151 à 7 km. Châteauroux à 6 km.Le prix de vente de cette maison de 4 pièces est de 340 000 €.Contactez Kevin GRIMAUD (tél : (Numéro supprimé)) pour toute information sur la maison de plain-pied ou sur les démarches à suivre.
Déols
TERRAIN ET MAISONDéols : maison F4 (108 m²) en venteIdéalement située – À vendre à Déols (36130) : maison neuve 4 pièces de 108 m² et de 527 m² de terrain. Son intérieur se divise en quatre chambres, une cuisine et deux salles de bains.À proximité : gare (Châteauroux), établissements scolaires, tennis, bassin de natation, boulangeries, commerces, supermarché, épicerie et bureau de poste. Autoroute A20 et nationale N151 à 3 km. Châteauroux à 4 km.Le prix de vente de cette maison de 4 pièces est de 222 150 €.Contactez Kevin GRIMAUD (tél : (Numéro supprimé)) pour toute question sur la maison ou sur les modalités de vente.
L’actualité immobilière à Déols
27/11/2023
02/11/2023
30/10/2023
20/10/2023
16/10/2023
16/10/2023