Maison à construire à Saint-Maur (36250)
Images
Description
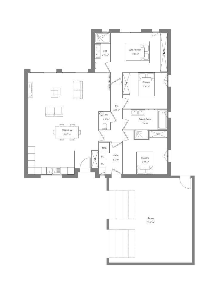
Maison T4 (110 m²) à vendre à Saint-Maur
Emplacement privilégié - Sur la commune de Saint-Maur (36250), maison neuve à vendre de 4 pièces, 110 m² de surface sur 1 413 m² de terrain. Son intérieur compte trois chambres, une cuisine et deux salles de bains.
À proximité : gares (Châteauroux et Luant), écoles, tennis, commerces, boulangerie et boucherie-charcuterie. Autoroute A20 et nationale N151 à 7 km. Châteauroux à 6 km.
Le prix de vente de cette maison de 4 pièces est de 340 000 €.
Contactez Kevin GRIMAUD (tél : (Numéro supprimé)) pour toute information sur la maison de plain-pied ou sur les démarches à suivre.
Logement susceptibles de vous intéresser
Nous vous proposons de découvrir aussi cette sélection de logements situés à moins de 10km de Saint-Maur et qui seraient susceptibles de vous intéresser.
Saint-Maur
TERRAIN ET MAISONSaint-Maur : maison de 4 pièces (85 m²) en venteEmplacement privilégié – À vendre à Saint-Maur (36250) : maison neuve 4 pièces de 85 m² sur un terrain de 1 413 m². Elle offre trois chambres, une cuisine et une salle de bains.À dix minutes : gares (Châteauroux et Luant), écoles, tennis, commerces, boulangerie et boucherie-charcuterie. Accès autoroute A20 et nationale N151 à 7 km. Châteauroux à 6 km.Cette maison de 4 pièces est proposée à l’achat pour 194 100 €.Contactez Kevin GRIMAUD (tél : (Numéro supprimé)) pour toute information sur la maison ou sur les modalités de vente.
Déols
TERRAIN ET MAISONVENTE d’une maison F3 (70 m²) à DéolsIdéalement située – À découvrir à Déols (36130) : maison neuve 3 pièces en vente, 70 m² de surface et 527 m² de terrain. Elle compte deux chambres, une cuisine et une salle de bains.Proche gare (Châteauroux), établissements scolaires, tennis, bassin de natation, boulangeries, commerces, supermarché, boucheries-charcuteries et bureau de poste. Autoroute A20 et nationale N151 accessibles à 3 km. Châteauroux à 4 km.Le prix de vente de cette maison de 3 pièces est de 164 250 €.Contactez notre agence (GRIMAUD Kevin : (Numéro supprimé)) pour obtenir de plus amples informations sur la maison.
Saint-Maur
TERRAIN ET MAISONVENTE d’une maison de 6 pièces (120 m²) à Saint-MaurEmplacement privilégié – Maison neuve 6 pièces à vendre à Saint-Maur (36250) avec une surface de 120 m² et de 1 413 m² de terrain. Elle comporte quatre chambres, une cuisine et deux salles de bains.À dix minutes : gares (Châteauroux et Luant), écoles, tennis, commerces, boulangerie et boucherie-charcuterie. Accès autoroute A20 et nationale N151 à 7 km. Châteauroux à 6 km.Cette maison de 6 pièces est proposée à l’achat pour 305 000 €.Contactez Kevin GRIMAUD ((Numéro supprimé)) pour plus de renseignements sur la maison ou sur les démarches à suivre. Donnez vie à vos projets immobiliers avec Maisons Bruno Petit MJB Châteauroux.
Déols
TERRAIN ET MAISONVENTE : maison T4 (110 m²) à DéolsIdéalement située – Maison neuve 4 pièces à vendre à Déols (36130) avec une surface de 110 m² et de 527 m² de terrain. Son intérieur se divise en trois chambres, une cuisine et deux salles de bains.Proche gare (Châteauroux), établissements scolaires, tennis, bassin de natation, boulangeries, commerces, supermarché, bureau de poste et boucheries-charcuteries. Autoroute A20 et nationale N151 à 3 km. Châteauroux à 4 km.Cette maison de 4 pièces est proposée à l’achat pour 239 750 €.Contactez notre agence (Kevin GRIMAUD : (Numéro supprimé)) pour toute question sur la maison ou sur les démarches à suivre. Maisons Bruno Petit MJB Châteauroux vous accompagne dans tous vos projets immobiliers et à toutes les étapes de votre projet.
Châteauroux
TERRAIN ET MAISONVENTE d’une maison T4 (110 m²) à ChâteaurouxEmplacement privilégié – À vendre à Châteauroux (36000) : maison neuve 4 pièces de 110 m² sur un terrain de 2 300 m². Son intérieur offre trois chambres, une cuisine et deux salles de bains.À dix minutes : gare (Châteauroux), établissements scolaires, crèche, bibliothèque, boulangeries, commerces, supermarchés, épiceries et bureau de poste. Autoroute A20 et nationale N151 à 5 km.Cette maison de 4 pièces est à vendre pour la somme de 271 400 €.Contactez Franck RUBIO ((Numéro supprimé)) pour toute question sur la maison de plain-pied ou sur les démarches à suivre. Maisons Bruno Petit MJB Châteauroux est là pour vous accompagner dans tous vos projets immobiliers.
Saint-Maur
TERRAIN ET MAISONMaison T4 (130 m²) à vendre sur la commune de Saint-MaurEmplacement privilégié – Maison neuve 4 pièces en vente à Saint-Maur (36250) avec 2 niveaux, une surface de 130 m² sur un terrain de 1 413 m². Elle offre quatre chambres, une cuisine et deux salles de bains.Proche gares (Châteauroux et Luant), écoles, tennis, commerces, boulangerie et boucherie-charcuterie. Autoroute A20 et nationale N151 accessibles à 7 km. Châteauroux à 6 km.Le prix de vente de cette maison de 4 pièces est de 350 000 €.N’hésitez pas à prendre contact avec Kevin GRIMAUD ((Numéro supprimé)) pour plus de renseignements sur la maison, sur les modalités de vente ou sur les démarches à suivre. Maisons Bruno Petit MJB Châteauroux est là pour vous accompagner à toutes les étapes de votre projet.
Saint-Maur
TERRAIN ET MAISONMaison T4 (110 m²) à vendre à Saint-MaurEmplacement privilégié – Sur la commune de Saint-Maur (36250), maison neuve à vendre de 4 pièces, 110 m² de surface sur 1 413 m² de terrain. Son intérieur compte trois chambres, une cuisine et deux salles de bains.À proximité : gares (Châteauroux et Luant), écoles, tennis, commerces, boulangerie et boucherie-charcuterie. Autoroute A20 et nationale N151 à 7 km. Châteauroux à 6 km.Le prix de vente de cette maison de 4 pièces est de 340 000 €.Contactez Kevin GRIMAUD (tél : (Numéro supprimé)) pour toute information sur la maison de plain-pied ou sur les démarches à suivre.
Déols
TERRAIN ET MAISONDéols : maison F4 (108 m²) en venteIdéalement située – À vendre à Déols (36130) : maison neuve 4 pièces de 108 m² et de 527 m² de terrain. Son intérieur se divise en quatre chambres, une cuisine et deux salles de bains.À proximité : gare (Châteauroux), établissements scolaires, tennis, bassin de natation, boulangeries, commerces, supermarché, épicerie et bureau de poste. Autoroute A20 et nationale N151 à 3 km. Châteauroux à 4 km.Le prix de vente de cette maison de 4 pièces est de 222 150 €.Contactez Kevin GRIMAUD (tél : (Numéro supprimé)) pour toute question sur la maison ou sur les modalités de vente.
Déols
TERRAIN ET MAISONDéols : maison de 5 pièces (130 m²) en venteIdéalement située – À Déols (36130), maison neuve à vendre de 5 pièces, 130 m² de surface et 527 m² de terrain. Conçue de plain-pied, elle dispose de quatre chambres, d’une cuisine et de deux salles de bains.À proximité : gare (Châteauroux), établissements scolaires, tennis, bassin de natation, boulangeries, commerces, supermarché, épicerie et boucheries-charcuteries. Autoroute A20 et nationale N151 accessibles à 3 km. Châteauroux à 4 km.Cette maison de 5 pièces est proposée à l’achat pour 266 870 €.Contactez notre agence (Kevin GRIMAUD : (Numéro supprimé)) pour tout renseignement sur la maison de plain-pied, sur les démarches à suivre ou sur les modalités de vente. Maisons Bruno Petit MJB Châteauroux est là pour vous accompagner à toutes les étapes de l’achat.
L’actualité immobilière à Saint-Maur
27/11/2023
02/11/2023
30/10/2023
20/10/2023
16/10/2023
16/10/2023