Terrain et maison à vendre à Druye (37190)
Druye
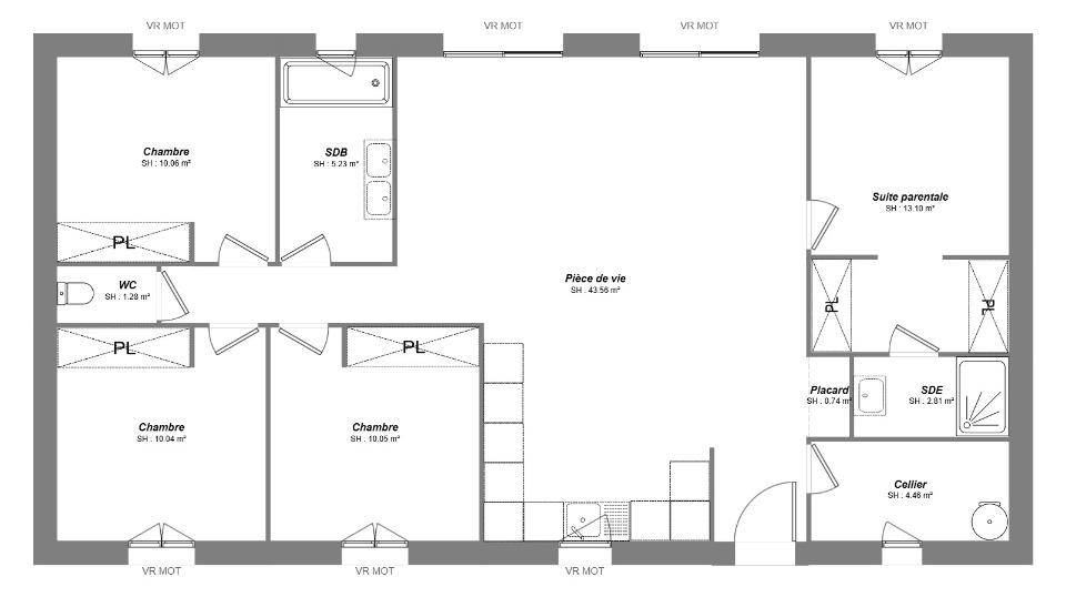
TERRAIN ET MAISONTerrain à bâtir – Druye (37190)80 000 € – 402 m² – Viabilisé. Terrain viabilisé de 402 m², plat et bien exposé, situé dans un quartier résidentiel calme. La commune de Druye dispose d’écoles, de commerces et de services de proximité. Accès rapide vers Ballan-Miré et Tours, idéal pour un cadre de vie paisible à quelques minutes de la ville. Cette maison de plain-pied en L, fonctionnelle et spacieuse vous propose un bel espace de vie lumineux et traversant. Sa cuisine est ouverte sur le séjour et a un accès direct au cellier. Son espace nuit est composé de trois belles chambres dont une suite parentale avec dressing et salle de bain privative, une deuxième salle de bains équipé ainsi que des wc séparés. Pour vous assurer un confort de vie et conformément à la RE2025, nous avons choisi un mode de chauffage par PAC + plancher chauffant, volets roulants électriques. Prix hors fourniture et pose : des appareils sanitaires (sauf système de chauffage et d'eau chaude sanitaire), du carrelage et de la faïence, des revêtements de sol dans les chambres. Hors décoration et aménagement intérieur et peinture. Hors raccordements, frais de notaire et dommage ouvrage. // Réf. : 784-211142-MGA. Prix terrain : 80 000 €, hors frais d'agence à la charge de l'acquéreur. Ce terrain vous est proposé, par nos partenaires fonciers, dans le cadre d'un projet de construction avec nous. Les informations sur les risques auxquels ce bien est exposé sont disponibles sur le site Géorisques (www.georisques.gouv.fr). Prix maison : 136 813 €.
Druye
TERRAIN ET MAISONTerrain à bâtir – Druye (37190)80 000 € – 402 m² – Viabilisé. Terrain viabilisé de 402 m², plat et bien exposé, situé dans un quartier résidentiel calme. La commune de Druye dispose d’écoles, de commerces et de services de proximité. Accès rapide vers Ballan-Miré et Tours, idéal pour un cadre de vie paisible à quelques minutes de la ville. Fonctionnelle et bien distribuée, La maison CRETE saura vous séduire par ses espaces. Son hall d'entrée ouvre sur un bureau, des wc et une pièce de vie avec cuisine à l'américaine aménagée ayant un accès direct au cellier. Son espace nuit est composé de 3 chambres avec rangement et une salle de bains équipée, dissociées de l'espace bureau. Pour vous assurer un confort de vie et conformément à la RE2025, nous avons choisi un mode de chauffage par PAC + plancher chauffant, volets roulants électriques. Prix hors fourniture et pose : des appareils sanitaires (sauf système de chauffage et d'eau chaude sanitaire), du carrelage et de la faïence, des revêtements de sol dans les chambres. Hors décoration et aménagement intérieur et peinture. Hors raccordements, frais de notaire et dommage ouvrage. // Réf. : 766-211142-MGA. Prix terrain : 80 000 €, hors frais d'agence à la charge de l'acquéreur. Ce terrain vous est proposé, par nos partenaires fonciers, dans le cadre d'un projet de construction avec nous. Les informations sur les risques auxquels ce bien est exposé sont disponibles sur le site Géorisques (www.georisques.gouv.fr). Prix maison : 129 789 €.
Druye
TERRAIN ET MAISONTerrain à bâtir – Druye (37190)80 000 € – 402 m² – Viabilisé. Terrain viabilisé de 402 m², plat et bien exposé, situé dans un quartier résidentiel calme. La commune de Druye dispose d’écoles, de commerces et de services de proximité. Accès rapide vers Ballan-Miré et Tours, idéal pour un cadre de vie paisible à quelques minutes de la ville. Charmante maison de plain-pied spacieuse et stylée. Son entrée est couverte par un porche, qui ouvre sur la pièce de vie de 40 m² environ. L’espace jour et l’espace nuit ont été optimisés par notre bureau d’études. Côté nuit, 3 chambres avec rangement, une salle de bains. Ses jeux d'enduits personnalisables sauront vous séduire. Pour vous assurer un confort de vie et conformément à la RE2025, nous avons choisi un mode de chauffage par PAC + plancher chauffant, volets roulants électriques. Prix hors fourniture et pose : des appareils sanitaires (sauf système de chauffage et d'eau chaude sanitaire), du carrelage et de la faïence, des revêtements de sol dans les chambres. Hors décoration et aménagement intérieur et peinture. Hors raccordements, frais de notaire et dommage ouvrage. Préau en option. // Réf. : 1047-211142-MGA. Prix terrain : 80 000 €, hors frais d'agence à la charge de l'acquéreur. Ce terrain vous est proposé, par nos partenaires fonciers, dans le cadre d'un projet de construction avec nous. Les informations sur les risques auxquels ce bien est exposé sont disponibles sur le site Géorisques (www.georisques.gouv.fr). Prix maison : 117 184 €.
Druye
TERRAIN ET MAISONA 5 minutes de Ballan-Miré, proche accès A85, terrain entièrement viabilisé dans un secteur calme et résidentiel. Un premier achat sans compromis ! Vous cherchez une maison moderne, fonctionnelle et accessible ? Ce modèle de 87 m² est idéal pour une première acquisition ! Son grand espace de vie de 45 m², baigné de lumière, offre une pièce centrale chaleureuse et conviviale. Côté nuit, 3 chambres bien agencées garantissent confort et intimité. Un garage attenant et un cellier pratique viennent compléter cet ensemble pensé pour un quotidien fluide et agréable. Facile à personnaliser, évolutive et pensée pour durer, cette maison coche toutes les cases !. Premier achat, premier projet… Prêts à vous lancer ? . Pour un confort optimal et conforme à la RE2025, cette maison dispose d’une PAC avec plancher chauffant et volets roulants électriques. À noter : Le prix indiqué exclut les revêtements de sol des chambres, la cuisine aménagée, la peinture, la décoration, les raccordements, les frais de notaire et l’assurance dommages-ouvrage. // Réf. : 31-210627-JFB. Prix terrain : 69 000 €, hors frais d'agence à la charge de l'acquéreur. Ce terrain vous est proposé, par nos partenaires fonciers, dans le cadre d'un projet de construction avec nous. Les informations sur les risques auxquels ce bien est exposé sont disponibles sur le site Géorisques (www.georisques.gouv.fr). Prix maison : 151 253 €.
Druye
TERRAIN ET MAISONA 5 minutes de Ballan-Miré, proche accès A85, terrain entièrement viabilisé dans un secteur calme et résidentiel. Grande maison familiale moderne – personnalisable selon vos envies ! Laissez-vous séduire par cette maison lumineuse et spacieuse, offrant 5 chambres, dont une au rez-de-chaussée, 2 salles de bains et un espace de vie généreux de près de 40 m². Pensée pour le confort et la convivialité, elle allie design contemporain et fonctionnalité. Ses volumes optimisés et ses possibilités de personnalisation en font le projet idéal pour votre famille. Pour un confort optimal et conforme à la RE2025, cette maison dispose d’une PAC avec plancher chauffant, radiateurs à l’étage et volets roulants électriques. À noter : Le prix indiqué exclut les revêtements de sol des chambres, la cuisine aménagée, la peinture, la décoration, les raccordements, les frais de notaire et l’assurance dommages-ouvrage. . // Réf. : 6-210627-JFB. Prix terrain : 69 000 €, hors frais d'agence à la charge de l'acquéreur. Ce terrain vous est proposé, par nos partenaires fonciers, dans le cadre d'un projet de construction avec nous. Les informations sur les risques auxquels ce bien est exposé sont disponibles sur le site Géorisques (www.georisques.gouv.fr). Prix maison : 222 537 €.
Druye
TERRAIN ET MAISONA 5 minutes de Ballan-Miré, proche accès A85, terrain entièrement viabilisé dans un secteur calme et résidentiel. Une façade optimisée, une maison qui s’intègre partout ! Avec sa façade pensée pour les terrains étroits, cette maison allie design compact et espaces généreux. Son architecture moderne maximise la lumière et l’ouverture, tout en offrant un intérieur spacieux et fonctionnel. Profitez d’un séjour convivial et lumineux, de 3 belles chambres, d’une salle de bain spacieuse, et d’un garage astucieusement intégré. Chaque détail est optimisé pour un confort absolu. Pour un confort optimal et conforme à la RE2025, cette maison dispose d’une PAC avec plancher chauffant, radiateurs à l’étage et volets roulants électriques. À noter : Le prix indiqué exclut les revêtements de sol des chambres, la cuisine aménagée, la peinture, la décoration, les raccordements, les frais de notaire et l’assurance dommages-ouvrage. Une maison élégante et adaptable – idéale pour donner vie à vos envies !. // Réf. : 25-210627-JFB. Prix terrain : 69 000 €, hors frais d'agence à la charge de l'acquéreur. Ce terrain vous est proposé, par nos partenaires fonciers, dans le cadre d'un projet de construction avec nous. Les informations sur les risques auxquels ce bien est exposé sont disponibles sur le site Géorisques (www.georisques.gouv.fr). Prix maison : 171 558 €.
Druye
TERRAIN ET MAISONNous vous proposons cette maison neuve, baptisée « »Topaze » », un modèle de charme issu de notre gamme Primaciel, conçu pour répondre aux attentes des familles modernes. Avec une superficie de 78 m², cette maison à construire offre un espace de vie optimisé et confortable, idéal pour un premier achat.La Topaze se distingue par son plan en L, offrant une architecture originale et une disposition intérieure fonctionnelle. Ce design permet de séparer judicieusement les espaces de vie et les zones de nuit, garantissant ainsi intimité et convivialité à ses habitants. Le porche d’entrée, élégant et accueillant, mène à un intérieur soigneusement agencé, composé de 4 pièces lumineuses, dont 3 chambres confortables, répondant parfaitement aux besoins d’une famille.L’intégration d’un garage offre non seulement un espace de stationnement sécurisé mais aussi un espace de rangement supplémentaire, essentiel pour une vie de famille organisée. Les options les plus plébiscitées, telles que l’enduit bi-ton et les baies coulissantes, sont disponibles pour personnaliser votre maison selon vos goûts et vos besoins, ajoutant une touche d’élégance et de modernité à votre façade et à votre espace de vie.Construite dans le respect des normes de la RE2020, cette maison basse consommation est un choix responsable, garantissant un confort optimal tout en minimisant votre empreinte écologique. La Topaze est donc une solution d’habitat durable, conçue pour réduire significativement vos factures énergétiques.En choisissant la Topaze, vous optez pour une maison qui allie esthétique, fonctionnalité et respect de l’environnement. Une opportunité à saisir pour les familles en quête d’un foyer chaleureux, durable et à leur image.
Druye
TERRAIN ET MAISONNous vous proposons cette maison neuve, baptisée Univoque, une création qui allie avec brio le design épuré des maisons contemporaines à la chaleur et au confort des constructions traditionnelles. Conçue spécifiquement pour s’adapter aux terrains étroits, Univoque déploie ses 96 m² de surface habitable dans un agencement astucieux en forme de U, optimisant chaque espace disponible.Cette maison de plain-pied se distingue par son clin en bois, qui lui confère un cachet et un raffinement sans pareil, soulignant l’élégance de son architecture moderne. L’intégration d’un garage, non seulement pratique mais également pensé pour s’harmoniser avec l’ensemble de la construction, ajoute une valeur indéniable à ce bien.Univoque offre trois chambres spacieuses, promettant un confort inégalé pour toute la famille. La pièce de vie, cœur battant de la maison, est conçue pour être un espace de partage et de convivialité, baigné de lumière grâce aux baies coulissantes, une des options les plus plébiscitées par nos clients. Ces dernières permettent une transition fluide entre l’intérieur cosy et un extérieur invitant à la détente.Construite dans le respect des normes les plus exigeantes, cette maison est un modèle de basse consommation, conforme à la réglementation environnementale RE2020. Ce choix garantit non seulement un respect de l’environnement mais aussi des économies d’énergie significatives pour ses occupants.Univoque est donc bien plus qu’une maison ; c’est un foyer pensé pour ceux qui rêvent d’un habitat alliant esthétique moderne, fonctionnalité et engagement écologique. Ne laissez pas passer l’opportunité de construire la maison de vos rêves, adaptée à votre style de vie et respectueuse de la planète.
Druye
TERRAIN ET MAISONVoici une belle maison à construire de 101m², comprenant quatre chambres dont une suite parentale. Elle dispose de deux salles de bain pour plus de confort. La grande pièce de vie de plus de 40m² est lumineuse grâce à ses deux baies vitrées. Cette maison allie espace et fonctionnalité pour toute la famille.Je reste disponible pour toutes demandes de renseignements, n’hésitez pas me contacter : Stéphane Digneton : (Numéro supprimé).CONSTRUCTIONS IDEALE DEMEURE a sélectionné avec un partenaire foncier un terrain pour construire cette maison.
Druye
TERRAIN ET MAISONBelle maison traditionnelle de plain pied de 71m² comprenant une grande pièce de vie de 40m², 2 chambres, une salle de bain ainsi qu’un cellier et un WC.Parfait pour un premier achat ou un investissement locatif!Le combles aménageables saura suivre l’évolution de votre famille et celle de vos envies.CONSTRUCTIONS IDEALE DEMEURE a sélectionné avec un partenaire foncier un terrain pour construire cette maison. N »hésitez pas à contacter Stéphane Digneton au (Numéro supprimé) qui se fera une joie de vous présenter un projet terrain + maison en accord avec vos attentes.
Druye
TERRAIN ET MAISONBelle maison traditionnelle de plain pied comprenant 3 chambres, une salle de bain ainsi qu’un cellier et un WC.Parfait pour un premier achat ou un investissement locatif!Le combles aménageables saura suivre l’évolution de votre famille et celle de vos envies.CONSTRUCTIONS IDEALE DEMEURE a sélectionné avec un partenaire foncier un terrain pour construire cette maison. N »hésitez pas à contacter Stéphane Digneton au (Numéro supprimé) qui se fera une joie de vous présenter un projet terrain + maison en accord avec vos attentes.
Druye
TERRAIN ET MAISONDécouvrez une réalisation résolument moderne et luxueuse à travers cette demeure sur mesure. Traditionnelle avec comble aménagé, de grands volumes et une organisation personnelle. Vous accueille sur un grand espace à vivre, baigné de lumière avec ses grandes baies et sa cuisine spacieuse semi ouverte. L’espace nuit en rez de chaussée comprend une suite parentale avec dressing et salle d’eau privative. Un bureau et un wc séparé. A l’étage 2 très belles chambres avec lucarne et leur espace de rangement. Une salle de bain et un wc séparé. Un double garage accolé et un cellier la compose ; Imaginons ensemble la maison qui vous ressemble pour que votre projet prenne vie, contactez dès aujourd’hui Rodolphe MARY au (Numéro supprimé), conseiller technique de l’habitat.CONSTRUCTIONS IDEALE DEMEURE a sélectionné avec un partenaire foncier un terrain pour construire cette maison.
Druye
TERRAIN ET MAISONMaison avec comble aménagée de forme compacte. A l’entrée vous disposez d’un placard de rangement sur un espace à vivre traversant et très lumineux.La cuisine intégré en U avec ses confortables espaces de rangement. Dans l’espace nuit en rez de chaussée on retrouve 1 suite parentale avec sa salle d’eau privative.A l’étage, 3 belles chambres avec ses espaces de rangement, wc séparé et une grande salle de baincomposé d’une baignoire et d’un meuble vasque. Un garage accolé de 15m2 le complète ; Imaginons ensemble la maison qui vous ressemble pour que votre projet prenne vie, contactez dès aujourd’hui Rodolphe MARY au (Numéro supprimé), conseiller technique de l’habitat.CONSTRUCTIONS IDEALE DEMEURE a sélectionné avec un partenaire foncier un terrain pour construire cette maison.
Druye
TERRAIN ET MAISONMaison avec comble à aménager avec décroché. A l’entrée vous disposez d’un placard de rangement avec un wc séparé. Un espace à vivre lumineux.La cuisine intégré en U avec ses espaces de rangement. Dans l’espace nuit en rez de chaussée on retrouve 3 chambres dont 1 suite parentale avec sa salle d’eau privative. Une salle de bain avec un deuxième wc.A l’étage, un grand espace à imaginer et à concevoir pour votre futur agrandissement. Un garage intégré et un cellier la compose ; Imaginons ensemble la maison qui vous ressemble pour que votre projet prenne vie, contactez dès aujourd’hui Rodolphe MARY au (Numéro supprimé), conseiller technique de l’habitat.CONSTRUCTIONS IDEALE DEMEURE a sélectionné avec un partenaire foncier un terrain pour construire cette maison.
Druye
TERRAIN ET MAISONMaison avec comble aménagé de forme compacte, avec son décroché et son Porche qui lui donne son style.A l’entrée vous disposez d’un placard de rangement avec un escalier en quart tournant. L’espace est bien pensé pour laisser apparaitre une suite parentale avec sa salle d’eau privative. l’ espace à vivre est traversant et très lumineux.La cuisine est intégrée et donne acces à son cellier. A l’étage on retrouve 2 belles chambres avec ses espaces de rangement, wc séparé et une grande salle d’eaucomposé d’une douche et d’un meuble vasque. Un garage accolé de 15m2 le complète;Imaginons ensemble la maison qui vous ressemble pour que votre projet prenne vie, contactez dès aujourd’hui Rodolphe MARY au (Numéro supprimé), conseiller technique de l’habitat.CONSTRUCTIONS IDEALE DEMEURE a sélectionné avec un partenaire foncier un terrain pour construire cette maison.
Druye
TERRAIN ET MAISONNous vous proposons cette maison neuve, baptisée Atrium, en hommage à l’architecture de la Rome Antique où l’atrium désignait une cour centrale, préambule à l’espace de vie principal. Ce modèle, conçu par notre architecte, allie harmonieusement tradition et modernité, offrant un cadre de vie unique et raffiné sur une surface habitable de 110 m².L’Atrium se distingue par ses 4 chambres spacieuses, promettant confort et intimité pour chaque membre de la famille, ainsi qu’une pièce de vie lumineuse et généreuse, véritable cœur de la maison où se mêlent convivialité et moments de partage. Le design extérieur, avec son garage accolé à toit plat, apporte une touche de modernité tout en conservant l’aspect rassurant des maisons traditionnelles.Construite dans le respect des dernières normes environnementales, cette maison est conforme à la RE2020, garantissant une basse consommation énergétique. Elle est équipée de menuiseries en aluminium, l’une des options les plus plébiscitées par nos clients, alliant esthétique, durabilité et performance thermique.L’Atrium est plus qu’une maison, c’est un lieu de vie pensé pour allier confort, fonctionnalité et respect de l’environnement. Son architecture, pensée pour s’intégrer harmonieusement dans son environnement, fait la part belle aux espaces ouverts et lumineux, invitant la nature à être une composante essentielle de votre quotidien.Choisir l’Atrium, c’est opter pour une maison qui respecte à la fois l’héritage architectural et les exigences contemporaines de confort et d’éco-responsabilité. Nous vous invitons à découvrir ce modèle unique, conçu pour être le cadre de vie idéal de votre famille.
Druye
TERRAIN ET MAISONNous vous proposons cette maison neuve, baptisée « »Élégance » », un modèle qui se distingue par sa forme architecturale en L, offrant à la fois style et fonctionnalité sur une surface habitable de 103 m². Conçue pour répondre aux attentes des plus exigeants, cette maison de plain-pied combine harmonieusement espace et confort, avec un total de 4 pièces, dont 4 chambres spacieuses, promettant ainsi un cadre de vie idéal pour toute la famille.L’entrée s’ouvre sur un vaste salon-séjour baigné de lumière, grâce à sa conception ouverte qui s’étend jusqu’à la cuisine, créant un espace de vie convivial et accueillant. L’intégration d’un garage attenant et d’un cellier pratique souligne la pensée méticuleuse mise dans la conception de cette maison, visant à allier esthétique et fonctionnalité.L’une des caractéristiques les plus appréciées de ce modèle est son enduit bi-ton, qui ajoute une touche de modernité et d’élégance à l’extérieur, reflétant le nom même de la maison. De plus, cette maison est entièrement personnalisable, vous permettant d’adapter chaque espace à votre mode de vie et à vos préférences, assurant ainsi que votre futur foyer réponde parfaitement à vos attentes.Au-delà de son design attrayant, « »Élégance » » est une maison basse consommation, rigoureusement conçue pour respecter les normes de la RE2020. Cette caractéristique garantit non seulement un confort optimal tout au long de l’année mais aussi des économies significatives sur les factures d’énergie, soulignant notre engagement envers la durabilité et le respect de l’environnement.En choisissant « »Élégance » », vous optez pour une maison qui allie beauté, confort et responsabilité environnementale. Une opportunité à ne pas manquer pour ceux qui cherchent à construire leur nid familial dans un cadre de vie à la fois moderne et économe en énergie.
Druye
TERRAIN ET MAISONCette magnifique maison de 111m² dispose d’un garage et d’une grande pièce à vivre de plus de 40m² avec une superbe lumière traversante grâce à ses deux baies coulissantes.A l’étage de cette maison 4 belles chambres dont une chambre avec un très grand dressing.Nous réalisons votre projet sur-mesure, contactez-moi Julie Texier au (Numéro supprimé)CONSTRUCTIONS IDEALE DEMEURE a sélectionné avec un partenaire foncier un terrain pour construire cette maison.
De 0 à 18 parmi 57 résultats
En savoir plus sur Druye
Vous trouverez 57 terrain et maison disponibles à l’achat dans la ville de Druye.
Les prix varient de 197 184€ à 465 000€. Le prix moyen constaté pour une annonce est de 260 236€.
Nos articles concernant Druye
27/11/2023
02/11/2023
30/10/2023
20/10/2023
16/10/2023
16/10/2023