Terrain et maison à vendre à Druye (37190)
Druye
TERRAIN ET MAISON🏡 Maison évolutive 70m² – Confort et lumière au rendez-vous !Découvrez cette maison moderne et fonctionnelle de 70m², pensée pour évoluer avec vos besoins.✨ Espace de vie lumineux : un séjour ouvert de 40m², baigné de lumière naturelle grâce à ses grandes ouvertures.🛏️ Deux chambres confortables, idéales pour un couple, une petite famille ou un premier achat.🔄 Évolutive : possibilité d’agrandissement selon vos envies et projets futurs.Un cadre de vie agréable, moderne et adaptable ! Contactez-moi pour plus d’information au (Numéro supprimé)CONSTRUCTIONS IDEALE DEMEURE a sélectionné avec un partenaire foncier un terrain pour construire cette maison.
Druye
TERRAIN ET MAISONDécouvrez cette charmante maison en forme de L, accompagnée d’un garage, offrant de nombreuses possibilités d’aménagement. Idéale pour les familles à la recherche d’un espace fonctionnel, cette maison présente les caractéristiques suivantes :Grand séjour de 40 m²Agencement en L créant une séparation naturelle entre les espaces de jour et de nuitGarage et cellier3 Chambres Cette maison en L avec garage est une opportunité unique d’acquérir une propriété adaptable à vos besoins et vos envies. Nous réalisons votre projet sur-mesure, contactez-moi Julie Texier au (Numéro supprimé), je serai ravie de vous accompagner tout au long de votre projet de construction.CONSTRUCTIONS IDEALE DEMEURE a sélectionné avec un partenaire foncier un terrain pour construire cette maison.
Druye
TERRAIN ET MAISONCette magnifique maison de 111m² dispose d’un garage et d’une grande pièce à vivre de plus de 40m² avec une superbe lumière traversante grâce à ses deux baies coulissantes.A l’étage de cette maison 4 belles chambres dont une chambre avec un très grand dressing.Nous réalisons votre projet sur-mesure, contactez-moi Julie Texier au (Numéro supprimé)CONSTRUCTIONS IDEALE DEMEURE a sélectionné avec un partenaire foncier un terrain pour construire cette maison.
Druye
TERRAIN ET MAISONVoici une belle maison de 89m² à construire, offrant une grande pièce de vie lumineuse grâce à sa triple exposition. Elle comprend deux chambres confortables, une salle de bain équipée d’une douche et d’une baignoire, ainsi qu’un grand garage. Un atout majeur de cette maison est sa terrasse couverte, idéale pour profiter de l’extérieur en toute saison. De plus, elle est entièrement personnalisable selon vos envies et besoins.Je reste disponible pour toutes demandes de renseignements, n’hésitez pas me contacter : Stéphane Digneton : (Numéro supprimé).CONSTRUCTIONS IDEALE DEMEURE a sélectionné avec un partenaire foncier un terrain pour construire cette maison.
Druye
TERRAIN ET MAISONBelle maison traditionnelle de plain pied comprenant 3 chambres, une salle de bain ainsi qu’un cellier et un WC.Parfait pour un premier achat ou un investissement locatif!Le combles aménageables saura suivre l’évolution de votre famille et celle de vos envies.CONSTRUCTIONS IDEALE DEMEURE a sélectionné avec un partenaire foncier un terrain pour construire cette maison. Je reste disponible pour toutes demandes de renseignements, n’hésitez pas me contacter : Stéphane Digneton : (Numéro supprimé).
Druye
TERRAIN ET MAISONBelle maison de plain-pied d’une superficie totale de 85m².La disposition de cette maison permet d’opter pour un terrain avec une façade restreinte ainsi que s’adapter facilement aux exigences des terrains classés en bâtiments de France.Vous retrouverez dans cette jolie maison une pièce à vivre évolutive de 42m², un ensemble de 3 chambres, une salle d’eau ainsi d’un cellier et un WC.Concernant les prestations globales, vous retrouverez une pompe à chaleur réversible, des menuiseries de couleur en aluminium, des combles aménageables…À vendre beau terrain constructible de 400 m², situé à Druye, dans un environnement calme et agréable.Belle façade, idéal pour accueillir une maison familiale. Terrain viabilisé (eau, électricité, tout-à-l’égout, EDF, EP) Proche des commerces, écoles et transports.Prix : 80000 €Pour plus d’informations ou convenir d’une visite, n’hésitez à me contacter directement au (Numéro supprimé).
Druye
TERRAIN ET MAISONJolie maison de type R+1 d’une superficie globale de 110m².Au rez-de-chaussée, vous trouverez un garage spacieux, une belle pièce de vie ainsi qu’un cellier.A l’étage, vous aurez la possibilité de faire entre trois et quatre chambres selon vos envies ainsi qu’une belle salle de bain.Concernant les prestations de la maison, vous retrouverez une pompe à chaleur couplée avec un plancher chauffant, des menuiseries de couleur en aluminium, un plancher béton, des ardoises artificielles…À vendre beau terrain constructible de 400 m², situé à Druye, dans un environnement calme et agréable.Belle façade, idéal pour accueillir une maison familiale. Terrain viabilisé (eau, électricité, tout-à-l’égout, EDF, EP) Proche des commerces, écoles et transports.Prix : 80000 €Pour plus d’informations ou convenir d’une visite, n’hésitez à me contacter directement au (Numéro supprimé).
Druye
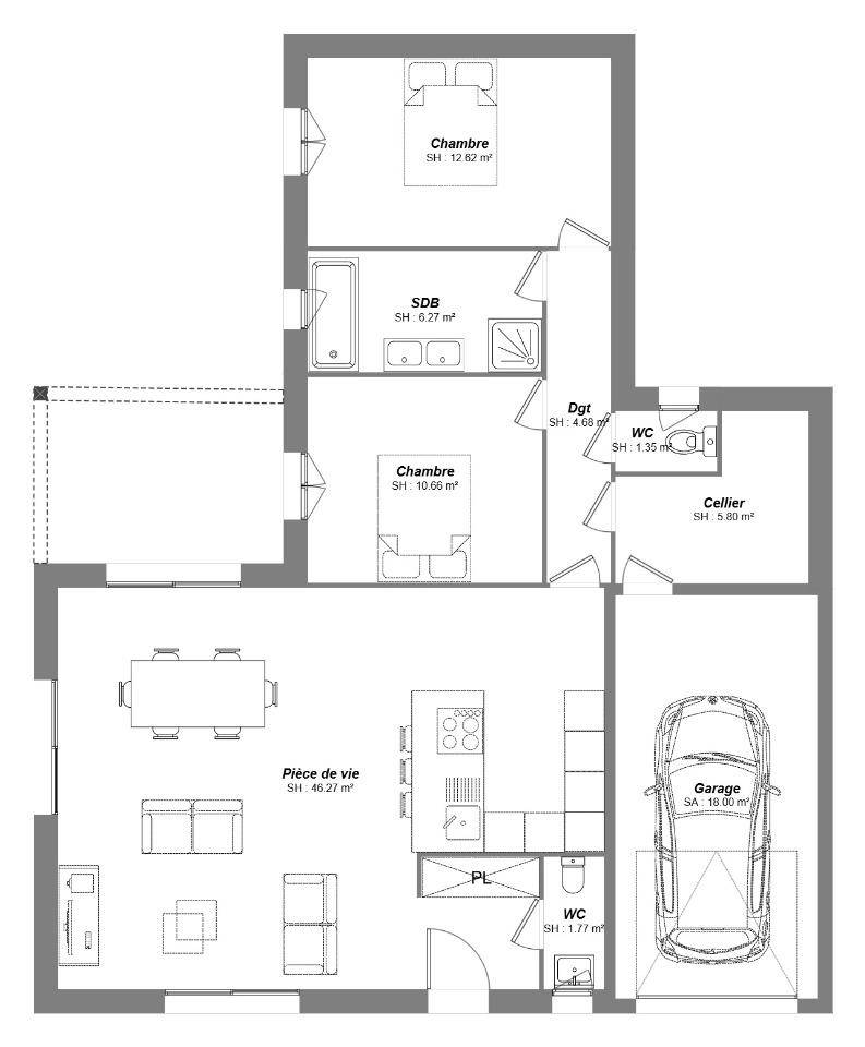
TERRAIN ET MAISONBelle maison de plain-pied d’une superficie totale de 71m².Vous retrouverez dans cette jolie maison une pièce à vivre de 40m², un garage, un ensemble de 2 chambres, une salle d’eau ainsi d’un cellier et un WC.Concernant les prestations globales, vous retrouverez une pompe à chaleur couplée à un plancher chauffant, des menuiseries de couleur en aluminium, des combles aménageables…À vendre beau terrain constructible de 400 m², situé à Druye, dans un environnement calme et agréable.Belle façade, idéal pour accueillir une maison familiale. Terrain viabilisé (eau, électricité, tout-à-l’égout, EDF, EP) Proche des commerces, écoles et transports.Prix : 80000 €Pour plus d’informations ou convenir d’une visite, n’hésitez à me contacter directement au (Numéro supprimé).
Druye
TERRAIN ET MAISONDEVENEZ PROPRIÉTAIRE DE VOTRE MAISON SUR-MESURE – OPPORTUNITE A SAISIR Découvrez cette demeure conçue et bâtie avec tout le savoir-faire des Maisons de Stéphanie, constructeur reconnu pour ses 30 années d’expérience et son exigence de qualité.Chaque détail est pensé pour votre confort et vos envies : une architecture élégante, des espaces lumineux et fonctionnels, et la possibilité d’adapter les plans selon votre mode de vie.Saisissez dès maintenant l’opportunité de faire de cette maison votre nouveau lieu de vie !Contactez Maëlle VECHTE dès maintenant au *2 47 48 09 30 pour plus d’informations et concrétiser votre projet.
Druye
TERRAIN ET MAISONDEVENEZ PROPRIÉTAIRE DE VOTRE MAISON SUR-MESURE – OPPORTUNITE A SAISIR Découvrez cette demeure conçue et bâtie avec tout le savoir-faire des Maisons de Stéphanie, constructeur reconnu pour ses 30 années d’expérience et son exigence de qualité.Chaque détail est pensé pour votre confort et vos envies : une architecture élégante, des espaces lumineux et fonctionnels, et la possibilité d’adapter les plans selon votre mode de vie.Saisissez dès maintenant l’opportunité de faire de cette maison votre nouveau lieu de vie !Contactez Maëlle VECHTE dès maintenant au *2 47 48 09 30 pour plus d’informations et concrétiser votre projet.
Druye
TERRAIN ET MAISONDEVENEZ PROPRIÉTAIRE DE VOTRE MAISON SUR-MESURE – OPPORTUNITE A SAISIR Découvrez cette demeure conçue et bâtie avec tout le savoir-faire des Maisons de Stéphanie, constructeur reconnu pour ses 30 années d’expérience et son exigence de qualité.Chaque détail est pensé pour votre confort et vos envies : une architecture élégante, des espaces lumineux et fonctionnels, et la possibilité d’adapter les plans selon votre mode de vie.Saisissez dès maintenant l’opportunité de faire de cette maison votre nouveau lieu de vie !Contactez Maëlle VECHTE dès maintenant au *2 47 48 09 30 pour plus d’informations et concrétiser votre projet.
Druye
TERRAIN ET MAISONDEVENEZ PROPRIÉTAIRE DE VOTRE MAISON SUR-MESURE – OPPORTUNITE A SAISIR Découvrez cette demeure conçue et bâtie avec tout le savoir-faire des Maisons de Stéphanie, constructeur reconnu pour ses 30 années d’expérience et son exigence de qualité.Chaque détail est pensé pour votre confort et vos envies : une architecture élégante, des espaces lumineux et fonctionnels, et la possibilité d’adapter les plans selon votre mode de vie.Saisissez dès maintenant l’opportunité de faire de cette maison votre nouveau lieu de vie !Contactez Maëlle VECHTE dès maintenant au *2 47 48 09 30 pour plus d’informations et concrétiser votre projet.
Druye
TERRAIN ET MAISONDécouvrez cette maison à étage R+1, alliant élégance et fonctionnalité. Au rez-de-chaussée, profitez d’une suite parentale confortable, idéale pour votre intimité. Le grand séjour de 45 m² vous offre un espace convivial pour recevoir famille et amis. À l’étage, deux chambres supplémentaires et un bureau vous permettent de créer un espace de vie harmonieux. Un cellier pratique et un garage attenant complètent ce bien, offrant à la fois rangement et praticité. Un lieu de vie parfait pour toute la famille !Nous réalisons votre projet sur-mesure, contactez-moi Julie Texier au (Numéro supprimé)CONSTRUCTIONS IDEALE DEMEURE a sélectionné avec un partenaire foncier un terrain pour construire cette maison.
Druye
TERRAIN ET MAISONOffrez-vous une maison moderne et fonctionnelle à construire : Surface de 127 m² : idéale pour toute la famille. Rez-de-chaussée : suite parentale avec salle d’eau, garage attenant et belle pièce de vie spacieuse et lumineuse. À l’étage : 3 chambres confortables et salle de bain.Conception moderne et agencement optimisé.Contactez-moi pour personnaliser votre future maison Julie (Numéro supprimé)CONSTRUCTIONS IDEALE DEMEURE a sélectionné avec un partenaire foncier un terrain pour construire cette maison.
Druye
TERRAIN ET MAISONCette maison de plain-pied de 80m² offre un espace de vie spacieux avec un séjour ouvert de plus de 40m², idéal pour recevoir. Elle dispose également de trois chambres confortables, une belle salle d’eau et des WC séparé. Son agencement astucieux en fait un lieu de vie convivial et fonctionnel pour toute la famille.Nous réalisons vos plans sur-mesure, contactez-moi pour de plus amples informations au (Numéro supprimé)CONSTRUCTIONS IDEALE DEMEURE a sélectionné avec un partenaire foncier un terrain pour construire cette maison.
Druye
TERRAIN ET MAISONCette maison à construire est un mélange de toit à 4 pans et de toit terrasse, offrant un design unique. Elle est lumineuse grâce à de grandes baies vitrées qui apportent beaucoup de lumière naturelle. Le garage spacieux de 25m² permet un stationnement facile. La pièce à vivre de 50m² offre un espace de vie convivial et confortable. Avec deux suites parentales et deux autres grandes chambres, cette maison offre un total de 153m² habitables, idéale pour une famille nombreuse ou des invités.Nous réalisons votre projet sur-mesure, contactez-moi Julie Texier au (Numéro supprimé)CONSTRUCTIONS IDEALE DEMEURE a sélectionné avec un partenaire foncier un terrain pour construire cette maison.
Druye
TERRAIN ET MAISONTerrain 65 000m². Ce beau terrain de 287m² entièrement viabilisé. Situé dans une commune dynamique, dans un environnement calme et agréable, ce terrain se trouve également à proximité de toutes les commodités. Idéal pour vos déplacements et votre quotidien !. Le modèle Islette séduit par son élégance intemporelle et son agencement en L parfaitement pensé. Avec ses 122 m² de plain-pied, cette maison contemporaine allie confort, fonctionnalité et luminosité, pour un cadre de vie à la fois convivial et apaisant. La pièce de vie centrale, baignée de lumière naturelle, devient le cœur de la maison, idéale pour partager des moments en famille ou entre amis. L’espace nuit, bien séparé, comprend 3 chambres, dont une suite parentale avec salle d’eau privative, ainsi qu’une seconde salle de bain pour encore plus de confort. Un cellier attenant à la cuisine, deux garages pratiques et une ouverture fluide sur le jardin complètent ce modèle au design soigné. Le modèle Islette se distingue par sa configuration astucieuse, son style modulable et ses prestations de qualité, pensées pour offrir un bien-être durable au quotidien. Pour vous assurer un confort de vie et conformément à la RE2025, nous avons choisi un mode de chauffage par PAC + plancher chauffant et volets roulants électriques. Prix hors décoration, frais de notaire, raccordements, dommage ouvrage. (Piscine non contractuelle et non comprise dans le prix. ). // Réf. : 2657-207902-JCT. Prix terrain : 65 000 €, hors frais d'agence à la charge de l'acquéreur. Ce terrain vous est proposé, par nos partenaires fonciers, dans le cadre d'un projet de construction avec nous. Les informations sur les risques auxquels ce bien est exposé sont disponibles sur le site Géorisques (www.georisques.gouv.fr). Prix maison : 304 000 €.
Druye
TERRAIN ET MAISONTerrain 65 000m². Ce beau terrain de 287m² entièrement viabilisé. Situé dans une commune dynamique, dans un environnement calme et agréable, ce terrain se trouve également à proximité de toutes les commodités. Idéal pour vos déplacements et votre quotidien !. Le modèle Montpoupon incarne l’élégance contemporaine et le confort familial. Avec ses 188 m², cette maison à étage séduit par son architecture moderne, ses espaces généreux et sa luminosité naturelle. Dès l’entrée, on découvre un intérieur fluide et accueillant où chaque mètre carré a été pensé pour le bien-être du quotidien. Le rez-de-chaussée s’articule autour d’un vaste salon-séjour ouvert sur une cuisine spacieuse, favorisant la convivialité et les moments de partage. Une buanderie, un bureau fonctionnel et une suite parentale avec salle d’eau privative complètent cet espace, offrant confort et intimité. À l’étage, le modèle Montpoupon propose trois grandes chambres, une mezzanine polyvalente et un dressing sur mesure, créant un univers à la fois pratique et raffiné. Avec ses 3 salles de bain et son garage intégré, cette maison allie design, confort et fonctionnalité pour répondre à toutes les exigences d’une vie moderne. Pour vous assurer un confort de vie et conformément à la RE2025, nous avons choisi un mode de chauffage par PAC + plancher chauffant, volets roulants électriques. Prix hors décoration, frais de notaire, raccordements, dommage ouvrage. (Piscine non contractuelle et non comprise dans le prix. ). // Réf. : 2643-207902-JCT. Prix terrain : 65 000 €, hors frais d'agence à la charge de l'acquéreur. Ce terrain vous est proposé, par nos partenaires fonciers, dans le cadre d'un projet de construction avec nous. Les informations sur les risques auxquels ce bien est exposé sont disponibles sur le site Géorisques (www.georisques.gouv.fr). Prix maison : 400 000 €.
De 18 à 36 parmi 57 résultats
En savoir plus sur Druye
Vous trouverez 57 terrain et maison disponibles à l’achat dans la ville de Druye.
Les prix varient de 197 184€ à 465 000€. Le prix moyen constaté pour une annonce est de 260 236€.
Nos articles concernant Druye
27/11/2023
02/11/2023
30/10/2023
20/10/2023
16/10/2023
16/10/2023