Maison à construire à Druye (37190)
Images
Description
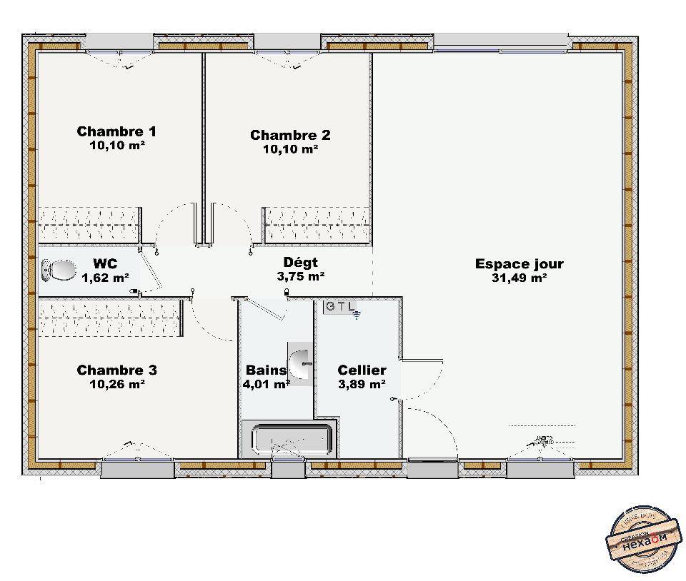
Origin 75 Nord
Ce plan présente une maison de plain-pied optimisée pour le confort et la fonctionnalité. Avec une surface habitable de 75 m², elle comprend trois chambres de tailles similaires (environ 10 m² chacune), un espace jour spacieux de 31 m², une salle de bains de 4 m², un cellier de 3,89 m², des WC séparés de 1,62 m² et un dégagement central de 3,75 m². La disposition des pièces favorise une circulation fluide et une utilisation efficace de l'espace. L'espace jour, baigné de lumière naturelle, constitue le coeur de la maison, idéal pour les moments de partage en famille ou entre amis.
La construction en ossature bois offre de nombreux avantages. Elle permet une excellente isolation thermique et acoustique, réduisant ainsi les besoins en chauffage et en climatisation. De plus, le bois est un matériau renouvelable et écologique, contribuant à la réduction de l'empreinte carbone de la maison. La préfabrication des éléments en bois permet également un montage rapide sur le chantier, réduisant les délais de construction. Enfin, le bois crée une atmosphère chaleureuse et naturelle, favorisant le bien-être des occupants.
CONSTRUCTIONS IDEALE DEMEURE a sélectionné avec un partenaire foncier un terrain pour construire cette maison.
N'hésitez pas à contacter Céline SAANOUN au (Numéro supprimé)
Logement susceptibles de vous intéresser
Nous vous proposons de découvrir aussi cette sélection de logements situés à moins de 10km de Druye et qui seraient susceptibles de vous intéresser.
Druye
TERRAIN ET MAISONOrigin 75 Nord Ce plan présente une maison de plain-pied optimisée pour le confort et la fonctionnalité. Avec une surface habitable de 75 m², elle comprend trois chambres de tailles similaires (environ 10 m² chacune), un espace jour spacieux de 31 m², une salle de bains de 4 m², un cellier de 3,89 m², des WC séparés de 1,62 m² et un dégagement central de 3,75 m². La disposition des pièces favorise une circulation fluide et une utilisation efficace de l’espace. L’espace jour, baigné de lumière naturelle, constitue le coeur de la maison, idéal pour les moments de partage en famille ou entre amis.La construction en ossature bois offre de nombreux avantages. Elle permet une excellente isolation thermique et acoustique, réduisant ainsi les besoins en chauffage et en climatisation. De plus, le bois est un matériau renouvelable et écologique, contribuant à la réduction de l’empreinte carbone de la maison. La préfabrication des éléments en bois permet également un montage rapide sur le chantier, réduisant les délais de construction. Enfin, le bois crée une atmosphère chaleureuse et naturelle, favorisant le bien-être des occupants.CONSTRUCTIONS IDEALE DEMEURE a sélectionné avec un partenaire foncier un terrain pour construire cette maison. N’hésitez pas à contacter Céline SAANOUN au (Numéro supprimé)
Savonnières
TERRAINVenez découvrir cette opportunité de terrain à bâtir, proposé par l » »un de nos partenaires fonciers et en vue de faire un projet de construction par Constructions Idéale Demeure.N » »hésitez pas à contacter votre expert en construction Céline SAANOUN au (Numéro supprimé) qui se fera une joie de vous présenter un projet terrain + maison en accord avec vos attentes.Optimisation des plans sur-mesureRecherche foncière approfonditPhoto non contractuelle
Savonnières
TERRAIN ET MAISONCharmante maison avec combles aménageables. Très lumineuse, cette maison deviendra votre nid douillet et laisse place à votre imagination. Vous profiterez d’une belle pièce à vivre de plus de 55 m²avec cuisine ouverte. Du côté nuit, deux belles chambres dont une suite parentale. La production d’eau chaude et de chauffage sont réalisées par une pompe à chaleur. Construction de haute qualité par Constructions Idéale Demeure depuis 1993.Suivi du projet de A à ZOptimisation des plans sur mesures.Matériaux de qualité.N’hésitez pas à contacter Céline SAANOUN au (Numéro supprimé) pour plus d’informations.
Druye
TERRAINLe terrain de 402 m² à Druye représente une opportunité d’investissement exceptionnelle, offrant la possibilité de bénéficier de l’appréciation continue de la valeur immobilière. Investir dans un terrain à bâtir est judicieux, permettant à la fois de profiter de la croissance du marché immobilier et de construire sa propre maison ou de la louer. N’attendez plus pour réaliser vos rêves et investir dans le cadre de vie idéal. N’hésitez pas à contacter Stéphane Digneton au (Numéro supprimé) qui se fera une joie de vous présenter un projet terrain + maison en accord avec vos attentes.
Druye
TERRAINLe terrain de 418 m² à Druye représente une opportunité d » »investissement exceptionnelle, offrant la possibilité de bénéficier de l » »appréciation continue de la valeur immobilière. Investir dans un terrain à bâtir est judicieux, permettant à la fois de profiter de la croissance du marché immobilier et de construire sa propre maison ou de la louer. N » »attendez plus pour réaliser vos rêves et investir dans le cadre de vie idéal. N » »hésitez pas à contacter Stéphane Digneton au (Numéro supprimé) qui se fera une joie de vous présenter un projet terrain + maison en accord avec vos attentes.
Cinq-Mars-la-Pile
TERRAIN ET MAISONDécouvrez le plan Terra, une maison de plain-pied de 104 m² pensée pour votre confort au quotidien. Avec son grand espace de vie de 45,54 m², cet endroit lumineux et spacieux est parfait pour partager des moments conviviaux en famille ou entre amis. Les quatre chambres, chacune avec une taille bien définie, offrent à chaque membre de la famille son propre coin de tranquillité.Le coeur de la maison, c’est sans conteste l’espace de vie, baigné de lumière naturelle grâce à ses grandes fenêtres. C’est l’endroit idéal pour se détendre, recevoir des amis ou passer des repas chaleureux en famille. Les chambres, véritables cocons de sérénité, offrent à chacun l’intimité nécessaire pour se ressourcer après une longue journée.Les espaces pratiques, comme le cellier, le garage et la salle de bains, ont été pensés pour simplifier votre quotidien. Le dégagement central assure une circulation fluide entre les pièces, et les toilettes séparées apportent un confort supplémentaire pour toute la famille. Chaque détail a été imaginé pour offrir un cadre de vie à la fois agréable et fonctionnel, où vous vous sentirez chez vous.Construite en ossature bois, cette maison présente de nombreux avantages : une isolation thermique et acoustique parfaite, réduisant vos besoins en chauffage et en climatisation. Le bois, matériau renouvelable, contribue à la réduction de votre empreinte carbone tout en apportant une touche chaleureuse et naturelle à votre intérieur. De plus, la préfabrication des éléments en bois permet un montage rapide sur chantier, ce qui raccourcit les délais de construction.Curieux d’en savoir plus ? Contactez Céline Saanoun au (Numéro supprimé) pour découvrir ce projet et voir comment il pourrait devenir votre nouveau chez-vous !CONSTRUCTIONS IDEALE DEMEURE a sélectionné avec un partenaire foncier un terrain parfait pour accueillir cette maison.
Druye
TERRAINVenez découvrir cette opportunité de terrain à bâtir, proposé par l » »un de nos partenaires fonciers et en vue de faire un projet de construction par Constructions Idéale Demeure.N » »hésitez pas à contacter Céline SAANOUN au (Numéro supprimé) Optimisation des plans sur-mesureRecherche foncière approfonditPhoto non contractuelle
Druye
TERRAIN ET MAISONBelle maison plain pied de 80m² habitable, offrant une pièce à vivre de plus de 40 m², un sas d’entrée avec placard, 3 belles chambres, une grande salle d’eau avec douche, WC séparé en fond de dégagement.CONSTRUCTIONS IDEALE DEMEURE a sélectionné avec un partenaire foncier un terrain pour construire cette maison. Je reste disponible pour toutes demandes de renseignements, n’hésitez pas me contacter : Stéphane Digneton : (Numéro supprimé).
Cinq-Mars-la-Pile
TERRAINVenez découvrir cette opportunité de terrain à bâtir, proposé par l » »un de nos partenaires fonciers et en vue de faire un projet de construction par Constructions Idéale Demeure.N » »hésitez pas à contacter Céline SAANOUN au (Numéro supprimé) Optimisation des plans sur-mesureRecherche foncière approfonditPhoto non contractuelle
L’actualité immobilière à Druye
27/11/2023
02/11/2023
30/10/2023
20/10/2023
16/10/2023
16/10/2023