Terrain et maison à vendre à Joué-lès-Tours (37300)
Joué-lès-Tours
TERRAIN ET MAISONDécouvrez cette charmante maison en forme de L, accompagnée d’un garage, offrant de nombreuses possibilités d’aménagement. Idéale pour les familles à la recherche d’un espace fonctionnel, cette maison présente les caractéristiques suivantes :Grand séjour de 40 m²Agencement en L créant une séparation naturelle entre les espaces de jour et de nuitGarage et cellier3 Chambres Cette maison en L avec garage est une opportunité unique d’acquérir une propriété adaptable à vos besoins et vos envies. Nous réalisons votre projet sur-mesure, contactez-moi Julie Texier au (Numéro supprimé), je serai ravie de vous accompagner tout au long de votre projet de construction.CONSTRUCTIONS IDEALE DEMEURE a sélectionné avec un partenaire foncier un terrain pour construire cette maison.
Joué-lès-Tours
TERRAIN ET MAISONMaison de 3 pièces (71 m²) à vendre à Joué-lès-ToursMAISON 3 PIÈCES NEUVEEn vente : à Joué-lès-Tours (37300), notre agence Constructions Idéale Demeure Tours est heureuse de vous présenter cette maison de 3 pièces de plain-pied de 71 m².Conçue de plain-pied, elle compte deux chambres, une cuisine et une salle de bains. La maison est neuve.Le terrain de la propriété est de 500 m².Plusieurs écoles (maternelle, élémentaire et lycée) sont implantées à moins de 10 minutes à pied, tout comme trois crèches. Côté transports en commun, il y a la gare La Douzillère à proximité. Les autoroutes A10 et A85 sont accessibles à moins de 8 km. On trouve deux bassins de natation, une bibliothèque, deux boulangeries, des commerces, une supérette et une épicerie à quelques minutes à peine.Elle est proposée à l’achat pour 282 450 €.Contactez notre agence (Rodolphe MARY : (Numéro supprimé)) pour obtenir de plus amples informations sur cette maison et sur les démarches à suivre. Constructions Idéale Demeure Tours vous accompagne dans tous vos projets immobiliers et dans toutes vos démarches.
Joué-lès-Tours
TERRAIN ET MAISONMaison de 4 pièces (92 m²) en vente à Joué-lès-ToursIDÉALEMENT SITUÉE – MAISON 4 PIÈCES NEUVEÀ vendre : nous sommes heureux de vous proposer, idéalement située dans Joué-lès-Tours (37300), cette maison de 4 pièces de plain-pied de 92 m² et de 416 m² de terrain.Elle inclut trois chambres, une cuisine et une salle de bains. Cette maison est neuve.La maison se situe dans un secteur prisé. Plusieurs établissements scolaires (maternelle, élémentaire et lycée) sont implantés à moins de 10 minutes à pied, tout comme trois crèches. Les autoroutes A10 et A85 sont accessibles à moins de 8 km. On trouve deux bassins de natation, une bibliothèque, deux boulangeries, des commerces, une épicerie et une supérette à quelques minutes.Elle est proposée à l’achat pour 293 700 €.Contactez Stéphane DIGNETON (tél : (Numéro supprimé)) pour toute information sur la maison ou sur les démarches à suivre. Constructions Idéale Demeure Saint-Cyr-sur-Loire est là pour vous accompagner à toutes les étapes de l’achat.
Joué-lès-Tours
TERRAIN ET MAISONVENTE : maison de 5 pièces (98 m²) à Joué-lès-ToursMAISON 5 PIÈCES NEUVEEn vente à Joué-lès-Tours (37300), nous vous présentons cette maison de 5 pièces de 98 m². Son intérieur est composé de quatre chambres, d’une cuisine et de deux salles de bains.Le terrain du bien est de 500 m².Cette maison comporte 2 niveaux. Elle est neuve.Il y a plusieurs écoles (maternelle, élémentaire et lycée) à moins de 10 minutes à pied, tout comme trois crèches. Niveau transports, on trouve la gare La Douzillère à quelques pas de la maison. Les autoroutes A10 et A85 sont accessibles à moins de 8 km. Il y a deux bassins de natation, une bibliothèque, deux boulangeries, des commerces, une supérette et une épicerie à quelques minutes.Elle est à vendre pour la somme de 332 520 €.N’hésitez pas à prendre contact avec notre agence (MARY Rodolphe : (Numéro supprimé)) pour plus d’informations sur la maison et sur les démarches à suivre. Constructions Idéale Demeure Tours vous accompagne à toutes les étapes de votre projet et dans tous vos projets immobiliers.
Joué-lès-Tours
TERRAIN ET MAISONJoué-lès-Tours : maison F3 (70 m²) à vendreIDÉALEMENT SITUÉE – MAISON 3 PIÈCES NEUVEÀ vendre idéalement située dans Joué-lès-Tours (37300), votre agence Constructions Idéale Demeure Saint-Cyr-sur-Loire est heureuse de vous proposer cette maison de 3 pièces de plain-pied de 70 m².Son intérieur propose deux chambres, une cuisine et une salle de bains. La maison est neuve.Le terrain de la propriété est de 416 m².Cette maison est située dans un secteur prisé. On trouve plusieurs établissements scolaires (maternelle, élémentaire et lycée) à moins de 10 minutes à pied, tout comme trois structures d’accueil pour les enfants en bas âge. Les autoroutes A10 et A85 sont accessibles à moins de 8 km. On trouve deux bassins de natation, une bibliothèque, deux boulangeries, des commerces, une supérette et une épicerie à quelques minutes.Elle est à vendre pour la somme de 247 900 €.Prenez contact avec Stéphane DIGNETON ((Numéro supprimé)) pour tout renseignement sur la maison.
Joué-lès-Tours
TERRAIN ET MAISONMaison de 4 pièces (85 m²) à vendre à Joué-lès-ToursIDÉALEMENT SITUÉE – MAISON 4 PIÈCES NEUVEEn vente : nous vous présentons cette maison de 4 pièces de plain-pied de 85 m² et de 416 m² de terrain, idéalement située dans Joué-lès-Tours (37300). Elle offre trois chambres, une cuisine et une salle de bains.La maison est neuve.La propriété se trouve dans un secteur convoité. Il y a plusieurs écoles (maternelle, élémentaire et lycée) à moins de 10 minutes à pied, tout comme trois structures d’accueil pour la petite enfance. Niveau transports. Les autoroutes A10 et A85 sont accessibles à moins de 8 km. Il y a deux bassins de natation, une bibliothèque, deux boulangeries, des commerces, une épicerie et une supérette dans les environs.Son prix de vente est de 261 100 €.Prenez contact avec Stéphane DIGNETON (tél : (Numéro supprimé)) pour toute question sur la maison. Constructions Idéale Demeure Saint-Cyr-sur-Loire vous accompagne dans toutes vos démarches et à toutes les étapes de votre projet.
Joué-lès-Tours
TERRAIN ET MAISONMaison T5 (81 m²) en vente à Joué-lès-ToursMAISON 5 PIÈCES NEUVEEn vente : à Joué-lès-Tours (37300), nous vous présentons cette maison de 5 pièces de plain-pied de 81 m² et de 500 m² de terrain. Son intérieur compte trois chambres, une cuisine et une salle de bains.La maison est neuve.Il y a plusieurs écoles (maternelle, élémentaire et lycée) à moins de 10 minutes à pied, tout comme trois crèches. Côté transports, on trouve la gare La Douzillère à quelques pas de la maison. Les autoroutes A10 et A85 sont accessibles à moins de 8 km. Il y a deux bassins de natation, une bibliothèque, deux boulangeries, des commerces, une épicerie et une supérette dans les environs.Elle est à vendre pour la somme de 293 680 €.Contactez notre agence (MARY Rodolphe : (Numéro supprimé)) pour toute information sur cette maison.
Joué-lès-Tours
TERRAIN ET MAISONVENTE : maison F5 (115 m²) à Joué-lès-ToursMAISON 5 PIÈCES NEUVEÀ vendre : Constructions Idéale Demeure Tours vous propose à Joué-lès-Tours (37300), cette maison de 5 pièces de 115 m². Son intérieur se divise en quatre chambres, une cuisine et deux salles de bains.Le terrain du bien est de 500 m².C’est une maison de 2 niveaux. Elle est neuve.Plusieurs établissements scolaires (maternelle, élémentaire et lycée) se trouvent à moins de 10 minutes à pied, tout comme trois crèches. Côté transports en commun, il y a la gare La Douzillère dans les environs. Les autoroutes A10 et A85 sont accessibles à moins de 8 km. On trouve deux bassins de natation, une bibliothèque, deux boulangeries, des commerces, une épicerie et une supérette à proximité.Elle est proposée à l’achat pour 365 600 €.Contactez notre agence (Rodolphe MARY : (Numéro supprimé)) pour toute question sur cette maison.
Joué-lès-Tours
TERRAIN ET MAISONJoué-lès-Tours : maison F5 (110 m²) à vendreMAISON 5 PIÈCES NEUVENous vous présentons en vente à Joué-lès-Tours (37300), cette maison de 5 pièces de plain-pied de 110 m². Son intérieur offre trois chambres, une cuisine et deux salles de bains.Le terrain du bien s’étend sur 500 m².Cette maison est neuve.Plusieurs établissements scolaires (maternelle, élémentaire et lycée) sont implantés à moins de 10 minutes à pied, tout comme trois structures d’accueil pour la petite enfance. Côté transports, on trouve la gare La Douzillère dans les environs. Les autoroutes A10 et A85 sont accessibles à moins de 8 km. Il y a deux bassins de natation, une bibliothèque, deux boulangeries, des commerces, une épicerie et une supérette à proximité de la maison.Son prix de vente est de 347 800 €.Contactez Rodolphe MARY ((Numéro supprimé)) pour toute question sur la maison et sur les démarches à suivre. Faites de vos projets immobiliers une réalité avec Constructions Idéale Demeure Tours.
Joué-lès-Tours
TERRAIN ET MAISONVENTE d’une maison de 3 pièces (91 m²) à Joué-lès-ToursMAISON 3 PIÈCES NEUVEEn vente : laissez vous charmer par cette maison de 3 pièces de plain-pied de 91 m² à Joué-lès-Tours (37300). Conçue de plain-pied, elle est composée de trois chambres, d’une cuisine et d’une salle de bains.Le terrain du bien est de 500 m².Cette maison est neuve.Il y a plusieurs établissements scolaires (maternelle, élémentaire et lycée) à moins de 10 minutes à pied, tout comme trois crèches. Niveau transports en commun, on trouve la gare La Douzillère dans les environs. Les autoroutes A10 et A85 sont accessibles à moins de 8 km. Il y a deux bassins de natation, une bibliothèque, deux boulangeries, des commerces, une épicerie et une supérette à proximité de la maison.Son prix de vente est de 315 280 €.Contactez notre agence (Rodolphe MARY :(Numéro supprimé)) pour obtenir de plus amples renseignements sur la maison.
Joué-lès-Tours
TERRAIN ET MAISONOPPORTUNITE A SAISIR – DEVENEZ PROPRIÉTAIRE DE VOTRE MAISON SUR-MESUREDécouvrez cette demeure conçue et bâtie avec tout le savoir-faire des Maisons de Stéphanie, constructeur reconnu pour ses 30 années d’expérience et son exigence de qualité.Chaque détail est pensé pour votre confort et vos envies : une architecture élégante, des espaces lumineux et fonctionnels, et la possibilité d’adapter les plans selon votre mode de vie.Saisissez dès maintenant l’opportunité de faire de cette maison votre nouveau lieu de vie !📞 Contactez dès maintenant votre conseillère Tiphanie DUMOND des Maisons Stéphanie pour plus d’informations ou pour planifier une visite.(Numéro supprimé)N’attendez plus pour démarrer votre projet de construction, rencontrons-nous !
Joué-lès-Tours
TERRAIN ET MAISONVenez faire construire cette maison en L de 105m², avec une pièce de vie spacieuse de plus de 45m². Elle comprend trois belles chambres, des placards pour un rangement optimal, et un garage intégré. La maison est entièrement personnalisable selon vos envies. Pour en discuter, contactez Stéphane Digneton au (Numéro supprimé).CONSTRUCTIONS IDEALE DEMEURE a sélectionné avec un partenaire foncier un terrain pour construire cette maison.
Joué-lès-Tours
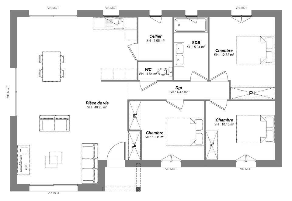
TERRAIN ET MAISONCette magnifique maison à construire en L de 93m² offre un cadre de vie idéal. Sa pièce de vie spacieuse de plus de 46m² bénéficie d’une triple exposition, garantissant une luminosité optimale tout au long de la journée. Elle comprend également trois belles chambres, parfaites pour accueillir toute la famille. Un projet harmonieux alliant confort, espace et lumière naturelle.Maison entièrement personnalisable. Je reste disponible pour toutes demandes de renseignements, n’hésitez pas me contacter : Stéphane Digneton : (Numéro supprimé).CONSTRUCTIONS IDEALE DEMEURE a sélectionné avec un partenaire foncier un terrain pour construire cette maison.
Joué-lès-Tours
TERRAIN ET MAISONVoici une belle maison à construire de 101m², comprenant quatre chambres dont une suite parentale. Elle dispose de deux salles de bain pour plus de confort. La grande pièce de vie de plus de 40m² est lumineuse grâce à ses deux baies vitrées. Cette maison allie espace et fonctionnalité pour toute la famille.Je reste disponible pour toutes demandes de renseignements, n’hésitez pas me contacter : Stéphane Digneton : (Numéro supprimé).CONSTRUCTIONS IDEALE DEMEURE a sélectionné avec un partenaire foncier un terrain pour construire cette maison.
Joué-lès-Tours
TERRAIN ET MAISONVous rêvez d’une maison unique, conçue selon vos envies et vos besoins ? Avec CID HEXAOM, votre constructeur sur-mesure, imaginez et réalisez la maison de vos rêves, à un prix accessible pour tous.Pourquoi choisir CID HEXAOM ?Conception personnalisée : Votre maison, vos choix, 100% sur-mesure !Accessibilité : Une maison originale et adaptée à votre budget.Accompagnement complet : Du plan à la construction, nous sommes à vos côtés.Moderne, traditionnelle, écologique ou innovante – quelle que soit votre vision, nous la concrétisons.Contactez-nous dès aujourd’hui pour une étude GRATUITE et laissez-nous construire ensemble votre avenir !CID – L’art de bâtir sur-mesure, pour tous.Prenez rendez-vous dès maintenant avec Mme Céline SAANOUN au (Numéro supprimé)CONSTRUCTIONS IDEALE DEMEURE a sélectionné avec un partenaire foncier un terrain pour construire cette maison.
Joué-lès-Tours
TERRAIN ET MAISONCharmante maison avec combles aménageables. Très lumineuse, cette maison deviendra votre nid douillet et laisse place à votre imagination. Vous profiterez d’une belle pièce à vivre avec cuisine ouverte. Du côté nuit, trois belles chambres dont une suite parentale. La production d’eau chaude et de chauffage sont réalisées par une pompe à chaleur. Construction de haute qualité par Constructions Idéale Demeure depuis 1993.Suivi du projet de A à ZOptimisation des plans sur mesures.Matériaux de qualité.N’hésitez pas à contacter Céline SAANOUN au (Numéro supprimé) pour plus d’informations.
Joué-lès-Tours
TERRAIN ET MAISONMaison lumineuse avec combles aménageablesLaissez-vous séduire par cette charmante maison, baignée de lumière, qui n’attend plus que vous pour devenir votre cocon. Son agencement fonctionnel et ses combles aménageables vous offrent de nombreuses possibilités d’aménagement selon vos envies.Vous apprécierez sa spacieuse pièce de vie avec cuisine ouverte, idéale pour partager des moments conviviaux. Côté nuit, deux belles chambres confortables vous attendent.Le confort est assuré grâce à un système moderne de chauffage et de production d’eau chaude par pompe à chaleur.Construite avec soin par Construction Idéale Demeure (depuis 1993), cette maison bénéficie :-d’un suivi de projet complet, de A à Z,-de plans optimisés et personnalisés,-de matériaux de grande qualité.Pour plus d’informations, contactez Céline SAANOUN au (Numéro supprimé).CONSTRUCTIONS IDEALE DEMEURE a sélectionné avec un partenaire foncier un terrain pour construire cette maison.
Joué-lès-Tours
TERRAIN ET MAISONFaites construire votre maison neuve de 80 m², parfaitement agencée pour allier confort et fonctionnalité.Une belle pièce de vie lumineuse avec cuisine ouverte, idéale pour partager des moments conviviaux3 chambres confortables avec rangements possiblesUn garage attenant pratique pour votre quotidienConçue selon la réglementation RE 2020, cette maison vous assure économies d’énergie et confort thermique grâce à des matériaux performants et un chauffage écologique par pompe à chaleur air/eau.Avec Construction Idéale Demeure (depuis 1993), vous bénéficiez : d’un suivi complet de votre projet de A à Z de plans optimisés et personnalisés de prestations de qualitéPour plus d’informations, contactez Céline SAANOUN au (Numéro supprimé).CONSTRUCTIONS IDEALE DEMEURE a sélectionné avec un partenaire foncier un terrain pour construire cette maison.
De 18 à 36 parmi 72 résultats
En savoir plus sur Joué-lès-Tours
Vous trouverez 72 terrain et maison disponibles à l’achat dans la ville de Joué-lès-Tours.
Les prix varient de 188 994€ à 495 100€. Le prix moyen constaté pour une annonce est de 301 371€.
Nos articles concernant Joué-lès-Tours
27/11/2023
02/11/2023
30/10/2023
20/10/2023
16/10/2023
16/10/2023