Terrain et maison à vendre à Joué-lès-Tours (37300)
Joué-lès-Tours
TERRAIN ET MAISONBelle maison de plain-pied d’une superficie totale de 82m².La disposition de cette maison permet d’opter pour un terrain avec une façade restreinte ainsi que s’adapter facilement aux exigences des terrains classés en bâtiments de France.Vous retrouverez dans cette jolie maison une pièce à vivre évolutive de 4m², un ensemble de 3 chambres, une salle d’eau ainsi d’un cellier et un WC.Concernant les prestations globales, vous retrouverez une pompe à chaleur, des menuiseries de couleur en aluminium, des combles aménageables…À vendre beau terrain constructible de 440 m², situé à Joué les Tours, dans un environnement calme et agréable.Belle façade, idéal pour accueillir une maison familiale. Terrain viabilisé (eau, électricité, tout-à-l’égout, EDF, EP) Proche des commerces, écoles et transports.Prix : 126000 €Pour plus d’informations ou convenir d’une visite, n’hésitez à me contacter directement au (Numéro supprimé).
Joué-lès-Tours
TERRAIN ET MAISONCette magnifique maison à construire en L de 93m² offre un cadre de vie idéal. Sa pièce de vie spacieuse de plus de 46m² bénéficie d’une triple exposition, garantissant une luminosité optimale tout au long de la journée. Elle comprend également trois belles chambres, parfaites pour accueillir toute la famille. Un projet harmonieux alliant confort, espace et lumière naturelle.Maison entièrement personnalisable. Je reste disponible pour toutes demandes de renseignements, n’hésitez pas me contacter : Stéphane Digneton : (Numéro supprimé).CONSTRUCTIONS IDEALE DEMEURE a sélectionné avec un partenaire foncier un terrain pour construire cette maison.
Joué-lès-Tours
TERRAIN ET MAISONVoici une belle maison de 89m² à construire, offrant une grande pièce de vie lumineuse grâce à sa triple exposition. Elle comprend deux chambres confortables, une salle de bain équipée d’une douche et d’une baignoire, ainsi qu’un grand garage. Un atout majeur de cette maison est sa terrasse couverte, idéale pour profiter de l’extérieur en toute saison. De plus, elle est entièrement personnalisable selon vos envies et besoins.Je reste disponible pour toutes demandes de renseignements, n’hésitez pas me contacter : Stéphane Digneton : (Numéro supprimé).CONSTRUCTIONS IDEALE DEMEURE a sélectionné avec un partenaire foncier un terrain pour construire cette maison.
Joué-lès-Tours
TERRAIN ET MAISONVenez faire construire cette maison en L de 105m², avec une pièce de vie spacieuse de plus de 45m². Elle comprend trois belles chambres, des placards pour un rangement optimal, et un garage intégré. La maison est entièrement personnalisable selon vos envies. Pour en discuter, contactez Stéphane Digneton au (Numéro supprimé).CONSTRUCTIONS IDEALE DEMEURE a sélectionné avec un partenaire foncier un terrain pour construire cette maison.
Joué-lès-Tours
TERRAIN ET MAISONBelle maison de plain-pied d’une superficie totale de 71m².Vous retrouverez dans cette jolie maison une pièce à vivre de 40m², un garage, un ensemble de 2 chambres, une salle d’eau ainsi d’un cellier et un WC.Concernant les prestations globales, vous retrouverez une pompe à chaleur couplée à un plancher chauffant, des menuiseries de couleur en aluminium, des combles aménageables…À vendre beau terrain constructible de 440 m², situé à Joué les Tours, dans un environnement calme et agréable.Belle façade, idéal pour accueillir une maison familiale. Terrain viabilisé (eau, électricité, tout-à-l’égout, EDF, EP) Proche des commerces, écoles et transports.Prix : 126000 €Pour plus d’informations ou convenir d’une visite, n’hésitez à me contacter directement au (Numéro supprimé).
Joué-lès-Tours
TERRAIN ET MAISONJolie maison de type R+1 d’une superficie globale de 110m².Au rez-de-chaussée, vous trouverez un garage spacieux, une belle pièce de vie ainsi qu’un cellier.A l’étage, vous aurez la possibilité de faire entre trois et quatre chambres selon vos envies ainsi qu’une belle salle de bain.Concernant les prestations de la maison, vous retrouverez une pompe à chaleur couplée avec un plancher chauffant, des menuiseries de couleur en aluminium, un plancher béton, des ardoises artificielles…À vendre beau terrain constructible de 440 m², situé à Joué les Tours, dans un environnement calme et agréable.Belle façade, idéal pour accueillir une maison familiale. Terrain viabilisé (eau, électricité, tout-à-l’égout, EDF, EP) Proche des commerces, écoles et transports.Prix : 126000 €Pour plus d’informations ou convenir d’une visite, n’hésitez à me contacter directement au (Numéro supprimé).
Joué-lès-Tours
TERRAIN ET MAISONBelle maison de 84 m² de plain-pied. Vous retrouverez 3 chambres spacieuses avec rangements intégrés, une salle de bain, un cellier et une grande pièce de vie ouverte de 44 m².Les grandes baies vitrées (3 mètres)et les fenêtres panoramiques apportent une touche moderne et lumineuse. La maison sera chauffée par une pompe à chaleur et plancher chauffant. Je reste disponible pour toutes demandes de renseignements, n’hésitez pas me contacter : Stéphane Digneton : (Numéro supprimé).CONSTRUCTIONS IDEALE DEMEURE a sélectionné avec un partenaire foncier un terrain pour construire cette maison.
Joué-lès-Tours
TERRAIN ET MAISONDécouvrez cette magnifique maison de 70m² habitables, conçue pour votre confort. Elle comprend deux belles chambres lumineuses, idéales pour toute la famille. Une grande pièce de vie de plus de 40m², Un grand garage spacieux vous offre un espace de stockage pratique ou un abri sécurisé pour votre voiture. Faites construire ce projet alliant fonctionnalité et charme pour un cadre de vie agréable.De plus, elle est entièrement personnalisable selon vos envies et besoins.Je reste disponible pour toutes demandes de renseignements, n’hésitez pas me contacter : Stéphane Digneton : (Numéro supprimé).CONSTRUCTIONS IDEALE DEMEURE a sélectionné avec un partenaire foncier un terrain pour construire cette maison.
Joué-lès-Tours
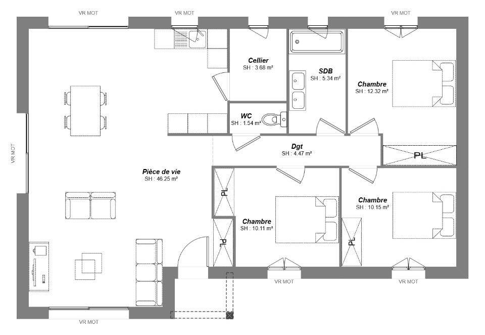
TERRAIN ET MAISONCette magnifique maison à construire en L de 93m² offre un cadre de vie idéal. Sa pièce de vie spacieuse de plus de 46m² bénéficie d’une triple exposition, garantissant une luminosité optimale tout au long de la journée. Elle comprend également trois belles chambres, parfaites pour accueillir toute la famille. Un projet harmonieux alliant confort, espace et lumière naturelle.Maison entièrement personnalisable. Je reste disponible pour toutes demandes de renseignements, n’hésitez pas me contacter : Stéphane Digneton : (Numéro supprimé).CONSTRUCTIONS IDEALE DEMEURE a sélectionné avec un partenaire foncier un terrain pour construire cette maison.
Joué-lès-Tours
TERRAIN ET MAISONBelle maison de 84 m² de plain-pied. Vous retrouverez 3 chambres spacieuses avec rangements intégrés, une salle de bain, un cellier et une grande pièce de vie ouverte de 44 m².Les grandes baies vitrées (3 mètres)et les fenêtres panoramiques apportent une touche moderne et lumineuse. La maison sera chauffée par une pompe à chaleur et plancher chauffant. Je reste disponible pour toutes demandes de renseignements, n’hésitez pas me contacter : Stéphane Digneton : (Numéro supprimé).CONSTRUCTIONS IDEALE DEMEURE a sélectionné avec un partenaire foncier un terrain pour construire cette maison.
Joué-lès-Tours
TERRAIN ET MAISONVoici une belle maison à construire de 101m², comprenant quatre chambres dont une suite parentale. Elle dispose de deux salles de bain pour plus de confort. La grande pièce de vie de plus de 40m² est lumineuse grâce à ses deux baies vitrées. Cette maison allie espace et fonctionnalité pour toute la famille.Je reste disponible pour toutes demandes de renseignements, n’hésitez pas me contacter : Stéphane Digneton : (Numéro supprimé).CONSTRUCTIONS IDEALE DEMEURE a sélectionné avec un partenaire foncier un terrain pour construire cette maison.
Joué-lès-Tours
TERRAIN ET MAISON🏡 Maison à construire – Plain-pied en L de 97 m² + combles aménageables :Laissez-vous séduire par cette maison de plain-pied de 97 m² en forme de L, pensée pour allier confort, fonctionnalité et lumière naturelle.Les + :- Grand espace de vie lumineux avec baie vitrée- 3 chambres bien agencées- Garage intégré- Combles aménageables pour un futur bureau, salle de jeux ou suite parentaleUn projet personnalisable selon vos envies, idéal pour une vie de famille au calme. Contactez- moi au (Numéro supprimé)CONSTRUCTIONS IDEALE DEMEURE a sélectionné avec un partenaire foncier un terrain pour construire cette maison.
Joué-lès-Tours
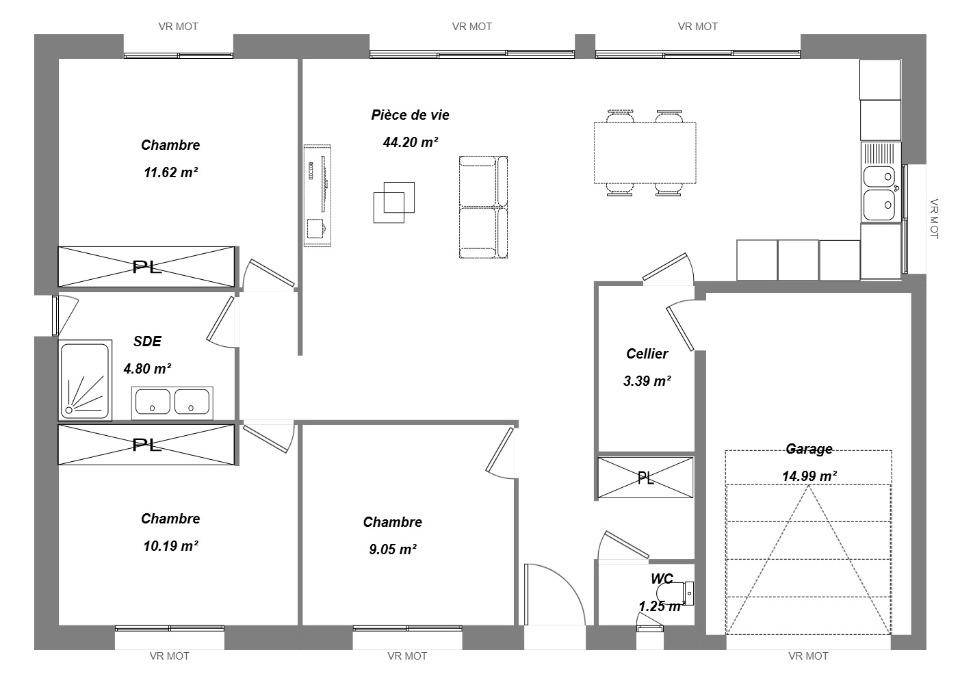
TERRAIN ET MAISONOffrez-vous une maison moderne et fonctionnelle à construire : Surface de 127 m² : idéale pour toute la famille. Rez-de-chaussée : suite parentale avec salle d’eau, garage attenant et belle pièce de vie spacieuse et lumineuse. À l’étage : 3 chambres confortables et salle de bain.Conception moderne et agencement optimisé.Contactez-moi pour personnaliser votre future maison Julie (Numéro supprimé)CONSTRUCTIONS IDEALE DEMEURE a sélectionné avec un partenaire foncier un terrain pour construire cette maison.
Joué-lès-Tours
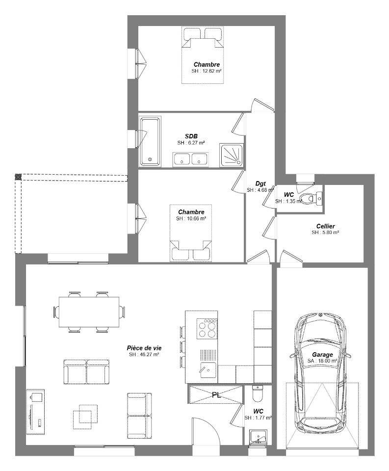
TERRAIN ET MAISONNous vous proposons cette maison neuve, modèle « »Access » », une perle de notre gamme Primaciel, spécialement conçue pour les primo-accédants à la recherche d’un habitat à la fois économique et innovant. Avec son incroyable rapport qualité/prix, l’Access se distingue par sa conception astucieuse et son engagement envers une isolation conforme aux dernières normes, le tout à un prix maîtrisé. Cette maison de plain-pied s’étend sur 73 m² et est judicieusement agencée pour maximiser le confort et l’espace de vie. Elle se compose de 4 pièces, dont 3 chambres spacieuses de plus de 9 m² chacune, promettant intimité et tranquillité pour tous les membres de la famille. Le cœur de cette maison est sans doute son espace de vie lumineux de près de 35 m², comprenant un séjour et une cuisine ouverte, idéal pour partager des moments conviviaux. Un cellier attenant de 3.5 m² offre un espace de rangement supplémentaire très pratique, tandis qu’une salle de bain fonctionnelle de près de 5 m² et des WC séparés viennent compléter l’ensemble.L’Access est également conçu pour évoluer avec vos besoins, grâce à ses combles perdus et ses combles aménageables, vous offrant la possibilité d’agrandir votre espace de vie selon vos envies. Les options les plus plébiscitées, telles qu’un Car Port ou un garage accolé, sont disponibles pour répondre à toutes vos attentes en matière de stationnement et de stockage.Mais ce qui distingue véritablement l’Access, c’est son engagement envers la durabilité et l’économie d’énergie. Cette maison est basse consommation et strictement conforme à la réglementation environnementale RE2020, vous assurant ainsi des économies significatives sur vos factures d’énergie tout en contribuant à la protection de l’environnement.En choisissant le modèle Access, vous optez pour une maison à prix malin, sans compromis sur la qualité et le confort, tout en étant assuré de vivre dans un logement respectueux de l’environnement. Une opportunité à ne pas manquer pour réal
Joué-lès-Tours
TERRAIN ET MAISONBelle maison de 84 m² de plain-pied. Vous retrouverez 3 chambres spacieuses avec rangements intégrés, une salle de bain, un cellier et une grande pièce de vie ouverte de 44 m².Les grandes baies vitrées (3 mètres)et les fenêtres panoramiques apportent une touche moderne et lumineuse. La maison sera chauffée par une pompe à chaleur et plancher chauffant. Je reste disponible pour toutes demandes de renseignements, n’hésitez pas me contacter : Stéphane Digneton : (Numéro supprimé).CONSTRUCTIONS IDEALE DEMEURE a sélectionné avec un partenaire foncier un terrain pour construire cette maison.
Joué-lès-Tours
TERRAIN ET MAISONBelle maison traditionnelle de plain pied de 71m² comprenant une grande pièce de vie de 40m², 2 chambres, une salle de bain ainsi qu’un cellier et un WC.Parfait pour un premier achat ou un investissement locatif!Le combles aménageables saura suivre l’évolution de votre famille et celle de vos envies.CONSTRUCTIONS IDEALE DEMEURE a sélectionné avec un partenaire foncier un terrain pour construire cette maison. Je reste disponible pour toutes demandes de renseignements, n’hésitez pas me contacter : Stéphane Digneton : (Numéro supprimé).
Joué-lès-Tours
TERRAIN ET MAISONNous vous proposons cette maison neuve, baptisée Tentation City, une demeure contemporaine à étage qui se distingue par son design unique et son adaptabilité à tous les environnements. Avec une surface habitable de 82 m², cette maison est conçue pour répondre aux besoins de confort et d’espace de ses résidents, offrant 3 chambres réparties dans un agencement de 3 pièces pensé pour maximiser l’espace et la luminosité.Tentation City se caractérise par son garage intégré, une dalle d’étage en béton robuste et des combles aménagés, offrant ainsi un espace supplémentaire qui peut être adapté selon vos besoins. Conforme à la réglementation thermique RT2020, cette maison basse consommation est un choix idéal pour ceux qui cherchent à réduire leur empreinte écologique tout en bénéficiant d’un confort optimal toute l’année.Les options les plus plébiscitées, telles que l’enduit bi-ton et les menuiseries en aluminium, ajoutent une touche d’élégance et de modernité à l’ensemble, permettant à chaque propriétaire de personnaliser sa maison selon ses goûts et préférences. La structure même de Tentation City rompt avec la monotonie des constructions contemporaines standards grâce à son jeu de hauteur et ses différents compartiments, ainsi qu’une galerie en façade qui lui confère une allure à la fois moderne et intemporelle.Cette maison est non seulement modulable et personnalisable à volonté, mais elle est également conçue pour s’intégrer harmonieusement dans son environnement, reflétant ainsi un parfait équilibre entre innovation architecturale et respect de la nature.Opter pour Tentation City, c’est choisir une maison qui allie esthétique, fonctionnalité et performance énergétique, le tout conforme à la nouvelle réglementation environnementale RE2020. C’est l’assurance de vivre dans un espace qui répond non seulement à vos attentes en matière de confort et de design, mais qui contribue également à la préservation de notre planète pour les générations futures.
Joué-lès-Tours
TERRAIN ET MAISONNous vous proposons cette maison neuve, baptisée « »Graphite » », un modèle à étage qui combine habilement espace et élégance. Avec une surface habitable de 99 m², cette maison est conçue pour répondre aux besoins de confort et de fonctionnalité de ses résidents. Elle se distingue par son architecture soignée, offrant une avancée de façade avec un pignon qui lui confère une originalité remarquable tout en préservant un style traditionnel.La « »Graphite » » est composée de 4 chambres réparties intelligemment pour garantir l’intimité de chacun, et de 4 pièces conçues pour maximiser l’espace de vie commun. La dalle de l’étage en béton assure une solidité et une isolation phonique de qualité, tandis que les combles aménagés offrent un espace supplémentaire, idéal pour une salle de jeux, un bureau ou une chambre d’amis.La suite parentale, située au rez-de-chaussée, est pensée pour offrir un espace privé et confortable aux parents, avec un accès direct à la salle de bain et au dressing. Le garage accolé à la maison est un atout supplémentaire, offrant un espace de rangement pratique ou un abri sécurisé pour votre véhicule.Parmi les options les plus plébiscitées par nos clients, la « »Graphite » » peut être personnalisée avec des lucarnes, apportant plus de lumière et d’espace à l’étage, et des baies coulissantes, pour une ouverture élégante sur l’extérieur et une luminosité accrue dans les pièces de vie.Cette maison neuve est également conçue pour être basse consommation, conformément à la réglementation environnementale RE2020. Cela signifie que vous bénéficierez non seulement d’un confort optimal été comme hiver, mais aussi d’une réduction significative de vos factures énergétiques.Choisir la maison « »Graphite » », c’est opter pour une habitation qui allie esthétique, confort et respect de l’environnement. Une maison où il fera bon vivre, conçue pour s’adapter à votre mode de vie et à vos envies.
De 54 à 72 parmi 72 résultats
En savoir plus sur Joué-lès-Tours
Vous trouverez 72 terrain et maison disponibles à l’achat dans la ville de Joué-lès-Tours.
Les prix varient de 188 994€ à 495 100€. Le prix moyen constaté pour une annonce est de 301 371€.
Nos articles concernant Joué-lès-Tours
27/11/2023
02/11/2023
30/10/2023
20/10/2023
16/10/2023
16/10/2023