Maison à construire à Saint-Paterne-Racan (37370)
Images
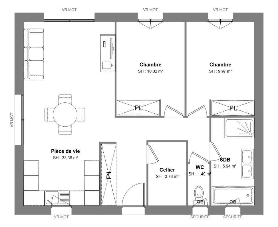
Description
Venez faire construire cette belle maison de 64 m² offrant un espace de vie très lumineux grâce à une triple exposition.
Elle comprend deux belles chambres avec placards intégrés pour un rangement optimisé.
La salle de bains, spacieuse, peut accueillir à la fois une douche, une baignoire et une double vasque pour un confort maximal.
Je reste disponible pour toutes demandes de renseignements, n'hésitez pas me contacter : Stéphane Digneton : (Numéro supprimé).
Logement susceptibles de vous intéresser
Nous vous proposons de découvrir aussi cette sélection de logements situés à moins de 10km de Saint-Paterne-Racan et qui seraient susceptibles de vous intéresser.
Neuvy-le-Roi
TERRAINEXCLUSIVITE Val Touraine Habitat !Venez découvrir le lotissement » Beauregard » à Neuvy-Le-Roi.Les terrains à bâtir, vendus bornés et viabilisés (branchements : eau potable, électricité, télécoms et réseaux d’assainissement eaux usées et eaux pluviales), sont prêts à construire avec le libre choix de votre constructeur.Emplacement parfait pour une résidence principale ou un investissement locatif, grâce à une demande locative soutenue pour un investissement rentable.Les terrains sont éligibles au Prêt à Taux Zéro (PTZ) : profitez-en pour devenir propriétaire dès maintenant ! (*)Je suis à votre écoute pour étudier votre projet de construction, répondre à toutes vos questions et vous offrir un accompagnement personnalisé et confidentiel, pour donner vie à votre future maison en toute sérénité.=> Contactez-moi dès aujourd’hui pour recevoir le dossier complet du lotissement, les plans des lots et la grille des prix.Je serai ravi de vous rencontrer et de vous accompagner dans votre projet 😮 Miguel De FARIA : (Numéro supprimé).(*) voir conditions auprès de votre conseiller
Neuvy-le-Roi
TERRAINEXCLUSIVITE Val Touraine Habitat !Venez découvrir le lotissement » Beauregard » à Neuvy-Le-Roi.Les terrains à bâtir, vendus bornés et viabilisés (branchements : eau potable, électricité, télécoms et réseaux d’assainissement eaux usées et eaux pluviales), sont prêts à construire avec le libre choix de votre constructeur.Emplacement parfait pour une résidence principale ou un investissement locatif, grâce à une demande locative soutenue pour un investissement rentable.Les terrains sont éligibles au Prêt à Taux Zéro (PTZ) : profitez-en pour devenir propriétaire dès maintenant ! (*)Je suis à votre écoute pour étudier votre projet de construction, répondre à toutes vos questions et vous offrir un accompagnement personnalisé et confidentiel, pour donner vie à votre future maison en toute sérénité.=> Contactez-moi dès aujourd’hui pour recevoir le dossier complet du lotissement, les plans des lots et la grille des prix.Je serai ravi de vous rencontrer et de vous accompagner dans votre projet 😮 Miguel De FARIA : (Numéro supprimé).(*) voir conditions auprès de votre conseiller
Neuvy-le-Roi
TERRAINEXCLUSIVITE Val Touraine Habitat !Venez découvrir le lotissement » Beauregard » à Neuvy-Le-Roi.Les terrains à bâtir, vendus bornés et viabilisés (branchements : eau potable, électricité, télécoms et réseaux d’assainissement eaux usées et eaux pluviales), sont prêts à construire avec le libre choix de votre constructeur.Emplacement parfait pour une résidence principale ou un investissement locatif, grâce à une demande locative soutenue pour un investissement rentable.Les terrains sont éligibles au Prêt à Taux Zéro (PTZ) : profitez-en pour devenir propriétaire dès maintenant ! (*)Je suis à votre écoute pour étudier votre projet de construction, répondre à toutes vos questions et vous offrir un accompagnement personnalisé et confidentiel, pour donner vie à votre future maison en toute sérénité.=> Contactez-moi dès aujourd’hui pour recevoir le dossier complet du lotissement, les plans des lots et la grille des prix.Je serai ravi de vous rencontrer et de vous accompagner dans votre projet 😮 Miguel De FARIA : (Numéro supprimé).(*) voir conditions auprès de votre conseiller
Saint-Paterne-Racan
TERRAIN ET MAISONOPPORTUNITE A SAISIR – DEVENEZ PROPRIÉTAIRE DE VOTRE MAISON SUR-MESUREDécouvrez cette demeure conçue et bâtie avec tout le savoir-faire des Maisons de Stéphanie, constructeur reconnu pour ses 30 années d’expérience et son exigence de qualité.Chaque détail est pensé pour votre confort et vos envies : une architecture élégante, des espaces lumineux et fonctionnels, et la possibilité d’adapter les plans selon votre mode de vie.Saisissez dès maintenant l’opportunité de faire de cette maison votre nouveau lieu de vie !📞 Contactez dès maintenant votre conseillère Tiphanie DUMOND des Maisons Stéphanie pour plus d’informations ou pour planifier une visite.(Numéro supprimé)N’attendez plus pour démarrer votre projet de construction, rencontrons-nous !
Saint-Paterne-Racan
TERRAIN ET MAISONOPPORTUNITE A SAISIR – DEVENEZ PROPRIÉTAIRE DE VOTRE MAISON SUR-MESUREDécouvrez cette demeure conçue et bâtie avec tout le savoir-faire des Maisons de Stéphanie, constructeur reconnu pour ses 30 années d’expérience et son exigence de qualité.Chaque détail est pensé pour votre confort et vos envies : une architecture élégante, des espaces lumineux et fonctionnels, et la possibilité d’adapter les plans selon votre mode de vie.Saisissez dès maintenant l’opportunité de faire de cette maison votre nouveau lieu de vie !📞 Contactez dès maintenant votre conseillère Tiphanie DUMOND des Maisons Stéphanie pour plus d’informations ou pour planifier une visite.(Numéro supprimé)N’attendez plus pour démarrer votre projet de construction, rencontrons-nous !
Saint-Paterne-Racan
TERRAIN ET MAISONOPPORTUNITE A SAISIR – DEVENEZ PROPRIÉTAIRE DE VOTRE MAISON SUR-MESUREDécouvrez cette demeure conçue et bâtie avec tout le savoir-faire des Maisons de Stéphanie, constructeur reconnu pour ses 30 années d’expérience et son exigence de qualité.Chaque détail est pensé pour votre confort et vos envies : une architecture élégante, des espaces lumineux et fonctionnels, et la possibilité d’adapter les plans selon votre mode de vie.Saisissez dès maintenant l’opportunité de faire de cette maison votre nouveau lieu de vie !📞 Contactez dès maintenant votre conseillère Tiphanie DUMOND des Maisons Stéphanie pour plus d’informations ou pour planifier une visite.(Numéro supprimé)N’attendez plus pour démarrer votre projet de construction, rencontrons-nous !
Saint-Paterne-Racan
TERRAIN ET MAISONOPPORTUNITE A SAISIR – DEVENEZ PROPRIÉTAIRE DE VOTRE MAISON SUR-MESUREDécouvrez cette demeure conçue et bâtie avec tout le savoir-faire des Maisons de Stéphanie, constructeur reconnu pour ses 30 années d’expérience et son exigence de qualité.Chaque détail est pensé pour votre confort et vos envies : une architecture élégante, des espaces lumineux et fonctionnels, et la possibilité d’adapter les plans selon votre mode de vie.Saisissez dès maintenant l’opportunité de faire de cette maison votre nouveau lieu de vie !📞 Contactez dès maintenant votre conseillère Tiphanie DUMOND des Maisons Stéphanie pour plus d’informations ou pour planifier une visite.(Numéro supprimé)N’attendez plus pour démarrer votre projet de construction, rencontrons-nous !
Saint-Paterne-Racan
TERRAIN ET MAISONOPPORTUNITE A SAISIR – DEVENEZ PROPRIÉTAIRE DE VOTRE MAISON SUR-MESUREDécouvrez cette demeure conçue et bâtie avec tout le savoir-faire des Maisons de Stéphanie, constructeur reconnu pour ses 30 années d’expérience et son exigence de qualité.Chaque détail est pensé pour votre confort et vos envies : une architecture élégante, des espaces lumineux et fonctionnels, et la possibilité d’adapter les plans selon votre mode de vie.Saisissez dès maintenant l’opportunité de faire de cette maison votre nouveau lieu de vie !📞 Contactez dès maintenant votre conseillère Tiphanie DUMOND des Maisons Stéphanie pour plus d’informations ou pour planifier une visite.(Numéro supprimé)N’attendez plus pour démarrer votre projet de construction, rencontrons-nous !
Neuvy-le-Roi
TERRAINEXCLUSIVITE – TERRAIN À BÂTIR – NEUVY LE ROI (37370)VOUS RÊVEZ DE VOUS INSTALLER EN TOURAINE, à proximité de toutes les commodités ? Découvrez ce terrain à bâtir idéal pour donner vie à votre projet de construction.Situé dans un environnement privilégié, ne tardez pas à visiter ce terrain RARE sur le secteur.Avec plus de 30 ans d’expérience, Maisons Stéphanie, constructeur de maisons individuelles, vous accompagne avec soin dans la conception de votre projet sur-mesure.Contactez Maëlle VECHTE dès aujourd’hui au *2 47 48 09 30 pour plus d’informations et concrétiser votre projet
L’actualité immobilière à Saint-Paterne-Racan
27/11/2023
02/11/2023
30/10/2023
20/10/2023
16/10/2023
16/10/2023