Terrain et maison à vendre à Veigné (37250)
Veigné
TERRAIN ET MAISONNous vous proposons cette maison neuve, modèle « »Access » », une perle de notre gamme Primaciel, spécialement conçue pour les primo-accédants à la recherche d’un habitat à la fois économique et innovant. Avec son incroyable rapport qualité/prix, l’Access se distingue par sa conception astucieuse et son engagement envers une isolation conforme aux dernières normes, le tout à un prix maîtrisé. Cette maison de plain-pied s’étend sur 73 m² et est judicieusement agencée pour maximiser le confort et l’espace de vie. Elle se compose de 4 pièces, dont 3 chambres spacieuses de plus de 9 m² chacune, promettant intimité et tranquillité pour tous les membres de la famille. Le cœur de cette maison est sans doute son espace de vie lumineux de près de 35 m², comprenant un séjour et une cuisine ouverte, idéal pour partager des moments conviviaux. Un cellier attenant de 3.5 m² offre un espace de rangement supplémentaire très pratique, tandis qu’une salle de bain fonctionnelle de près de 5 m² et des WC séparés viennent compléter l’ensemble.L’Access est également conçu pour évoluer avec vos besoins, grâce à ses combles perdus et ses combles aménageables, vous offrant la possibilité d’agrandir votre espace de vie selon vos envies. Les options les plus plébiscitées, telles qu’un Car Port ou un garage accolé, sont disponibles pour répondre à toutes vos attentes en matière de stationnement et de stockage.Mais ce qui distingue véritablement l’Access, c’est son engagement envers la durabilité et l’économie d’énergie. Cette maison est basse consommation et strictement conforme à la réglementation environnementale RE2020, vous assurant ainsi des économies significatives sur vos factures d’énergie tout en contribuant à la protection de l’environnement.En choisissant le modèle Access, vous optez pour une maison à prix malin, sans compromis sur la qualité et le confort, tout en étant assuré de vivre dans un logement respectueux de l’environnement. Une opportunité à ne pas manquer pour réal
Veigné
TERRAIN ET MAISONDécouvrez cette maison contemporaine alliant style et fonctionnalité. 130 m² habitables : design moderne avec un mélange de toitures élégantes. Rez-de-chaussée : une suite parentale avec salle d’eau, un spacieux séjour lumineux ouvert sur l’extérieur, et un garage attenant. Étage : 3 chambres confortables et une salle de bain familiale. Grande pièce à vivre : baignée de lumière grâce à ses larges ouvertures, idéale pour recevoir ou se détendre.Offrez-vous une maison sur mesure adaptée à vos envies ! Contactez-moi pour plus d’informations au (Numéro supprimé)CONSTRUCTIONS IDEALE DEMEURE a sélectionné avec un partenaire foncier un terrain pour construire cette maison.
Veigné
TERRAIN ET MAISONDécouvrez cette superbe maison de plain-pied de 163 m², alliant confort et modernité, idéale pour les familles en quête d’espace et de sérénité. Caractéristiques principales :- Pièce de vie spacieuse de 54 m² avec double exposition, inondée de lumière naturelle et parfaite pour vos moments de convivialité.- 4 chambres, dont une suite parentale avec dressing et salle de bains privative pour plus d’intimité, 1 deuxième salle de bain partie nuit, offrant tout le confort nécessaire pour toute la famille.- Belle entrée accueillante avec de nombreux placards intégrés pour un rangement optimal. -Pour le confort d’été une terrasse couverte. – Double garage, offrant un espace sécurisé pour vos véhicules et du rangement supplémentaire.Je reste disponible pour toutes demandes de renseignements, n’hésitez pas me contacter : Stéphane Digneton : (Numéro supprimé).CONSTRUCTIONS IDEALE DEMEURE a sélectionné avec un partenaire foncier un terrain pour construire cette maison.
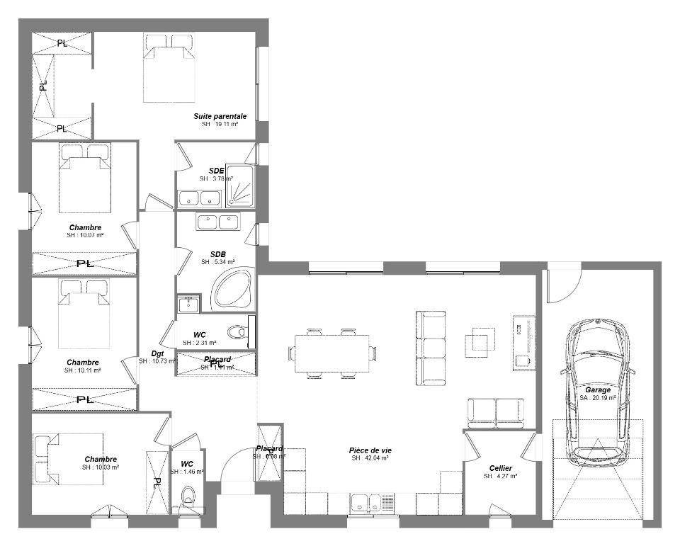
Veigné
TERRAIN ET MAISONVous rêvez de faire construire ? Stéphane Digneton ( (Numéro supprimé))vous propose cette maison en L de 121m², avec 4 chambres dont une suite parentale. Elle comprend également 2 salles de bain, une belle pièce de vie lumineuse et un grand garage de plus de 20m². Entièrement personnalisable, n’hésitez pas à me contacter pour discuter de votre projet.CONSTRUCTIONS IDEALE DEMEURE a sélectionné avec un partenaire foncier un terrain pour construire cette maison.
Veigné
TERRAIN ET MAISONVenez faire construire cette grande maison familiale de 248 m² à étage.Elle offre une vaste pièce de vie de plus de 87 m² pour recevoir, cinq chambres de 13 à 20 m² et un bureau pouvant faire office de chambre d’amis.Vous disposez également de deux salles de bains, d’un cellier et d’un double garage.La maison est entièrement personnalisable pour adapter volumes et finitions à vos besoins et à vos goûts.Je reste disponible pour toutes demandes de renseignements, n’hésitez pas me contacter : Stéphane Digneton : (Numéro supprimé).CONSTRUCTIONS IDEALE DEMEURE a sélectionné avec un partenaire foncier un terrain pour construire cette maison.
Veigné
TERRAIN ET MAISONCette belle maison à construire de 150m² offre une grande pièce de vie lumineuse de plus de 74m² avec une triple exposition. Elle comprend quatre belles chambres spacieuses, idéales pour une famille. Un grand garage de 38m² permet de stationner facilement un véhicule et de bénéficier d’un espace de rangement supplémentaire. Enfin, un vaste porche couvert peut accueillir une voiture, offrant une protection supplémentaire contre les intempéries.Je reste disponible pour toutes demandes de renseignements, n’hésitez pas me contacter : Stéphane Digneton : (Numéro supprimé).CONSTRUCTIONS IDEALE DEMEURE a sélectionné avec un partenaire foncier un terrain pour construire cette maison.
Veigné
TERRAIN ET MAISONBelle maison de plain-pied d’une superficie totale de 71m².Vous retrouverez dans cette jolie maison une pièce à vivre de 40m², un garage, un ensemble de 2 chambres, une salle d’eau ainsi d’un cellier et un WC.Concernant les prestations globales, vous retrouverez une pompe à chaleur couplée à un plancher chauffant, des menuiseries de couleur en aluminium, des combles aménageables…À vendre beau terrain constructible de 512 m², situé à Veigné, dans un environnement calme et agréable.Belle façade, idéal pour accueillir une maison familiale. Terrain viabilisé (eau, électricité, tout-à-l’égout, EDF, EP) Proche des commerces, écoles et transports.Prix : 105000 €Pour plus d’informations ou convenir d’une visite, n’hésitez à me contacter directement au (Numéro supprimé).
Veigné
TERRAIN ET MAISONBelle maison de plain-pied d’une superficie totale de 82m².La disposition de cette maison permet d’opter pour un terrain avec une façade restreinte ainsi que s’adapter facilement aux exigences des terrains classés en bâtiments de France.Vous retrouverez dans cette jolie maison une pièce à vivre évolutive de 4m², un ensemble de 3 chambres, une salle d’eau ainsi d’un cellier et un WC.Concernant les prestations globales, vous retrouverez une pompe à chaleur, des menuiseries de couleur en aluminium, des combles aménageables…À vendre beau terrain constructible de 512 m², situé à Veigné, dans un environnement calme et agréable.Belle façade, idéal pour accueillir une maison familiale. Terrain viabilisé (eau, électricité, tout-à-l’égout, EDF, EP) Proche des commerces, écoles et transports.Prix : 105000 €Pour plus d’informations ou convenir d’une visite, n’hésitez à me contacter directement au (Numéro supprimé).
Veigné
TERRAIN ET MAISONJolie maison de type R+1 d’une superficie globale de 110m².Au rez-de-chaussée, vous trouverez un garage spacieux, une belle pièce de vie ainsi qu’un cellier.A l’étage, vous aurez la possibilité de faire entre trois et quatre chambres selon vos envies ainsi qu’une belle salle de bain.Concernant les prestations de la maison, vous retrouverez une pompe à chaleur couplée avec un plancher chauffant, des menuiseries de couleur en aluminium, un plancher béton, des ardoises artificielles…À vendre beau terrain constructible de 512 m², situé à Veigné, dans un environnement calme et agréable.Belle façade, idéal pour accueillir une maison familiale. Terrain viabilisé (eau, électricité, tout-à-l’égout, EDF, EP) Proche des commerces, écoles et transports.Prix : 105000 €Pour plus d’informations ou convenir d’une visite, n’hésitez à me contacter directement au (Numéro supprimé).
Veigné
TERRAIN ET MAISONDécouvrez cette maison à étage R+1, alliant élégance et fonctionnalité. Au rez-de-chaussée, profitez d’une suite parentale confortable, idéale pour votre intimité. Le grand séjour de 45 m² vous offre un espace convivial pour recevoir famille et amis. À l’étage, deux chambres supplémentaires et un bureau vous permettent de créer un espace de vie harmonieux. Un cellier pratique et un garage attenant complètent ce bien, offrant à la fois rangement et praticité. Un lieu de vie parfait pour toute la famille !Nous réalisons votre projet sur-mesure, contactez-moi Julie Texier au (Numéro supprimé)CONSTRUCTIONS IDEALE DEMEURE a sélectionné avec un partenaire foncier un terrain pour construire cette maison.
Veigné
TERRAIN ET MAISONVoici une belle maison à construire de 101m², comprenant quatre chambres dont une suite parentale. Elle dispose de deux salles de bain pour plus de confort. La grande pièce de vie de plus de 40m² est lumineuse grâce à ses deux baies vitrées. Cette maison allie espace et fonctionnalité pour toute la famille.Je reste disponible pour toutes demandes de renseignements, n’hésitez pas me contacter : Stéphane Digneton : (Numéro supprimé).CONSTRUCTIONS IDEALE DEMEURE a sélectionné avec un partenaire foncier un terrain pour construire cette maison.
Veigné
TERRAIN ET MAISONVous rêvez de faire construire ? Stéphane Digneton ( (Numéro supprimé))vous propose cette maison en L de 121m², avec 4 chambres dont une suite parentale. Elle comprend également 2 salles de bain, une belle pièce de vie lumineuse et un grand garage de plus de 20m². Entièrement personnalisable, n’hésitez pas à me contacter pour discuter de votre projet.CONSTRUCTIONS IDEALE DEMEURE a sélectionné avec un partenaire foncier un terrain pour construire cette maison.
Veigné
TERRAIN ET MAISONCette magnifique maison à construire en L de 93m² offre un cadre de vie idéal. Sa pièce de vie spacieuse de plus de 46m² bénéficie d’une triple exposition, garantissant une luminosité optimale tout au long de la journée. Elle comprend également trois belles chambres, parfaites pour accueillir toute la famille. Un projet harmonieux alliant confort, espace et lumière naturelle.Maison entièrement personnalisable. Je reste disponible pour toutes demandes de renseignements, n’hésitez pas me contacter : Stéphane Digneton : (Numéro supprimé).CONSTRUCTIONS IDEALE DEMEURE a sélectionné avec un partenaire foncier un terrain pour construire cette maison.
Veigné
TERRAIN ET MAISONVous rêvez d’une maison unique, conçue selon vos envies et vos besoins ? Avec CID HEXAOM, votre constructeur sur-mesure, imaginez et réalisez la maison de vos rêves, à un prix accessible pour tous.Pourquoi choisir CID HEXAOM ?Conception personnalisée : Votre maison, vos choix, 100% sur-mesure !Accessibilité : Une maison originale et adaptée à votre budget.Accompagnement complet : Du plan à la construction, nous sommes à vos côtés.Moderne, traditionnelle, écologique ou innovante – quelle que soit votre vision, nous la concrétisons.Contactez-nous dès aujourd’hui pour une étude GRATUITE et laissez-nous construire ensemble votre avenir !CID – L’art de bâtir sur-mesure, pour tous.Prenez rendez-vous dès maintenant avec Mme Céline SAANOUN au (Numéro supprimé)CONSTRUCTIONS IDEALE DEMEURE a sélectionné avec un partenaire foncier un terrain pour construire cette maison.
Veigné
TERRAIN ET MAISONNous vous proposons cette maison neuve, modèle « »Access » », une perle de notre gamme Primaciel, spécialement conçue pour les primo-accédants à la recherche d’un habitat à la fois économique et innovant. Avec son incroyable rapport qualité/prix, l’Access se distingue par sa conception astucieuse et son engagement envers une isolation conforme aux dernières normes, le tout à un prix maîtrisé. Cette maison de plain-pied s’étend sur 73 m² et est judicieusement agencée pour maximiser le confort et l’espace de vie. Elle se compose de 4 pièces, dont 3 chambres spacieuses de plus de 9 m² chacune, promettant intimité et tranquillité pour tous les membres de la famille. Le cœur de cette maison est sans doute son espace de vie lumineux de près de 35 m², comprenant un séjour et une cuisine ouverte, idéal pour partager des moments conviviaux. Un cellier attenant de 3.5 m² offre un espace de rangement supplémentaire très pratique, tandis qu’une salle de bain fonctionnelle de près de 5 m² et des WC séparés viennent compléter l’ensemble.L’Access est également conçu pour évoluer avec vos besoins, grâce à ses combles perdus et ses combles aménageables, vous offrant la possibilité d’agrandir votre espace de vie selon vos envies. Les options les plus plébiscitées, telles qu’un Car Port ou un garage accolé, sont disponibles pour répondre à toutes vos attentes en matière de stationnement et de stockage.Mais ce qui distingue véritablement l’Access, c’est son engagement envers la durabilité et l’économie d’énergie. Cette maison est basse consommation et strictement conforme à la réglementation environnementale RE2020, vous assurant ainsi des économies significatives sur vos factures d’énergie tout en contribuant à la protection de l’environnement.En choisissant le modèle Access, vous optez pour une maison à prix malin, sans compromis sur la qualité et le confort, tout en étant assuré de vivre dans un logement respectueux de l’environnement. Une opportunité à ne pas manquer pour réal
Veigné
TERRAIN ET MAISONNous vous proposons cette maison neuve, modèle « »Access » », une perle de notre gamme Primaciel, spécialement conçue pour les primo-accédants à la recherche d’un habitat à la fois économique et innovant. Avec son incroyable rapport qualité/prix, l’Access se distingue par sa conception astucieuse et son engagement envers une isolation conforme aux dernières normes, le tout à un prix maîtrisé. Cette maison de plain-pied s’étend sur 73 m² et est judicieusement agencée pour maximiser le confort et l’espace de vie. Elle se compose de 4 pièces, dont 3 chambres spacieuses de plus de 9 m² chacune, promettant intimité et tranquillité pour tous les membres de la famille. Le cœur de cette maison est sans doute son espace de vie lumineux de près de 35 m², comprenant un séjour et une cuisine ouverte, idéal pour partager des moments conviviaux. Un cellier attenant de 3.5 m² offre un espace de rangement supplémentaire très pratique, tandis qu’une salle de bain fonctionnelle de près de 5 m² et des WC séparés viennent compléter l’ensemble.L’Access est également conçu pour évoluer avec vos besoins, grâce à ses combles perdus et ses combles aménageables, vous offrant la possibilité d’agrandir votre espace de vie selon vos envies. Les options les plus plébiscitées, telles qu’un Car Port ou un garage accolé, sont disponibles pour répondre à toutes vos attentes en matière de stationnement et de stockage.Mais ce qui distingue véritablement l’Access, c’est son engagement envers la durabilité et l’économie d’énergie. Cette maison est basse consommation et strictement conforme à la réglementation environnementale RE2020, vous assurant ainsi des économies significatives sur vos factures d’énergie tout en contribuant à la protection de l’environnement.En choisissant le modèle Access, vous optez pour une maison à prix malin, sans compromis sur la qualité et le confort, tout en étant assuré de vivre dans un logement respectueux de l’environnement. Une opportunité à ne pas manquer pour réal
Veigné
TERRAIN ET MAISONSur ce terrain, nous vous proposons cette maison neuve : la Conception, un modèle exclusif signé Maisons Concept, constructeur reconnu pour offrir le meilleur rapport qualité/prix du marché.Cette maison contemporaine à étage, d’une superficie de 110 m², allie lignes traditionnelles et touches de design moderne pour une esthétique épurée et captivante. La Conception se distingue par son architecture compacte et son garage accolé à toit plat, garantissant une intégration harmonieuse dans son environnement.À l’intérieur, la Conception est pensée pour le confort et la fonctionnalité. Elle offre 4 chambres spacieuses dont une suite parentale, ainsi qu’une vaste pièce de vie ouverte, idéale pour partager des moments conviviaux en famille ou entre amis. La dalle béton à l’étage assure une isolation phonique et thermique optimale, renforçant le confort au quotidien.Cette maison neuve est conforme à la norme RE2020, gage de basse consommation énergétique et de respect des exigences environnementales les plus récentes. Les options les plus plébiscitées, telles que la domotique ou les menuiseries aluminium, sont disponibles afin de personnaliser votre future maison selon vos envies.Optez pour la Conception et découvrez une maison où chaque détail est pensé pour offrir une expérience de vie harmonieuse et moderne. Ne manquez pas cette opportunité unique de devenir propriétaire d’un modèle alliant élégance, praticité et performance énergétique.
Veigné
TERRAIN ET MAISONNous vous proposons cette maison neuve, baptisée « »Élégance » », un modèle qui se distingue par sa forme en L, offrant à la fois style et fonctionnalité. Avec une surface habitable de 93 m², cette maison de plain-pied est conçue pour maximiser l’espace et le confort de ses résidents. Elle comprend un grand salon-séjour lumineux, ouvert sur une cuisine moderne, idéale pour partager des moments conviviaux en famille ou entre amis. L’architecture en L permet une séparation naturelle entre l’espace de vie et l’espace nuit, ce dernier étant composé de 3 chambres spacieuses, garantissant intimité et tranquillité. La maison dispose également d’un garage intégré, pratique pour sécuriser votre véhicule ou pour du stockage supplémentaire, ainsi qu’un cellier adjacent à la cuisine, parfait pour organiser vos provisions et ustensiles de cuisine.L’une des caractéristiques les plus appréciées de ce modèle est son enduit bi-ton, qui ajoute une touche d’élégance et de modernité à l’extérieur de la maison, la faisant ressortir dans n’importe quel environnement. Construite dans le respect des normes de la RE2020, cette maison basse consommation est un choix judicieux pour ceux qui cherchent à réduire leur empreinte écologique tout en bénéficiant d’un confort optimal. Elle est personnalisable selon vos besoins et vos envies, vous permettant de créer un foyer qui vous ressemble, adapté à votre mode de vie. » »Élégance » » est plus qu’une maison, c’est un lieu de vie pensé pour votre bien-être et celui de votre famille, où chaque détail a été conçu pour répondre à vos attentes les plus élevées. Ne manquez pas l’opportunité de construire la maison de vos rêves, un espace où chaque jour sera empreint de confort, de style et d’efficacité énergétique.
De 54 à 72 parmi 77 résultats
En savoir plus sur Veigné
Vous trouverez 77 terrain et maison disponibles à l’achat dans la ville de Veigné.
Les prix varient de 185 000€ à 1 330 609€. Le prix moyen constaté pour une annonce est de 338 748€.
Nos articles concernant Veigné
27/11/2023
02/11/2023
30/10/2023
20/10/2023
16/10/2023
16/10/2023