Maison à construire à Soustons (40140)
Images
Description
Dans un cadre agréable à Souston , Couleur Villas vous propose ce projet de maison contemporaine r, alliant style, volume et prestations haut de gamme.
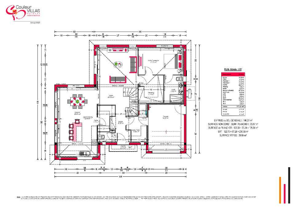
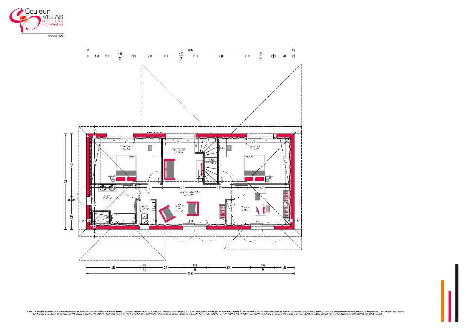
Cette maison de 171 m² habitables s'organise sur deux niveaux. À l'étage, deux chambres lumineuses, un bureau, une grande salle de bain et un palier central complètent cet espace nuit.
Au rez-de-chaussée, on retrouve une grandes pièces à vivre ainsi qu'une suite parentale confortable, idéale pour accueillir famille ou invités.
L'ensemble est baigné de lumière, ouvert sur l'extérieur, et construit avec des matériaux de qualité.
Ce projet offre 3 chambres, des prestations complètes et un fort potentiel familial ou secondaire.
contact M Menargues Jonathan (Numéro supprimé) pour toute question sur cette annonce ou sur les démarches à suivre.
Terrain proposé par un partenaire foncier selon disponibilité dans le cadre d'un projet de construction avec Couleur Villas. Les descriptions, photographies, surfaces et prix illustrant l'annonce sont fournies à titre indicatif et ne sont pas contractuels. Non soumis au DPE. Différents modèles disponibles.
Logement susceptibles de vous intéresser
Nous vous proposons de découvrir aussi cette sélection de logements situés à moins de 10km de Soustons et qui seraient susceptibles de vous intéresser.
Soustons
TERRAIN ET MAISONProjet de construction de maison neuve à Soustons.Terrain viabilisé de 1237 m² hors lotissement. Magnifique maison de 140 m² avec 4 chambres dont 1 suite parentale avec sa salle d’eau et son dressing, 3 salles d’eau supplémentaires, 2 WC, 1 cellier et un séjour – salon cuisine de plus de 50 m².Ce projet est proposé par IGC construction Angresse, il pourra être modifié et finalisé selon vos souhaits et votre budget.681 150 euros HFN, contrat de maison prête à décorer ( reste à votre charge les peintures intérieurs, l’aménagement de la cuisine et des placards ).Les informations sur les risques auxquels ce bien est exposé sont disponibles sur le site Géorisques : (Lien supprimé)
Messanges
TERRAINVenez découvrir ce très beau terrain de 670 m² situé dans un lotissement paisible sur la commune de Messanges, au coeur des Landes. Idéalement placé, ce terrain offre un cadre de vie agréable, entre océan, forêt et village, à seulement quelques minutes des plages et des pistes cyclables.Le terrain est entièrement viabilisé (eau, électricité, tout-à-l’égout). Réalisons ensemble le projet de maison qui vous ressemble. Sa superficie de 670 m² permet d’envisager une belle construction tout en conservant un agréable espace extérieur. L’environnement est calme, verdoyant et typique du littoral landais, parfait pour une résidence principale, secondaire ou un investissement locatif.Messanges est une charmante commune du Sud des Landes, très appréciée pour sa qualité de vie, son atmosphère conviviale et sa proximité avec Vieux-Boucau, Moliets et Soustons.N’hésitez pas à me contacter pour plus d’informations, Franck Sagette au (Numéro supprimé).
Messanges
TERRAIN ET MAISONSur la commune de Messanges, dans les Landes, charmante maison de plain-pied d’environ 90 m² habitables, implantée sur un beau terrain de 670 m².Cette maison, lumineuse et fonctionnelle, se compose d’une pièce de vie spacieuse avec cuisine ouverte, offrant un agréable espace de convivialité donnant sur la terrasse et le jardin. Elle dispose de trois chambres confortables, idéales pour accueillir famille et amis, ainsi qu’une salle de bains et des toilettes séparées.Un garage attenant vient compléter l’ensemble, offrant un espace pratique pour stationner ou stocker du matériel. Le jardin, plat et bien entretenu, laisse de nombreuses possibilités d’aménagement, que ce soit pour installer une piscine, créer un potager ou simplement profiter du calme des lieux.La maison bénéficie d’un emplacement privilégié, à proximité du centre du village, des commerces, des écoles et des superbes plages landaises, accessibles en quelques minutes à vélo ou en voiture. Le cadre est paisible, verdoyant et typiquement landais, idéal pour une résidence principale comme pour une maison de vacances.Si vous recherchez une habitation confortable, bien située et prête à vivre au coeur de Messanges, cette maison saura vous séduire par son charme et son potentiel.Pour plus d’informations contactez M Sagette Franck au (Numéro supprimé).
Soustons
TERRAINTrès belle parcelle de terrain à Soustons issue d’un partage, hors lotissement, d’une surface de 1202m² proche de l’étang.Plat et viabilisé, prêt à recevoir votre projet de construction.325000 euros HFNN’hésitez pas à nous contacter et à prendre rdv afin d’étudier ensemble votre future habitation.Les informations sur les risques auxquels ce bien est exposé sont disponibles sur le site Géorisques (Lien supprimé)
Seignosse
TERRAIN ET MAISONTerrain de 946m² au cœur d'un nouveau lotissement entièrement viabilisé. Emplacement privilégié à proximité des plages océanes, vous rejoignez Hossegor en 10min. Possibilité de construire jusqu'à 280m² au sol. . Un style unique, un confort absolu – et si c’était votre maison ? Ici, chaque détail a été pensé pour allier design, espace et bien-être. Une suite parentale avec dressing et salle d’eau, un séjour lumineux, une cuisine qui donne envie de partager… Cette maison est un véritable cocon moderne et fonctionnel. À l’étage, deux belles chambres, une salle de bains et des espaces optimisés pour que chacun profite pleinement de son intimité. Besoin de plus ? Cette maison s’adapte à vos envies : un bureau, un espace détente, une salle de jeux ? C’est vous qui décidez !. Pour un confort optimal et conforme à la RE2025, cette maison dispose d’une PAC avec plancher chauffant, radiateurs à l’étage et volets roulants électriques. À noter : Le prix indiqué exclut les revêtements de sol des chambres, la cuisine aménagée, la peinture, la décoration, les raccordements, les frais de notaire et l’assurance dommages-ouvrage. Contactez-nous dès aujourd’hui pour concrétiser votre projet et façonner votre futur chez-vous !. // Réf. : 1661-210492-PEL. Prix terrain : 545 000 €, hors frais d'agence à la charge de l'acquéreur. Ce terrain vous est proposé, par nos partenaires fonciers, dans le cadre d'un projet de construction avec nous. Les informations sur les risques auxquels ce bien est exposé sont disponibles sur le site Géorisques (www.georisques.gouv.fr). Prix maison : 247 579 €.
Seignosse
TERRAIN ET MAISONTerrain de 946m² au cœur d'un nouveau lotissement entièrement viabilisé. Emplacement privilégié à proximité des plages océanes, vous rejoignez Hossegor en 10min. Possibilité de construire jusqu'à 280m² au sol. . Maison de plain-pied de 138 m² habitables pour votre famille dont son cœur de vie de 72 m² vous séduira à coup sûr ; d’un côté la suite parentale de 20 m², de l’autre deux chambres et salle de bains toute équipée. Enfin une buanderie vous donne accès au garage double de 32 m². Pour vous assurer un confort de vie et conformément à la RE2025, nous avons choisi un mode de chauffage par PAC + plancher chauffant, volets roulants électriques. Prix hors peinture, décoration, revêtements de sol dans les chambres, cuisine équipée), frais de notaire, raccordements, dommage ouvrage. . // Réf. : 529-210492-PEL. Prix terrain : 545 000 €, hors frais d'agence à la charge de l'acquéreur. Ce terrain vous est proposé, par nos partenaires fonciers, dans le cadre d'un projet de construction avec nous. Les informations sur les risques auxquels ce bien est exposé sont disponibles sur le site Géorisques (www.georisques.gouv.fr). Prix maison : 255 387 €.
Seignosse
TERRAIN ET MAISONTerrain de 946m² au cœur d'un nouveau lotissement entièrement viabilisé. Emplacement privilégié à proximité des plages océanes, vous rejoignez Hossegor en 10min. Possibilité de construire jusqu'à 280m² au sol. . Idéal résidence secondaire ou premier investissement, aucune place de perdue pour cette charmante maison de plain-pied de forme rectangulaire et d'environ 100 m² habitables : Un espace de vie très convivial de plus de 47 m², très lumineux, avec cuisine ouverte. Côté nuit, trois chambres avec placards, une salle de bains et wc séparés. Pour vous assurer un confort de vie et conformément à la RE2025, nous avons choisi un mode de chauffage par PAC + plancher chauffant, volets roulants électriques. Prix hors peinture, décoration, revêtements de sol dans les chambres, cuisine équipée), frais de notaire, raccordements, dommage ouvrage. . // Réf. : 1729-210492-PEL. Prix terrain : 545 000 €, hors frais d'agence à la charge de l'acquéreur. Ce terrain vous est proposé, par nos partenaires fonciers, dans le cadre d'un projet de construction avec nous. Les informations sur les risques auxquels ce bien est exposé sont disponibles sur le site Géorisques (www.georisques.gouv.fr). Prix maison : 180 320 €.
Seignosse
TERRAINTerrain de 410m² au cœur d'un nouveau lotissement entièrement viabilisé. Emplacement privilégié à proximité des plages océanes, vous rejoignez Hossegor en 10min. // Réf. : T210490. Prix terrain : 260 000 €, hors frais d'agence et de notaire à la charge de l'acquéreur. Ce terrain vous est proposé, par nos partenaires fonciers, dans le cadre d'un projet de construction avec nous. Les informations sur les risques auxquels ce bien est exposé sont disponibles sur le site Géorisques (www.georisques.gouv.fr).
Seignosse
TERRAINTerrain de 520m² au cœur d'un nouveau lotissement entièrement viabilisé. Emplacement privilégié à proximité des plages océanes, vous rejoignez Hossegor en 10min. Possibilité de construire jusqu'à 150m² au sol. . // Réf. : T210491. Prix terrain : 320 000 €, hors frais d'agence et de notaire à la charge de l'acquéreur. Ce terrain vous est proposé, par nos partenaires fonciers, dans le cadre d'un projet de construction avec nous. Les informations sur les risques auxquels ce bien est exposé sont disponibles sur le site Géorisques (www.georisques.gouv.fr).
L’actualité immobilière à Soustons
27/11/2023
02/11/2023
30/10/2023
20/10/2023
16/10/2023
16/10/2023