Maison à construire à Legé (44650)
Images
Description
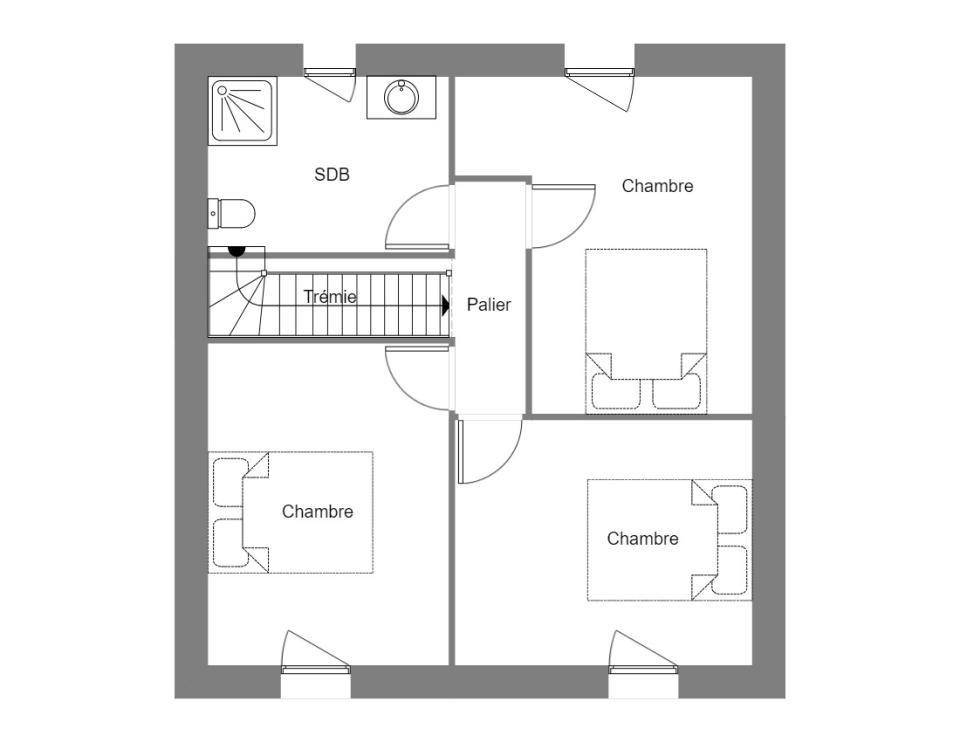
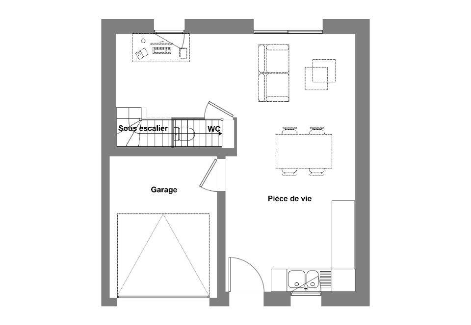
Legé : maison T4 (69 m²) en vente
IDÉALEMENT SITUÉE - MAISON 4 PIÈCES NEUVE
En vente à 39 km de l'océan Atlantique et à 28 km de La Roche-sur-Yon, notre agence Maisons de l'Avenir Rezé est heureuse de vous présenter, idéalement située dans Legé (44650), cette maison de 4 pièces de 69 m² et de 505 m² de terrain.
Il s'agit d'une maison de 2 niveaux. Son intérieur compte trois chambres, une cuisine et une salle de bains. La maison est neuve.
Cette propriété se trouve dans un quartier prisé. Il y a cinq établissements scolaires à moins de 10 minutes à pied. On trouve un bassin de natation, deux boulangeries, des commerces, une boucherie-charcuterie et un bureau de poste à quelques minutes du logement.
Elle est proposée à l'achat pour 223 480 €.
Contactez notre agence (BURILLE Pierre Antoine : (Numéro supprimé)) pour toute question sur la maison.
Logement susceptibles de vous intéresser
Nous vous proposons de découvrir aussi cette sélection de logements situés à moins de 10km de Legé et qui seraient susceptibles de vous intéresser.

Legé
TERRAIN ET MAISONTerrain viabilisé de 375 m², prêt à construire, situé dans la charmante commune de Legé. Environnement calme et agréable, proche des commodités. Une maison spacieuse et fonctionnelle, idéale pour toute la famille ! Avec son grand espace de vie lumineux, cette maison allie confort et convivialité. Le rez-de-chaussée accueille un salon, une salle à manger et une cuisine ouverte, accompagnés d’un cellier pratique, d’une salle d’eau et d’un WC indépendant. Une chambre supplémentaire offre flexibilité et confort. À l’étage, trois chambres généreuses, une salle de bain moderne et un second WC garantissent bien-être et praticité au quotidien. Un design moderne et optimisé pour un cadre de vie agréable !. Pour vous assurer un confort de vie optimal et en conformité avec la RE2025, nous avons opté pour un système de chauffage par pompe à chaleur (PAC) avec plancher chauffant au rez-de-chaussée et radiateurs à l’étage. Le logement est également équipé de volets roulants électriques. Prix hors fourniture et pose : des appareils sanitaires (sauf système de chauffage et d'eau chaude sanitaire), du carrelage et de la faïence, des revêtements de sol dans les chambres. Hors décoration et aménagement intérieur et peinture. Hors raccordements, frais de notaire et dommage ouvrage. // Réf. : 2501-209640-MVR. Prix terrain : 59 900 €, hors frais d'agence à la charge de l'acquéreur. Ce terrain vous est proposé, par nos partenaires fonciers, dans le cadre d'un projet de construction avec nous. Les informations sur les risques auxquels ce bien est exposé sont disponibles sur le site Géorisques (www.georisques.gouv.fr). Prix maison : 151 475 €.

Legé
TERRAIN ET MAISONTerrain viabilisé de 375 m², prêt à construire, situé dans la charmante commune de Legé. Environnement calme et agréable, proche des commodités. Bien pensée et fonctionnelle. Avec son architecture en L et de plain-pied, la maison CARNEY vous séduira par sa cuisine ouverte sur un bel espace de vie lumineux et ses trois chambres. Pour vous assurer un confort de vie et conformément à la RE2025, nous avons choisi un mode de chauffage par PAC + plancher chauffant, volets roulants électriques. Prix hors fourniture et pose : des appareils sanitaires (sauf système de chauffage et d'eau chaude sanitaire), du carrelage et de la faïence, des revêtements de sol dans les chambres. Hors décoration et aménagement intérieur et peinture. Hors raccordements, frais de notaire et dommage ouvrage. // Réf. : 715-209640-MVR. Prix terrain : 59 900 €, hors frais d'agence à la charge de l'acquéreur. Ce terrain vous est proposé, par nos partenaires fonciers, dans le cadre d'un projet de construction avec nous. Les informations sur les risques auxquels ce bien est exposé sont disponibles sur le site Géorisques (www.georisques.gouv.fr). Prix maison : 121 650 €.

Legé
TERRAIN ET MAISONTerrain viabilisé de 375 m², prêt à construire, situé dans la charmante commune de Legé. Environnement calme et agréable, proche des commodités. Familiale et fonctionnelle cette maison de plain-pied vous séduira par ses volumes, son très bel espace de vie de plus de 43 m² avec cuisine ouverte très lumineuse grâce à ses nombreuses ouvertures US, et cellier indépendant. La partie nuit est composée de 4 chambres avec rangement, une salle de bains et wc indépendant. Pour vous assurer un confort de vie et conformément à la RE2025, nous avons choisi un mode de chauffage par PAC + plancher chauffant, volets roulants électriques. Prix hors fourniture et pose : des appareils sanitaires (sauf système de chauffage et d'eau chaude sanitaire), du carrelage et de la faïence, des revêtements de sol dans les chambres. Hors décoration et aménagement intérieur et peinture. Hors raccordements, frais de notaire et dommage ouvrage. // Réf. : 1014-209640-MVR. Prix terrain : 59 900 €, hors frais d'agence à la charge de l'acquéreur. Ce terrain vous est proposé, par nos partenaires fonciers, dans le cadre d'un projet de construction avec nous. Les informations sur les risques auxquels ce bien est exposé sont disponibles sur le site Géorisques (www.georisques.gouv.fr). Prix maison : 133 128 €.

Legé
TERRAINTerrain viabilisé de 375 m², prêt à construire, situé dans la charmante commune de Legé. Environnement calme et agréable, proche des commodités. // Réf. : T209640. Prix terrain : 59 900 €, hors frais d'agence et de notaire à la charge de l'acquéreur. Ce terrain vous est proposé, par nos partenaires fonciers, dans le cadre d'un projet de construction avec nous. Les informations sur les risques auxquels ce bien est exposé sont disponibles sur le site Géorisques (www.georisques.gouv.fr).

Legé
TERRAINVENTE : terrain de 433 m² à LegéIDÉALEMENT SITUÉ – VUE SANS VIS-À-VISÀ Legé (44650) à 39 km de l’océan Atlantique et à 28 km de La Roche-sur-Yon, imaginez la maison de vos rêves sur ce terrain de 433 m². Ce terrain, avec une exposition sud-ouest, profite d’une vue sans vis-à-vis. Dans un secteur attractif, le terrain idéalement situé est proche des écoles et des commerces. On trouve cinq établissements scolaires à moins de 10 minutes à pied. Il y a un bassin de natation, deux boulangeries, des commerces, une boucherie-charcuterie et un bureau de poste à quelques minutes du terrain.Ce terrain est proposé à l’achat pour 54 125 €. Contactez notre agence (LADIYE MOUSSA Badri : (Numéro supprimé)) pour obtenir de plus amples renseignements sur le terrain, sur les modalités de vente ou sur les démarches à suivre. Faites de vos projets immobiliers une réalité avec Maisons de l’Avenir Orvault.

Legé
TERRAIN ET MAISONVENTE : terrain de 433 m² à LegéIDÉALEMENT SITUÉ – VUE SANS VIS-À-VISÀ Legé (44650) à 39 km de l’océan Atlantique et à 28 km de La Roche-sur-Yon, imaginez la maison de vos rêves sur ce terrain de 433 m². Ce terrain, avec une exposition sud-ouest, profite d’une vue sans vis-à-vis. Dans un secteur attractif, le terrain idéalement situé est proche des écoles et des commerces. On trouve cinq établissements scolaires à moins de 10 minutes à pied. Il y a un bassin de natation, deux boulangeries, des commerces, une boucherie-charcuterie et un bureau de poste à quelques minutes du terrain.Ce terrain est proposé à l’achat pour 54 125 €. Contactez notre agence (LADIYE MOUSSA Badri : (Numéro supprimé)) pour obtenir de plus amples renseignements sur le terrain, sur les modalités de vente ou sur les démarches à suivre. Faites de vos projets immobiliers une réalité avec Maisons de l’Avenir Orvault.

Legé
TERRAIN ET MAISONVENTE : terrain de 433 m² à LegéIDÉALEMENT SITUÉ – VUE SANS VIS-À-VISÀ Legé (44650) à 39 km de l’océan Atlantique et à 28 km de La Roche-sur-Yon, imaginez la maison de vos rêves sur ce terrain de 433 m². Ce terrain, avec une exposition sud-ouest, profite d’une vue sans vis-à-vis. Dans un secteur attractif, le terrain idéalement situé est proche des écoles et des commerces. On trouve cinq établissements scolaires à moins de 10 minutes à pied. Il y a un bassin de natation, deux boulangeries, des commerces, une boucherie-charcuterie et un bureau de poste à quelques minutes du terrain.Ce terrain est proposé à l’achat pour 54 125 €. Contactez notre agence (LADIYE MOUSSA Badri : (Numéro supprimé)) pour obtenir de plus amples renseignements sur le terrain, sur les modalités de vente ou sur les démarches à suivre. Faites de vos projets immobiliers une réalité avec Maisons de l’Avenir Orvault.

Legé
TERRAIN ET MAISONVENTE : terrain de 433 m² à LegéIDÉALEMENT SITUÉ – VUE SANS VIS-À-VISÀ Legé (44650) à 39 km de l’océan Atlantique et à 28 km de La Roche-sur-Yon, imaginez la maison de vos rêves sur ce terrain de 433 m². Ce terrain, avec une exposition sud-ouest, profite d’une vue sans vis-à-vis. Dans un secteur attractif, le terrain idéalement situé est proche des écoles et des commerces. On trouve cinq établissements scolaires à moins de 10 minutes à pied. Il y a un bassin de natation, deux boulangeries, des commerces, une boucherie-charcuterie et un bureau de poste à quelques minutes du terrain.Ce terrain est proposé à l’achat pour 54 125 €. Contactez notre agence (LADIYE MOUSSA Badri : (Numéro supprimé)) pour obtenir de plus amples renseignements sur le terrain, sur les modalités de vente ou sur les démarches à suivre. Faites de vos projets immobiliers une réalité avec Maisons de l’Avenir Orvault.

Legé
TERRAIN ET MAISONVENTE d’une maison T4 (180 m²) à LegéIDÉALEMENT SITUÉE – MAISON 4 PIÈCES NEUVEÀ vendre à 39 km de la côte atlantique et à quelques kilomètres de La Roche-sur-Yon, nous vous proposons cette maison de 4 pièces de 180 m² et de 433 m² de terrain idéalement située dans Legé (44650). Elle inclut quatre chambres, une cuisine et deux salles de bains.C’est une maison de 2 niveaux. Elle est neuve.La maison se trouve dans un secteur prisé. Cinq établissements scolaires sont implantés à moins de 10 minutes à pied. Il y a un bassin de natation, deux boulangeries, des commerces, un bureau de poste et une boucherie-charcuterie à proximité du bien.Son prix de vente est de 450 150 €.Prenez contact avec notre agence (LADIYE MOUSSA Badri : (Numéro supprimé)) pour toute information sur la maison, sur les démarches à suivre ou sur les modalités de vente.
L’actualité immobilière à Legé
