Maison à construire à Mûrs-Erigné (49610)
Images
Description
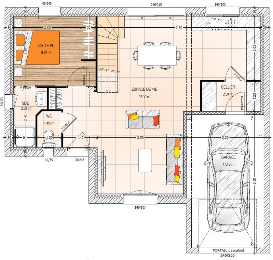
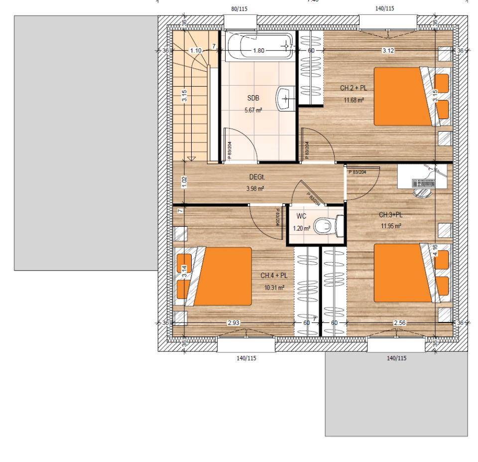
VENTE d'une maison T6 (99 m²) à Mûrs-Erigné
Proche d'Angers - À Mûrs-Erigné (49610), maison neuve à vendre de 6 pièces, 2 niveaux, 99 m² de surface et 584 m² de terrain. Elle propose quatre chambres, une cuisine et deux salles de bains.
Proche gares, écoles, crèches, tennis, commerces et bureau de poste. Accès autoroute A87 à 1 km.
Cette maison de 6 pièces est proposée à l'achat pour 342 500 €.
Contactez notre agence (SALAS Roman : (Numéro supprimé)) pour toute information sur la maison, sur les modalités de vente ou sur les démarches à suivre.
Logement susceptibles de vous intéresser
Nous vous proposons de découvrir aussi cette sélection de logements situés à moins de 10km de Mûrs-Erigné et qui seraient susceptibles de vous intéresser.
Angers
TERRAIN ET MAISONNous vous proposons cette maison neuve, baptisée « »Élégance » », un modèle qui se distingue par sa forme architecturale en L, offrant à la fois style et fonctionnalité. Avec une surface habitable de 78 m², cette maison de plain-pied est conçue pour optimiser l’espace et la lumière naturelle, créant ainsi un cadre de vie à la fois confortable et esthétique.L’Élégance se compose de 3 pièces principales, dont 2 chambres spacieuses, promettant un espace de vie idéal pour une petite famille ou un couple. Le grand salon-séjour, cœur de la maison, s’ouvre sur une cuisine moderne et entièrement équipée, formant un espace ouvert parfait pour les moments de partage et de convivialité. Un garage intégré, accessible depuis l’intérieur de la maison, ainsi qu’un cellier pratique, ajoutent à la fonctionnalité de ce modèle.Cette maison est personnalisable selon vos désirs et besoins, vous permettant de créer un intérieur qui vous ressemble. Que vous rêviez d’une salle de bain supplémentaire, d’un bureau ou d’une chambre d’amis, l’Élégance s’adapte à votre mode de vie.L’une des caractéristiques les plus appréciées de ce modèle est son enduit bi-ton, qui lui confère une allure moderne et élégante, soulignant ainsi son architecture unique. Mais ce qui distingue véritablement l’Élégance, c’est son engagement envers l’environnement. Cette maison est conçue pour être basse consommation et répond aux exigences de la norme RE2020, garantissant ainsi une efficacité énergétique optimale et une réduction significative de votre empreinte carbone.En choisissant l’Élégance, vous optez pour une maison qui allie esthétique, confort et respect de l’environnement. Une opportunité à ne pas manquer pour ceux qui cherchent à investir dans un bien immobilier durable et de qualité.
Angers
TERRAINDécouvrez une opportunité unique d’acquérir un terrain de 220 m², idéal pour la construction de votre maison. Ce bien, situé au centre-ville, se distingue par sa surface plane, offrant un cadre accueillant pour votre futur projet. Sa proximité avec divers commerces et commodités en fait un choix privilégié pour les acheteurs à la recherche d’un emplacement stratégique et convivial. Idéalement situé dans une commune dynamique, ce terrain bénéficie d’un accès facile aux transports en commun, avec un arrêt de bus et une gare à proximité. Les écoles, y compris un collège et un lycée, sont également à quelques pas, garantissant un environnement familial parfait. Profitez des attraits de la ville, avec son ambiance animée et ses nombreuses activités sociales et culturelles. Le cadre de vie, allié à la commodité des infrastructures locales, fait de ce terrain un lieu de vie de choix. Ne laissez pas passer cette chance exceptionnelle d’investir dans un terrain au potentiel illimité. Nous vous invitons à envisager cette belle opportunité d’achat pour réaliser votre rêve de construction. EC (Numéro supprimé)
Les Ponts-de-Cé
TERRAIN ET MAISONVous rêvez de construire cette maison ? En choisissant My Lovely Nature, vous avez frappé à la bonne porte. Nous serons heureux de vous accompagner dans votre projet de vie au naturel.Contactez-nous au (Numéro supprimé) (My Lovely Nature – Agence de Nantes MLN).*Prix indicatif pour un projet de construction d'une maison individuelle. Ne sont pas inclus les frais de branchements, raccordements aux réseaux publics, frais d'adaptations, aménagements intérieurs et extérieurs et options. terrain viabilisé, frais de notaire non compris, frais divers non compris. Garanties et assurances obligatoires incluses. Terrain sélectionné par MY LOVELY NATURE auprès de nos partenaires fonciers, selon disponibilité, pour la construction d'une maison neuve. Non mandaté pour réaliser la vente (loi du 2 janvier 1970 n°70-9). Visuels non contractuels. Voir détails en agence.Cette annonce a été créée et diffusée avec le logiciel VITAHOME.
Les Ponts-de-Cé
TERRAIN ET MAISONVous rêvez de construire cette maison ? En choisissant My Lovely Nature, vous avez frappé à la bonne porte. Nous serons heureux de vous accompagner dans votre projet de vie au naturel.Contactez-nous au (Numéro supprimé) (My Lovely Nature – Agence de Nantes MLN).*Prix indicatif pour un projet de construction d'une maison individuelle. Ne sont pas inclus les frais de branchements, raccordements aux réseaux publics, frais d'adaptations, aménagements intérieurs et extérieurs et options. terrain viabilisé, frais de notaire non compris, frais divers non compris. Garanties et assurances obligatoires incluses. Terrain sélectionné par MY LOVELY NATURE auprès de nos partenaires fonciers, selon disponibilité, pour la construction d'une maison neuve. Non mandaté pour réaliser la vente (loi du 2 janvier 1970 n°70-9). Visuels non contractuels. Voir détails en agence.Cette annonce a été créée et diffusée avec le logiciel VITAHOME.
Les Ponts-de-Cé
TERRAIN ET MAISONVous rêvez de construire cette maison ? En choisissant My Lovely Nature, vous avez frappé à la bonne porte. Nous serons heureux de vous accompagner dans votre projet de vie au naturel.Contactez-nous au (Numéro supprimé) (My Lovely Nature – Agence de Nantes MLN).*Prix indicatif pour un projet de construction d'une maison individuelle. Ne sont pas inclus les frais de branchements, raccordements aux réseaux publics, frais d'adaptations, aménagements intérieurs et extérieurs et options. terrain viabilisé, frais de notaire non compris, frais divers non compris. Garanties et assurances obligatoires incluses. Terrain sélectionné par MY LOVELY NATURE auprès de nos partenaires fonciers, selon disponibilité, pour la construction d'une maison neuve. Non mandaté pour réaliser la vente (loi du 2 janvier 1970 n°70-9). Visuels non contractuels. Voir détails en agence.Cette annonce a été créée et diffusée avec le logiciel VITAHOME.
Les Ponts-de-Cé
TERRAIN ET MAISONVous rêvez de construire cette maison ? En choisissant My Lovely Nature, vous avez frappé à la bonne porte. Nous serons heureux de vous accompagner dans votre projet de vie au naturel.Contactez-nous au (Numéro supprimé) (My Lovely Nature – Agence de Nantes MLN).*Prix indicatif pour un projet de construction d'une maison individuelle. Ne sont pas inclus les frais de branchements, raccordements aux réseaux publics, frais d'adaptations, aménagements intérieurs et extérieurs et options. terrain viabilisé, frais de notaire non compris, frais divers non compris. Garanties et assurances obligatoires incluses. Terrain sélectionné par MY LOVELY NATURE auprès de nos partenaires fonciers, selon disponibilité, pour la construction d'une maison neuve. Non mandaté pour réaliser la vente (loi du 2 janvier 1970 n°70-9). Visuels non contractuels. Voir détails en agence.Cette annonce a été créée et diffusée avec le logiciel VITAHOME.
Les Ponts-de-Cé
TERRAIN ET MAISONVous rêvez de construire cette maison ? En choisissant My Lovely Nature, vous avez frappé à la bonne porte. Nous serons heureux de vous accompagner dans votre projet de vie au naturel.Contactez-nous au (Numéro supprimé) (My Lovely Nature – Agence de Nantes MLN).*Prix indicatif pour un projet de construction d'une maison individuelle. Ne sont pas inclus les frais de branchements, raccordements aux réseaux publics, frais d'adaptations, aménagements intérieurs et extérieurs et options. terrain viabilisé, frais de notaire non compris, frais divers non compris. Garanties et assurances obligatoires incluses. Terrain sélectionné par MY LOVELY NATURE auprès de nos partenaires fonciers, selon disponibilité, pour la construction d'une maison neuve. Non mandaté pour réaliser la vente (loi du 2 janvier 1970 n°70-9). Visuels non contractuels. Voir détails en agence.Cette annonce a été créée et diffusée avec le logiciel VITAHOME.
Les Ponts-de-Cé
TERRAIN ET MAISONVous rêvez de construire cette maison ? En choisissant My Lovely Nature, vous avez frappé à la bonne porte. Nous serons heureux de vous accompagner dans votre projet de vie au naturel.Contactez-nous au (Numéro supprimé) (My Lovely Nature – Agence de Nantes MLN).*Prix indicatif pour un projet de construction d'une maison individuelle. Ne sont pas inclus les frais de branchements, raccordements aux réseaux publics, frais d'adaptations, aménagements intérieurs et extérieurs et options. terrain viabilisé, frais de notaire non compris, frais divers non compris. Garanties et assurances obligatoires incluses. Terrain sélectionné par MY LOVELY NATURE auprès de nos partenaires fonciers, selon disponibilité, pour la construction d'une maison neuve. Non mandaté pour réaliser la vente (loi du 2 janvier 1970 n°70-9). Visuels non contractuels. Voir détails en agence.Cette annonce a été créée et diffusée avec le logiciel VITAHOME.
Les Ponts-de-Cé
TERRAIN ET MAISONVous rêvez de construire cette maison ? En choisissant My Lovely Nature, vous avez frappé à la bonne porte. Nous serons heureux de vous accompagner dans votre projet de vie au naturel.Contactez-nous au (Numéro supprimé) (My Lovely Nature – Agence de Nantes MLN).*Prix indicatif pour un projet de construction d'une maison individuelle. Ne sont pas inclus les frais de branchements, raccordements aux réseaux publics, frais d'adaptations, aménagements intérieurs et extérieurs et options. terrain viabilisé, frais de notaire non compris, frais divers non compris. Garanties et assurances obligatoires incluses. Terrain sélectionné par MY LOVELY NATURE auprès de nos partenaires fonciers, selon disponibilité, pour la construction d'une maison neuve. Non mandaté pour réaliser la vente (loi du 2 janvier 1970 n°70-9). Visuels non contractuels. Voir détails en agence.Cette annonce a été créée et diffusée avec le logiciel VITAHOME.
L’actualité immobilière à Mûrs-Erigné
27/11/2023
02/11/2023
30/10/2023
20/10/2023
16/10/2023
16/10/2023