Images
Description
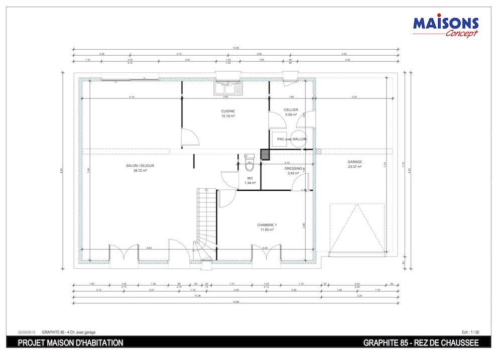
Nous vous proposons cette maison neuve, baptisée ""Graphite"", un modèle à étage qui combine habilement espace et élégance. Avec une surface habitable de 99 m², cette maison est conçue pour répondre aux besoins de confort et de fonctionnalité de ses résidents. Elle se distingue par son architecture soignée, offrant une avancée de façade avec un pignon qui lui confère une originalité remarquable tout en préservant un style traditionnel.
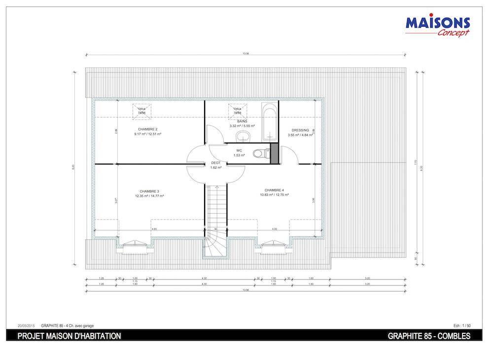
La ""Graphite"" est composée de 4 chambres réparties intelligemment pour garantir l'intimité de chacun, et de 4 pièces conçues pour maximiser l'espace de vie commun. La dalle de l'étage en béton assure une solidité et une isolation phonique de qualité, tandis que les combles aménagés offrent un espace supplémentaire, idéal pour une salle de jeux, un bureau ou une chambre d'amis.
La suite parentale, située au rez-de-chaussée, est pensée pour offrir un espace privé et confortable aux parents, avec un accès direct à la salle de bain et au dressing. Le garage accolé à la maison est un atout supplémentaire, offrant un espace de rangement pratique ou un abri sécurisé pour votre véhicule.
Parmi les options les plus plébiscitées par nos clients, la ""Graphite"" peut être personnalisée avec des lucarnes, apportant plus de lumière et d'espace à l'étage, et des baies coulissantes, pour une ouverture élégante sur l'extérieur et une luminosité accrue dans les pièces de vie.
Cette maison neuve est également conçue pour être basse consommation, conformément à la réglementation environnementale RE2020. Cela signifie que vous bénéficierez non seulement d'un confort optimal été comme hiver, mais aussi d'une réduction significative de vos factures énergétiques.
Choisir la maison ""Graphite"", c'est opter pour une habitation qui allie esthétique, confort et respect de l'environnement. Une maison où il fera bon vivre, conçue pour s'adapter à votre mode de vie et à vos envies.
Logement susceptibles de vous intéresser
Nous vous proposons de découvrir aussi cette sélection de logements situés à moins de 10km de Verrières-en-Anjou et qui seraient susceptibles de vous intéresser.
Saint-Barthélemy-d'Anjou
TERRAIN ET MAISONNous vous proposons cette maison neuve, baptisée Crescendo, un modèle d’exception qui incarne l’harmonie parfaite entre innovation architecturale et respect de l’environnement. Conçue par un architecte de renom de Maisons Concept, Crescendo se distingue par son design unique, mêlant avec audace formes contemporaines et fonctionnalité.Avec une surface habitable de 85 m², cette maison basse consommation est parfaitement adaptée aux exigences de la vie moderne tout en étant conforme à la norme RE2020, garantissant ainsi une efficacité énergétique optimale et un respect inégalé de l’environnement. Son toit monopente, signature esthétique de ce modèle, ne manquera pas de capter le regard, offrant à la fois modernité et singularité à l’ensemble.L’intérieur de Crescendo est pensé pour le confort et la luminosité, avec un agencement intelligent de 4 pièces, dont 3 chambres accueillantes, promettant un espace de vie idéal pour une famille. Chaque pièce a été conçue pour maximiser l’espace et la lumière naturelle, créant ainsi des environnements à la fois ouverts et chaleureux.Les options les plus plébiscitées par nos clients, telles que des solutions d’économie d’énergie avancées et des matériaux de construction écologiques, sont intégrées de série dans Crescendo, vous assurant une maison non seulement belle et confortable mais également responsable.Dessinée par un architecte Maisons Concept, cette maison contemporaine se distingue par ses nuances et ses contrastes. Ses formes cubiques modernes sont adoucies par son toit en demi-pente. Son caractère à la fois moderne et confortable offre néanmoins une touche traditionnelle rassurante et originale. Sa modularité vous permettra d’en faire la maison idéale en fonction de vos besoins.Crescendo est plus qu’une maison, c’est un engagement vers un mode de vie durable sans compromis sur le style ou le confort. Une opportunité unique de construire votre futur dans un cadre respectueux de l’environnement et à la pointe de la
Saint-Barthélemy-d'Anjou
TERRAINNous avons le plaisir de vous proposer ce magnifique terrain à vendre, idéalement situé dans un lotissement prisé de Saint-Barthélemy-d’Anjou. Avec une superficie de 271 m², ce terrain viabilisé est parfait pour un projet de construction de maison. Sa configuration plate et son absence de vis-à-vis en font une toile vierge pour réaliser la maison de vos rêves, dans un cadre de vie paisible et agréable. Située dans le département de Maine-et-Loire, Saint-Barthélemy-d’Anjou, à proximité, vous trouverez toutes les infrastructures nécessaires, notamment des écoles, un collège et un lycée, ainsi que des commerces pour répondre à vos besoins quotidiens. Le quartier est bien desservi par les transports en commun, avec des arrêts de bus et une gare à proximité, et à seulement quelques minutes des accès aux autoroutes. Un emplacement recherché pour vivre en harmonie avec votre famille tout en restant proche des commodités de la ville. Ne laissez pas passer cette opportunité unique d’acquérir un terrain au potentiel indéniable dans une ville dynamique. N’hésitez pas à nous contacter pour plus de renseignements et envisager votre futur projet de construction.
Angers
TERRAIN ET MAISONNous vous proposons cette maison neuve, baptisée « »Élégance » », un modèle qui se distingue par sa forme architecturale en L, offrant à la fois style et fonctionnalité. Avec une surface habitable de 78 m², cette maison de plain-pied est conçue pour optimiser l’espace et la lumière naturelle, créant ainsi un cadre de vie à la fois confortable et esthétique.L’Élégance se compose de 3 pièces principales, dont 2 chambres spacieuses, promettant un espace de vie idéal pour une petite famille ou un couple. Le grand salon-séjour, cœur de la maison, s’ouvre sur une cuisine moderne et entièrement équipée, formant un espace ouvert parfait pour les moments de partage et de convivialité. Un garage intégré, accessible depuis l’intérieur de la maison, ainsi qu’un cellier pratique, ajoutent à la fonctionnalité de ce modèle.Cette maison est personnalisable selon vos désirs et besoins, vous permettant de créer un intérieur qui vous ressemble. Que vous rêviez d’une salle de bain supplémentaire, d’un bureau ou d’une chambre d’amis, l’Élégance s’adapte à votre mode de vie.L’une des caractéristiques les plus appréciées de ce modèle est son enduit bi-ton, qui lui confère une allure moderne et élégante, soulignant ainsi son architecture unique. Mais ce qui distingue véritablement l’Élégance, c’est son engagement envers l’environnement. Cette maison est conçue pour être basse consommation et répond aux exigences de la norme RE2020, garantissant ainsi une efficacité énergétique optimale et une réduction significative de votre empreinte carbone.En choisissant l’Élégance, vous optez pour une maison qui allie esthétique, confort et respect de l’environnement. Une opportunité à ne pas manquer pour ceux qui cherchent à investir dans un bien immobilier durable et de qualité.
Angers
TERRAINDécouvrez une opportunité unique d’acquérir un terrain de 220 m², idéal pour la construction de votre maison. Ce bien, situé au centre-ville, se distingue par sa surface plane, offrant un cadre accueillant pour votre futur projet. Sa proximité avec divers commerces et commodités en fait un choix privilégié pour les acheteurs à la recherche d’un emplacement stratégique et convivial. Idéalement situé dans une commune dynamique, ce terrain bénéficie d’un accès facile aux transports en commun, avec un arrêt de bus et une gare à proximité. Les écoles, y compris un collège et un lycée, sont également à quelques pas, garantissant un environnement familial parfait. Profitez des attraits de la ville, avec son ambiance animée et ses nombreuses activités sociales et culturelles. Le cadre de vie, allié à la commodité des infrastructures locales, fait de ce terrain un lieu de vie de choix. Ne laissez pas passer cette chance exceptionnelle d’investir dans un terrain au potentiel illimité. Nous vous invitons à envisager cette belle opportunité d’achat pour réaliser votre rêve de construction. EC (Numéro supprimé)
Loire-Authion
TERRAIN ET MAISONCorné : maison de 4 pièces (75 m²) à vendreProche d’Angers – À découvrir à Corné (49630) : maison neuve 4 pièces à vendre. Surface de 75 m² sur 499 m² de terrain. Son intérieur compte deux chambres, une cuisine et une salle de bains.À dix minutes : gares (Saint-Mathurin-sur-Loire, La Bohalle et La Ménitré), établissements scolaires, crèches, bassins de natation, bibliothèques, tennis, port de plaisance, boulangeries, commerces, supermarchés, épiceries et supérettes. Marché Place Jeanne Laval le mercredi matin. Autoroute A85 accessible à 9 km.Cette maison de 4 pièces est proposée à l’achat pour 244 000 €.Contactez Roman SALAS ((Numéro supprimé)) pour toute information sur la maison de plain-pied. Donnez vie à vos projets immobiliers avec Maisons Bernard Jambert Angers.
Loire-Authion
TERRAIN ET MAISONMaison T5 (87 m²) en vente à CornéProche d’Angers – À découvrir à Corné (49630) : maison neuve 5 pièces à vendre. 2 niveaux, surface de 87 m² sur 499 m² de terrain. Son intérieur est composé de trois chambres, d’une cuisine et d’une salle de bains.Proche gares (Saint-Mathurin-sur-Loire, La Bohalle et La Ménitré), établissements scolaires, crèches, bassins de natation, bibliothèques, tennis, port de plaisance, boulangeries, commerces, supermarchés, bureaux de poste et boucheries-charcuteries. Marché Place Jeanne Laval le mercredi matin. Autoroute A85 accessible à 9 km.Cette maison de 5 pièces est à vendre pour la somme de 264 100 €.Contactez Roman SALAS (tél : (Numéro supprimé)) pour plus de renseignements sur la maison, sur les modalités de vente ou sur les démarches à suivre.
Loire-Authion
TERRAIN ET MAISONVENTE : maison T5 (131 m²) à CornéProche d’Angers – À Corné (49630), maison neuve à vendre de 5 pièces, 131 m² de surface et 499 m² de terrain. Conçue de plain-pied, elle comporte trois chambres, une cuisine et deux salles de bains.À proximité : gares (Saint-Mathurin-sur-Loire, La Bohalle et La Ménitré), établissements scolaires, crèches, bassins de natation, bibliothèques, tennis, port de plaisance, boulangeries, commerces, supermarchés, supérettes et boucheries-charcuteries. Marché Place Jeanne Laval le mercredi matin. Accès autoroute A85 à 9 km.Cette maison de 5 pièces est à vendre pour la somme de 338 600 €.Prenez contact avec Roman SALAS (tél : (Numéro supprimé)) pour toute question sur la maison. Maisons Bernard Jambert Angers vous accompagne dans toutes vos démarches et dans tous vos projets immobiliers.
Rives-du-Loir-en-Anjou
TERRAIN ET MAISONVENTE d’une maison de 5 pièces (119 m²) à SoucellesProche d’Angers – À découvrir à Soucelles (49140) : maison neuve 5 pièces en vente. 2 niveaux, surface de 119 m² sur 551 m² de terrain. Son intérieur dispose de quatre chambres, d’une cuisine et de deux salles de bains.À dix minutes : gares (Le Vieux Briollay et Tiercé), écoles, tennis, port de plaisance, supermarchés, boulangerie et bureau de poste. Autoroutes A11, A85 et A87N accessibles à 10 km.Cette maison de 5 pièces est proposée à l’achat pour 341 000 €.Contactez Roman SALAS ((Numéro supprimé)) pour toute question sur la maison, sur les démarches à suivre ou sur les modalités de vente.
Loire-Authion
TERRAINCorné : terrain de 499 m² à vendreProche d’Angers – À vendre : construisez la maison de vos rêves sur ce terrain de 499 m² à Corné (49630).À dix minutes : gares (Saint-Mathurin-sur-Loire, La Bohalle et La Ménitré), établissements scolaires, crèches, bassins de natation, bibliothèques, tennis, port de plaisance, boulangeries, commerces, supermarchés, boucheries-charcuteries et supérettes. Marché Place Jeanne Laval le mercredi matin. Accès autoroute A85 à 9 km.Il est proposé à l’achat pour 84 900 €. Contactez notre agence (SALAS Roman : (Numéro supprimé)) pour obtenir de plus amples informations sur le terrain ou sur les démarches à suivre. Maisons Bernard Jambert Angers est là pour vous accompagner dans tous vos projets immobiliers.
L’actualité immobilière à Verrières-en-Anjou
27/11/2023
02/11/2023
30/10/2023
20/10/2023
16/10/2023
16/10/2023