Images
Description
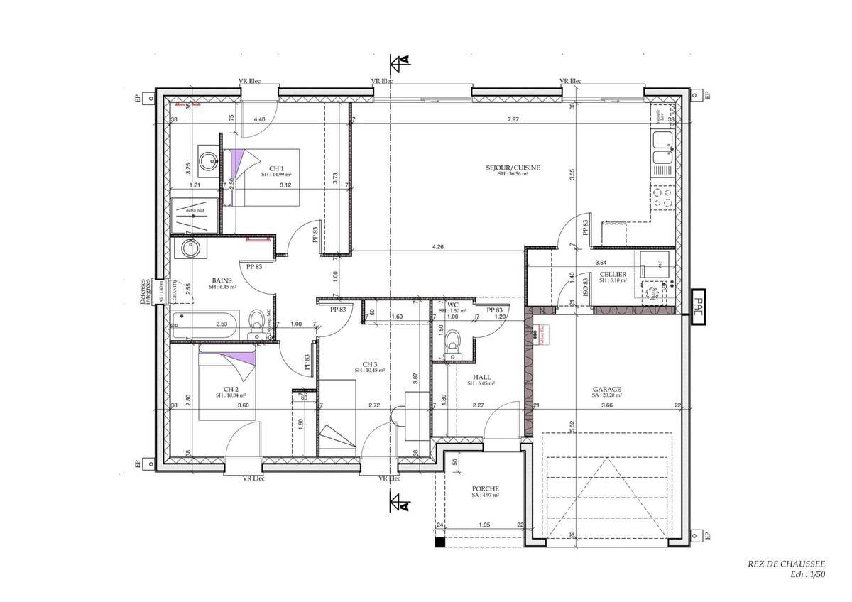
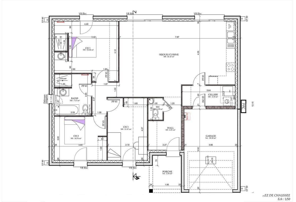
Sur ce terrain, nous vous proposons cette maison neuve : la Verdania. Conçue par Babeau-Seguin, constructeur reconnu pour offrir le meilleur rapport qualité/prix du marché, cette maison de 100 m² incarne l’équilibre parfait entre confort et accessibilité.
La Verdania se distingue par son architecture en L et sa toiture à 4 pans, offrant une allure moderne et élégante. Dès l’entrée, un porche accueillant vous invite à découvrir un intérieur spacieux et lumineux. Le grand séjour, baigné de lumière grâce à ses baies coulissantes, est le cœur de cette maison, idéal pour des moments conviviaux en famille.
Cette maison dispose de 4 pièces, dont 3 chambres confortables. La suite parentale, véritable havre de paix, est conçue pour offrir intimité et confort. La salle de bain est équipée à la fois d’une douche et d’une baignoire, répondant ainsi aux besoins de toute la famille.
Le garage intégré et le cellier ajoutent une touche de praticité, facilitant le quotidien. De plus, la Verdania est conforme aux normes RE2020, garantissant une maison basse consommation et respectueuse de l’environnement.
Les options les plus demandées par nos clients, telles que la terrasse bétonnée, peuvent être ajoutées pour personnaliser encore davantage votre future maison.
Ne manquez pas cette opportunité unique d’acquérir une maison neuve, économique et écologique, parfaitement adaptée aux besoins des familles modernes. La Verdania, c’est l’assurance d’un investissement intelligent et durable.
Logement susceptibles de vous intéresser
Nous vous proposons de découvrir aussi cette sélection de logements situés à moins de 10km de Chaudefontaine et qui seraient susceptibles de vous intéresser.
Chaudefontaine
TERRAIN ET MAISONSur ce terrain, nous vous proposons cette maison neuve : la Verdania. Conçue par Babeau-Seguin, constructeur reconnu pour offrir le meilleur rapport qualité/prix du marché, cette maison de 100 m² incarne l’équilibre parfait entre confort et accessibilité.La Verdania se distingue par son architecture en L et sa toiture à 4 pans, offrant une allure moderne et élégante. Dès l’entrée, un porche accueillant vous invite à découvrir un intérieur spacieux et lumineux. Le grand séjour, baigné de lumière grâce à ses baies coulissantes, est le cœur de cette maison, idéal pour des moments conviviaux en famille.Cette maison dispose de 4 pièces, dont 3 chambres confortables. La suite parentale, véritable havre de paix, est conçue pour offrir intimité et confort. La salle de bain est équipée à la fois d’une douche et d’une baignoire, répondant ainsi aux besoins de toute la famille.Le garage intégré et le cellier ajoutent une touche de praticité, facilitant le quotidien. De plus, la Verdania est conforme aux normes RE2020, garantissant une maison basse consommation et respectueuse de l’environnement.Les options les plus demandées par nos clients, telles que la terrasse bétonnée, peuvent être ajoutées pour personnaliser encore davantage votre future maison.Ne manquez pas cette opportunité unique d’acquérir une maison neuve, économique et écologique, parfaitement adaptée aux besoins des familles modernes. La Verdania, c’est l’assurance d’un investissement intelligent et durable.
Chaudefontaine
TERRAINDécouvrez ce magnifique terrain à vendre sur la commune de Chaudefontaine, situé dans le département de la Marne, au cœur de la région Grand Est. Avec une superficie de 1509m², ce terrain plat et non viabilisé se distingue par ses caractéristiques exceptionnelles : ensoleillé, arboré et offrant un cadre champêtre au calme. C’est l’opportunité idéale pour donner vie à votre projet de construction de maison dans un environnement paisible et harmonieux. Chaudefontaine est une ville pleine de charme, où la nature prédomine et où les habitants peuvent profiter d’une qualité de vie incomparable. À proximité, vous trouverez des commodités telles que des commerces de proximité, des écoles et des services de santé. La région offre également de nombreuses attractions locales, y compris des sentiers de randonnée et des espaces verts attrayants, parfaits pour les amateurs de plein air. C’est un véritable havre de paix qui vous attend, tout en restant connecté aux grandes villes voisines. Ne manquez pas cette occasion unique d’investir dans un terrain au potentiel énorme. Contactez-nous dès maintenant pour en savoir plus sur cette offre exceptionnelle et planifiez votre futur rêve immobilier ! À noter qu’en tant que constructeur, nous ne sommes pas mandatés pour réaliser la vente de ce terrain.
Chaudefontaine
TERRAINSur le secteur de Sainte Menehould, ce grand terrain vous offre une vue panoramique sur la commune et les forêts alentours. En bordure d’une zone résidentielle à faible densité, vous profiterez d’un environnement particulièrement calme et à l’abri de toute circulation. Un accès immédiat à la voie verte vous permet de rejoindre la ville sans contraintes, à pieds ou à vélo. Sainte Menehould propose toutes les commodités d’une ville à taille humaine et ses équipements sportifs n’ont pas d’équivalent à moins d’une demi-heure de route. Enfin, la proximité de l’autoroute A4 en fond un secteur accessible facilement.Le terrain a été préparé afin d’être rapidement viabilisé et tous les passages de gaines sont en place. Les gaines elles-même sont déjà en limite de parcelle.L’accès à la future construction a été réalisée sur la base de matériaux à forte résistance compactés à 20 tonnes. Les aménagements déjà réalisés permettent la création d’un environnement paysagé personnalisé.Le terrain est borné et la présence d’un puits est référencée.Parcelle rare sur les secteur. Contactez moi sans tarder pour plus d’informations ou une visite.
Valmy
TERRAIN ET MAISONSur ce terrain, nous vous proposons cette maison neuve, la Ménilière Sud, conçue par Babeau-Seguin, constructeur offrant le meilleur rapport qualité/prix du marché. Cette superbe maison traditionnelle du sud, avec ses galeries et ses tuiles canal, dispose d’une surface de 100 m² et comprend 3 chambres et 4 pièces.La Ménilière Sud est une maison basse consommation, conforme à la RE2020, garantissant des économies d’énergie et un confort optimal tout au long de l’année. Elle est équipée d’un garage intégré, et vous avez le choix entre un toit à 2 pans ou à 4 pans, selon vos préférences.Offrant beaucoup de cachet, la Ménilière Sud est facilement personnalisable pour répondre à vos besoins et à vos goûts. Son porche avant pratique vous évitera la panique de chercher vos clés les jours de pluie. Ce modèle est particulièrement apprécié pour son excellent rapport qualité/prix, ce qui en fait l’un des modèles sur-mesure les plus vendus.Ne manquez pas cette opportunité unique d’acquérir une maison neuve, économe en énergie et parfaitement adaptée à vos envies. Contactez-nous dès maintenant pour plus d’informations et pour découvrir toutes les possibilités de personnalisation de la Ménilière Sud.
Gizaucourt
TERRAINDécouvrez ce terrain unique en son genre, d’une surface de 1012m², situé dans la charmante commune de Gizaucourt, dans le département de la Marne. Ce terrain, encore non-viabilisé, offre un cadre idéal pour réaliser votre projet de construction de maison. Profitez d’un environnement calme et arboré, propice à l’épanouissement et à la tranquillité. Sa situation ensoleillée en fait un lieu de vie parfait pour ceux qui souhaitent s’installer dans un espace authentique et préservé. Gizaucourt, située au cœur de la région Grand Est, est une ville à taille humaine qui séduit par son cadre champêtre et sa qualité de vie. À proximité, vous trouverez de nombreuses attractions locales, ainsi que des commodités essentielles telles qu’écoles, commerces et services de santé. La région est également riche en paysages naturels, offrant ainsi de multiples possibilités d’activités de plein air pour les amoureux de la nature. Cet emplacement privilégié présente un potentiel immense pour quiconque désire s’implanter dans une communauté dynamique et accueillante. Ne manquez pas cette opportunité rare d’acquérir un terrain prêt à accueillir votre projet de rêve. Contactez-nous dès aujourd’hui pour plus d’informations et pour envisager les possibilités qu’offre ce joli coin de la Marne. À noter qu’en tant que constructeur, nous ne sommes pas mandatés pour réaliser la vente de ce terrain.
Gizaucourt
TERRAIN ET MAISONSur ce terrain, nous vous proposons cette maison neuve : la Focus Family. Conçue par Babeau-Seguin, constructeur offrant le meilleur rapport qualité/prix du marché, cette maison familiale à tout petit prix est idéale pour ceux qui souhaitent allier confort et économies.Avec une surface habitable de 89 m², la Focus Family vous offre un espace généreux et bien agencé. Elle comprend 4 chambres, parfaites pour accueillir toute votre famille, ainsi qu’un grand séjour traversant avec cuisine ouverte, pour un total de 4 pièces. Vous apprécierez également le garage intégré, pratique pour stationner votre véhicule ou pour du rangement supplémentaire.L’enduit bi-ton de la façade apporte une touche moderne et élégante à cette maison. De plus, les options les plus demandées par nos clients, comme les menuiseries en aluminium, sont disponibles pour personnaliser votre future habitation selon vos goûts.La Focus Family est une maison basse consommation, conforme à la réglementation environnementale RE2020. Elle est équipée des dernières innovations technologiques pour garantir une isolation thermique et phonique optimale, tout en étant économique et respectueuse de l’environnement.Ne faites aucune concession sur la qualité avec cette maison low cost de luxe. Babeau-Seguin met tout son savoir-faire et son professionnalisme dans la construction de la gamme Focus, en utilisant les meilleurs matériaux et une charpente traditionnelle.N’attendez plus pour réaliser votre projet de maison familiale à petit prix avec la Focus Family, une maison spacieuse, écolo et accessible à tous les budgets.
Valmy
TERRAINNous vous présentons un terrain à vendre d’une belle surface de 902m², situé à Valmy dans la Marne (Grand Est). Ce terrain non-viabilisé offre des caractéristiques uniques : un environnement calme, arboré et ensoleillé, parfait pour réaliser votre projet de construction de maison. Le cadre champêtre des lieux ajoute un charme indéniable, vous permettant de vous établir dans un havre de paix où il fait bon vivre. Valmy est une commune qui se distingue par son atmosphère sereine, tout en étant à proximité de commodités essentielles et d’attractions locales. Profitez d’une tranquillité de vie tout en pouvant accéder facilement aux services et infrastructures nécessaires. La région dynamique du Grand Est séduit par sa richesse naturelle et culturelle, vous offrant ainsi un cadre de vie exceptionnel. Que ce soit pour des activités de loisirs en plein air ou des moments de détente, Valmy saura vous séduire par son authenticité et son attrait. Ne manquez pas cette occasion unique d’acquérir un terrain au potentiel prometteur. Contactez-nous dès aujourd’hui pour discuter de cette opportunité d’achat ! À noter qu’en tant que constructeur, nous ne sommes pas mandatés pour réaliser la vente de ce terrain.
La Neuville-au-Pont
TERRAIN ET MAISONSur ce terrain, nous vous proposons cette maison neuve : la Verdania. Conçue par Babeau-Seguin, constructeur reconnu pour offrir le meilleur rapport qualité/prix du marché, cette maison de 91 m² allie confort, modernité et économie d’énergie.L’équilibre parfait entre confort et accessibilitéDécouvrez la maison Verdania, un modèle ingénieux qui incarne l’alliance entre le confort familial et un prix canon. Bénéficiant de notre collaboration étroite avec des partenaires industriels de confiance, Verdania offre une généreuse superficie de 91 m² au meilleur rapport qualité-prix.Cette maison en L, caractérisée par un porche accueillant à l’entrée, est conçue pour répondre aux attentes des familles modernes soucieuses de leur budget. La toiture à 4 pans et les baies coulissantes apportent une touche d’élégance et de modernité à l’ensemble.Verdania : Économique, écologique et intelligemment conçueVerdania va au-delà de l’aspect financier maîtrisé en intégrant des équipements économiques et écologiques de pointe, alignés avec les normes de la RE2020. L’architecture en L offre un grand séjour lumineux, illuminé par deux baies vitrées, créant ainsi un espace convivial et chaleureux. La maison inclut également un cellier et un garage intelligemment intégré dans la partie en L.Avec une salle de bain comprenant à la fois douche et baignoire, ainsi que trois chambres dont une suite parentale, Verdania répond aux besoins d’un grand nombre de familles tout en respectant leur budget. L’équilibre parfait entre prix maîtrisé et confort de vie optimum.Les options les plus demandées par nos clients, telles qu’une terrasse bétonnée, peuvent être ajoutées pour parfaire votre projet.Ne manquez pas cette opportunité unique d’acquérir une maison neuve, basse consommation et conforme à la RE2020, qui saura répondre à toutes vos attentes. Contactez-nous dès aujourd’hui pour plus d’informations et pour planifier une visite.
Sainte-Menehould
TERRAINDécouvrez ce magnifique terrain de 756 m², idéalement situé dans le charmant lotissement de Sainte-Menehould, dans la Marne. Ce terrain viabilisé et plat offre un cadre de vie paisible et enchanteur, propice à la construction de votre future maison. Avec ses espaces arborés et ensoleillés, cet emplacement se distingue par sa qualité de vie et son ambiance chaleureuse, garantissant un lieu de vie comme vous l’avez toujours imaginé. Sainte-Menehould est une ville dynamique au cœur de la région Grand Est, offrant un équilibre parfait entre tranquillité et commodités modernes. Vous bénéficiez d’un accès facile aux commerces, écoles et différents services essentiels, tout en étant proche de la nature grâce à un environnement arboré et calme. La ville se distingue également par sa riche histoire, ses événements culturels et ses activités de loisirs, faisant de cette localité un choix privilégié pour un cadre de vie agréable. Ne manquez pas cette occasion unique d’investir dans un terrain au potentiel exceptionnel, propice à la concrétisation de votre projet de construction. Contactez-nous pour plus d’informations et envisager cette belle opportunité ! À noter qu’en tant que constructeur, nous ne sommes pas mandatés pour réaliser la vente de ce terrain.
L’actualité immobilière à Chaudefontaine
27/11/2023
02/11/2023
30/10/2023
20/10/2023
16/10/2023
16/10/2023